Spain Urban Spain Urban Malaga Urban Rincón de la Victoria Terreno en Urbanización Añoreta, 9

Terreno en Urbanización Añoreta, 9

Malaga, Rincón de la Victoria, Añoreta Golf - Paradise of the Sun, Urbanización Añoreta, 9
390 000 €
Leave review
Urban Property type
655 m² Land area
3 Buildable plots
243 Buildability
¡Descubre el lugar perfecto para construir la casa de tus sueños! Este impresionante terreno de 655 m² está situado en primera línea de golf, ofreciendo un entorno inigualable con vistas al mar desde todas las estancias. Imagina despertar cada mañana con el sonido del mar y disfrutar de la tranquilidad que ofrece esta ubicación privilegiada. Con un proyecto y licencia ya incluidos, podrás comenzar a construir sin demoras tu vivienda unifamiliar de estilo contemporáneo, diseñada para fundirse con el entorno y maximizar la eficiencia energética. La parcela cuenta con una orientación sur, garantizando luz natural durante todo el día y permitiéndote disfrutar de amplias zonas verdes. Además, su proximidad a colegios internacionales y concertados, así como a transporte público, asegura comodidad y accesibilidad para toda la familia. A solo minutos de la playa y con rápido acceso a la autovía, este terreno ofrece una excelente comunicación con la capital y otros núcleos urbanos. La vivienda proyectada incluye una distribución de planta baja con salón, cocina, porche, piscina, jardín, dormitorio y baño. En el nivel superior encontrarás tres dormitorios dobles con baños en suite, zona de vestidor y una terraza para disfrutar de las vistas panorámicas. Además, cuenta con dos plazas de garaje cubiertas. No pierdas esta oportunidad única de vivir en un entorno exclusivo, donde la tranquilidad y la vida relajada son protagonistas. ¡Contáctanos para más información!

Property characteristics

Complex information

  • Property type
    Urban

Property data

  • Property type
    Second hand

Surfaces

  • Land area
    655 m²

Base

  • Minimum sale plot
    655 m²
  • Buildable plots
    3
  • Buildability
    243

Facilities

Views:

Sea Views

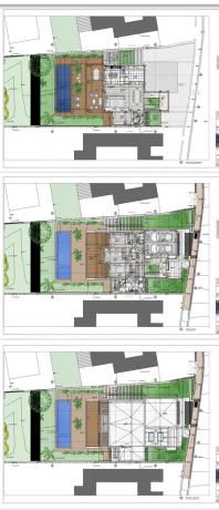
Plans

Market price statistics for Terreno en Urbanización Añoreta, 9

Map

Malaga, Rincón de la Victoria, Añoreta Golf - Paradise of the Sun, Urbanización Añoreta, 9 Going to this location!
Leave a review about Terreno en Urbanización Añoreta, 9
0
0 reviews
1
0% (0)
2
0% (0)
3
0% (0)
4
0% (0)
5
0% (0)
LITORAL SOL INMOBILIARIA
390 000 €
Contact advertiser

For more information contact the platform

REF: 242509

Reviews about Terreno en Urbanización Añoreta, 9
Loading...

No reviews have been left for this object yet

Nearest properties

Explore nearby properties we've discovered in close proximity to this location

Terreno en calle Bahamas

Malaga, Rincón de la Victoria, Añoreta Golf - Paradise of the Sun, Calle Bahamas
299 000 €

Parcela con vistas al mar en Rincón de la Victoria – Urbanización Paraíso del So...

0
0 reviews

Terreno en montesol

Malaga, Rincón de la Victoria, Great Sun - Mountain Sun, Montesol
1 350 000 €

Oportunidad de inversión en Rincón de la Victoria (Málaga) – Suelo urbano para d...

0
0 reviews

Terreno en calle Gran Bretaña

Malaga, Rincón de la Victoria, Great Sun - Mountain Sun, Calle Gran Bretaña
1 350 000 €

Suelo en Rincon De La Victoria, provincia de Málaga, de uso Residencial Plurifam...

0
0 reviews

Terreno en calle Acacias, 1

Malaga, Rincón de la Victoria, Cotomar - Urbanizations, Calle Acacias, 1
390 000 €

Parcela en la zona de Cotomar en Rincón de la Victoria. Suelo urbano consolidado...

0
0 reviews

Terreno en calle Reyezuelo

Malaga, Rincón de la Victoria, Lo Cea - Los Cortijos, Calle Reyezuelo
260 000 €

PRECIOSA PARCELA SEGREGABLE EN RINCON DE LA VICTORIA CON VISTAS DESPEJADAS AL MA...

0
0 reviews

Terreno en calle Reyezuelo

Malaga, Rincón de la Victoria, Lo Cea - Los Cortijos, Calle Reyezuelo
210 000 €

PRECIOSA PARCELA EN RINCON DE LA VICTORIA CON VISTAS DESPEJADAS AL MAR: Posibili...

0
0 reviews

Terreno en calle Sietecolores

Malaga, Rincón de la Victoria, Lo Cea - Los Cortijos, Calle Sietecolores
190 000 €

Parcela a escasos minutos del centro de Rincón de la Victoria. Múltiples posibil...

0
0 reviews

Terreno en Lo Cea - Los Cortijos

Malaga, Rincón de la Victoria, Lo Cea - Los Cortijos, Lo Cea - Los Cortijos
235 000 €

Estupenda parcela urbana, totalmente llana orientada al sur. En esta parcela se...

0
0 reviews

Terreno en calle Lancelot

Malaga, Rincón de la Victoria, Lo Cea - Los Cortijos, Calle Lancelot
660 000 €

Estupenda parcela para edificar hasta un total de cinco viviendas unifamiliares...

0
0 reviews

We use our own and third-party cookies to analyze website usage and show you advertisements related to your preferences based on a profile created from your browsing habits (e.g., pages visited). More information. Do you accept cookies?