Sale of independent chalet in Avenida Las Palmitas, 17, Adeje

Santa Cruz de Tenerife, Adeje, Costa Adeje, Avenida Las Palmitas, 17
2 650 000 €
7 067 € / m2
Leave review
Detached chalet Property type
375 m² built square meters
5 Bathrooms
3 Bedrooms
Included in the price Garage
2 Floor

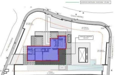
Situated in the highly sought-after Avenida Las Palmitas, this is the last available residential plot, offering you an exceptional opportunity for immediate construction. Renowned architect Antonino Jorge Mejias envisions a masterpiece of luxury living, featuring an impressive villa project that includes a majestic 25-meter swimming pool, expansive gardens, and spacious terraces.

The potential for this property is truly exceptional—it comes with a wealth of luxurious amenities. It boasts its own private cinema and a well-equipped gym in the basement, complemented by a dedicated SPA area, a games room, and a separate apartment for household staff. On the ground floor, residents can enjoy a grand living room with a dining area and state-of-the-art kitchen, alongside two bathrooms. A master bedroom with an en-suite bathroom and dressing room completes this level. The upper floor features two additional bedrooms, each with its own bathroom.

Located in the vibrant city of Adeje, this project marries modern convenience with serenity. The basement of the villa also includes a garage, laundry facilities, a toilet, a Turkish bath, and a sauna, enhancing your everyday living experience. Enjoy the exquisite combination of luxury and functionality within a prime address in one of Costa Adeje’s most desirable locations, with properties ranging from 2,650,000 € for 375 m² of unmatched elegance.

Property characteristics

Complex information

  • Residential complex
    Proyecto Villa en Barranco del Inglés
  • Property type
    Detached chalet

Property data

  • Garage
    Included in the price
  • Floor
    2
  • Bedrooms
    3
  • Bathrooms
    5
  • built square meters
    375 m²
  • Property type
    New construction

Energy certification

  • Energy certificate status
    In process
  • Energy certificate
    E
  • Energy consumption
    En trámite

Facilities

Housing Amenities:

Sauna
Home Theater
Terrace

In building:

Swimming Pool
Gymnasium
Sauna
Spa
Garden
Movie theater
Basement

Market price statistics for Casa o chalet independiente en venta en avenida Las Palmitas, 17

2 089 622 € (6 035 €/m2)
Average price of primary Detached chalet in city Adeje
2 247 343 € (5 637 €/m2)
Average price of primary Detached chalet in district Costa Adeje

Map

Santa Cruz de Tenerife, Adeje, Costa Adeje, Avenida Las Palmitas, 17 Going to this location!
Leave a review about Casa o chalet independiente en venta en avenida Las Palmitas, 17
0
0 reviews
1
0% (0)
2
0% (0)
3
0% (0)
4
0% (0)
5
0% (0)
SENIORBEL
2 650 000 €
from 7 067 € / m2
Contact advertiser

For more information contact the platform

REF: 77547

Reviews about Casa o chalet independiente en venta en avenida Las Palmitas, 17
Loading...

No reviews have been left for this object yet

Nearest properties

Explore nearby properties we've discovered in close proximity to this location

Chalet independiente en Venta en Calle Cantabria , 9, Adeje

Santa Cruz de Tenerife, Adeje, Costa Adeje, Calle Cantabria , 9
1 700 000 €

Una exclusiva villa en venta con un diseño único, hermosas vistas al mar, una pi...

0
0 reviews

Chalet independiente en Venta en Calle la Caleta, 39, Adeje

Santa Cruz de Tenerife, Adeje, Costa Adeje, Calle la Caleta, 39
5 750 000 €

El lugar perfecto para disfrutar del entorno de la isla de Tenerife. Con impresi...

0
0 reviews

Chalet independiente en Venta en Calle Playa Paraíso s/n, Adeje

Santa Cruz de Tenerife, Adeje, Paradise Beach, Calle Playa Paraíso s/n
4 800 000 €

Elegante villa nueva en Playa Paraíso con detalles contemporáneos en madera y pi...

0
0 reviews

Chalet independiente en Venta en Avenida de la Macaronesia s/n, Adeje

Santa Cruz de Tenerife, Adeje, Costa Adeje, Avenida de la Macaronesia s/n
6 800 000 €

Bienvenido a la villa de sus sueños en Tenerife, situada en la prestigiosa zona...

0
0 reviews

Chalet independiente en Venta en Calle Navarra, 34, Adeje

Santa Cruz de Tenerife, Adeje, Costa Adeje, Calle Navarra, 34
2 100 000 €

VILLA DE LUJO CON IMPRESIONANTES VISTAS EN ROQUE DEL CONDE. Esta impresionante v...

0
0 reviews

Chalet independiente en Venta en Avenida Las Palmitas, 17, Adeje

Santa Cruz de Tenerife, Adeje, Costa Adeje, Avenida Las Palmitas, 17
2 650 000 €

Última parcela residencial disponible en la prestigiosa Avenida Las Palmitas con...

0
0 reviews

Chalet independiente en Venta en Avenida Francia, 38, Adeje

Santa Cruz de Tenerife, Adeje, Costa Adeje, Avenida Francia, 38
4 800 000 €

La vivienda tiene piscina, parking, ascensor, terraza, airó condicionado, Storer...

0
0 reviews

Obra nueva Rokabella en Adeje

Santa Cruz de Tenerife, Adeje, Callao Salvaje, Pasaje Valito Sau, 5
1 490 000 €

Disponible nuevas Villas en SÝBARIS PREMIUM VILLAS.La urbanización consiste en u...

0
0 reviews

Obra nueva Rokabella en Adeje

Santa Cruz de Tenerife, Adeje, Callao Salvaje, Pasaje Valito Sau, 5
1 534 000 €

Disponible nuevas Villas en SÝBARIS PREMIUM VILLAS.La urbanización consiste en u...

0
0 reviews

We use our own and third-party cookies to analyze website usage and show you advertisements related to your preferences based on a profile created from your browsing habits (e.g., pages visited). More information. Do you accept cookies?