Sale of independent chalet in Camino Viejo, 5, Guía de Isora

Santa Cruz de Tenerife, Guía de Isora, Guide of Isora, Camino Viejo, 5
1 050 000 €
3 500 € / m2
Leave review
Detached chalet Property type
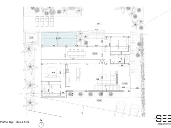
300 m² built square meters
3 Bathrooms
3 Bedrooms
Included in the price Garage
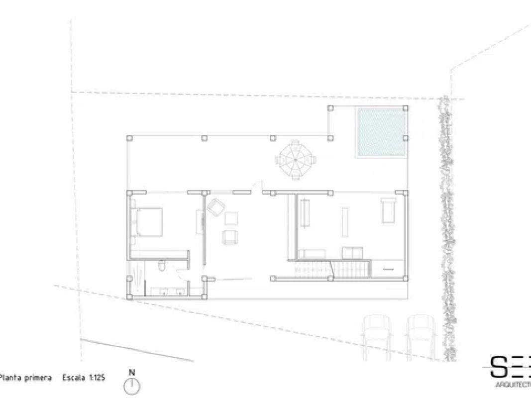
2 Floor

A magnificent 300 m² villa on a vast 3,500 m² plot is available in a prime location. This impressive property offers a perfect balance between indoor and outdoor space, combining functionality and elegance in every corner.

The villa features three cozy bedrooms and spacious areas that invite comfort and contemporary design. Priced within the range of 900,000 €, this home is an excellent investment for those seeking a luxury residence.

Discover the advantages of living in a newly built villa, where every detail has been carefully planned. In addition to offering a modern design, the property is ready for you to add your personal touch through furnishings that match your preferences.

Located in the charming region of Guia de Isora, this villa offers a tranquil atmosphere and excellent connectivity with the rest of the island. You'll find that the combination of luxury and serenity makes this an ideal choice for enjoying the lifestyle in this delightful area.

This property is more than just a house; it's a place where you can enjoy the pleasures of the natural surroundings while being just a step away from the city. The energy certification is in process, ensuring an additional standard of modernity and sustainability.

Property characteristics

Complex information

  • Residential complex
    Villa en Chirche
  • Property type
    Detached chalet

Property data

  • Garage
    Included in the price
  • Floor
    2
  • Bedrooms
    3
  • Bathrooms
    3
  • built square meters
    300 m²
  • Property type
    New construction

Energy certification

  • Energy certificate status
    In process
  • Energy consumption
    En trámite

Plans

Market price statistics for Casa o chalet independiente en venta en camino Viejo, 5

1 238 052 € (4 990 €/m2)
Average price of primary Detached chalet in city Guía de Isora

Map

Santa Cruz de Tenerife, Guía de Isora, Guide of Isora, Camino Viejo, 5 Going to this location!
Leave a review about Casa o chalet independiente en venta en camino Viejo, 5
0
0 reviews
1
0% (0)
2
0% (0)
3
0% (0)
4
0% (0)
5
0% (0)
BRUGMANS
Villa en Chirche
Residential complex
1 050 000 €
from 3 500 € / m2
Contact advertiser

For more information contact the platform

REF: 228061

Reviews about Casa o chalet independiente en venta en camino Viejo, 5
Loading...

No reviews have been left for this object yet

Nearest properties

Explore nearby properties we've discovered in close proximity to this location

Chalet independiente en Venta en Calle Josefina de la Torre s/n, Guia de Isora

Santa Cruz de Tenerife, Guía de Isora, Abama, Calle Josefina de la Torre s/n
3 100 000 €

NUEVA MODERNA VILLA CON PRECIOSAS VISTAS A LOS CAMPOS DE GOLF Y AL OCEANO. Esta...

0
0 reviews

Casa o chalet independiente en venta en calle Nicaragua, 9

Santa Cruz de Tenerife, Guía de Isora, Guide of Isora, Calle Nicaragua, 9
295 000 €

OPORTUNIDAD ÚNICA DE COMPRA de un semipiso 3 hab + local/garaje 5 coches + piso...

0
0 reviews

Casa o chalet independiente en venta en calle El Pozo, 5

Santa Cruz de Tenerife, Guía de Isora, Guide of Isora, Calle El Pozo, 5
866 537 €

Welcome to a new standard of contemporary luxury in the peaceful area of El Poz...

0
0 reviews

Casa o chalet independiente en venta en calle Emilia Pardo Bazán s/n

Santa Cruz de Tenerife, Guía de Isora, Abama, Calle Emilia Pardo Bazán s/n
2 100 000 €

Discover an exclusive collection of stunning detached homes, offering unparalle...

0
0 reviews

Obra nueva Villa Atlántico en Guia de Isora

Santa Cruz de Tenerife, Guía de Isora, Abama, Calle Josefina de la Torre s/n
3 950 000 €

NUEVA MODERNA VILLA CON PRECIOSAS VISTAS A LOS CAMPOS DE GOLF Y AL OCEANO. Esta...

0
0 reviews

Casa o chalet independiente en venta en calle El Pozo, 5

Santa Cruz de Tenerife, Guía de Isora, Guide of Isora, Calle El Pozo, 5
866 537 €

Welcome to a new standard of contemporary luxury in the peaceful area of El Poz...

0
0 reviews

Casa o chalet independiente en venta en calle El Pozo, 5

Santa Cruz de Tenerife, Guía de Isora, Guide of Isora, Calle El Pozo, 5
1 187 000 €

Welcome to a new standard of contemporary luxury in the peaceful area of El Poz...

0
0 reviews

Casa o chalet independiente en venta en calle El Pozo, 5

Santa Cruz de Tenerife, Guía de Isora, Guide of Isora, Calle El Pozo, 5
876 921 €

Welcome to a new standard of contemporary luxury in the peaceful area of El Poz...

0
0 reviews

Casa o chalet independiente en venta en calle El Pozo, 5

Santa Cruz de Tenerife, Guía de Isora, Guide of Isora, Calle El Pozo, 5
857 424 €

Welcome to a new standard of contemporary luxury in the peaceful area of El Poz...

0
0 reviews

We use our own and third-party cookies to analyze website usage and show you advertisements related to your preferences based on a profile created from your browsing habits (e.g., pages visited). More information. Do you accept cookies?