Obra nueva Magdalena murillo en Gelves

Sold out
Leave review
Flats Property type
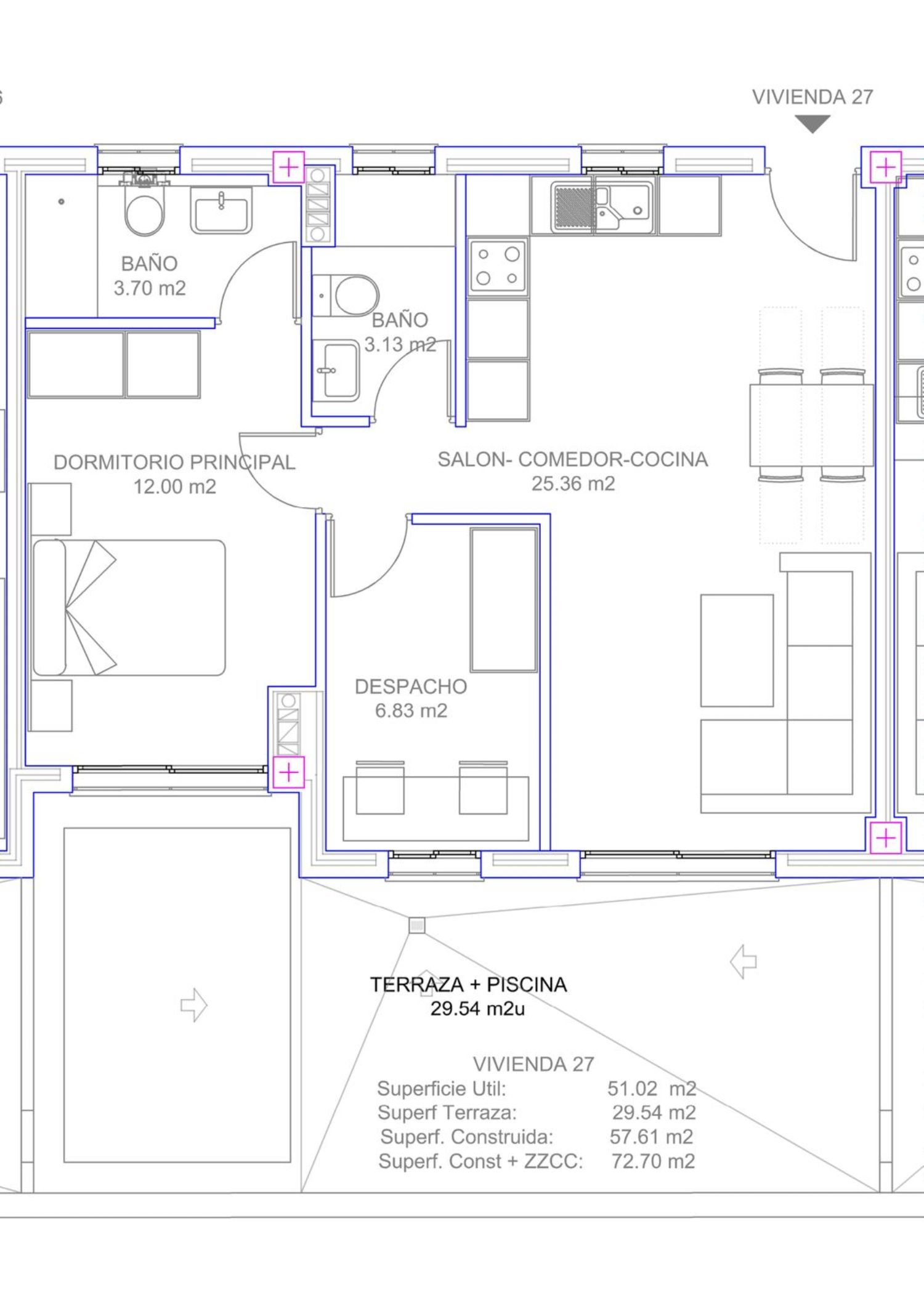
57 m² built square meters
2 Bathrooms
2 Bedrooms
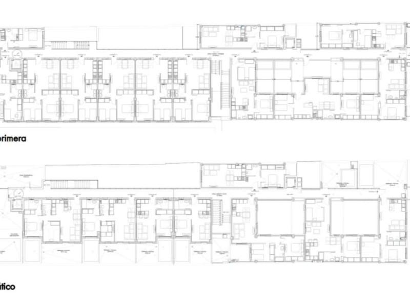
ULTIMAS 10 VIVIENDAS!Descubre una exclusiva promoción de viviendas en la calle Magdalena Murillo de Gelves. Este magnífico edificio ofrece treinta y dos viviendas diseñadas para ofrecer una experiencia de vida excepcional ofreciendo un diseño moderno y elegante. Cada una de estas espaciosas viviendas, que incluyen opciones de 1 y 2 dormitorios, algunas de estas viviendas cuenta con grandes patios o terrazas, brindando un espacio al aire libre perfecto para disfrutar del clima soleado y las vistas panorámicas. Una promoción de viviendas sin equivalente en el mercado, en un edificio que cuenta con revestimientos de primera calidad y acabados sensacionales, con la posibilidad de que cada propietario personalice su vivienda según sus gustos y preferencias. Sumérgete en un estilo de vida exclusivo y personalizado en esta promoción, que combina el confort, la comodidad y los espacios al aire libre en un entorno privilegiado.Viviendas cercanas a comercios, bares, restaurantes, institutos y transporte publico.Informamos a nuestros clientes que el precio de venta no incluye lo siguiente: Honorarios de la agencia inmobiliaria, IVA, gastos de registro, gestoría y notaria. Documento D. I. A. a disposición del consumidor según Decreto 218/2005 Junta de Andalucía.Para más información de la promoción puedes visitarnos en nuestra oficina Tecnocasa de Calle Real 34 (Gelves, Sevilla).* Garajes independiente a 15.000€ y 16.000€.

Property characteristics

Complex information

  • Residential complex
    Magdalena murillo
  • Property type
    Flats

Property data

  • Bedrooms
    2
  • Bathrooms
    2
  • built square meters
    57 m²
  • Design type
    Modern
  • Property type
    New construction

Facilities

Housing Amenities:

Terrace

In building:

Elevator
Bar
Spa

Market price statistics for Piso en venta en calle magdalena murillo s/n

138 229 € (2 103 €/m2)
Average price of primary Flats in city Gelves

Map

Leave a review about Piso en venta en calle magdalena murillo s/n
0
0 reviews
1
0% (0)
2
0% (0)
3
0% (0)
4
0% (0)
5
0% (0)
Magdalena murillo
Residential complex
Sold out
Contact advertiser

For more information contact the platform

REF: 11062

Reviews about Piso en venta en calle magdalena murillo s/n
Loading...

No reviews have been left for this object yet

Nearest properties

Explore nearby properties we've discovered in close proximity to this location

Apartamentos en Venta en Calle Pages del Corro, 95, 97, Sevilla

Seville, Seville, Triana, Calle Pages del Corro, 95, 97
430 000 €

DESCUBRE EL HOGAR DONDE LOS SUEÑOS SE CUMPLENMODERNO Y CLASICO SE DAN LA MANOEn...

0
0 reviews

Apartamentos en Venta en Calle Pages del Corro, 95, 97, Sevilla

Seville, Seville, Triana, Calle Pages del Corro, 95, 97
306 000 €

DESCUBRE EL HOGAR DONDE LOS SUEÑOS SE CUMPLENMODERNO Y CLASICO SE DAN LA MANOEn...

0
0 reviews

Apartamentos en Venta en Calle Pages del Corro, 95, 97, Sevilla

Seville, Seville, Triana, Calle Pages del Corro, 95, 97
351 000 €

DESCUBRE EL HOGAR DONDE LOS SUEÑOS SE CUMPLENMODERNO Y CLASICO SE DAN LA MANOEn...

0
0 reviews

Apartamentos en Venta en Calle Pages del Corro, 95, 97, Sevilla

Seville, Seville, Triana, Calle Pages del Corro, 95, 97
389 000 €

DESCUBRE EL HOGAR DONDE LOS SUEÑOS SE CUMPLENMODERNO Y CLASICO SE DAN LA MANOEn...

0
0 reviews

Apartamentos en Venta en Avenida Jerez s/n, Sevilla

Seville, Seville, La Palmera - Los Bermejales, Avenida Jerez s/n
361 000 €

¡OBRAS INICIADAS!Selecta Bermes es un nuevo proyecto de 42 viviendas plurifamili...

0
0 reviews

Apartamentos en Venta en Avenida Jerez s/n, Sevilla

Seville, Seville, La Palmera - Los Bermejales, Avenida Jerez s/n
289 000 €

¡OBRAS INICIADAS!Selecta Bermes es un nuevo proyecto de 42 viviendas plurifamili...

0
0 reviews

Apartamentos en Venta en Avenida Jerez s/n, Sevilla

Seville, Seville, La Palmera - Los Bermejales, Avenida Jerez s/n
422 000 €

¡OBRAS INICIADAS!Selecta Bermes es un nuevo proyecto de 42 viviendas plurifamili...

0
0 reviews

Obra nueva Edificio Olivar de la Reina en Sevilla

Seville, Seville, Cerro Amate, Calle José María de Pereda, 21
235 000 €

Viviendas para habitar y disfrutar en el corazón del tradicional barrio sevillan...

0
0 reviews

Obra nueva Edificio Olivar de la Reina en Sevilla

Seville, Seville, Cerro Amate, Calle José María de Pereda, 21
158 900 €

Viviendas para habitar y disfrutar en el corazón del tradicional barrio sevillan...

0
0 reviews

We use our own and third-party cookies to analyze website usage and show you advertisements related to your preferences based on a profile created from your browsing habits (e.g., pages visited). More information. Do you accept cookies?