Sale of apartment in Parcela R-21 Alameda del Señorío s/n, Illescas

Toledo, Illescas, Lordship of Illescas, Parcela R-21 Alameda del Señorío s/n
Sold out
Leave review
Flats Property type
96 m² built square meters
2 Bathrooms
3 Bedrooms
Granted Construction license
Radiant Floor Heating
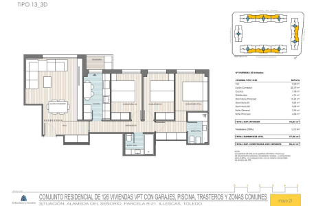
LICENCIA DE OBRAS CONCEDIDAPróxima construcción.Residencial de 126 viviendas en régimen de cooperativa VPT.2 y 3 dormitorios.Bajos con jardines y áticos con grandes terrazas.Piscina y zonas comunesInfórmateLa nueva oportunidad de tener una gran vivienda a un precio mínimo. Grupo EM Inmobiliaria comercializa en Illescas en la zona del Señorío en la Calle Alfredo Bryce Echenique y con Calle Marcela Serrano, una gran promoción de viviendas en Régimen de Cooperativa VPT (Vivienda Precio Tasado) con un total de 126 viviendas de 2 a 3 dormitorios, bajos, vivienda en altura e impresionantes áticos. Además, cuenta con viviendas adaptadas para personas con certificación de discapacidad, igual o superior al 33%. Y no podemos dejar de mencionar que las zonas comunitarias son de gran tamaño, para las nuevas familias que tendrán la oportunidad de disfrutar de piscina de adultos e infantil, zonas ajardinas, zona lúdica para los más pequeños. La calidad no esta reñida con el precio, tenemos proyectado un sistema de Aerotermia por suelo radiante y refrigerante, que nos otorga ahorro energético y ahorro económico en los suministros.Viviendas de 83,67m2 a 95,53m2Precio desde 116.323€ + IVAPlaza de garaje y trastero incluido en precioBajosVivienda en alturaÁticos*IMPORTANTE: Los datos aquí contenidos están sujetos a posibles modificaciones, los modelos que se hace constar que son meramente orientativos. Las imágenes no son contractuales.

Property characteristics

Complex information

  • Residential complex
    Residencial El Señorío de Illescas
  • Property type
    Flats

Project information / Work status

  • Construction license
    Granted
  • Promotion format
    In cooperative

Quality Report

  • Heating
    Radiant Floor

Property data

  • Bedrooms
    3
  • Bathrooms
    2
  • built square meters
    96 m²
  • Property type
    New construction

Facilities

Housing Amenities:

Storage room
Terrace

In building:

Swimming Pool
Garage
Elevator
Children's area
Garden Zones
Storage unit
Green Areas
Garden

Market price statistics for Piso en venta en parcela R-21 Alameda del Señorío s/n

200 000 € (2 945 €/m2)
Average price of primary Flats in city Illescas
145 700 € (2 153 €/m2)
Average price of primary Flats in district Lordship of Illescas

Map

Toledo, Illescas, Lordship of Illescas, Parcela R-21 Alameda del Señorío s/n Going to this location!
Leave a review about Piso en venta en parcela R-21 Alameda del Señorío s/n
0
0 reviews
1
0% (0)
2
0% (0)
3
0% (0)
4
0% (0)
5
0% (0)
Sold out
Contact advertiser

For more information contact the platform

REF: 15675

Reviews about Piso en venta en parcela R-21 Alameda del Señorío s/n
Loading...

No reviews have been left for this object yet

Nearest properties

Explore nearby properties we've discovered in close proximity to this location

Obra nueva Residencial Alae 3 en Casarrubuelos

Madrid, Casarrubuelos
130 000 €

Vivienda nueva. Entrega en marzo del 2025Pisos y áticos con terraza de 1 y 2 dor...

0
0 reviews

Obra nueva El Señorio de Illescas IV en Illescas

Toledo, Illescas, Lordship of Illescas, Calle Portugal, 5
116 217 €

ULTIMAS VIVIENDAS DE 2HAB DISPONIBLES.53 viviendas vpo con régimen concertado. P...

0
0 reviews

Obra nueva El Señorio de Illescas IV en Illescas

Toledo, Illescas, Lordship of Illescas, Calle Portugal, 5
127 155 €

ULTIMAS VIVIENDAS DE 2HAB DISPONIBLES.53 viviendas vpo con régimen concertado. P...

0
0 reviews

Obra nueva El Señorio de Illescas IV en Illescas

Toledo, Illescas, Lordship of Illescas, Calle Portugal, 5
103 747 €

ULTIMAS VIVIENDAS DE 2HAB DISPONIBLES.53 viviendas vpo con régimen concertado. P...

0
0 reviews

Obra nueva El Señorio de Illescas IV en Illescas

Toledo, Illescas, Lordship of Illescas, Calle Portugal, 5
104 700 €

ULTIMAS VIVIENDAS DE 2HAB DISPONIBLES.53 viviendas vpo con régimen concertado. P...

0
0 reviews

Obra nueva El Señorio de Illescas IV en Illescas

Toledo, Illescas, Lordship of Illescas, Calle Portugal, 5
127 155 €

ULTIMAS VIVIENDAS DE 2HAB DISPONIBLES.53 viviendas vpo con régimen concertado. P...

0
0 reviews

Obra nueva El Señorio de Illescas IV en Illescas

Toledo, Illescas, Lordship of Illescas, Calle Portugal, 5
121 114 €

ULTIMAS VIVIENDAS DE 2HAB DISPONIBLES.53 viviendas vpo con régimen concertado. P...

0
0 reviews

Obra nueva El Señorio de Illescas IV en Illescas

Toledo, Illescas, Lordship of Illescas, Calle Portugal, 5
122 065 €

ULTIMAS VIVIENDAS DE 2HAB DISPONIBLES.53 viviendas vpo con régimen concertado. P...

0
0 reviews

Obra nueva El Señorio de Illescas IV en Illescas

Toledo, Illescas, Lordship of Illescas, Calle Portugal, 5
107 562 €

ULTIMAS VIVIENDAS DE 2HAB DISPONIBLES.53 viviendas vpo con régimen concertado. P...

0
0 reviews

We use our own and third-party cookies to analyze website usage and show you advertisements related to your preferences based on a profile created from your browsing habits (e.g., pages visited). More information. Do you accept cookies?