Sale of apartment in Calle Francisco Herrera s/n, Seseña

Toledo, Seseña, El Quiñón, Calle Francisco Herrera s/n
Sold out
Leave review
Flats Property type
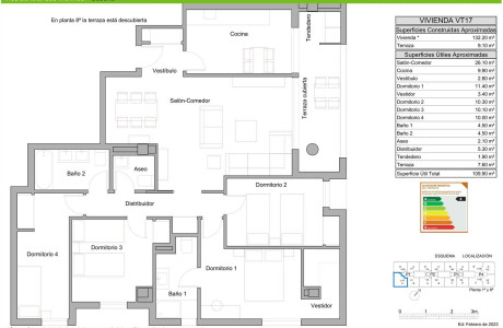
132 m² built square meters
3 Bathrooms
4 Bedrooms
Under construction Building State
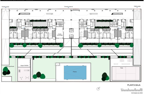
OBRAS INICIADAS/ VISITA PISO PILOTOVenta de pisos de obra nueva sobre plano.Nueva promoción de obra nueva de 156 viviendas con terrazas de 1, 2, 3 y 4 dormitorios, incluyendo plaza de garaje y trastero, en El Quiñón – Seseña.La urbanización dispone de zonas comunes pensadas para toda la familia. Cuenta con piscina, pista de padel y parque infantil.Tendrá la opción de poder ELEGIR LAS CALIDADES de su vivienda sin ningún coste adicional dentro de la gama que les ofrecemos y así poder personalizarla a su gusto, eligiendo tarima, alicatados, solados, carpintería, muebles de baño, muebles de cocina y pintura.El conjunto residencial se encuentra en una zona muy consolidada, con todos los servicios a tu alcance, como supermercados, restauración, veterinarios, colegios, parques, etc…Si estás buscando una zona tranquila donde vivir y a tan solo 30 minutos de Madrid, no lo dudes y llámanos, estaremos encantados de informarte.Promueve Grupo Ferrocarril.

Property characteristics

Complex information

  • Residential complex
    Residencial Los Molinos
  • Property type
    Flats

Project information / Work status

  • Building State
    Under construction

Property data

  • Bedrooms
    4
  • Bathrooms
    3
  • built square meters
    132 m²
  • Property type
    New construction

Energy certification

  • Energy certificate
    A

Facilities

Housing Amenities:

Furniture
Storage room
Terrace

In building:

Swimming Pool
Garage
Elevator
Padel court
Children's area
Garden Zones
Storage unit
Green Areas

State:

New construction

Market price statistics for Piso en venta en calle Francisco Herrera s/n

188 753 € (1 879 €/m2)
Average price of primary Flats in city Seseña
188 753 € (1 879 €/m2)
Average price of primary Flats in district El Quiñón

Map

Toledo, Seseña, El Quiñón, Calle Francisco Herrera s/n Going to this location!
Leave a review about Piso en venta en calle Francisco Herrera s/n
0
0 reviews
1
0% (0)
2
0% (0)
3
0% (0)
4
0% (0)
5
0% (0)
Residencial Los Molinos
Residential complex
Sold out
Contact advertiser

For more information contact the platform

REF: 18434

Reviews about Piso en venta en calle Francisco Herrera s/n
Loading...

No reviews have been left for this object yet

Nearest properties

Explore nearby properties we've discovered in close proximity to this location

Obra nueva Torres Lucientes en Seseña

Toledo, Seseña, El Quiñón, Calle Francisco de Goya, 10
59 897 €

PROMOCIÓN ESPECIAL PRIMAVERA: Todas las viviendas que se reserven antes del 30 d...

0
0 reviews

Obra nueva Torres Lucientes en Seseña

Toledo, Seseña, El Quiñón, Calle Francisco de Goya, 10
139 770 €

PROMOCIÓN ESPECIAL PRIMAVERA: Todas las viviendas que se reserven antes del 30 d...

0
0 reviews

Obra nueva Torres Lucientes en Seseña

Toledo, Seseña, El Quiñón, Calle Francisco de Goya, 10
61 790 €

PROMOCIÓN ESPECIAL PRIMAVERA: Todas las viviendas que se reserven antes del 30 d...

0
0 reviews

Obra nueva Torres Lucientes en Seseña

Toledo, Seseña, El Quiñón, Calle Francisco de Goya, 10
171 107 €

PROMOCIÓN ESPECIAL PRIMAVERA: Todas las viviendas que se reserven antes del 30 d...

0
0 reviews

Apartamentos en Venta en Calle Francisco de Goya, 10, Seseña

Toledo, Seseña, El Quiñón, Calle Francisco de Goya, 10
175 659 €

PROMOCIÓN ESPECIAL PRIMAVERA: Todas las viviendas que se reserven antes del 30 d...

0
0 reviews

Apartamentos en Venta en Calle Francisco de Goya, 10, Seseña

Toledo, Seseña, El Quiñón, Calle Francisco de Goya, 10
150 956 €

PROMOCIÓN ESPECIAL PRIMAVERA: Todas las viviendas que se reserven antes del 30 d...

0
0 reviews

Apartamentos en Venta en Calle Francisco de Goya, 10, Seseña

Toledo, Seseña, El Quiñón, Calle Francisco de Goya, 10
181 607 €

PROMOCIÓN ESPECIAL PRIMAVERA: Todas las viviendas que se reserven antes del 30 d...

0
0 reviews

Apartamentos en Venta en Calle Francisco de Goya, 10, Seseña

Toledo, Seseña, El Quiñón, Calle Francisco de Goya, 10
184 513 €

PROMOCIÓN ESPECIAL PRIMAVERA: Todas las viviendas que se reserven antes del 30 d...

0
0 reviews

Apartamentos en Venta en Calle Alarcón , 6, Valdemoro

Madrid, Valdemoro, Center, Calle Alarcón , 6
127 416 €

Las cimas de Valdemoro es una promoción de 32 viviendas con plaza de garaje, pis...

0
0 reviews

We use our own and third-party cookies to analyze website usage and show you advertisements related to your preferences based on a profile created from your browsing habits (e.g., pages visited). More information. Do you accept cookies?