New construction Mas Camarena in Bétera

Valencia, Bétera, Mas Camarena, Calle 6 - R, 13
from 750 000 €
3 304 € / m2
Leave review
227 m² - 227 m² Property surfaces
4 Number of bedrooms
4 Bathrooms

Real estate in Mas Camarena

Discover the chance to secure a unique property in the prestigious area of , Bétera. This exclusive offering includes two independent plots, each with the option of a tailored residential project designed to enhance the potential of the land. These plots are available for purchase with various options to suit your needs: acquire just the plot, or opt for a plot with a basic project, or even have a complete turn-key solution.

Advantages of a new building

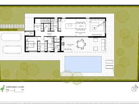
The residential project offers a contemporary design infused with Mediterranean character, perfectly integrated into the natural environment with open spaces. The living area features double-height ceilings for an abundance of light and a sense of spaciousness. An outdoor covered terrace with a kitchen and barbecue area connects seamlessly to a large pool. The functional and elegant design includes three bedrooms plus a study, a private gym on the upper level, and a variety of luxurious amenities such as air conditioning with specific zonal control and parking facilities for two vehicles, along with a secure bicycle garage.

On the ground floor, there is a 47.88 m² open-plan living-dining-kitchen area connected directly to the terrace and pool. The master bedroom features an independent dressing area and en-suite bathroom. Additionally, there is a convenient utility room with dual access, a guest toilet, storage space, and a bathroom adjacent to the pool. The first floor includes two double bedrooms, two full bathrooms, a private gym, and a spacious studio with views of the living area's double height.

High-quality materials and finishes define the project, from a distinctive facade with an elegant mix of textures to aluminum windows with thermal break technology. The lighting is thoughtfully integrated with a sleek and modern concept featuring RGB perimetral LED lights for both interiors and exteriors, ensuring a seamless blend between indoor and outdoor living spaces.

Life in the city Bétera

is synonymous with exclusivity, security, and a high standard of living. It is well connected to Valencia with all necessary services within easy reach. Residents benefit from proximity to international schools, sports facilities, shopping centers, and expansive green spaces, offering a serene lifestyle without compromising on convenience. For further details and to arrange a viewing, contact us to explore how we can help make your dream home a reality.

Featured promotions in Spain

10 units

Nature Views 2

Alicante, Torrevieja, Los Balcones - The Heights of Eden, Denia s/n
310 000 € - 379 000 €
1 units

Hotel en venta en Benidorm centro

Alicante, Benidorm, Poniente Beach
2 250 000 € - 2 250 000 €
32 units

Residencial Los Balcones De Calpe

Alicante, Calpe, Calpe Town, Avenida de Madrid, 1
299 000 € - 892 125 €
7 units

Nature Views

Alicante, Torrevieja, Lago Jardín II, Avenida Denia s/n
305 000 € - 330 000 €
5 units

ALONIS VILLAS

Alicante, La Villajoyosa / Vila Joiosa, Torres Beach, Partida Torres s/n
675 000 € - 775 000 €
2 units

Residencial Royal Beach

Alicante, Guardamar del Segura, town, Miguel Hernández 102
339 500 € - 345 500 €
8 units

Royal Star

Alicante, Guardamar del Segura
224 500 € - 264 500 €

Properties in this complex

The information provided about prices, specifications, and details of this promotion is subject to possible variations and changes depending on the source. Therefore, it does not have commercial value in itself but is purely informative and indicative. This website does not market this project or property.

Name
Bedrooms
Bathrooms
Surface square
Floor
Category
Price
4 4 227 m² 2 Detached chalet 750 000 € Visit
This information has been obtained from public sources and may not be up to date. It does not represent a link with the developer.

Property characteristics

Complex information

  • Number of units
    1
  • Price range
    750 000 € - 750 000 €
  • Number of bedrooms
    4
  • Property surfaces
    227 m² - 227 m²
  • Types of properties
    Detached chalet

Project information / Work status

  • Promotion format
    Free

Property data

  • Medium square meters
    227 m²
  • Property type
    New construction

Energy certification

  • Energy consumption
    En trámite

Facilities

In building:

Swimming Pool

Plans

Market price statistics for Mas Camarena

750 000 € (3 303 €/m2)
Average price in complex
750 000 € (3 304 €/m2)
Average price of 4+ bedroom
495 076 € (3 230 €/m2)
Average price of primary Houses in city Bétera
257 615 € (2 067 €/m2)
Average price of primary Apartments in city Bétera
525 500 € (3 226 €/m2)
Average price of primary Houses in district Mas Camarena

Map

Valencia, Bétera, Mas Camarena, Calle 6 - R, 13 Going to this location!
Leave a review about Mas Camarena
0
0 reviews
1
0% (0)
2
0% (0)
3
0% (0)
4
0% (0)
5
0% (0)
750 000 €
from 3 304 € / m2
Contact advertiser

For more information contact the platform

REF: 215647

Reviews about Mas Camarena
Loading...

No reviews have been left for this object yet

Nearest properties

Explore nearby properties we've discovered in close proximity to this location

15 units

Beterhomes 2

Valencia, Bétera, Center, Calle Dr. Fleming, 41
161 500 € - 274 500 €

Discover the opportunity to reside in a modern complex featuring a swimming pool...

0
0 reviews
14 units

Madreselva

Valencia, Burjassot, University Campus Zone, Calle General Prim, 4
151 400 € - 514 100 €

We offer a new way of life. A building with 14 residences, featuring studios, an...

0
0 reviews
20 units

Viure Residencial

Valencia, Paterna, The Mills, Calle dels Molins, 123
170 383 € - 262 179 €

Welcome to a residential concept designed to embody living in its fullest form....

0
0 reviews
2 units

Alsos

Valencia, Godella, Campolivar, Calle Montgo s/n
565 000 € - 650 000 €

Among all the areas surrounding Valencia, very few preserve an untouched space w...

0
0 reviews
6 units

Nerium

Valencia, Godella, Campolivar, Calle Montgo s/n
399 000 € - 669 000 €

Real estate in Nerium Nerium, a name that signifies 'greenery' in Latin, perfect...

0
0 reviews
5 units

Residencial La Iessa 4

Valencia, Benimàmet, Calle La Iessa, 4
218 000 € - 255 000 €

Real estate in Residencial La Iessa 4 The housing development is located in the...

0
0 reviews
3 units

Cooperativa de viviendas

Valencia, Masarrochos, Calle de Benet Bosch s/n
280 000 € - 360 000 €

The opportunity to build a home in a cooperative regime is now available, offeri...

0
0 reviews

Los Albatros

Valencia, Bétera, Torre en Conill - Cumbres de San Antonio, Calle Albatros, 44
-

Real estate in Los Albatros We are excited to introduce this new development of...

0
0 reviews
2 units

Residencial Atalaya de San Antonio

Valencia, San Antonio de Benagéber
250 574 € - 250 963 €

Real Estate in Residencial Atalaya de San Antonio Discover exquisite living spac...

0
0 reviews

We use our own and third-party cookies to analyze website usage and show you advertisements related to your preferences based on a profile created from your browsing habits (e.g., pages visited). More information. Do you accept cookies?