Spain Urban Spain Urban Valencia Urban Sagunto Terreno en Centro - El Castillo

Terreno en Centro - El Castillo

Valencia, Sagunto, Center - The Castle, Centro - El Castillo
85 000 €
Leave review
Urban Property type
176 m² Land area
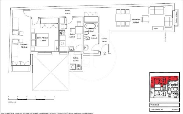
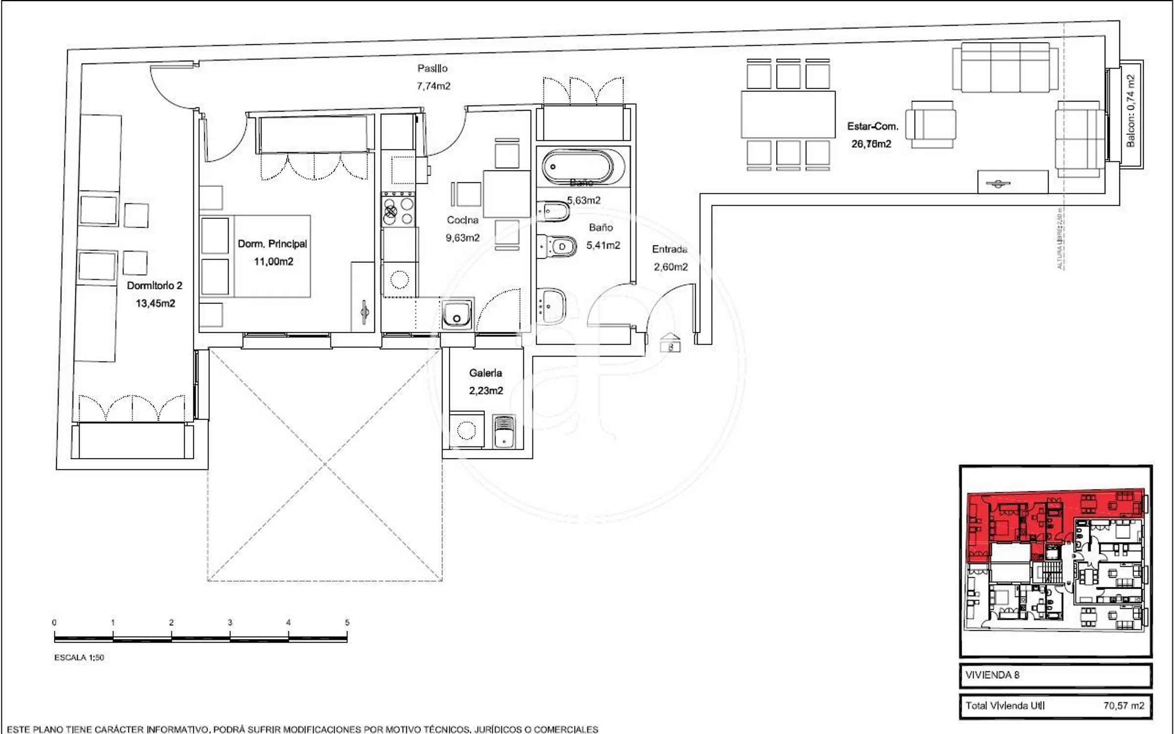
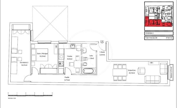
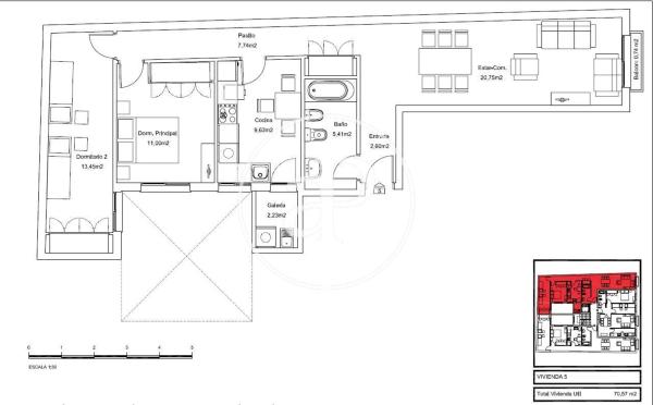
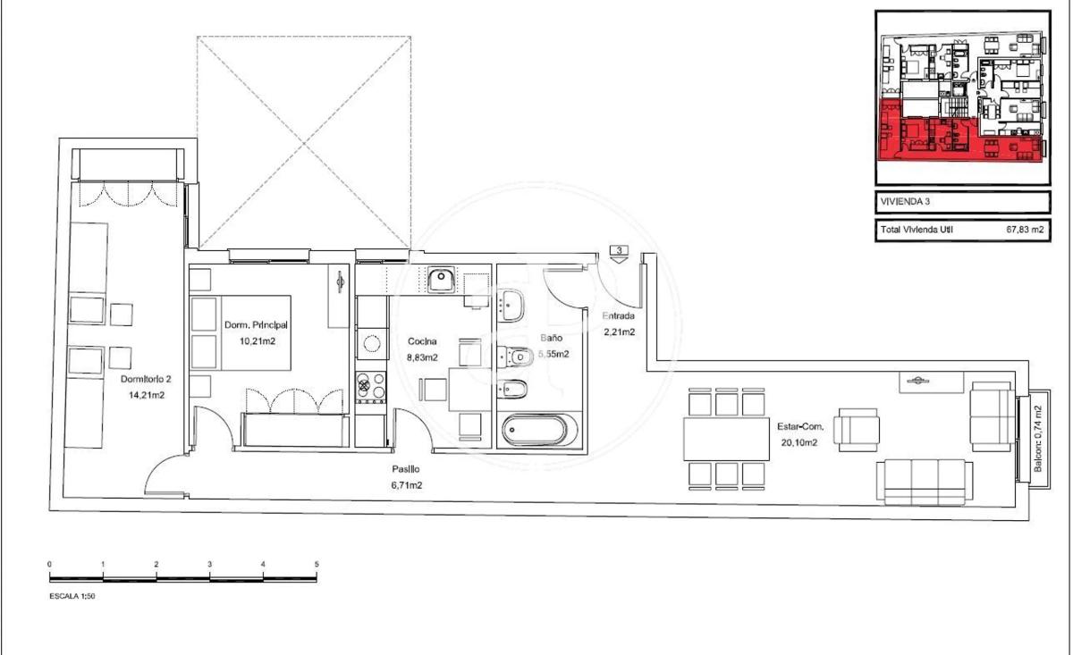
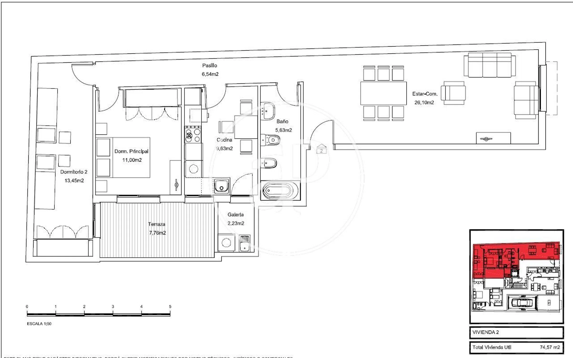
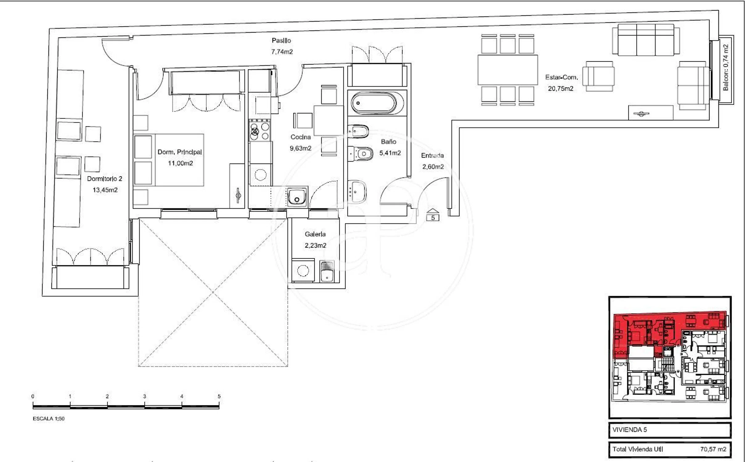
SOLAR EN SAGUNTO Les presentamos este solar para inversores que desean construir en la zona norte de Valencia. El solar urbano se encuentra situado en la parte alta de Sagunto con proyecto para construir. El edifico a construir dispone de 8 viviendas y 12 plazas de garaje. Situado en una zona tranquila, a tres minutos del centro de la localidad. La calle donde encontramos este solar, es una vía urbana. La ubicación dirección podremos ver tiendas cercanas. La calle posee muchos comercios, garajes. Es un lugar de paso para transeúntes habitual y con acceso a todo tipo de servicios: colegios, supermercados, jardines… ¡Esta es su gran oportunidad! Si está interesado y para más información no dude en contactar con nosotros. Contacte con nosotros para ver más inmuebles similares.

Property characteristics

Complex information

  • Property type
    Urban

Property data

  • Property type
    Second hand

Surfaces

  • Land area
    176 m²

Base

  • Urban land
    Consolidated (Land)

Market price statistics for Terreno en Centro - El Castillo

Map

Valencia, Sagunto, Center - The Castle, Centro - El Castillo Going to this location!
Leave a review about Terreno en Centro - El Castillo
0
0 reviews
1
0% (0)
2
0% (0)
3
0% (0)
4
0% (0)
5
0% (0)
aProperties Real Estate Valencia
85 000 €
Contact advertiser

For more information contact the platform

REF: 379756

Reviews about Terreno en Centro - El Castillo
Loading...

No reviews have been left for this object yet

Nearest properties

Explore nearby properties we've discovered in close proximity to this location

Terreno en calle Alt de la Rodana, 3

Valencia, Gilet, Calle Alt de la Rodana, 3
85 000 €

Buena zona, tranquila. Buen vecindario. Rodeado de naturaleza, se respira aire f...

0
0 reviews

Terreno en N-234

Valencia, Albalat dels Tarongers, N-234
4 200 €

¡Gran oportunidad! Terreno en venta ubicado en Paraje Gausa, Pol 3, Parcela 60,...

0
0 reviews

Terreno en N-234

Valencia, Albalat dels Tarongers, N-234
2 500 €

Os presentamos esta parcela ubicada en Albalat Dels Tarongers, Valencia. Localiz...

0
0 reviews

Terreno en venta en Polígono 5, 146

Valencia, Gilet
76 000 €

Parcela de 5000 metros con casita de 70 metros con luz de panales solares y agua...

0
0 reviews

Urban land For sell in Sagunto in Valencia

Valencia, Sagunto
75 000 €

Ponemos a la venta el solar que buscabas para construir la casa de tus sueños, c...

0
0 reviews

Urban land For sell in Sagunto in Valencia

Valencia, Sagunto
125 000 €

Si sueñas con construir tu propio hogar esta es la ocasión perfecta! Te ofrecemo...

0
0 reviews

Urban land For sell in Gilet in Valencia

Valencia, Gilet
100 000 €

Ubicada en la Urbanización de Santo Espíritu en Gilet y a los pies de la Caldero...

0
0 reviews

Terreno en calle Morera, 10

Valencia, Albalat dels Tarongers, Calle Morera, 10
179 000 €

Parcela urbana SIN construcción, con encanto mediterráneo, en un entorno natural...

0
0 reviews

Terreno en V-23

Valencia, Port of Sagunto, Avenue of April - 9th of October, V-23
584 200 €

Terreno industrial de 2.921m² en Sagunto Este terreno industrial está situado en...

0
0 reviews
Call

We use our own and third-party cookies to analyze website usage and show you advertisements related to your preferences based on a profile created from your browsing habits (e.g., pages visited). More information. Do you accept cookies?