New construction LAS FUENTES DEL DUERO in Laguna de Duero

Valladolid, Laguna de Duero, Calle Fuente Dorada, 32
from 235 000 €
1 328 € / m2
Leave review
177 m² - 177 m² Property surfaces
4 Number of bedrooms
3 Bathrooms

Real estate in LAS FUENTES DEL DUERO

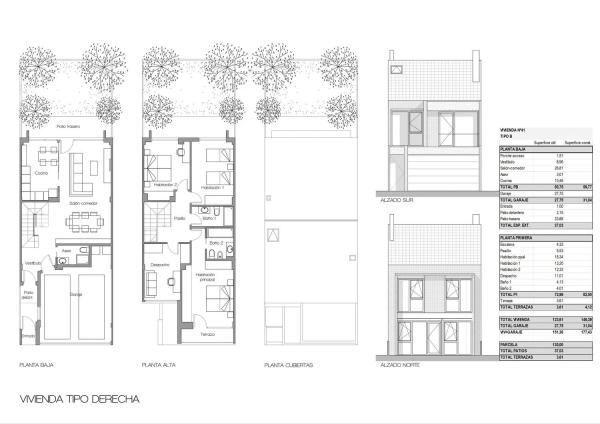
We present an exclusive offer of 50 townhouses, distributed in 4 phases, located in the prestigious area close to the city center, just 5 minutes from Valladolid. Surround yourself with an incomparable natural environment, where comfort, modern design, and exceptional quality meet in every corner of these homes. With an approximate surface of 177 m², these properties are distributed over two floors, offering a spacious and functional area for the whole family.

The ground floor features a charming garden of approximately 34 m², a perfect space to enjoy the outdoors. The kitchen, though yet to be furnished, presents a modern and functional style, ideal for those who enjoy cooking and family life. The living room, full of natural light, is complemented with a bathroom equipped with a shower, ensuring comfort and practicality daily.

On the upper floor, you will find four spacious and bright bedrooms, three of them with built-in wardrobes that provide storage space and a cozy environment for rest. Also on this floor are two fully equipped bathrooms, designed with high-quality materials that guarantee a modern and practical style.

Advantages of a new building LAS FUENTES DEL DUERO

These townhouses include a garage with space for two vehicles, which is an added value. Enjoy a 4 m² terrace, the ideal place to relax and socialize outdoors. The property offers premium features such as radiant and cooling aerothermal heating, high-quality floors, and a design that provides a modern and welcoming atmosphere. Details such as fitted wardrobes and furnished bathrooms add elegance and functionality.

Ideally located within a quiet residential environment, the townhouses provide access to extensive green areas and a communal swimming pool, perfect for enjoying with family and friends. This proposal offers an exceptional quality of life at a price range between €235,000 and €240,000. The townhouses also promise an energy efficiency level of A.

Life in the city Laguna de Duero

Do not miss the opportunity to visit and discover all the advantages of these homes in Laguna de Duero. We will provide you with plans for your review and all the necessary information about the delivery date. This offer combines a privileged location with an unbeatable price, becoming an investment that exceeds all expectations. Find out today about these magnificent townhouses, a unique opportunity you won't want to miss.

Featured promotions in Spain

10 units

Nature Views 2

Alicante, Torrevieja, Los Balcones - The Heights of Eden, Denia s/n
310 000 € - 379 000 €
1 units

Hotel en venta en Benidorm centro

Alicante, Benidorm, Poniente Beach
2 250 000 € - 2 250 000 €
28 units

Residencial Los Balcones De Calpe

Alicante, Calpe, Calpe Town, Avenida de Madrid, 1
299 000 € - 892 125 €
4 units

Nature Views

Alicante, Torrevieja, Lago Jardín II, Avenida Denia s/n
309 000 € - 330 000 €
5 units

ALONIS VILLAS

Alicante, La Villajoyosa / Vila Joiosa, Torres Beach, Partida Torres s/n
675 000 € - 775 000 €
1 units

Residencial Royal Beach

Alicante, Guardamar del Segura, town, Miguel Hernández 102
349 500 € - 349 500 €
7 units

Royal Star

Alicante, Guardamar del Segura
229 500 € - 269 500 €

Properties in this complex

The information provided about prices, specifications, and details of this promotion is subject to possible variations and changes depending on the source. Therefore, it does not have commercial value in itself but is purely informative and indicative. This website does not market this project or property.

Name
Bedrooms
Bathrooms
Surface square
Floor
Category
Price
4 3 177 m² 2 Terraced houses 235 000 € Visit
4 3 177 m² 2 Terraced houses 240 000 € Visit
4 3 177 m² 2 Terraced houses 240 000 € Visit
4 3 177 m² 2 Terraced houses 240 000 € Visit
4 3 177 m² 2 Terraced houses 240 000 € Visit
4 3 177 m² 2 Terraced houses 240 000 € Visit
4 3 177 m² 2 Terraced houses 240 000 € Visit
4 3 177 m² 2 Terraced houses 240 000 € Visit
This information has been obtained from public sources and may not be up to date. It does not represent a link with the developer.

Property characteristics

Complex information

  • Number of units
    8
  • Price range
    235 000 € - 240 000 €
  • Number of bedrooms
    4
  • Property surfaces
    177 m² - 177 m²
  • Types of properties
    Terraced houses

Project information / Work status

  • Promotion format
    Free

Property data

  • Medium square meters
    177 m²
  • Design type
    Modern
  • Property type
    New construction

Energy certification

  • Energy certificate
    A
  • CEE Issuance
    A

Facilities

In building:

Swimming Pool
Garden

Market price statistics for LAS FUENTES DEL DUERO

239 375 € (1 352 €/m2)
Average price in complex
239 375 € (1 352 €/m2)
Average price of 4+ bedroom
329 982 € (1 802 €/m2)
Average price of primary Houses in city Laguna de Duero
212 328 € (2 442 €/m2)
Average price of primary Apartments in city Laguna de Duero

Map

Valladolid, Laguna de Duero, Calle Fuente Dorada, 32 Going to this location!
Leave a review about LAS FUENTES DEL DUERO
0
0 reviews
1
0% (0)
2
0% (0)
3
0% (0)
4
0% (0)
5
0% (0)
A&M Consultora Inmobiliaria
235 000 €
from 1 328 € / m2
Contact advertiser

For more information contact the platform

REF: 192220

Reviews about LAS FUENTES DEL DUERO
Loading...

No reviews have been left for this object yet

Nearest properties

Explore nearby properties we've discovered in close proximity to this location

Introducing a new residential development located in Aldeamayor de San Martin, the perfect blend of modern architecture and serene living.

Valladolid, Aldeamayor de San Martín
-

Real estate in Residencial Hacienda Seis Following the success of previous phase...

0
0 reviews
3 units

A new residential development, Phase II, is underway in the vibrant community of Laguna de Duero.

Valladolid, Laguna de Duero
299 880 € - 382 000 €

## Real estate in Berey Residencial Fase II Discover the exquisite townhouses lo...

0
0 reviews

New construction project in Laguna de Duero.

Valladolid, Laguna de Duero
-

Real Estate in Edificio Antae Discover modern and spacious homes featuring 2 and...

0
0 reviews
6 units

New residential development in Cistérniga.

Valladolid, Cistérniga
141 000 € - 155 000 €

Real Estate in Edificio Saornil The construction of this modern residential buil...

0
0 reviews
1 units

Discover the stunning new development in Valladolid.

Valladolid, Valladolid, Covaresa - Alameda Park, Calle Montiano y Luyando, 86
234 500 € - 234 500 €

Real estate in Bonavia Discover the exceptional living experience in , a thought...

0
0 reviews
19 units

Introducing a new residential development situated in the picturesque area of Pinar de Jalón, Valladolid.

Valladolid, Valladolid, Arcas Reales - Pinar del Jalón, Calle Aneto s/n
196 500 € - 355 000 €

Real estate in Residencial Inbisa Pinar de Jalón Discover the exclusive , a mode...

0
0 reviews
6 units

Obra nueva Edificio Calle Arca En Valladolid en Valladolid

Valladolid, Valladolid, Arcas Reales - Pinar del Jalón, Calle del Arca 6
1 800 € - 142 892 €

Promoción de viviendas de obra nueva, plazas de garaje y trasteros en venta en u...

0
0 reviews
4 units

New residential development in Valladolid.

Valladolid, Valladolid, Arcas Reales - Pinar del Jalón, Calle Viaje de aguas s/n
190 000 € - 310 000 €

Real estate in Residencial Narcea Discover the ideal family living space in this...

0
0 reviews
2 units

New residential development in Cistérniga.

Valladolid, Cistérniga
175 000 € - 175 000 €

Real Estate in La Cisterniga Discover the charm of living in a contemporary resi...

0
0 reviews
Call

We use our own and third-party cookies to analyze website usage and show you advertisements related to your preferences based on a profile created from your browsing habits (e.g., pages visited). More information. Do you accept cookies?