Obra nueva Sauc Haus en Benissa (Revista)

Alicante, Benissa, La Fustera, Calle Sauc, 19
desde 2 175 000 €
8 086 € / m2
Dejar reseña
269 m² - 269 m² Superficie
4 Cantidad de dormitorios
3 Baños
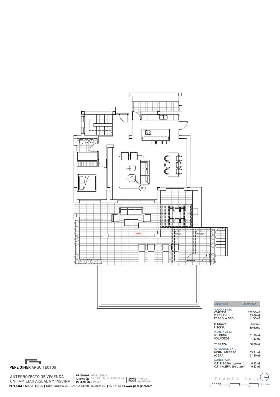
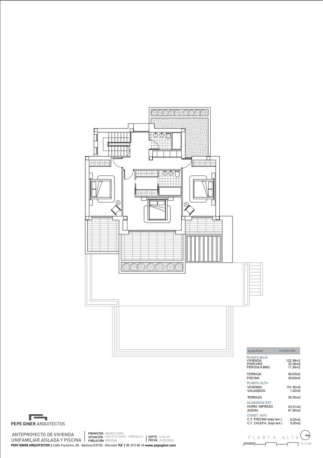
Villa con vistas al mar y encanto ibicenco en La Fustera Esta impresionante villa de nueva construcción combina la elegancia de la arquitectura contemporánea con la calidez y el carácter del diseño ibicenco. Ubicada en la cotizada zona de La Fustera (Benissa Costa), disfruta de vistas panorámicas al mar y se encuentra a pocos minutos de la playa, supermercados, restaurantes y otros servicios esenciales. Ubicada en una parcela de más de 1.000 m², la propiedad se distribuye en dos plantas y ofrece un total de 4 amplios dormitorios y 3 baños. La planta baja presenta una distribución diáfana con un amplio salón, comedor y cocina totalmente equipada con isla y barra americana. Unas puertas correderas de suelo a techo conectan el interior con una amplia terraza orientada al sur, creando una perfecta integración entre el interior y el exterior. Esta planta también incluye un dormitorio y un baño. En el exterior, la villa cuenta con varias zonas de relax y comedor, una zona de barbacoa cubierta con pérgola y una acogedora piscina rodeada de un exuberante jardín y tumbonas. En la planta superior hay tres dormitorios adicionales (incluida la suite principal con baño en suite y terraza privada), así como una segunda terraza con hermosas vistas. La casa está totalmente equipada para ofrecer confort durante todo el año e incluye calefacción por suelo radiante, aire acondicionado por conductos y acabados de alta calidad. Además, incluye una sala técnica para el sistema de calefacción y una sala independiente para el equipo de la piscina, ambas ubicadas en el sótano para maximizar el espacio y la funcionalidad. Superficie construida – Planta baja: 122,38 m² – Planta alta: 101,50 m² – Porches: 33,09 m² – Pérgola con barbacoa: 11,30 m² – Terrazas: 93,15 m² (56,65 m² + 36,50 m²) – Piscina: 39,60 m² – Pavimento exterior y aceras: 115,31 m² – Salas técnicas (sótano): 17,45 m² Una combinación perfecta de diseño, ubicación y confort: esta villa es ideal para quienes buscan disfrutar de la vida mediterránea con espectaculares vistas al mar.

Promociones destacadas en España

10 unidades

Nature Views 2

Alicante, Torrevieja, Los Balcones - Los Altos del Edén, Denia s/n
310 000 € - 379 000 €
1 unidades

Hotel en venta en Benidorm centro

Alicante, Benidorm, Playa de Poniente
2 250 000 € - 2 250 000 €
28 unidades

Residencial Los Balcones De Calpe

Alicante, Calpe, Calpe Pueblo, Avenida de Madrid, 1
299 000 € - 892 125 €
4 unidades

Nature Views

Alicante, Torrevieja, Lago Jardín II, Avenida Denia s/n
309 000 € - 330 000 €
5 unidades

ALONIS VILLAS

Alicante, La Villajoyosa / Vila Joiosa, Platja de Torres, Partida Torres s/n
675 000 € - 775 000 €
1 unidades

Residencial Royal Beach

Alicante, Guardamar del Segura, pueblo, Miguel Hernández 102
349 500 € - 349 500 €
7 unidades

Royal Star

Alicante, Guardamar del Segura
229 500 € - 269 500 €

Propiedades en este complejo

La información aportada de precios, especificaciones y detalles de esta promoción es susceptible de posibles variaciones y cambios según el fuente. Por lo que no dispone de un valor comercial en sí misma, sino que es meramente informativa y orientativa. Esta web no comercializa este proyecto o inmueble .

Nombre
Habitaciones
Baños
Superficie construida
Planta
Categoría
Precio
4 3 269 m² 2 175 000 € Visit
Esta información ha sido obtenida de fuentes públicas y puede no estar actualizada. No representa un vínculo con la promotora

Características de la propiedad

Complex information

  • Número de unidades
    1
  • Rango de precios
    2 175 000 € - 2 175 000 €
  • Cantidad de dormitorios
    4
  • Superficie
    269 m² - 269 m²

Datos de la propiedad

  • M2 medios
    269 m²
  • Tipo de la propiedad
    Obra nueva

Base

Certificación energética

  • CEE Emisión
    A

Estadísticas de precios del mercado para Sauc Haus

252 385 € (2 498 €/m2)
Precio promedio de propiedades primarias Pisos en la ciudad Benissa
1 799 900 € (4 532 €/m2)
Precio promedio de propiedades primarias Casas en el distrito La Fustera
314 200 € (3 298 €/m2)
Precio promedio de propiedades primarias Pisos en el distrito La Fustera

Mapa

Alicante, Benissa, La Fustera, Calle Sauc, 19 Ir a la propiedad
Deja una opinión sobre Sauc Haus
0
0 reseñas
1
0% (0)
2
0% (0)
3
0% (0)
4
0% (0)
5
0% (0)
Orange Villas
2 175 000 €
desde 8 086 € / m2
Contactar con la plataforma

para obtener más información contacta con el catálogo

REF: 440286

Opiniones sobre Sauc Haus
Loading...

No reviews have been left for this object yet

Propiedades más cercanas

Explora propiedades cercanas que hemos descubierto en las proximidades de esta ubicación.

1 unidades

Obra nueva Residencial El Paraíso en Calpe

Alicante, Calpe, Cometa-Carrió, Calle Enchinent s/n
755 000 € - 755 000 €

Este exclusivo desarrollo de obra nueva presenta una colección de 17 chalets ado...

0
0 opiniones

Obra nueva Jade en Calpe

Alicante, Calpe, Playa Arenal-Bol, Avenida de los Ejércitos Españoles s/n
-

Bienvenido a un auténtico oasis de tranquilidad. Aquí, tus sueños de un hogar ju...

0
0 opiniones
6 unidades

Obra nueva Seaway Tower en Calpe

Alicante, Calpe, Playa Arenal-Bol, Calle Alemania , 27
524 000 € - 1 390 000 €

Inmuebles en Seaway Tower Descubre un moderno complejo de apartamentos de lujo e...

0
0 opiniones
6 unidades

Obra nueva Moraira Natura en Moraira

Alicante, Moraira, Pinar de Advocat-Cometa, Camino dels Tossals, 48
1 690 000 € - 1 750 000 €

es un nuevo y lujoso complejo residencial de la Costa Blanca, ubicado en una de...

0
0 opiniones

Obra nueva Villa Carpi en Benissa

Alicante, Benissa, Cala Advocat - Baladrar, Calle Carpi , 6
-

Villa de nueva construcción de diseño moderno, ubicada en la cala Baladrar de Be...

0
0 opiniones
2 unidades

Obra nueva Alexia Calpe en Calpe

Alicante, Calpe, Playa Arenal-Bol, Calle Eslovaquia, 3
559 250 € - 559 250 €

Inmuebles en Alexia Calpe En la encantadora localidad de Calpe, se alza un innov...

0
0 opiniones

Obra nueva Sunrise Tower en Calpe

Alicante, Calpe, Playa Arenal-Bol, Avenida Avenida de Rumania, 24
-

ENTREGA INMEDIATA. ÚLTIMAS DOS VIVIENDAS DISPONIBLES. Promoción de obra nueva de...

0
0 opiniones
4 unidades

Obra nueva Silver Tower en Calpe

Alicante, Calpe, Playa Arenal-Bol, Calle Letonia s/n
398 500 € - 467 800 €

Espectacular edificio de diseño moderno y vanguardista pensado para ofrecer a su...

0
0 opiniones
2 unidades

Obra nueva Evolution en Calpe

Alicante, Calpe, Playa Arenal-Bol, Calle Portugal, 9
1 600 000 € - 1 745 000 €

En el corazón de Alicante, en Calpe, se encuentran estos inmuebles de alta gama...

0
0 opiniones
Llamada

Utilizamos cookies propias y de terceros para analizar el uso del sitio web y mostrarte publicidad relacionada con tus preferencias sobre la base de un perfil elaborado a partir de tus hábitos de navegación (por ejemplo, páginas visitadas). Más información. ¿Aceptas las cookies?