Venta de duplex en Calle De Creta, Gran Alacant

Alicante, Gran Alacant, Monte y Mar, Calle De Creta
Agotado
Dejar reseña
Duplexes Tipo de propiedad
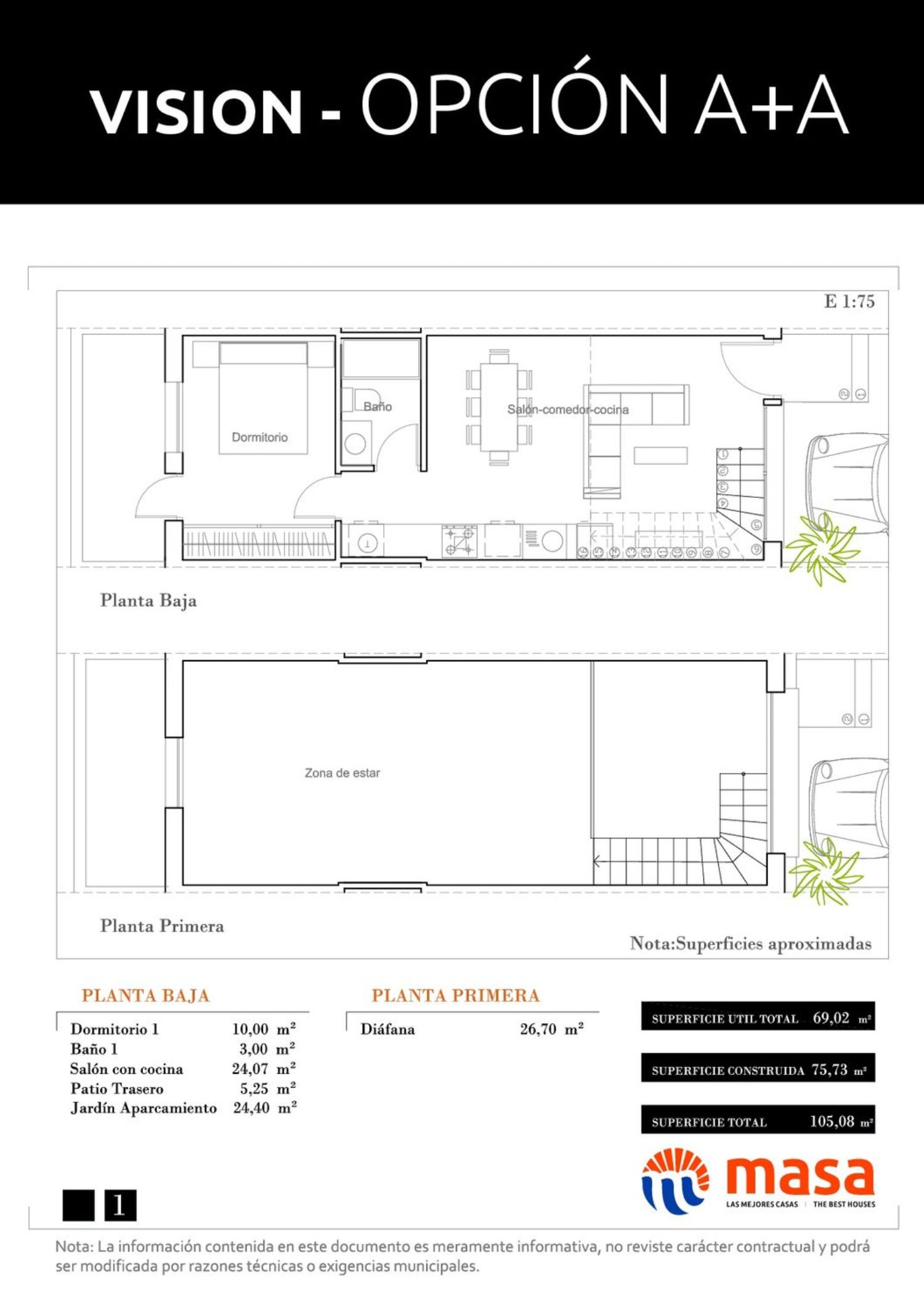
75 m² m2 construidos
1 Baños
2 Dormitorios
VISION es un nuevo concepto de vivienda basado en la practicidad y la flexibilidad. Se trata de un diseño lineal y moderno tanto en su exterior como en su interior, que se caracteriza por su gran cristal frontal que aporta a la vivienda luz natural prácticamente durante todo el día.Las viviendas están distribuidas en dos alturas, tipo dúplex, con una escalera de peldaños de madera en acabados lineales y sencillos. Un espacio de 68 m2 útiles, que puede configurar en diferentes distribuciones. 1, 2 o hasta 3 dormitorios, cocina independiente o americana, 1 ó 2 baños o la opción de elegir amplias zonas abiertas y diáfanas en lugar de dormitorios.En el exterior, cuenta con un jardín aparcamiento de 25 m2 y un patio trasero. Calidades: Suelo de gres cerámica de primera calidad modelo Saloni. Puerta principal acorazada de alta seguridad con 5 puntos de anclaje. Ventanas blancas correderas con rotura de puente térmico y persianas climalit en toda la vivienda excepto baños. Muebles de cocina DM post formado y encimera en cuarzo compacto incluidos.Preinstalación de aire acondicionado por conductos en toda la vivienda. Calentador aerotérmo incluido (sistema de energía renovable) Plaza de aparcamiento en superficie.Venta directa promotor.

Características de la propiedad

Complex information

  • Complejo residencial
    Monte y Mar
  • Tipo de propiedad
    Duplexes

Datos de la propiedad

  • Dormitorios
    2
  • Baños
    1
  • m2 construidos
    75 m²
  • Tipo de la propiedad
    Obra nueva

Instalaciones

En edificio:

Spa
Zonas verdes
Solárium
Jardin

Estado:

Obra nueva

Estadísticas de precios del mercado para Dúplex en venta en calle De Creta

Mapa

Alicante, Gran Alacant, Monte y Mar, Calle De Creta Ir a la propiedad
Deja una opinión sobre Dúplex en venta en calle De Creta
0
0 reseñas
1
0% (0)
2
0% (0)
3
0% (0)
4
0% (0)
5
0% (0)
Monte y Mar
Complejo residencial
Agotado
Contactar con la plataforma

para obtener más información contacta con el catálogo

REF: 11628

Opiniones sobre Dúplex en venta en calle De Creta
Loading...

No reviews have been left for this object yet

Propiedades más cercanas

Explora propiedades cercanas que hemos descubierto en las proximidades de esta ubicación.

Duplexes en Venta en Calle De Creta, Gran Alacant

Alicante, Gran Alacant, Monte y Mar, Calle De Creta
193 000 €

VISION es un nuevo concepto de vivienda basado en la practicidad y la flexibilid...

0
0 opiniones

Duplexes en Venta en Calle De Creta, Gran Alacant

Alicante, Gran Alacant, Monte y Mar, Calle De Creta
181 000 €

VISION es un nuevo concepto de vivienda basado en la practicidad y la flexibilid...

0
0 opiniones

Duplexes en Venta en Calle De Creta, Gran Alacant

Alicante, Gran Alacant, Monte y Mar, Calle De Creta
221 500 €

¿Qué es Zielo?Se trata de una vivienda que fusiona el diseño lineal y moderno qu...

0
0 opiniones

Duplexes en Venta en Calle De Creta, Gran Alacant

Alicante, Gran Alacant, Monte y Mar, Calle De Creta
193 000 €

VISION es un nuevo concepto de vivienda basado en la practicidad y la flexibilid...

0
0 opiniones

Duplexes en Venta en Calle De Creta, Gran Alacant

Alicante, Gran Alacant, Monte y Mar, Calle De Creta
164 500 €

VISION es un nuevo concepto de vivienda basado en la practicidad y la flexibilid...

0
0 opiniones

Duplexes en Venta en Calle De Creta, Gran Alacant

Alicante, Gran Alacant, Monte y Mar, Calle De Creta
192 000 €

VISION es un nuevo concepto de vivienda basado en la practicidad y la flexibilid...

0
0 opiniones

Duplexes en Venta en Calle De Creta, Gran Alacant

Alicante, Gran Alacant, Monte y Mar, Calle De Creta
174 500 €

VISION es un nuevo concepto de vivienda basado en la practicidad y la flexibilid...

0
0 opiniones

Duplexes en Venta en Calle De Creta, Gran Alacant

Alicante, Gran Alacant, Monte y Mar, Calle De Creta
197 000 €

VISION es un nuevo concepto de vivienda basado en la practicidad y la flexibilid...

0
0 opiniones

Dúplex en Centro

Alicante, Santa Pola, Centro, Centro
248 000 €

¡Descubre el dúplex de tus sueños en el corazón de esta vibrante localidad coste...

0
0 opiniones

Utilizamos cookies propias y de terceros para analizar el uso del sitio web y mostrarte publicidad relacionada con tus preferencias sobre la base de un perfil elaborado a partir de tus hábitos de navegación (por ejemplo, páginas visitadas). Más información. ¿Aceptas las cookies?