Venta de ático en Mayor 29, Torrevieja

Alicante, Torrevieja, La Mata, Mayor 29
Agotado
Dejar reseña
Áticos Tipo de propiedad
2025 Año de entrega
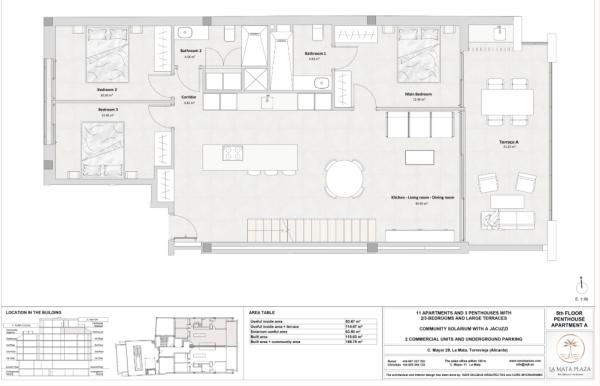
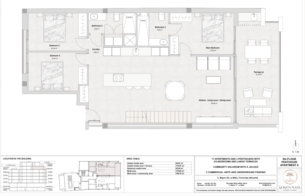
198 m² m2 construidos
2 Baños
3 Dormitorios
Marzo Fecha de entrega
Terminada Estado Promoción
6 Total plantas
5A Nombre
5 Planta
Exterior Distribución ventanas

En la localidad de La Mata, se presenta una exclusiva propuesta inmobiliaria con un total de 14 apartamentos, todos ellos equipados con amplias terrazas para disfrutar del entorno. En la planta baja, hay dos locales comerciales y la posibilidad de adquirir una de las 11 plazas de aparcamiento subterráneo disponibles, proporcionando un extra de comodidad a los residentes.

Destaca la impresionante terraza comunitaria en la azotea, equipada con jacuzzi, que ofrece asombrosas vistas al oeste sobre el impresionante lago salado natural. Diez de estos apartamentos ofrecen vistas directas a la encantadora plaza del pueblo, así como al mar y la playa, creando un ambiente exclusivo y relajante. Con tres habitaciones y dos baños, estos apartamentos son ideales para familias o quienes buscan un espacio generoso.

Los áticos se destacan por su acceso exclusivo a una azotea privada de 80 m², proporcionando vistas panorámicas sin igual. Asimismo, los cuatro apartamentos adicionales cuentan con vistas al tranquilo lago salado, disponiendo de dos habitaciones y con la opción de incluir uno o dos baños, ajustándose a diversas necesidades. Actualmente en construcción, se espera que el proyecto se complete para abril de 2025, brindando viviendas modernas y de alta calidad en Torrevieja.

Características de la propiedad

Complex information

  • Complejo residencial
    La Mata Plaza
  • Tipo de propiedad
    Áticos

Información del proyecto / Estado de obra

  • Año de entrega
    2025
  • Fecha de entrega
    Marzo
  • Estado Promoción
    Terminada

Datos de la propiedad

  • Tipo de cocina
    Cocina americana
  • Nombre
    5A
  • Planta
    5
  • Dormitorios
    3
  • Baños
    2
  • m2 construidos
    198 m²
  • Tipo de la propiedad
    Obra nueva

Superficies

  • Superficie de terraza
    104 m²

Base

  • Total inmuebles
    14
  • Total plantas
    6
  • Distribución ventanas
    Exterior
  • Cantidad de plaza de parking
    11

Certificación energética

  • Consumo energético
    A

Instalaciones

Comodidades de la vivienda:

Aire acondicionado
Armarios empotrados
Terraza

En edificio:

Piscina
Ascensor
Zonas verdes
Solárium

Tipo de cocina:

Cocina con Isla

Tipo de parking:

Amplio aparcamiento

Planos

Estadísticas de precios del mercado para Ático en venta en calle Mayor, 35

391 796 € (3 193 €/m2)
Precio promedio de propiedades primarias Áticos en la ciudad Torrevieja
214 692 € (2 627 €/m2)
Precio promedio de propiedades secundarias Áticos en la ciudad Torrevieja
643 333 € (4 023 €/m2)
Precio promedio de propiedades primarias Áticos en el distrito La Mata
204 474 € (2 879 €/m2)
Precio promedio de propiedades secundarias Áticos en el distrito La Mata

Mapa

Alicante, Torrevieja, La Mata, Mayor 29 Ir a la propiedad
Deja una opinión sobre Ático en venta en calle Mayor, 35
0
0 reseñas
1
0% (0)
2
0% (0)
3
0% (0)
4
0% (0)
5
0% (0)
Smart Quality Homes
La Mata Plaza
Complejo residencial
Agotado
Contactar con la plataforma

para obtener más información contacta con el catálogo

REF: 90005

Opiniones sobre Ático en venta en calle Mayor, 35
Loading...

No reviews have been left for this object yet

Propiedades más cercanas

Explora propiedades cercanas que hemos descubierto en las proximidades de esta ubicación.

Áticos en Venta en Calle Miguel Hernandez, 102, Guardamar del Segura

Alicante, Guardamar del Segura, Zona Pueblo, Calle Miguel Hernandez, 102
299 900 €

Nuevo Residencial Royal Beach, ubicado en pleno centro de Guardamar del Segura (...

0
0 opiniones

Áticos en Venta en Calle Miguel Hernandez, 102, Guardamar del Segura

Alicante, Guardamar del Segura, Zona Pueblo, Calle Miguel Hernandez, 102
296 500 €

Nuevo Residencial Royal Beach, ubicado en pleno centro de Guardamar del Segura (...

0
0 opiniones

Ático en calle Villa Madrid, 43

Alicante, Torrevieja, Centro, Calle Villa Madrid, 43
175 000 €

¡Descubre tu nuevo hogar en este espectacular ático ubicado en el corazón de Tor...

0
0 opiniones

Ático en calle Maria Parodi

Alicante, Torrevieja, Centro, Calle Maria Parodi
290 000 €

Descubre este exclusivo penthouse en Torrevieja, una propiedad única con vistas...

0
0 opiniones

Ático en avenida Diego Ramírez Pastor

Alicante, Torrevieja, Centro, Avenida Diego Ramírez Pastor
139 900 €

Ático en Torrevieja zona torrevieja, 62 m. de superficie, 15 m2 de terraza, 750...

0
0 opiniones

Áticos en Venta en Ramón Gallud 211, Torrevieja

Alicante, Torrevieja, Playa El Cura, Ramón Gallud 211
329 000 €

0
0 opiniones

Áticos en Venta en La Loma 55, Torrevieja

Alicante, Torrevieja, centro, La Loma 55
270 000 €

0
0 opiniones

Áticos en Venta en Mar Báltico esq Islandia , Los Alcázares

Murcia, Los Alcázares, Los Locos, Mar Báltico esq Islandia
449 950 €

0
0 opiniones

Áticos en Venta en Mar Báltico esq Islandia , Los Alcázares

Murcia, Los Alcázares, Los Locos, Mar Báltico esq Islandia
425 950 €

0
0 opiniones
Llamada

Utilizamos cookies propias y de terceros para analizar el uso del sitio web y mostrarte publicidad relacionada con tus preferencias sobre la base de un perfil elaborado a partir de tus hábitos de navegación (por ejemplo, páginas visitadas). Más información. ¿Aceptas las cookies?