Obra nueva Chalet pareado en Torrevieja (Revista)

Alicante, Torrevieja, La Siesta - El Salado - Torreta, Barrio La Siesta - El Salado - Torreta
189 000 €
2 011 € / m2
Dejar reseña
4 Dormitorios
94 m² m2 construidos
2 Baños
Buen estado Estado inmueble
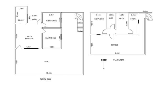
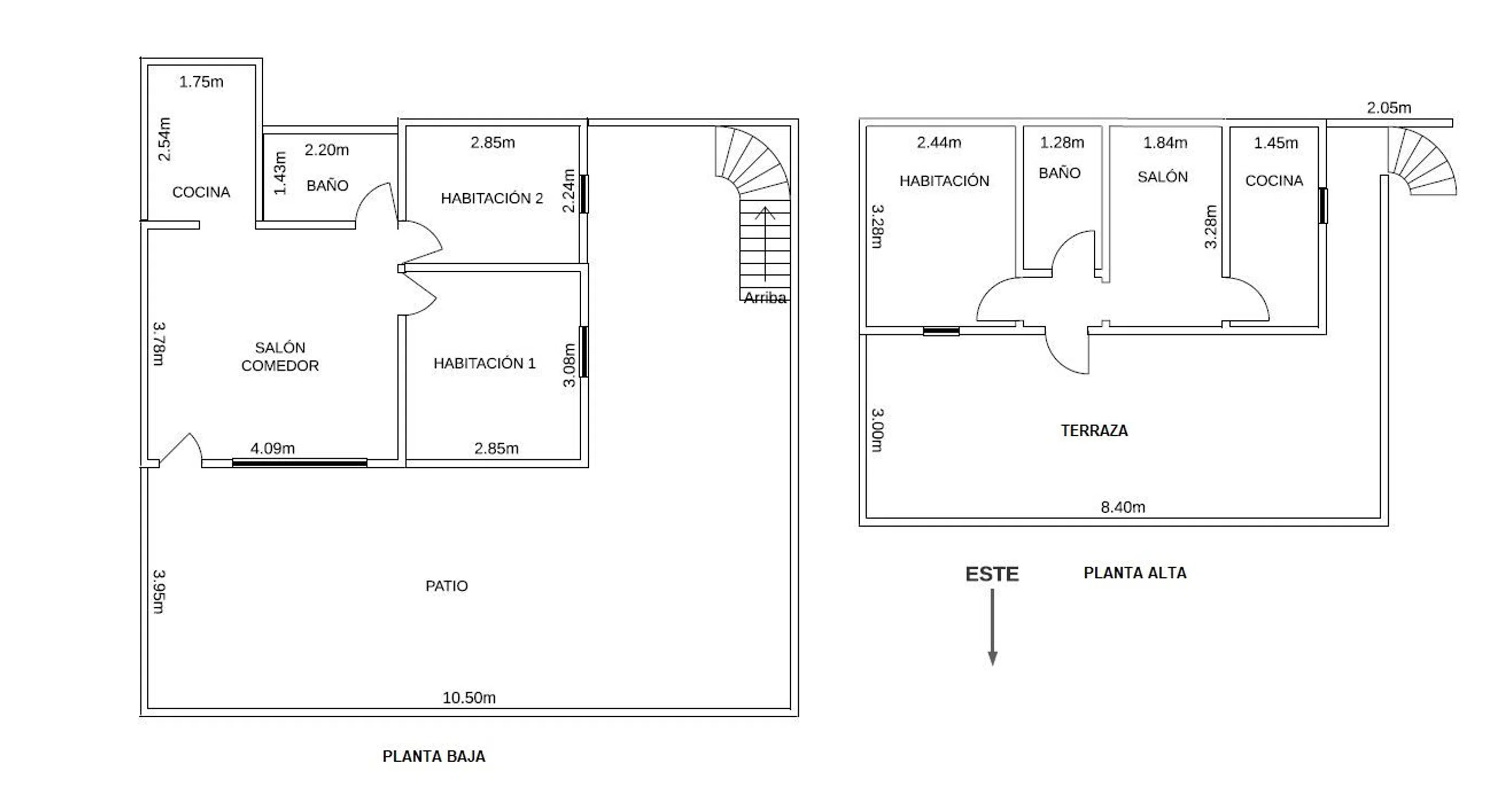
REFERENCIA: 68AF2 Adosado en Venta en Urbanización Residencial Aquapark 1 Torrevieja, Alicante Descubra su nuevo hogar en Torrevieja, Alicante, con este encantador y único adosado de 2 plantas disponible por 189.000 €. Ubicado en la tranquila urbanización privada Residencial Aquapark 1, esta propiedad ofrece una excelente combinación de comodidad, estilo y conveniencia. Con 4 habitaciones, 2 baños, 2 cocinas, esta residencia se presenta como una oportunidad ideal para familias o para aquellos que buscan un espacio adicional. Vivienda de doble altura con dos espacios separados, cada espacio de entre 40 y 45 m2 con dormitorios, cocina y cuarto de baño. Ideal para recibir familiares, invitados o inclusive arrendar En el nivel principal encontramos una agradable terraza con un muro de una adecuada altura para garantizar privacidad y un trastero de buenas dimensiones. Accedemos a la vivienda principal donde ubicamos un salón, una pequeña cocina abierta, 2 dormitorios y un cuarto de baño completo. Nos dirigimos a la planta superior por las escaleras de obra donde se halla una amplia terraza, una pequeña zona de almacenamiento con un fregadero exterior. El espacio interior cuenta con un dormitorio matrimonial, una pequeña sala de estar, un cuarto de baño completo y una cocina completa. Con 94 m2 construidos y más de 80 m2 habitables en total, esta casa adosada de 2 plantas aprovecha al máximo cada rincón para ofrecer un ambiente acogedor y funcional. La propiedad cuenta con una amplia gama de amenidades que aumentan su atractivo, como una piscina comunitaria, perfecta para disfrutar durante los calurosos meses de verano. Además, incluye dos terrazas que proporcionan espacio exterior privado para relajarse o entretener a invitados. Este adosado viene amueblado e incluye electrodomésticos, lo que significa que puede mudarse sin preocuparse por nada más que traer sus pertenencias personales. La propiedad también está equipada con alarma, puerta blindada y armarios empotrados, garantizando seguridad y almacenamiento adecuado para sus necesidades cotidianas. La ubicación es otro de sus puntos fuertes. Situado a tan solo 2.6 kilómetros de la playa, ofrece fácil acceso a las arenas doradas y las aguas azules del Mediterráneo. Además, está estratégicamente situado cerca de servicios esenciales como supermercados, escuelas, farmacias, y un centro comercial. La proximidad a una parada de autobús facilita la movilidad, mientras que el aeropuerto está a solo 40 kilómetros, lo que facilita los desplazamientos internacionales. Con su eficiencia energética E y un consumo de energía de 180, esta vivienda ofrece una solución eficiente y económica para aquellos preocupados por el medio ambiente y el ahorro energético. Construido en 1992, el adosado se encuentra en un estado bueno y ofrece una calidad normal, asegurando así una estructura sólida y bien mantenida. No pierda la oportunidad de adquirir esta propiedad exclusiva en Torrevieja. Con sus características impresionantes y su ubicación privilegiada, es el hogar perfecto para disfrutar del estilo de vida mediterráneo. Contáctenos hoy mismo para más información o para programar una visita.

Promociones destacadas en España

10 unidades

Nature Views 2

Alicante, Torrevieja, Los Balcones - Los Altos del Edén, Denia s/n
310 000 € - 379 000 €
1 unidades

Hotel en venta en Benidorm centro

Alicante, Benidorm, Playa de Poniente
2 250 000 € - 2 250 000 €
28 unidades

Residencial Los Balcones De Calpe

Alicante, Calpe, Calpe Pueblo, Avenida de Madrid, 1
299 000 € - 892 125 €
7 unidades

Nature Views

Alicante, Torrevieja, Lago Jardín II, Avenida Denia s/n
305 000 € - 330 000 €
5 unidades

ALONIS VILLAS

Alicante, La Villajoyosa / Vila Joiosa, Platja de Torres, Partida Torres s/n
675 000 € - 775 000 €
1 unidades

Residencial Royal Beach

Alicante, Guardamar del Segura, pueblo, Miguel Hernández 102
349 500 € - 349 500 €
7 unidades

Royal Star

Alicante, Guardamar del Segura
229 500 € - 269 500 €

Características de la propiedad

Complex information

Información del proyecto / Estado de obra

  • Estado inmueble
    Buen estado

Memoria de Calidades

  • Carpenteria interior
    Puerta Blindada

Datos de la propiedad

  • Dormitorios
    4
  • Baños
    2
  • m2 construidos
    94 m²
  • Tipo de la propiedad
    Segunda mano

Instalaciones

Comodidades de la vivienda:

Aire acondicionado
Trastero
Terraza

En edificio:

Piscina
Jardin

Estado:

Buen estado

Planos

Estadísticas de precios del mercado para Chalet pareado

501 836 € (3 373 €/m2)
Precio promedio de propiedades primarias en la ciudad Torrevieja
357 975 € (2 553 €/m2)
Precio promedio de propiedades secundarias en la ciudad Torrevieja

Mapa

Alicante, Torrevieja, La Siesta - El Salado - Torreta, Barrio La Siesta - El Salado - Torreta Ir a la propiedad
Deja una opinión sobre Chalet pareado
0
0 reseñas
1
0% (0)
2
0% (0)
3
0% (0)
4
0% (0)
5
0% (0)
Adaix Torrevieja
189 000 €
desde 2 011 € / m2
Contactar con la plataforma

para obtener más información contacta con el catálogo

REF: 343838

Opiniones sobre Chalet pareado
Loading...

No reviews have been left for this object yet

Propiedades más cercanas

Explora propiedades cercanas que hemos descubierto en las proximidades de esta ubicación.

Chalet en Barrio El Molino

Alicante, Torrevieja, Centro, Barrio El Molino
165 000 €

Esta encantadora casa adosada se encuentra en la playa de Naufragos en Torreviej...

0
0 opiniones

Chalet en Barrio El Molino

Alicante, Torrevieja, Centro, Barrio El Molino
168 000 €

Esta encantadora casa adosada en Torrevieja es una fantástica oportunidad de rev...

0
0 opiniones

Chalet independiente en Venta en Calle Popa , 28, Torrevieja

Alicante, Torrevieja, Playa de los Locos, Calle Popa , 28
590 000 €

Se vende villa con vistas al mar (obra nueva) en segunda línea de mar y muy cerc...

0
0 opiniones

Chalet independiente en Venta en Avenida Alemania, 51, Torrevieja

Alicante, Torrevieja, La Mata, Avenida Alemania, 51
990 000 €

Se vende una casa moderna (obra nueva) a 1 minuto de la playa de “La Mata” con v...

0
0 opiniones

Chalet independiente en Venta en Avenida Alemania, 51, Torrevieja

Alicante, Torrevieja, La Mata, Avenida Alemania, 51
940 000 €

Se vende una casa moderna (obra nueva) a 1 minuto de la playa de “La Mata” con v...

0
0 opiniones

Chalet independiente en Venta en Avenida de Alemania, 43, Torrevieja

Alicante, Torrevieja, La Mata, Avenida de Alemania, 43
820 000 €

Últimas 2 unidades – Entrega: octubre 2023¡Descubre Villa Playa: Exclusivas vill...

0
0 opiniones

Chalet independiente en Venta en Avenida de Alemania, 43, Torrevieja

Alicante, Torrevieja, La Mata, Avenida de Alemania, 43
865 000 €

Últimas 2 unidades – Entrega: octubre 2023¡Descubre Villa Playa: Exclusivas vill...

0
0 opiniones

Chalet independiente en Venta en Calle Egipcios, esquina C/ Abdelacies s/n, Orihuela

Alicante, Orihuela, Orihuela Costa, Calle Egipcios, esquina C/ Abdelacies s/n
575 000 €

Este residencial se sitúa en Punta Prima, una de las áreas costeras más famosas...

0
0 opiniones

Chalet independiente en Venta en Calle Egipcios, esquina C/ Abdelacies s/n, Orihuela

Alicante, Orihuela, Orihuela Costa, Calle Egipcios, esquina C/ Abdelacies s/n
610 000 €

Este residencial se sitúa en Punta Prima, una de las áreas costeras más famosas...

0
0 opiniones
Llamada

Utilizamos cookies propias y de terceros para analizar el uso del sitio web y mostrarte publicidad relacionada con tus preferencias sobre la base de un perfil elaborado a partir de tus hábitos de navegación (por ejemplo, páginas visitadas). Más información. ¿Aceptas las cookies?