España Obra nueva España Obra nueva Alicante Obra nueva Torrevieja Villa Playa Casa o chalet independiente en venta en avenida de Alemania, 43

Venta de chalet independiente en Avenida de Alemania, 43, Torrevieja

Alicante, Torrevieja, La Mata, Avenida de Alemania, 43
Agotado
Dejar reseña
Chalet independiente Tipo de propiedad
4 Dormitorios
2023 Año de entrega
152 m² m2 construidos
3 Baños
Suelo Radiante Calefacción
3 Planta
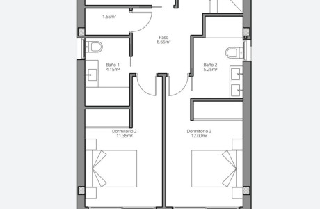
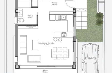
Últimas 2 unidades – Entrega: octubre 2023¡Descubre Villa Playa: Exclusivas villas con vistas al mar!Sumérgete en el lujo y el encanto de Villa Playa, un proyecto excepcional que te invita a vivir rodeado de belleza y comodidad en el pintoresco pueblo de La Mata, justo a las afueras de Torrevieja. Imagina despertar cada mañana con vistas al mar desde tu villa de diseño moderno y elegante.Estas 3 espaciosas villas, construidas con materiales de alta calidad y técnicas modernas, te brindarán una experiencia de vida incomparable. Son las primeras viviendas que han sido construidas con un sistema de pared altamente aislado desarrollado en Noruega, asegurando aislamiento térmico durante todo el año.Desde tu terraza privada, podrás contemplar las impresionantes vistas del Mediterráneo, mientras te llenas de energía con los rayos del sol gracias a su orientación sur. Las villas son un oasis de tranquilidad y privacidad, a solo 70 metros de una de las playas más hermosas de la Costa Blanca.Cada villa cuenta con cuatro dormitorios espaciosos, todos con armarios empotrados, y tres baños. Disfruta de tu propia área exterior con piscina privada, donde podrás relajarte y disfrutar del cálido clima mediterráneo. Además, contarás con plaza de parking dentro de la parcela.El interior de las villas están diseñadas pensando hasta el último detalle. En la primera planta, encontrarás el dormitorio principal con baño privado y una sala de estar con cocina abierta. Desde la sala de estar, accederás directamente a una terraza orientada al sur con una vistas al mar. Los amplios ventanales y las puertas correderas llenan los espacios de luz natural y crean una sensación de amplitud.En el semisótano, encontrarás tres dormitorios, dos baños y trastero. Dos de los dormitorios en la planta baja tienen acceso directo al área exterior y a la piscina a través de grandes puertas correderas, brindándote la experiencia de vivir en armonía con el entorno.Para terminar, un espacioso solárium desde donde podrás disfrutar de momentos inolvidables contemplando el Mediterráneo y los alrededores.Características principales:- Orientación sur- 4 dormitorios 3 baños- Vistas al mar desde terraza y solárium- 70 mts de la playa- Electrodomésticos Bosch- Aire acondicionado centralizado- Suelo radiante en bañosInformación de la zona:Al salir de la vivienda encontrarás el encantador paseo marítimo, supermercados y una variedad de restaurantes, bares y cafeterías. A solo 600 metros del centro de La Mata, tendrás todas las comodidades a tu alcance, desde tiendas y bancos hasta farmacias y consultorios médicos.La Mata es un pueblo de aproximadamente 1500 habitantes en las afueras de Torrevieja, a 40 km al sur del aeropuerto de Alicante, a lo largo del mar Mediterráneo. La playa de La Mata, que se extiende a lo largo de 2.5 km, es una de las más populares de la zona. Ha sido galardonada con la Bandera Azul Europea durante varios años consecutivos, el reconocimiento más alto en términos de calidad. Gracias a los planes de regulación local y a su ubicación rodeada de tres grandes áreas naturales, La Mata conservará su estatus como una joya a lo largo del Mediterráneo, preservando en gran medida su carácter español.Además, los tres parques naturales ofrecen oportunidades únicas para hacer senderismo y disfrutar de la naturaleza. El proyecto Villa Playa es gestionado por Smart Quality Homes, una empresa española/noruega con oficinas en La Mata. Smart Quality Homes se dedica a la gestión y promoción de proyectos exclusivos de viviendas en la Costa Blanca Sur.¡Contáctanos para obtener más información y reservar tu visita!

Características de la propiedad

Complex information

  • Complejo residencial
    Villa Playa
  • Tipo de propiedad
    Chalet independiente

Información del proyecto / Estado de obra

  • Año de entrega
    2023

Memoria de Calidades

  • Calefacción
    Suelo Radiante

Datos de la propiedad

  • Tipo de cocina
    Cocina americana
  • Planta
    3
  • Dormitorios
    4
  • Baños
    3
  • m2 construidos
    152 m²
  • Tipo de diseño
    Moderno
  • Tipo de la propiedad
    Obra nueva

Instalaciones

Comodidades de la vivienda:

Aire acondicionado
Piscina privada
Armarios empotrados
Trastero
Ventanas interiores
Ventana exterior
Terraza

En edificio:

Piscina
Bar
Spa
Trastero
Piscina privada

Vistas:

Vistas al mar

Estadísticas de precios del mercado para Casa o chalet independiente en venta en avenida de Alemania, 43

Mapa

Alicante, Torrevieja, La Mata, Avenida de Alemania, 43 Ir a la propiedad
Deja una opinión sobre Casa o chalet independiente en venta en avenida de Alemania, 43
0
0 reseñas
1
0% (0)
2
0% (0)
3
0% (0)
4
0% (0)
5
0% (0)
Smart Quality Homes
Villa Playa
Complejo residencial
Agotado
Contactar con la plataforma

para obtener más información contacta con el catálogo

REF: 17071

Opiniones sobre Casa o chalet independiente en venta en avenida de Alemania, 43
Loading...

No reviews have been left for this object yet

Propiedades más cercanas

Explora propiedades cercanas que hemos descubierto en las proximidades de esta ubicación.

Chalet en Barrio El Molino

Alicante, Torrevieja, Centro, Barrio El Molino
165 000 €

Esta encantadora casa adosada se encuentra en la playa de Naufragos en Torreviej...

0
0 opiniones

Chalet en Barrio El Molino

Alicante, Torrevieja, Centro, Barrio El Molino
168 000 €

Esta encantadora casa adosada en Torrevieja es una fantástica oportunidad de rev...

0
0 opiniones

Chalet independiente en Venta en Calle Popa , 28, Torrevieja

Alicante, Torrevieja, Playa de los Locos, Calle Popa , 28
590 000 €

Se vende villa con vistas al mar (obra nueva) en segunda línea de mar y muy cerc...

0
0 opiniones

Chalet independiente en Venta en Avenida Alemania, 51, Torrevieja

Alicante, Torrevieja, La Mata, Avenida Alemania, 51
990 000 €

Se vende una casa moderna (obra nueva) a 1 minuto de la playa de “La Mata” con v...

0
0 opiniones

Chalet independiente en Venta en Avenida Alemania, 51, Torrevieja

Alicante, Torrevieja, La Mata, Avenida Alemania, 51
940 000 €

Se vende una casa moderna (obra nueva) a 1 minuto de la playa de “La Mata” con v...

0
0 opiniones

Chalet independiente en Venta en Avenida de Alemania, 43, Torrevieja

Alicante, Torrevieja, La Mata, Avenida de Alemania, 43
820 000 €

Últimas 2 unidades – Entrega: octubre 2023¡Descubre Villa Playa: Exclusivas vill...

0
0 opiniones

Chalet independiente en Venta en Avenida de Alemania, 43, Torrevieja

Alicante, Torrevieja, La Mata, Avenida de Alemania, 43
865 000 €

Últimas 2 unidades – Entrega: octubre 2023¡Descubre Villa Playa: Exclusivas vill...

0
0 opiniones

Chalet en Barrio El Molino

Alicante, Torrevieja, Centro, Barrio El Molino
424 900 €

Moderna villa independiente en una zona muy solicitada de Los Balcones, cerca de...

0
0 opiniones

Chalet en Barrio El Molino

Alicante, Torrevieja, Centro, Barrio El Molino
235 000 €

¡Mira esta hermosa casa que acabamos de recibir! Está orientada al sur y está ub...

0
0 opiniones
Llamada

Utilizamos cookies propias y de terceros para analizar el uso del sitio web y mostrarte publicidad relacionada con tus preferencias sobre la base de un perfil elaborado a partir de tus hábitos de navegación (por ejemplo, páginas visitadas). Más información. ¿Aceptas las cookies?