Obra nueva Aromas del Mar en Torrevieja

780 000 €
3 277 € / m2
Dejar reseña
Villas Tipo de propiedad
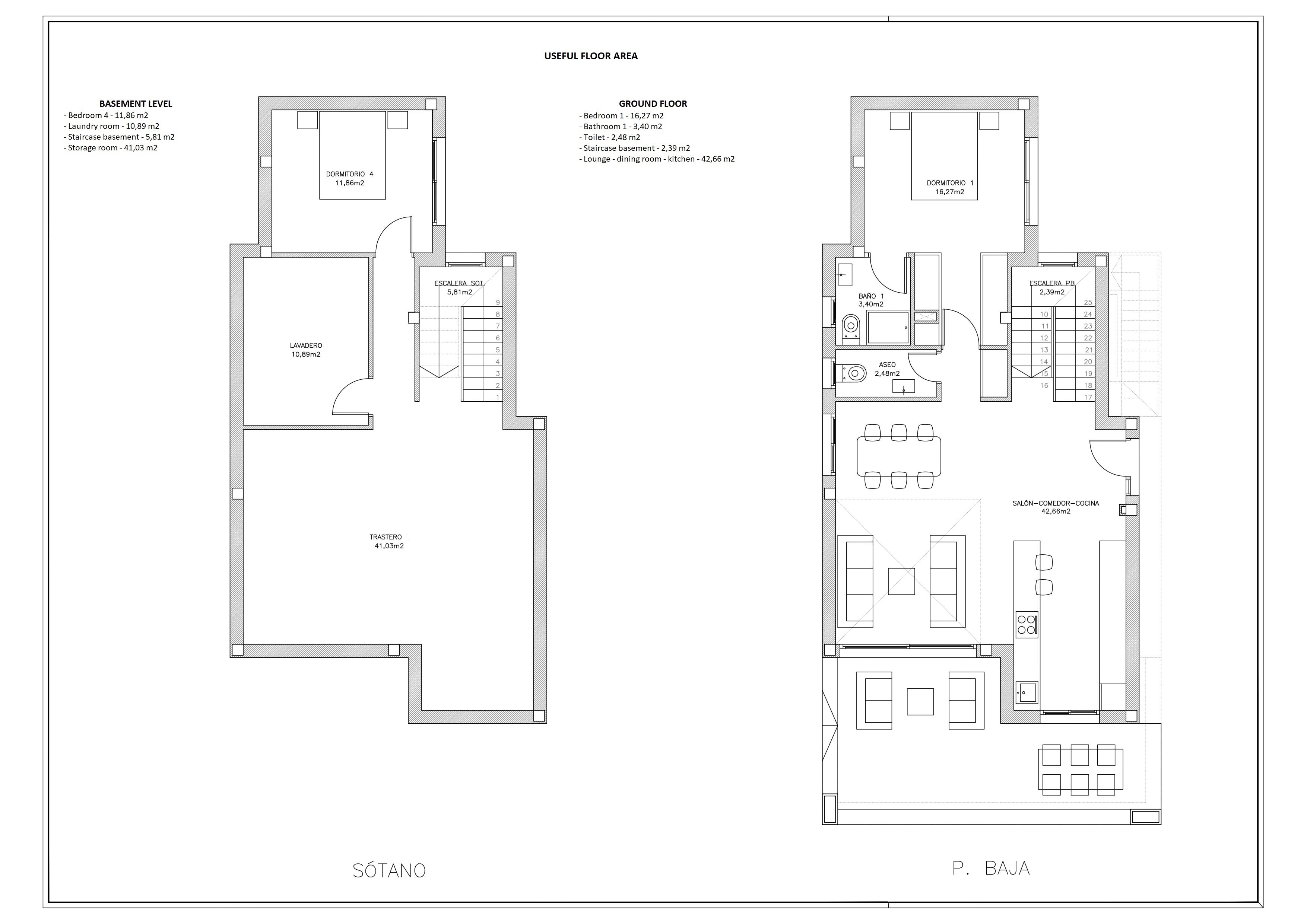
238 m² m2 construidos
2 Baños
4 Dormitorios
Incluido en el precio Garaje
CASA B Nombre
1200 Distancia al mar

Descubre impresionantes opciones residenciales en la encantadora área de Torrevieja. Estas lujosas propiedades ofrecen cuatro amplios dormitorios y cuatro baños completos, perfectamente diseñados para satisfacer las necesidades de cualquier familia. La moderna cocina americana se fusiona con el espacio de estar, creando un ambiente espacioso y acogedor.

Estas viviendas están equipadas con armarios empotrados y ofrecen un jardín privado con piscina para disfrutar al aire libre. Además, se complementan con una plaza de aparcamiento privada y un solárium ideal para aprovechar el agradable clima mediterráneo. También incluyen un sótano que brinda un espacio adicional adaptable a diversas necesidades.

Situadas a solo 15 minutos a pie de la renombrada playa, estas propiedades ofrecen una ocasión inigualable con un rango de precio de 730 000 €, asegurando una excelente relación calidad-precio en un área de gran demanda.

Ubicada en la vibrante provincia de Alicante, Torrevieja es famosa por su clima soleado y cautivadoras playas de la Costa Blanca. La ciudad combina su encanto tradicional con todas las comodidades modernas, reflejadas en sus encantadores paseos marítimos que ofrecen una variedad de destinos turísticos y recreativos.

Cerca del centro, el Museo del Mar y la Sal permite una inmersión en la historia pesquera y salinera de la ciudad. Asimismo, el Parque Natural de las Lagunas de La Mata-Torrevieja, con sus senderos escénicos y curiosas lagunas de tonos rosados y verdes, es perfecto para paseos al aire libre y disfrutar de la naturaleza.

La conveniente conexión con el mundo es facilitada por la cercanía del aeropuerto de Alicante, ubicado a tan solo 40 minutos, y el aeropuerto de Murcia, a una hora de distancia.

Características de la propiedad

Complex information

  • Complejo residencial
    Aromas del Mar
  • Tipo de propiedad
    Villas

Datos de la propiedad

  • Tipo de cocina
    Cocina americana
  • Garaje
    Incluido en el precio
  • Nombre
    CASA B
  • Dormitorios
    4
  • Baños
    2
  • m2 construidos
    238 m²
  • Tipo de la propiedad
    Obra nueva

Superficies

  • Superficie de jardin
    420 m²
  • Superficie de terraza
    30 m²
  • Superficie de solarium
    72 m²

Cerca de:

  • Distancia al mar
    1200

Instalaciones

Comodidades de la vivienda:

Piscina privada
Armarios empotrados
Trastero
Terraza

En edificio:

Piscina
Solárium
Jardin
Parking privado
Sótano

Documentos: de Aromas del Mar

Planos

Estadísticas de precios del mercado para Aromas del Mar

733 353 € (4 111 €/m2)
Precio promedio de propiedades primarias Villas en la ciudad Torrevieja

Mapa

Alicante, Torrevieja Ir a la propiedad
Deja una opinión sobre Aromas del Mar
0
0 reseñas
1
0% (0)
2
0% (0)
3
0% (0)
4
0% (0)
5
0% (0)
Cabo Cervera
Aromas del Mar
Complejo residencial
780 000 €
desde 3 277 € / m2
Contactar con la plataforma

para obtener más información contacta con el catálogo

REF: 66748

Opiniones sobre Aromas del Mar
Loading...

No reviews have been left for this object yet

Propiedades más cercanas

Explora propiedades cercanas que hemos descubierto en las proximidades de esta ubicación.

Villa Playa

Alicante, Torrevieja, La Mata, Avda. Alemania 43
820 000 €

0
0 opiniones

Viento de Lebeche

Alicante, Torrevieja, Aguas Nuevas, Lebeche 7
690 000 €

0
0 opiniones

Salisol Resort

Alicante, Guardamar del Segura, El Raso, Calle el Salat, 21
480 000 €

Situado en un entorno privilegiado de Guardamar del Segura, esta obra nueva ofr...

0
0 opiniones

Salisol Resort

Alicante, Guardamar del Segura, El Raso, Calle el Salat, 21
459 000 €

Situado en un entorno privilegiado de Guardamar del Segura, esta obra nueva ofr...

0
0 opiniones

Salisol Resort

Alicante, Guardamar del Segura, El Raso, Calle el Salat, 21
254 000 €

Situado en un entorno privilegiado de Guardamar del Segura, esta obra nueva ofr...

0
0 opiniones

Sunset Lake

Alicante, Torrevieja, Torreta Florida, Borges 4
489 000 €

0
0 opiniones

Sunset Lake

Alicante, Torrevieja, Torreta Florida, Borges 4
519 000 €

0
0 opiniones

Laguna Rosa Villas

Alicante, Torrevieja, La Siesta - El Salado - Torreta, Las Abubillas 91
349 000 €

0
0 opiniones

Laguna Rosa Villas

Alicante, Torrevieja, La Siesta - El Salado - Torreta, Las Abubillas 91
360 000 €

0
0 opiniones
Llamada

Utilizamos cookies propias y de terceros para analizar el uso del sitio web y mostrarte publicidad relacionada con tus preferencias sobre la base de un perfil elaborado a partir de tus hábitos de navegación (por ejemplo, páginas visitadas). Más información. ¿Aceptas las cookies?