España Obra nueva España Obra nueva Ávila Obra nueva Ávila Residencial Academia Chalet adosado en venta en calle Gloria Fuertes s/n

Venta de chalet adosado en Calle Gloria Fuertes s/n , Ávila

Ávila, Ávila, Hervencias, Calle Gloria Fuertes s/n
Agotado
Dejar reseña
Adosados Tipo de propiedad
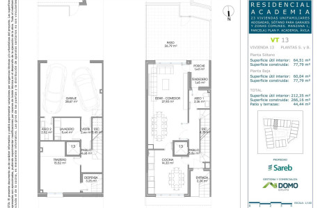
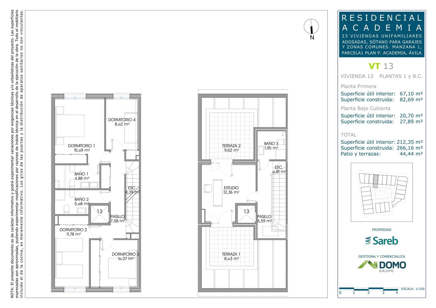
266 m² m2 construidos
5 Baños
4 Dormitorios
4 Planta
Promoción de 23 viviendas unifamiliares adosadas en manzana cerrada con piscina comunitaria. La parcela se encuentra situada entre las calles Rosalía de Castro, Pintor Caprotti, Gloria Fuertes y Emilia Pardo Bazán. Junto a la Escuela Nacional de Policía y a escasos minutos del Hospital Nuestra Señora de Sonsoles. Todas las viviendas disponen de 4 dormitorios, 3 baños y dos aseos distribuidos en 4 plantas:En la planta baja se encuentra el acceso a la vivienda, el salón, cocina, tendedero y aseo de cortesía. Desde esta planta se accede al patio privado y a la zona común de piscina.En primera planta se distribuyen los 4 dormitorios y dos baños, uno en suite en la habitación principal.La planta Bajocubierta dispone de una estancia cuyo uso pudiera ser como despacho o cuarto de estar con salida a dos terrazas en zona bajo cubierta tendríamos un estudio dos terrazas y un baño.Por último, en planta sótano se encuentra el garaje cubierto con espacio para dos coches, una amplia estancia multiusos, un aseo y la zona de lavadero y despensa.UBICACIÓNEsta promoción se encuentra ubicada en la ciudad amurallada de Ávila, declarada patrimonio de la Humanidad, a menos de cuatro kilómetros del centro de la ciudad y a tan solo 500 metros de la Academia de la Policía Nacional, referente de la zona ya que es una de las infraestructuras con más importancia de la ciudad. Se trata de una zona residencial, muy cerca de la Senda verde de la Sierra, ruta ideal para los amantes del senderismo. Está dotada de todos los servicios (comercial, deportivo, ocio, educación, …). Nuestra parcela se encuentra a escasos minutos del Centro Comercial El Bulevar, Carrefour, Decathlon, Leroy Merlin… y a tan solo cinco minutos el Hospital Nuestra Señora de Sonsoles. Muy bien comunicada, con fácil acceso a la AV-20 y AP51 al igual que al centro de la ciudad. Y a tan solo siete minutos de la estación de Renfe y Autobuses de la ciudad. Ponte en contacto con nosotros para ampliar información o reservar vivienda. También puedes pinchar en el enlace de nuestra página Web y dejarnos tus datos, para ponernos en contacto contigo.

Características de la propiedad

Complex information

  • Complejo residencial
    Residencial Academia
  • Tipo de propiedad
    Adosados

Datos de la propiedad

  • Planta
    4
  • Dormitorios
    4
  • Baños
    5
  • m2 construidos
    266 m²
  • Tipo de la propiedad
    Obra nueva

Certificación energética

  • Consumo energético
    B

Instalaciones

Comodidades de la vivienda:

Despensa
Terraza

En edificio:

Piscina
Spa

Estadísticas de precios del mercado para Chalet adosado en venta en calle Gloria Fuertes s/n

Mapa

Ávila, Ávila, Hervencias, Calle Gloria Fuertes s/n Ir a la propiedad
Deja una opinión sobre Chalet adosado en venta en calle Gloria Fuertes s/n
0
0 reseñas
1
0% (0)
2
0% (0)
3
0% (0)
4
0% (0)
5
0% (0)
Residencial Academia
Complejo residencial
Agotado
Contactar con la plataforma

para obtener más información contacta con el catálogo

REF: 2377

Opiniones sobre Chalet adosado en venta en calle Gloria Fuertes s/n
Loading...

No reviews have been left for this object yet

Propiedades más cercanas

Explora propiedades cercanas que hemos descubierto en las proximidades de esta ubicación.

Adosados en Venta en Calle Gloria Fuertes s/n, Ávila

Ávila, Ávila, Hervencias, Calle Gloria Fuertes s/n
233 000 €

Promoción de 23 viviendas unifamiliares adosadas en manzana cerrada con piscina...

0
0 opiniones

Adosados en Venta en Calle Gloria Fuertes s/n, Ávila

Ávila, Ávila, Hervencias, Calle Gloria Fuertes s/n
227 400 €

Promoción de 23 viviendas unifamiliares adosadas en manzana cerrada con piscina...

0
0 opiniones

Adosados en Venta en Calle Gloria Fuertes s/n, Ávila

Ávila, Ávila, Hervencias, Calle Gloria Fuertes s/n
231 400 €

Promoción de 23 viviendas unifamiliares adosadas en manzana cerrada con piscina...

4
0 opiniones

Adosados en Venta en Calle Gloria Fuertes s/n, Ávila

Ávila, Ávila, Hervencias, Calle Gloria Fuertes s/n
243 700 €

Promoción de 23 viviendas unifamiliares adosadas en manzana cerrada con piscina...

0
0 opiniones

Adosados en Venta en Calle Gloria Fuertes s/n, Ávila

Ávila, Ávila, Hervencias, Calle Gloria Fuertes s/n
247 000 €

Promoción de 23 viviendas unifamiliares adosadas en manzana cerrada con piscina...

0
0 opiniones

Adosados en Venta en Calle Gloria Fuertes s/n, Ávila

Ávila, Ávila, Hervencias, Calle Gloria Fuertes s/n
227 300 €

Promoción de 23 viviendas unifamiliares adosadas en manzana cerrada con piscina...

0
0 opiniones

Adosados en Venta en Calle Gloria Fuertes s/n, Ávila

Ávila, Ávila, Hervencias, Calle Gloria Fuertes s/n
238 800 €

Promoción de 23 viviendas unifamiliares adosadas en manzana cerrada con piscina...

0
0 opiniones

Adosados en Venta en Calle Gloria Fuertes s/n, Ávila

Ávila, Ávila, Hervencias, Calle Gloria Fuertes s/n
243 200 €

Promoción de 23 viviendas unifamiliares adosadas en manzana cerrada con piscina...

0
0 opiniones

Adosados en Venta en Calle Gloria Fuertes s/n, Ávila

Ávila, Ávila, Hervencias, Calle Gloria Fuertes s/n
237 200 €

Promoción de 23 viviendas unifamiliares adosadas en manzana cerrada con piscina...

0
0 opiniones

Utilizamos cookies propias y de terceros para analizar el uso del sitio web y mostrarte publicidad relacionada con tus preferencias sobre la base de un perfil elaborado a partir de tus hábitos de navegación (por ejemplo, páginas visitadas). Más información. ¿Aceptas las cookies?