Obra nueva Viladecans - Llevant Centre en Viladecans

Barcelona, Viladecans, Llevant, Avenida de Clara Campoamor s/n
Agotado
Dejar reseña
Apartamentos Tipo de propiedad
2023 Año de entrega
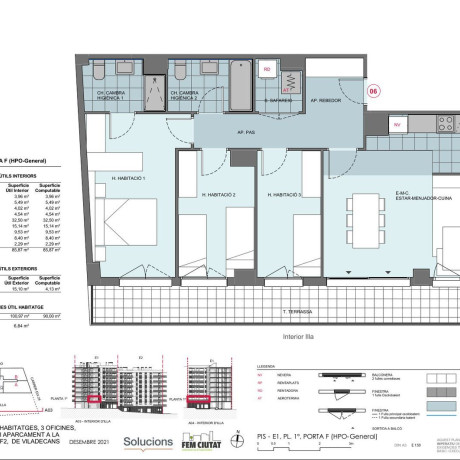
101 m² m2 construidos
2 Baños
3 Dormitorios
Terminada Estado Promoción
Se trata de una promoción de obra nueva y de Protección Oficial. Todas las viviendas disponen de 3 habitaciones y 2 baños (excepto una tipología), además de una gran terraza, trastero y plaza de aparcamiento de coche incluidos en el precio. Algunas viviendas también disponen de una segunda plaza de aparcamiento para coche o motocicleta. Están ubicadas en un entorno inmejorable con 5 grandes parques en el entorno, con un urbanismo amable y de tráfico pacificado (velocidad 10 y 30 km/h), además de contar en la proximidad de diversos equipamientos y servicios públicos. Comunicaciones inmejorables con transporte público, además de autopistas y carreteras, para quienes buscan proximidad con Barcelona. El inicio de las obras de construcción será la primavera de 2023 y la entrega de llaves en verano 2025.

Características de la propiedad

Complex information

  • Complejo residencial
    Viladecans - Llevant Centre
  • Tipo de propiedad
    Apartamentos

Información del proyecto / Estado de obra

  • Año de entrega
    2023
  • Estado Promoción
    Terminada

Datos de la propiedad

  • Dormitorios
    3
  • Baños
    2
  • m2 construidos
    101 m²
  • Tipo de la propiedad
    Obra nueva

Certificación energética

  • Consumo energético
    B

Instalaciones

Comodidades de la vivienda:

Trastero
Terraza

En edificio:

Ascensor
Bar
Trastero

Estado:

Obra nueva

Estadísticas de precios del mercado para Piso en venta en avenida de Clara Campoamor s/n

357 310 € (3 529 €/m2)
Precio promedio de propiedades primarias Apartamentos en la ciudad Viladecans
460 009 € (4 051 €/m2)
Precio promedio de propiedades secundarias Apartamentos en la ciudad Viladecans
285 395 € (2 963 €/m2)
Precio promedio de propiedades primarias Apartamentos en el distrito Llevant

Mapa

Barcelona, Viladecans, Llevant, Avenida de Clara Campoamor s/n Ir a la propiedad
Deja una opinión sobre Piso en venta en avenida de Clara Campoamor s/n
0
0 reseñas
1
0% (0)
2
0% (0)
3
0% (0)
4
0% (0)
5
0% (0)
Viladecans - Llevant Centre
Complejo residencial
Agotado
Contactar con la plataforma

para obtener más información contacta con el catálogo

REF: 253

Opiniones sobre Piso en venta en avenida de Clara Campoamor s/n
Loading...

No reviews have been left for this object yet

Propiedades más cercanas

Explora propiedades cercanas que hemos descubierto en las proximidades de esta ubicación.

Obra nueva Viladecans - Llevant Centre en Viladecans

Barcelona, Viladecans, Llevant, Avenida de Clara Campoamor s/n
266 218 €

Se trata de una promoción de obra nueva y de Protección Oficial. Todas las vivie...

0
0 opiniones

Obra nueva Viladecans - Llevant Centre en Viladecans

Barcelona, Viladecans, Llevant, Avenida de Clara Campoamor s/n
269 736 €

Se trata de una promoción de obra nueva y de Protección Oficial. Todas las vivie...

0
0 opiniones

Obra nueva Viladecans - Llevant Centre en Viladecans

Barcelona, Viladecans, Llevant, Avenida de Clara Campoamor s/n
288 800 €

Se trata de una promoción de obra nueva y de Protección Oficial. Todas las vivie...

0
0 opiniones

Obra nueva Viladecans - Llevant Centre en Viladecans

Barcelona, Viladecans, Llevant, Avenida de Clara Campoamor s/n
262 509 €

Se trata de una promoción de obra nueva y de Protección Oficial. Todas las vivie...

0
0 opiniones

Obra nueva Viladecans - Llevant Centre en Viladecans

Barcelona, Viladecans, Llevant, Avenida de Clara Campoamor s/n
287 461 €

Se trata de una promoción de obra nueva y de Protección Oficial. Todas las vivie...

0
0 opiniones

Obra nueva Viladecans - Llevant Centre en Viladecans

Barcelona, Viladecans, Llevant, Avenida de Clara Campoamor s/n
234 923 €

Se trata de una promoción de obra nueva y de Protección Oficial. Todas las vivie...

0
0 opiniones

Obra nueva Viladecans - Llevant Centre en Viladecans

Barcelona, Viladecans, Llevant, Avenida de Clara Campoamor s/n
277 617 €

Se trata de una promoción de obra nueva y de Protección Oficial. Todas las vivie...

0
0 opiniones

Obra nueva Once de Septiembre en Sant Boi de Llobregat

Barcelona, Sant Boi de Llobregat, Plaça Catalunya - Vinyets, Avenida Onze de Setembre, 18
345 000 €

¡Último piso en venta!Edificio de obra nueva en Carrer L´Onze de Setembre 18 de...

0
0 opiniones

Apartamentos en Venta en Calle Montaña de Sales s/n, Viladecans

Barcelona, Viladecans, Campreciós - Torre Roja, Calle Montaña de Sales s/n
288 000 €

Obra nueva en Viladecans, BarcelonaCulmia Nou Llevant Viladecans está diseñada p...

0
0 opiniones

Utilizamos cookies propias y de terceros para analizar el uso del sitio web y mostrarte publicidad relacionada con tus preferencias sobre la base de un perfil elaborado a partir de tus hábitos de navegación (por ejemplo, páginas visitadas). Más información. ¿Aceptas las cookies?