España Casas de pueblo España Casas de pueblo Bizkaia Casas de pueblo Berriatua Casa en venta de 600 m² en Avda. Merelludi, 48710 Berriatúa, Bizkaia.

Casa en venta de 600 m² en Avda. Merelludi, 48710 Berriatúa, Bizkaia.

Bizkaia, Berriatua
390 000 €
650 € / m2
Dejar reseña
Casas de pueblo Tipo de propiedad
600 m² m2 construidos
2 Baños
5 Dormitorios
Equipada Equipamiento de cocina
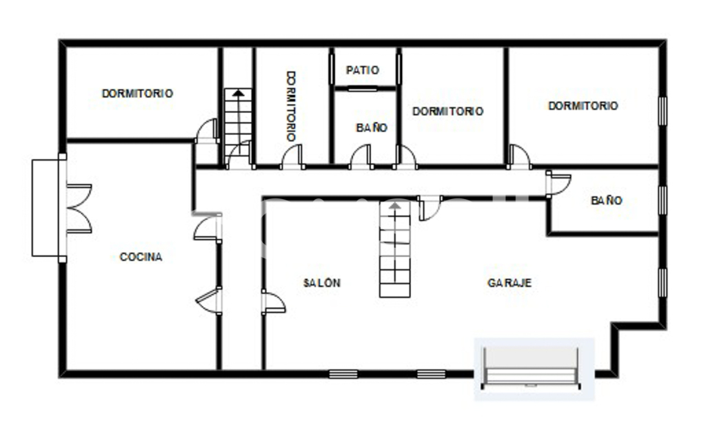
Gran casa de 600 m²de superficie y 60.000 m²de parcela, en la que podrás disfrutar de tiempo al aire libre, en Berriatua, provincia de Bizkaia. La amplitud de esta vivienda proporciona a una familia con niños todo el espacio que necesita. Esta casa cuenta con tres plantas de altura y se distribuye en un salón, cinco habitaciones, dos cuartos de baño, y la cocina equipada con fuego eléctrico y de leña y abierta al comedor, lo que ofrece gran amplitud a toda la estancia . En la planta baja, cuentas con un garaje con capacidad para dos coches , el pósito de gasoil y una cuadra con mucho espacio de almacenaje. La última planta es un espacio diáfano de unos 200 m² que ofrece muchas posibilidades. En un edificio de dos plantas anexo a la vivienda, cuentas con almacén y garaje para otros cuatro coches. Junto a la propiedad también se venden seis hectáreas de terreno de monte y campo. También cuenta con jardín privado en el que aprovecharás el buen tiempo y trastero, lo que aumenta la capacidad de almacenaje de tu vivienda. Esta casa rural , situado en una vía de fácil acceso, tiene para que puedas aparcar con comodidad. La vivienda se vende sin amueblar y en buen estado, lista para entrar a vivir. En cuanto a las calidades, esta casa rural cuenta con calefacción de gasoil, carpintería de madera y suelo de parquet, que aporta mucha calidez a la vivienda y suelo de cerámica ,resistente y fácil de limpiar. La viviendas se encuentra en un entorno tranquilo y rodeado de naturaleza, pero cercano a todos los servicios básicos para el día a día. La BI-633 se encuentra a escasos minutos. Llámanos y visita esta vivienda. h1o2u8s6e5l1l

Características de la propiedad

Complex information

  • Tipo de propiedad
    Casas de pueblo

Datos de la propiedad

  • Equipamiento de cocina
    Equipada
  • Dormitorios
    5
  • Baños
    2
  • m2 construidos
    600 m²
  • Tipo de la propiedad
    Segunda mano

Certificación energética

  • Consumo energético
    E

Instalaciones

En edificio:

Jardin
Parking privado

Estado:

Buen estado

Estadísticas de precios del mercado para Casa en venta de 600 m² en Avda. Merelludi, 48710 Berriatúa, Bizkaia.

Mapa

Bizkaia, Berriatua Ir a la propiedad
Deja una opinión sobre Casa en venta de 600 m² en Avda. Merelludi, 48710 Berriatúa, Bizkaia.
0
0 reseñas
1
0% (0)
2
0% (0)
3
0% (0)
4
0% (0)
5
0% (0)
Housell
390 000 €
desde 650 € / m2
Contactar con la plataforma

para obtener más información contacta con el catálogo

REF: 66470

Opiniones sobre Casa en venta de 600 m² en Avda. Merelludi, 48710 Berriatúa, Bizkaia.
Loading...

No reviews have been left for this object yet

Propiedades más cercanas

Explora propiedades cercanas que hemos descubierto en las proximidades de esta ubicación.

Casa en venta de 600 m² en Avda. Merelludi, 48710 Berriatúa, Bizkaia.

Bizkaia, Berriatua
390 000 €

Gran casa de 600 m²de superficie y 60.000 m²de parcela, en la que podrás disfru...

0
0 opiniones

Casa en venta de 255 m² Avenida San Anton Auzoa, 48380 Aulesti (Bizkaia)

Bizkaia, Aulesti
279 000 €

Llámanos y visita esta vivienda. Gran casa rural de 255 m² de superficie y 8500...

0
0 opiniones
Llamada

Utilizamos cookies propias y de terceros para analizar el uso del sitio web y mostrarte publicidad relacionada con tus preferencias sobre la base de un perfil elaborado a partir de tus hábitos de navegación (por ejemplo, páginas visitadas). Más información. ¿Aceptas las cookies?