Presentamos una exclusiva promoción de viviendas en régimen de cooperativa en una ubicación privilegiada en Algeciras. Esta colección cuenta con 28 viviendas excepcionales, ofreciendo opciones de uno, dos y tres dormitorios, todas ellas con plazas de garaje privado y trasteros. Los locales comerciales están disponibles en la planta baja, aportando aún más comodidad. Destaca un maravilloso ático de tres dormitorios con una amplia terraza que promete vistas espectaculares.
Su ubicación excepcional junto a un hermoso parque y espacios públicos amplios garantiza vistas amplias y espacios abiertos directamente desde su salón. Situada a pocos minutos a pie del núcleo urbano más importante, como el Ayuntamiento y la Plaza Alta, esta promoción proporciona un fácil acceso a todos los servicios necesarios, incluidos colegios prestigiosos, un campus universitario, supermercados, parques, áreas de juego para niños y un completo conjunto de instalaciones de salud.
Nuestras viviendas están diseñadas pensando en los estilos de vida modernos, integrando espacios exteriores en todas las residencias. Valoramos sus necesidades y le ofrecemos la oportunidad de personalizar su hogar de acuerdo a un extenso rango de opciones. Mediante nuestro servicio de personalización, puede elegir entre diversos acabados para hacer de su nueva vivienda un espacio único y adaptado a sus preferencias.
Inmuebles en Puntal del Parque
Descubra estas exclusivas propiedades con precios que oscilan entre los 155,000 € y los 330,000 €, abarcando una superficie de entre 68 m² y 143 m² para satisfacer diferentes necesidades. Equipadas con ascensor, estas modernas viviendas garantizan comodidad y accesibilidad en cada detalle.
Ventajas de una nueva construcción Puntal del Parque
Las ventajas de adquirir una nueva construcción son múltiples. Este proyecto es sinónimo de calidad, modernidad y comodidad. Los espacios exteriores en cada vivienda y la flexibilidad para personalizar los acabados aseguran una adaptación perfecta al estilo de vida contemporáneo.
Vida en la ciudad Algeciras
Al vivir en esta vibrante ciudad, se abre un mundo de oportunidades y servicios a su disposición, desde lo cultural hasta lo práctico. La cercanía al centro histórico y una extensa gama de facilidades aseguran un estilo de vida dinámico y cómodo para todos los residentes.
Promociones destacadas en España
Propiedades en este complejo
La información aportada de precios, especificaciones y detalles de esta promoción es susceptible de posibles variaciones y cambios según el fuente. Por lo que no dispone de un valor comercial en sí misma, sino que es meramente informativa y orientativa. Esta web no comercializa este proyecto o inmueble .
Nombre | Habitaciones |
Baños |
Superficie construida |
Planta |
Categoría |
Precio |
|
---|---|---|---|---|---|---|---|
1 | 1 | 68 m² | 1 | Apartamentos | 155 000 € | Visit | |
1 | 1 | 68 m² | 3 | Apartamentos | 160 000 € | Visit | |
1 | 1 | 68 m² | 5 | Apartamentos | 165 000 € | Visit | |
3 | 3 | 143 m² | 1 | Apartamentos | 330 000 € | Visit | |
2 | 2 | 82 m² | 5 | Apartamentos | 335 000 € | Visit | |
2 | 2 | 81 m² | 1 | Apartamentos | 380 000 € | Visit |
Características de la propiedad
Complex information
-
Número de unidades6
-
Rango de precios155 000 € - 380 000 €
-
Cantidad de dormitorios1 - 3
-
Superficie68 m² - 143 m²
-
Tipos de inmueblesApartamentos
Información del proyecto / Estado de obra
-
RegimenEn coopertiva
Datos de la propiedad
-
M2 medios85 m²
-
Tipo de la propiedadObra nueva
Certificación energética
-
Consumo energeticoNo indicado
Instalaciones
En edificio:
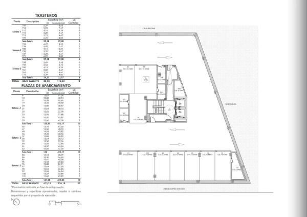
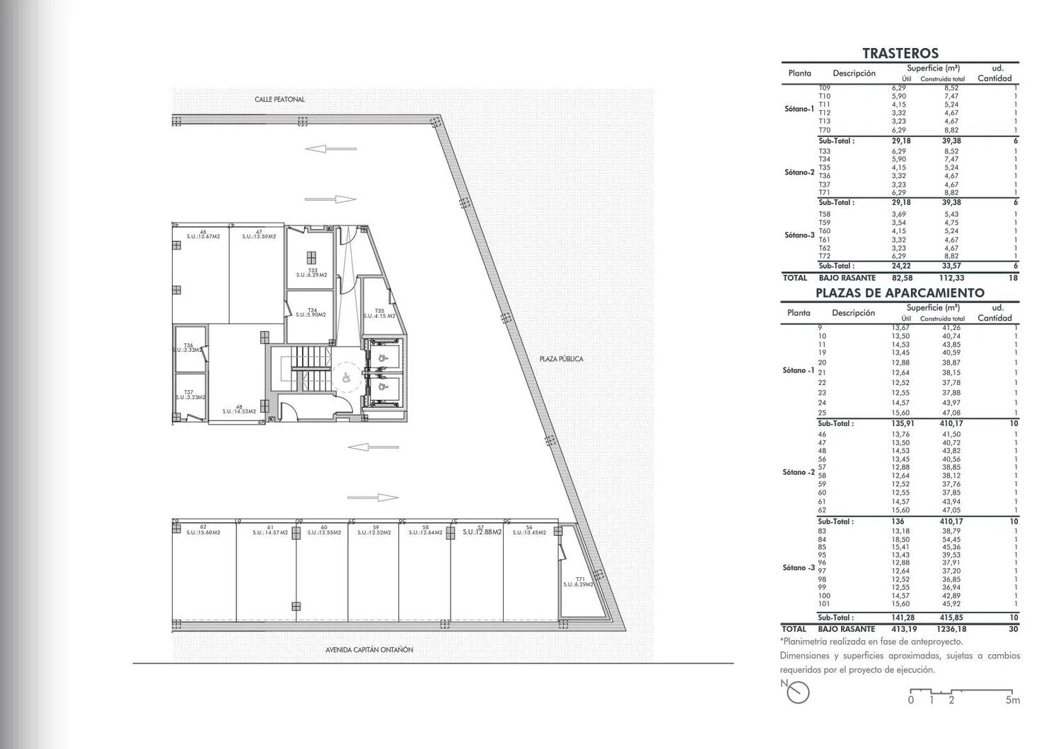
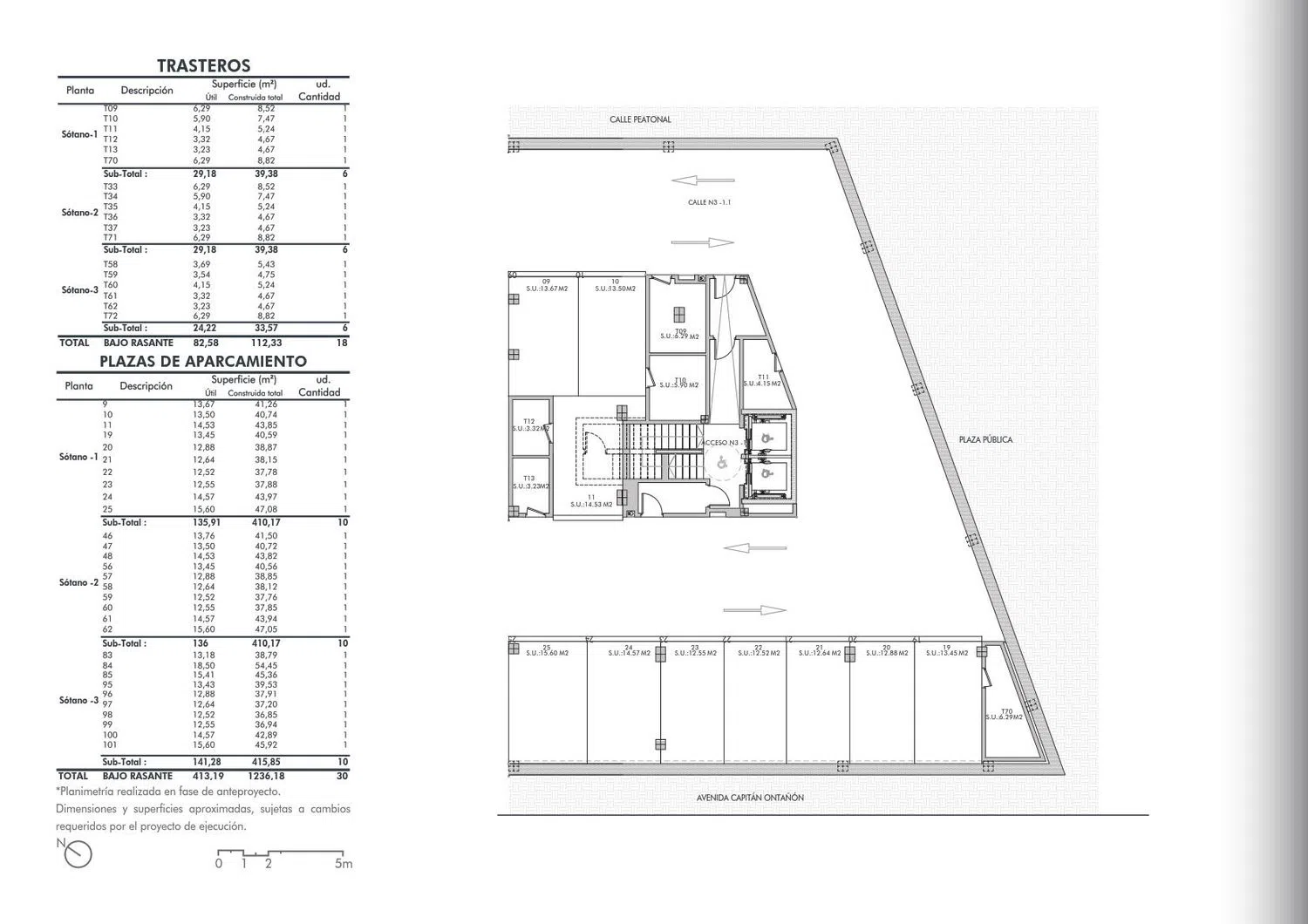
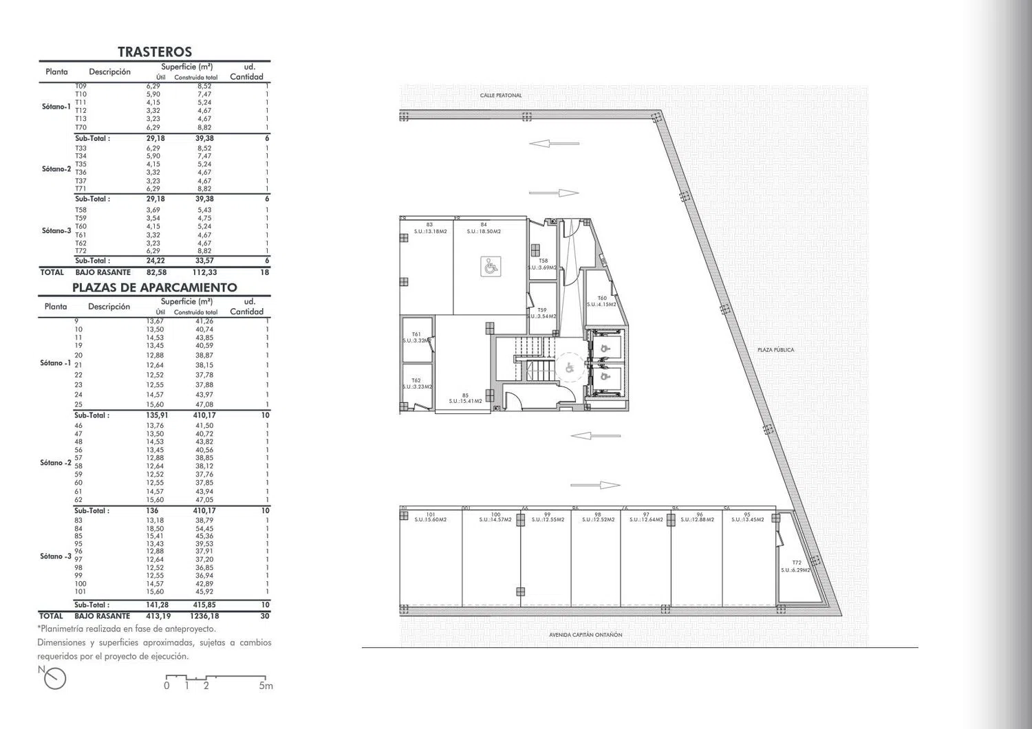
Planos
Estadísticas de precios del mercado para PUNTAL DEL PARQUE
Mapa













Contactar con la plataforma
para obtener más información contacta con el catálogo
REF: 181478
No reviews have been left for this object yet
Propiedades más cercanas
Explora propiedades cercanas que hemos descubierto en las proximidades de esta ubicación.