Obra nueva Begur Exclusiu en Begur (Revista)

Girona, Begur, Sa Riera - Sa Fontansa, Calle Xarmada, 36
desde 638 000 €
Dejar reseña
Superficie
Cantidad de dormitorios
Baños
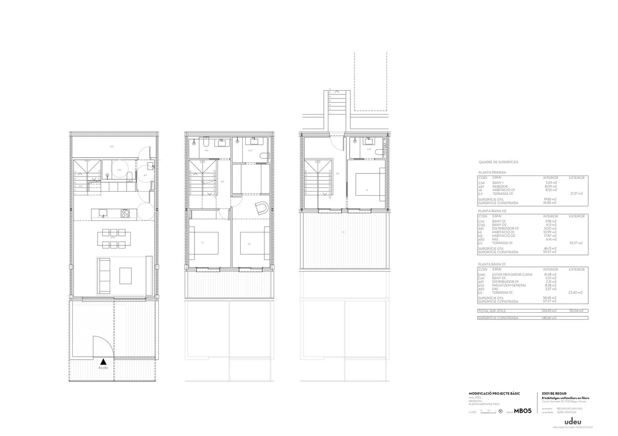
Exclusiva Promoción de casa adosadas en Begur, Costa Brava, con vistas al mar y acceso a una espectacular piscina. Descubre esta elegante casa muestra adosada de 156 m², situada en una moderna y cuidada comunidad en Begur, en el corazón de la Costa Brava. Rodeada de naturaleza y con acceso directo a una impresionante piscina comunitaria con vistas al mar, esta propiedad es el lugar ideal para disfrutar del estilo de vida mediterráneo. Distribuida en tres plantas, la casa cuenta con amplias terrazas en cada nivel, donde la luz natural inunda cada estancia gracias a su excelente orientación. Sus acabados de alta calidad y su diseño contemporáneo crean un ambiente cálido y sofisticado. La vivienda dispone de tres espaciosas habitaciones dobles, dos de ellas en suite, perfectas para el máximo confort. En la planta baja, la moderna cocina abierta con isla, se integra a la perfección con el comedor y la zona de estar, realzada por una impresionante vidriera que se abre a una acogedora terraza. Un espacio ideal para disfrutar de reuniones con familiares y amigos mientras se respira la brisa del mar. Desde la terraza, se accede directamente a la zona ajardinada y a la espectacular piscina, un lugar privilegiado para relajarse después de un día explorando las increíbles calas de aguas cristalinas de Begur, como Sa Riera, Aiguablava o Sa Tuna. Además, la propiedad cuenta con plaza de garaje al aire libre, climatización por aerotermia y placas fotovoltaicas para una mayor eficiencia energética. Se entrega totalmente amueblada, equipada y con el ajuar que Ud. previamente habrá elegido, lista para entrar a vivir y comenzar a disfrutar del encanto incomparable de la Costa Brava. Una oportunidad única para vivir el Mediterráneo en su máxima expresión. Plazo de entrega previsto julio de 2025. Contacte con nosotros para más información o concertar una visita. Precios: Casa A1 – VENDIDA Casa A2 – 670.000. -€ Casa A3 – VENDIDA Casa A4 – RESERVADA. -€ Casa B1 – 670.000. -€ Casa B2 – 670.000. -€ Casa B3 – RESERVADA. -€ Casa B4 – VENDIDA Begur está situado en el corazón de la Costa Brava, junto a la planicie de l'Empordà. El pueblo está presidido por su castillo, que ocupa una de las múltiples colinas que caracterizan el accidentado paisaje del municipio. Este entorno abrupto y natural alberga algunas de las calas y playas más bonitas de esta zona de la Costa Brava. Se puede disfrutar de los paisajes que ofrecen los tres caminos de ronda que unen las distintas playas y calas de Begur. Contacte con nosotros para información y reservas.

Promociones destacadas en España

10 unidades

Nature Views 2

Alicante, Torrevieja, Los Balcones - Los Altos del Edén, Denia s/n
310 000 € - 379 000 €
1 unidades

Hotel en venta en Benidorm centro

Alicante, Benidorm, Playa de Poniente
2 250 000 € - 2 250 000 €
28 unidades

Residencial Los Balcones De Calpe

Alicante, Calpe, Calpe Pueblo, Avenida de Madrid, 1
299 000 € - 892 125 €
4 unidades

Nature Views

Alicante, Torrevieja, Lago Jardín II, Avenida Denia s/n
309 000 € - 330 000 €
5 unidades

ALONIS VILLAS

Alicante, La Villajoyosa / Vila Joiosa, Platja de Torres, Partida Torres s/n
675 000 € - 775 000 €
1 unidades

Residencial Royal Beach

Alicante, Guardamar del Segura, pueblo, Miguel Hernández 102
349 500 € - 349 500 €
7 unidades

Royal Star

Alicante, Guardamar del Segura
229 500 € - 269 500 €
Esta información ha sido obtenida de fuentes públicas y puede no estar actualizada. No representa un vínculo con la promotora

Características de la propiedad

Complex information

Datos de la propiedad

  • Tipo de la propiedad
    Obra nueva

Estadísticas de precios del mercado para Begur Exclusiu

1 709 318 € (5 995 €/m2)
Precio promedio de propiedades primarias Casas en la ciudad Begur
2 326 818 € (7 456 €/m2)
Precio promedio de propiedades primarias Casas en el distrito Sa Riera - Sa Fontansa

Mapa

Girona, Begur, Sa Riera - Sa Fontansa, Calle Xarmada, 36 Ir a la propiedad
Deja una opinión sobre Begur Exclusiu
0
0 reseñas
1
0% (0)
2
0% (0)
3
0% (0)
4
0% (0)
5
0% (0)
Kuper's Real Estate
638 000 €
Contactar con la plataforma

para obtener más información contacta con el catálogo

REF: 445518

Opiniones sobre Begur Exclusiu
Loading...

No reviews have been left for this object yet

Propiedades más cercanas

Explora propiedades cercanas que hemos descubierto en las proximidades de esta ubicación.

5 unidades

Obra nueva La bóbila de Pals en Pals

Girona, Pals, Pals, Calle Avi Rajoler s/n
675 000 € - 875 000 €

Inmuebles en La bóbila de Pals Ubicado en pleno corazón de Pals, presentamos un...

0
0 opiniones
9 unidades

Obra nueva Turó de Regencós en Regencós

Girona, Regencós
760 000 € - 861 500 €

Descubre un impresionante complejo residencial en un entorno privilegiado del Ba...

0
0 opiniones

Obra nueva Bio Habitatge Begur en Begur

Girona, Begur, Sa Riera - Sa Fontansa, Calle Mercuri, 5
-

Begur es uno de los pueblos más deseados de la Costa Brava por su ubicación dire...

0
0 opiniones

Obra nueva Casa de Alto Standing en Begur en Begur

Girona, Begur, Aiguafreda - Sa Tuna, Carrer del Rec de L'aigua 20v s/n
-

En construcción entrega en 6 meses. Espectacular casa de alto standing en Begur...

0
0 opiniones
1 unidades

Obra nueva Begur Exclusiu en Begur

Girona, Begur, Sa Riera - Sa Fontansa, Calle Xarmada, 33
640 000 € - 640 000 €

Kuper's Real Estate, les presenta esta promoción de Obra Nueva a 5 minutos camin...

0
0 opiniones
1 unidades

Obra nueva casa en construcción en Begur en Begur

Girona, Begur, Residencial Begur - Esclanyà, Calle Joan Maragall, 21
621 000 € - 621 000 €

FANTÁSTICO CHALET INDIVIDUAL EN BEGUR! NO TE LO PIERDAS!Una propiedad ideal para...

0
0 opiniones
4 unidades

Obra nueva Jardins de Sa Riera Living en Begur

Girona, Begur, Sa Riera - Sa Fontansa, Calle Punta Ventosa 5, 6
533 000 € - 810 000 €

Inmuebles en Jardins de Sa Riera Living Descubre las exclusivas viviendas dispo...

0
0 opiniones
2 unidades

Obra nueva Villas del Sol Begur en Begur

Girona, Begur, Escandinavia, Calle Pabellón s/n
675 000 € - 745 000 €

La promoción “Villas del Sol” consiste en ocho elegantes casas modernas individu...

0
0 opiniones
2 unidades

Obra nueva Casas Biopasivas Palafrugell en Palafrugell

Girona, Palafrugell, Vila de Palafrugell, Calle Alt Camp, 52
407 500 € - 407 500 €

Obra nueva de casas pareadas Biopasivas de 4 habitaciones y 3 baños completos en...

0
0 opiniones

Utilizamos cookies propias y de terceros para analizar el uso del sitio web y mostrarte publicidad relacionada con tus preferencias sobre la base de un perfil elaborado a partir de tus hábitos de navegación (por ejemplo, páginas visitadas). Más información. ¿Aceptas las cookies?