Obra nueva en calle de las Navas, El Coto en Casar, El (Revista)

Guadalajara, Casar, El, Calle de las Navas s/n
desde 180 000 €
Dejar reseña
Superficie
Cantidad de dormitorios
Baños
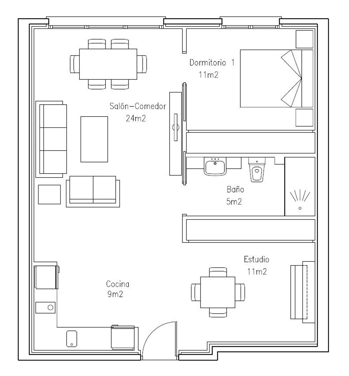
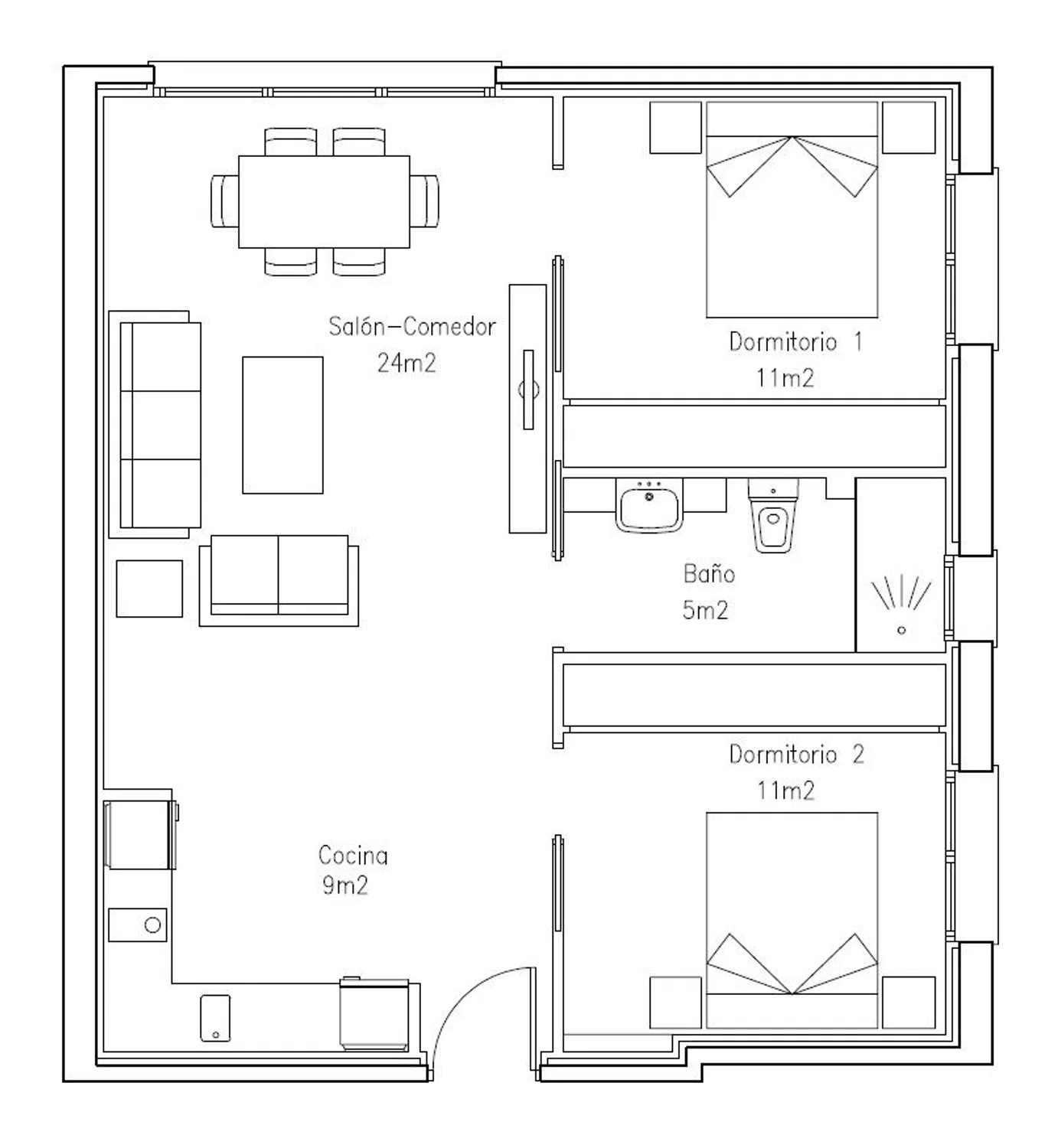
Obra nueva en urbanización privada para mayores de 50 años Descubre esta promoción de apartamentos de obra nueva en un exclusivo Cohousing Senior, diseñado para ofrecer comodidad, seguridad y calidad de vida. Apartamentos de 60 m2 que cuentan con 2 dormitorios, salón, cocina abierta y baño completo. Se entregan amueblados, listos para entrar a vivir. Ubicados en una urbanización privada que consta de 74 apartamentos, iniciando con una primera fase de 15 viviendas. La urbanización está pensada para disfrutar de un entorno tranquilo y seguro, con servicios que facilitan el día a día: • Piscina comunitaria y amplias zonas ajardinadas. • Parking descubierto y trastero incluido. • Limpieza de zonas comunes y semanal de cada apartamento. • Servicio de chófer para desplazamientos al pueblo. • Vigilancia nocturna para mayor tranquilidad. • Salones comunes y sala multiusos para actividades y reuniones. Requisitos de acceso Este Cohousing Senior está destinado exclusivamente a la convivencia de personas de 50 años o más, garantizando un ambiente sereno y adaptado a esta etapa de la vida. ✔ Comunidad activa Actividades, gimnasia, reuniones y convivencia. ✔ Servicios opcionales Comedor, fisioterapia, enfermería, gimnasio, pilates, ocio, etc. ✔ Bienestar saludable El entorno social reduce riesgo de soledad y aumenta el bienestar emocional.

Promociones destacadas en España

10 unidades

Nature Views 2

Alicante, Torrevieja, Los Balcones - Los Altos del Edén, Denia s/n
310 000 € - 379 000 €
1 unidades

Hotel en venta en Benidorm centro

Alicante, Benidorm, Playa de Poniente
2 250 000 € - 2 250 000 €
28 unidades

Residencial Los Balcones De Calpe

Alicante, Calpe, Calpe Pueblo, Avenida de Madrid, 1
299 000 € - 892 125 €
4 unidades

Nature Views

Alicante, Torrevieja, Lago Jardín II, Avenida Denia s/n
309 000 € - 330 000 €
5 unidades

ALONIS VILLAS

Alicante, La Villajoyosa / Vila Joiosa, Platja de Torres, Partida Torres s/n
675 000 € - 775 000 €
1 unidades

Residencial Royal Beach

Alicante, Guardamar del Segura, pueblo, Miguel Hernández 102
349 500 € - 349 500 €
7 unidades

Royal Star

Alicante, Guardamar del Segura
229 500 € - 269 500 €
Esta información ha sido obtenida de fuentes públicas y puede no estar actualizada. No representa un vínculo con la promotora

Características de la propiedad

Complex information

Datos de la propiedad

  • Tipo de la propiedad
    Obra nueva

Estadísticas de precios del mercado para en calle de las Navas, El Coto

Mapa

Guadalajara, Casar, El, Calle de las Navas s/n Ir a la propiedad
Deja una opinión sobre en calle de las Navas, El Coto
0
0 reseñas
1
0% (0)
2
0% (0)
3
0% (0)
4
0% (0)
5
0% (0)
Ibel Inmobiliaria
180 000 €
Contactar con la plataforma

para obtener más información contacta con el catálogo

REF: 445490

Opiniones sobre en calle de las Navas, El Coto
Loading...

No reviews have been left for this object yet

Propiedades más cercanas

Explora propiedades cercanas que hemos descubierto en las proximidades de esta ubicación.

Obra nueva El Casar I en El Casar

Guadalajara, El Casar
-

Chalet independiente de obra nueva, con un diseño vanguardista, de gran calidad...

0
0 opiniones
3 unidades

Obra nueva Residencial Las Encinas, Los Arenales del Casar en El Casar

Guadalajara, El Casar
245 000 € - 285 000 €

¡A 35 Km DE MADRID! RESIDENCIAL LAS ENCINAS, 55 viviendas unifamiliares de diseñ...

0
0 opiniones
1 unidades

Obra nueva El Casar III en El Casar

Guadalajara, El Casar
294 860 € - 294 860 €

Chalet independiente de obra nueva, con un diseño vanguardista, de gran calidad...

0
0 opiniones

Obra nueva Vivienda Pareada en El Casar

Guadalajara, El Casar
-

ULTIMO CHALET ¡Quieres un chalet de OBRA NUEVA en el casco urbano de El Casar en...

0
0 opiniones
1 unidades

Obra nueva Teoluk Proyect en El Casar

Guadalajara, El Casar
389 900 € - 389 900 €

Chalet independiente de obra nueva situado en la localidad de El Casar, provinci...

0
0 opiniones
1 unidades

Obra nueva El Casar IV en El Casar

Guadalajara, El Casar
319 555 € - 319 555 €

Chalet independiente de obra nueva en régimen de autopromoción construida en Ste...

0
0 opiniones
3 unidades

Obra nueva Crece el Casar O.N., Los Arenales del Casar en El Casar

Guadalajara, El Casar
273 000 € - 365 000 €

Crece el Casar, promoción de viviendas unifamiliares a construir en autopromoció...

0
0 opiniones
1 unidades

Obra nueva Valdetorre de Jarama I en Valdetorres de Jarama

Madrid, Valdetorres de Jarama
397 122 € - 397 122 €

Chalet independiente de obra nueva, con un diseño vanguardista, de gran calidad...

0
0 opiniones
2 unidades

Residencial El Casar

Guadalajara, El Casar
280 000 € - 320 000 €

Inmuebles en Residencial El Casar Este exclusivo conjunto ofrece una serie de ch...

0
0 opiniones

Utilizamos cookies propias y de terceros para analizar el uso del sitio web y mostrarte publicidad relacionada con tus preferencias sobre la base de un perfil elaborado a partir de tus hábitos de navegación (por ejemplo, páginas visitadas). Más información. ¿Aceptas las cookies?