Venta de chalet adosado en , Ajalvir

Agotado
Dejar reseña
Adosados Tipo de propiedad
211 m² m2 construidos
3 Baños
4 Dormitorios
Suelo Radiante Calefacción
2 Planta
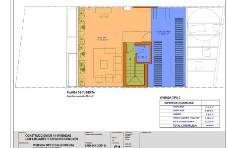
CHALETS DE OBRA NUEVA CON JARDÍN Y GARAJE PRIVADO. URBANIZACIÓN PRIVADA CON PISCINA.NUEVOS PLANOS PUBLICADOS CON SUPERFICIES ACTUALIZADAS. PLACAS SOLARES EN CUBIERTA Y AEROTERMIA CON SUELO RADIANTE Y REFRESCANTE. CERTIFICACIÓN ENERGÉTICA A. AHORRO APROXIMADO del 80% EN LOS COSTES DE SUMINISTROS ANUALES, EN LUZ Y GAS!Diseño cálido y familiar.Ajalvir es una zona muy bien comunicada por M-50, con la carretera A-2 y la A-1, así como el Aeropuerto de Madrid, Torrejón, Alcalá de Henares y con la autovía M-40. La promoción a su vez, se encuentra en una zona tranquila, a 100 metros de la parada de autobús a Madrid, Paracuellos y Daganzo.La promoción consta de 14 chalets, con piscina comunitaria y zonas comunesUbicación: Calle Huelga 6. Ajalvir. MadridLa urbanización está integrada por 14 chalets en urbanización cerrada con control de acceso automático, todos ellos de 4 dormitorios (si bien, pudieran adaptarse a 3 según necesidades de cada familia). Cada chalet está distribuido en 2 alturas más terraza-solárium, donde también se ubicarán las placas solares. Este diseño ha sido pensado con el objetivo primordial de procurar el máximo confort y calidad de vida, teniendo en cuenta, para ello, el aprovechamiento de la luz y el calor solar.La planta calle se distribuye en un amplio salón con cocina abierta a modo isla, baño, jardín privado, porche y parking junto a la entrada. En la primera planta se distribuye con 4 dormitorios y 2 baños. El dormitorio principal a modo suite, con su baño dentro y terraza y en planta segunda zona de terraza-solárium, instalaciones y otros usos.Garaje privado dentro del chalet.300 metros cuadrados de zonas comunes con piscina y zona de solárium.Solicite su cita previa y visítenos en nuestra oficina de ventas instalada en Ajalvir. Calle Atlántico nº 1.CP. 28864 Madrid. ( cerca de gasolineras Repsol y Plenoil ).*Precios sin IVA.

Características de la propiedad

Complex information

  • Complejo residencial
    Aqua Dorf M-50
  • Tipo de propiedad
    Adosados

Memoria de Calidades

  • Calefacción
    Suelo Radiante

Datos de la propiedad

  • Tipo de cocina
    Cocina americana
  • Planta
    2
  • Dormitorios
    4
  • Baños
    3
  • m2 construidos
    211 m²
  • Tipo de la propiedad
    Obra nueva

Instalaciones

Comodidades de la vivienda:

Terraza

En edificio:

Piscina
Zonas huertos
Zonas verdes
Jardin

Estado:

Obra nueva

Estadísticas de precios del mercado para Chalet adosado en venta en calle Huelga, 6

Mapa

Madrid, Ajalvir Ir a la propiedad
Deja una opinión sobre Chalet adosado en venta en calle Huelga, 6
0
0 reseñas
1
0% (0)
2
0% (0)
3
0% (0)
4
0% (0)
5
0% (0)
Aqua Dorf M-50
Complejo residencial
Agotado
Contactar con la plataforma

para obtener más información contacta con el catálogo

REF: 3214

Opiniones sobre Chalet adosado en venta en calle Huelga, 6
Loading...

No reviews have been left for this object yet

Propiedades más cercanas

Explora propiedades cercanas que hemos descubierto en las proximidades de esta ubicación.

Pareados en Venta en Calle Río Guadiana s/n, Paracuellos de Jarama

Madrid, Paracuellos de Jarama, Miramadrid, Calle Río Guadiana s/n
779 900 €

·26 chalets en Paracuellos de Jarama, Miramadrid. A 15 minutos en coche de Madri...

0
0 opiniones

Pareados en Venta en Calle Río Guadiana s/n, Paracuellos de Jarama

Madrid, Paracuellos de Jarama, Miramadrid, Calle Río Guadiana s/n
799 900 €

·26 chalets en Paracuellos de Jarama, Miramadrid. A 15 minutos en coche de Madri...

0
0 opiniones

Pareados en Venta en Calle Río Guadiana s/n, Paracuellos de Jarama

Madrid, Paracuellos de Jarama, Miramadrid, Calle Río Guadiana s/n
799 900 €

·26 chalets en Paracuellos de Jarama, Miramadrid. A 15 minutos en coche de Madri...

0
0 opiniones

Pareados en Venta en Calle Río Guadiana s/n, Paracuellos de Jarama

Madrid, Paracuellos de Jarama, Miramadrid, Calle Río Guadiana s/n
819 900 €

·26 chalets en Paracuellos de Jarama, Miramadrid. A 15 minutos en coche de Madri...

0
0 opiniones

Pareados en Venta en Calle Río Guadiana s/n, Paracuellos de Jarama

Madrid, Paracuellos de Jarama, Miramadrid, Calle Río Guadiana s/n
799 900 €

·26 chalets en Paracuellos de Jarama, Miramadrid. A 15 minutos en coche de Madri...

0
0 opiniones

Pareados en Venta en Calle Río Guadiana s/n, Paracuellos de Jarama

Madrid, Paracuellos de Jarama, Miramadrid, Calle Río Guadiana s/n
784 900 €

·26 chalets en Paracuellos de Jarama, Miramadrid. A 15 minutos en coche de Madri...

0
0 opiniones

Pareados en Venta en Calle Río Guadiana s/n, Paracuellos de Jarama

Madrid, Paracuellos de Jarama, Miramadrid, Calle Río Guadiana s/n
784 900 €

·26 chalets en Paracuellos de Jarama, Miramadrid. A 15 minutos en coche de Madri...

0
0 opiniones

Adosados en Venta, Ajalvir

Madrid, Ajalvir
405 000 €

CHALETS DE OBRA NUEVA CON JARDÍN Y GARAJE PRIVADO. URBANIZACIÓN PRIVADA CON PISC...

0
0 opiniones

Adosados en Venta, Ajalvir

Madrid, Ajalvir
415 000 €

CHALETS DE OBRA NUEVA CON JARDÍN Y GARAJE PRIVADO. URBANIZACIÓN PRIVADA CON PISC...

0
0 opiniones

Utilizamos cookies propias y de terceros para analizar el uso del sitio web y mostrarte publicidad relacionada con tus preferencias sobre la base de un perfil elaborado a partir de tus hábitos de navegación (por ejemplo, páginas visitadas). Más información. ¿Aceptas las cookies?