Obra nueva White Colombia en Casares (Revista)

Malaga, Casares, Casares Golf - Casares del Sol, UR CJT R Bahía Casares Golf, 15
desde 1 100 000 €
Dejar reseña
Superficie
Cantidad de dormitorios
Baños
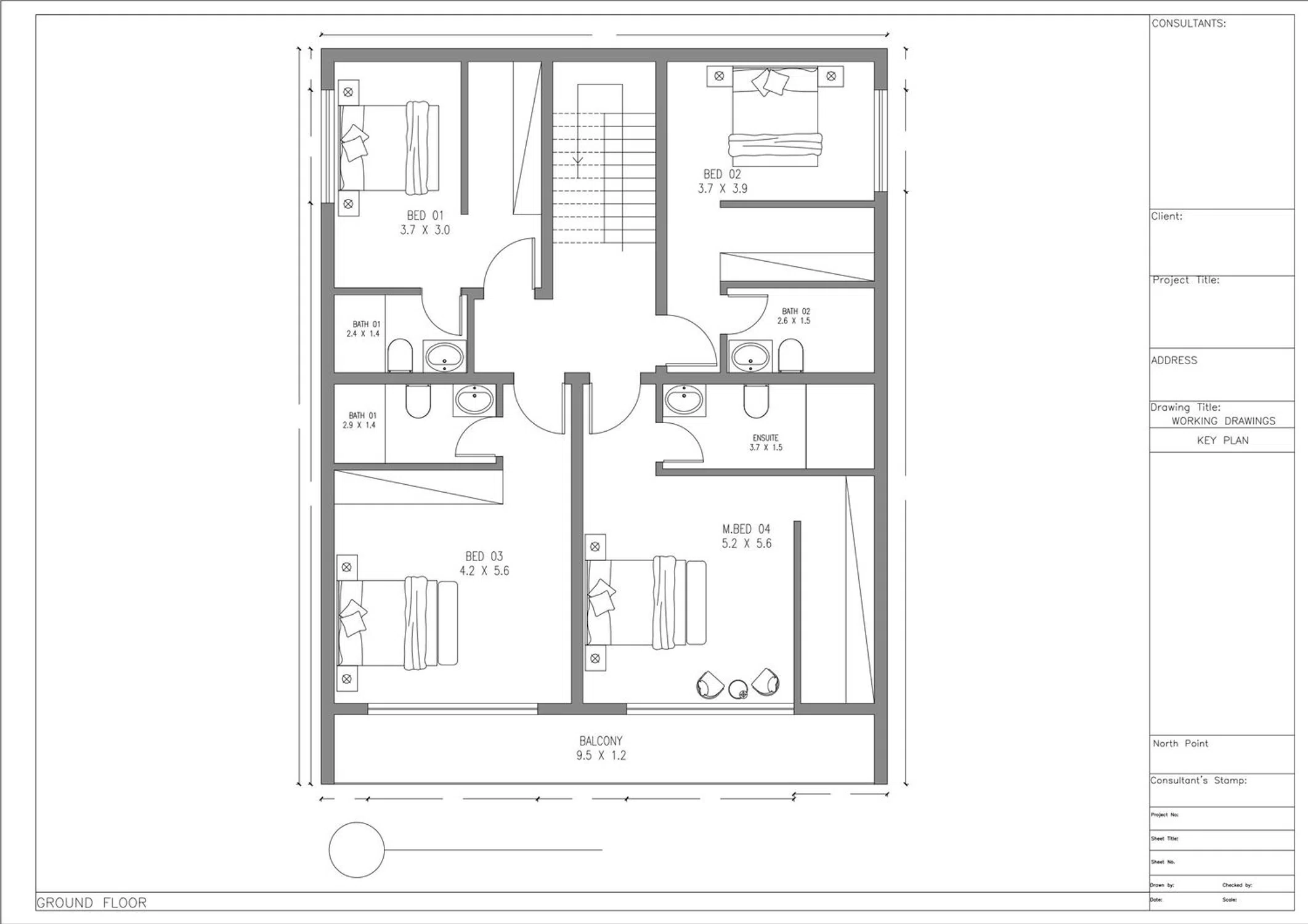
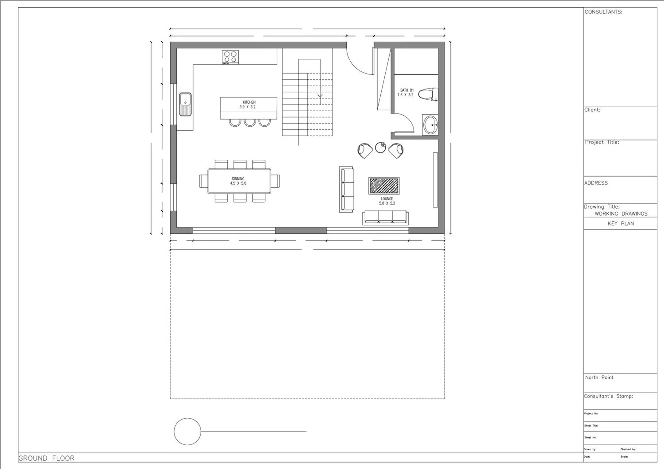
Villa Colombia es una vivienda contemporánea diseñada para maximizar iluminación natural, eficiencia energética y conexión visual con el entorno de Casares Golf. Presenta líneas horizontales, amplias aperturas y una distribución funcional que separa las zonas de día, noche y ocio. El proyecto prioriza: •Orientación óptima para luz y ventilación. •Espacios amplios y conectados. •Integración con la parcela, aprovechando el desnivel para un semisótano luminoso y útil. Distribución por Plantas: Semisótano – 150 m² Espacio versátil con iluminación natural mediante patios ingleses o ventanas en fachada según rasante: •Garaje para 2–3 vehículos •Sala multiuso (cine, gimnasio, ocio o despacho) •Dormitorio adicional “Plus” (5º dormitorio / invitados) •Cuarto de instalaciones •Trastero + almacén •Lavandería independiente •Opción: Baño completo adicional Este nivel permite incrementar el valor del inmueble y dotarlo de usos premium. Planta Baja – 100 m² Zona de día completamente abierta y conectada con el exterior: •Salón (5.0 × 5.2 m) con ventanales de suelo a techo •Comedor (4.5 × 5.0 m), integrado con la cocina •Cocina abierta (3.9 × 3.2 m), con posibilidad de isla •Baño de cortesía (1.6 × 3.2 m) •Escaleras de acceso a planta superior y semisótano •Salida directa a terraza, jardín y área de piscina La planta baja se diseña con fluidez espacial y altos niveles de confort. Planta Primera – 100 m² Zona de descanso con cuatro dormitorios: •Dormitorio 01: 3.7 × 3.0 m •Dormitorio 02: 3.7 × 3.9 m •Dormitorio 03: 4.2 × 5.6 m •Dormitorio Principal 04: 5.2 × 5.6 m con baño en suite (3.7 × 1.5 m) •Baños: 2 baños compartidos + 1 en suite •Balcón panorámico: 9.5 × 1.2 m La planta alta ofrece privacidad y amplitud, con vistas abiertas. Sistema Constructivo y Materiales Estructura •Hormigón armado con losas macizas o forjados unidireccionales. •Muros de contención impermeabilizados en semisótano. Envolvente •Fachada de doble hoja con aislamiento térmico-acústico. •Cubierta plana transitable con aislamiento y lámina impermeabilizante. Carpinterías exteriores •Aluminio con rotura de puente térmico. •Doble acristalamiento bajo emisivo con control solar. Acabados interiores •Porcelánico gran formato en zonas comunes. •Laminado o madera natural en dormitorios. •Puertas y armarios lacados en blanco. Acabados exteriores •Enfoscado y pintura blanca combinada con aplacado cerámico o piedra natural. Instalaciones y Confort Climatización •Preinstalación de A/A por conductos (aerotermia opcional). •ACS por aerotermia o sistema solar. Electricidad •Iluminación LED integrada. •Preinstalación domótica (luces, clima, seguridad). Fontanería •Tubería multicapa y PVC según normativa. •Redes separativas de aguas pluviales y residuales. Exterior y Paisajismo La vivienda se adapta a la topografía, realzando vistas y privacidad. Incluye: •Terraza principal en planta baja •Jardines perimetrales •Espacio reservado para piscina (opcional) •Rampas y accesos integrados al garaje del semisótano Resumen Final de Prestaciones Superficie parcela 1.000 m² Superficie construida 350 m² Plantas 2 + semisótano Dormitorios 5 Baños 3 (opción 4) Piscina 3 x 8 Garaje 2–3 coches.

Promociones destacadas en España

10 unidades

Nature Views 2

Alicante, Torrevieja, Los Balcones - Los Altos del Edén, Denia s/n
310 000 € - 379 000 €
1 unidades

Hotel en venta en Benidorm centro

Alicante, Benidorm, Playa de Poniente
2 250 000 € - 2 250 000 €
28 unidades

Residencial Los Balcones De Calpe

Alicante, Calpe, Calpe Pueblo, Avenida de Madrid, 1
299 000 € - 892 125 €
4 unidades

Nature Views

Alicante, Torrevieja, Lago Jardín II, Avenida Denia s/n
309 000 € - 330 000 €
5 unidades

ALONIS VILLAS

Alicante, La Villajoyosa / Vila Joiosa, Platja de Torres, Partida Torres s/n
675 000 € - 775 000 €
1 unidades

Residencial Royal Beach

Alicante, Guardamar del Segura, pueblo, Miguel Hernández 102
349 500 € - 349 500 €
7 unidades

Royal Star

Alicante, Guardamar del Segura
229 500 € - 269 500 €
Esta información ha sido obtenida de fuentes públicas y puede no estar actualizada. No representa un vínculo con la promotora

Características de la propiedad

Complex information

Datos de la propiedad

  • Tipo de la propiedad
    Obra nueva

Estadísticas de precios del mercado para White Colombia

4 562 000 € (8 258 €/m2)
Precio promedio de propiedades primarias Casas en la ciudad Casares
575 819 € (2 527 €/m2)
Precio promedio de propiedades primarias Pisos en la ciudad Casares
5 875 000 € (8 711 €/m2)
Precio promedio de propiedades primarias Casas en el distrito Casares Golf - Casares del Sol

Mapa

Malaga, Casares, Casares Golf - Casares del Sol, UR CJT R Bahía Casares Golf, 15 Ir a la propiedad
Deja una opinión sobre White Colombia
0
0 reseñas
1
0% (0)
2
0% (0)
3
0% (0)
4
0% (0)
5
0% (0)
VILLAS ECO
1 100 000 €
Contactar con la plataforma

para obtener más información contacta con el catálogo

REF: 453777

Opiniones sobre White Colombia
Loading...

No reviews have been left for this object yet

Propiedades más cercanas

Explora propiedades cercanas que hemos descubierto en las proximidades de esta ubicación.

9 unidades

Obra nueva South Place en Estepona

Malaga, Estepona, Estepona Pueblo, Calle Polonia s/n
520 000 € - 912 000 €

Descubre un nuevo residencial de diseño contemporáneo en la Costa del Sol, compu...

0
0 opiniones

Obra nueva Célere Sea Views en Estepona

Malaga, Estepona, Playa Arroyo Vaquero, Calle Segismundo Moret s/n
-

Célere Sea Views es un complejo residencial cerrado, moderno y funcional. Un lug...

0
0 opiniones
8 unidades

Obra nueva Culmia Sunset Bay Estepona en Estepona

Malaga, Estepona, Costa Natura, Calle Segismundo Moret s/n
420 000 € - 479 000 €

Inmuebles en Sunset Bay Estepona En esta obra nueva, ubicada en Estepona, se pre...

0
0 opiniones
1 unidades

Obra nueva Camarate Hills en Casares

Malaga, Casares, Buenas Noches, Calle Urbanización Camarate Golf s/n
350 000 € - 350 000 €

Este exclusivo proyecto residencial en Málaga, Casares, en la zona de Buenas Noc...

0
0 opiniones

Obra nueva The Sapphire en Estepona

Malaga, Estepona, La Gaspara, Urbanizacion Bahia de Estepona, 152
-

A orillas del Mediterráneo, rodeado de naturaleza y con acceso directo a la play...

0
0 opiniones

Obra nueva Villa Ecológica Modelo White en Estepona

Malaga, Estepona, Costa Natura, Calle Guatemala s/n
-

Villa Eco Modelo White" Como primera opción se han ajustado 3 Habitaciones + 2 B...

0
0 opiniones
8 unidades

Obra nueva Estepona Puerto en Estepona

Malaga, Estepona, Estepona Pueblo
491 000 € - 1 164 000 €

Piso a estrenar en EsteponaUna promoción de 51 apartamentos de 2, 3 y 4 dormitor...

0
0 opiniones
1 unidades

Obra nueva Estepona Golf en Estepona

Malaga, Estepona, Costa Natura, Parcelas R5-R6 SUp2 La Gaspara s/n
518 000 € - 518 000 €

Piso a estrenar con vistas al marDiseñada para buscar ese punto máximo de exclus...

0
0 opiniones
1 unidades

Obra nueva Ocio 16 en Estepona

Malaga, Estepona, Playa Bahía Dorada, Calle Ocio, 16
995 000 € - 995 000 €

VILLA DE LUJO CON VISTAS PARCIALES AL MAR Y A POCA DISTANCIA DE LA PLAYA Un chal...

0
0 opiniones

Utilizamos cookies propias y de terceros para analizar el uso del sitio web y mostrarte publicidad relacionada con tus preferencias sobre la base de un perfil elaborado a partir de tus hábitos de navegación (por ejemplo, páginas visitadas). Más información. ¿Aceptas las cookies?