Terreno en calle de la Luz, 11

Malaga, Estepona, Costa Natura, Calle de la Luz, 11
1 500 000 €
Dejar reseña
Urbanizable Tipo de propiedad
3 434 m² Superficie del terreno
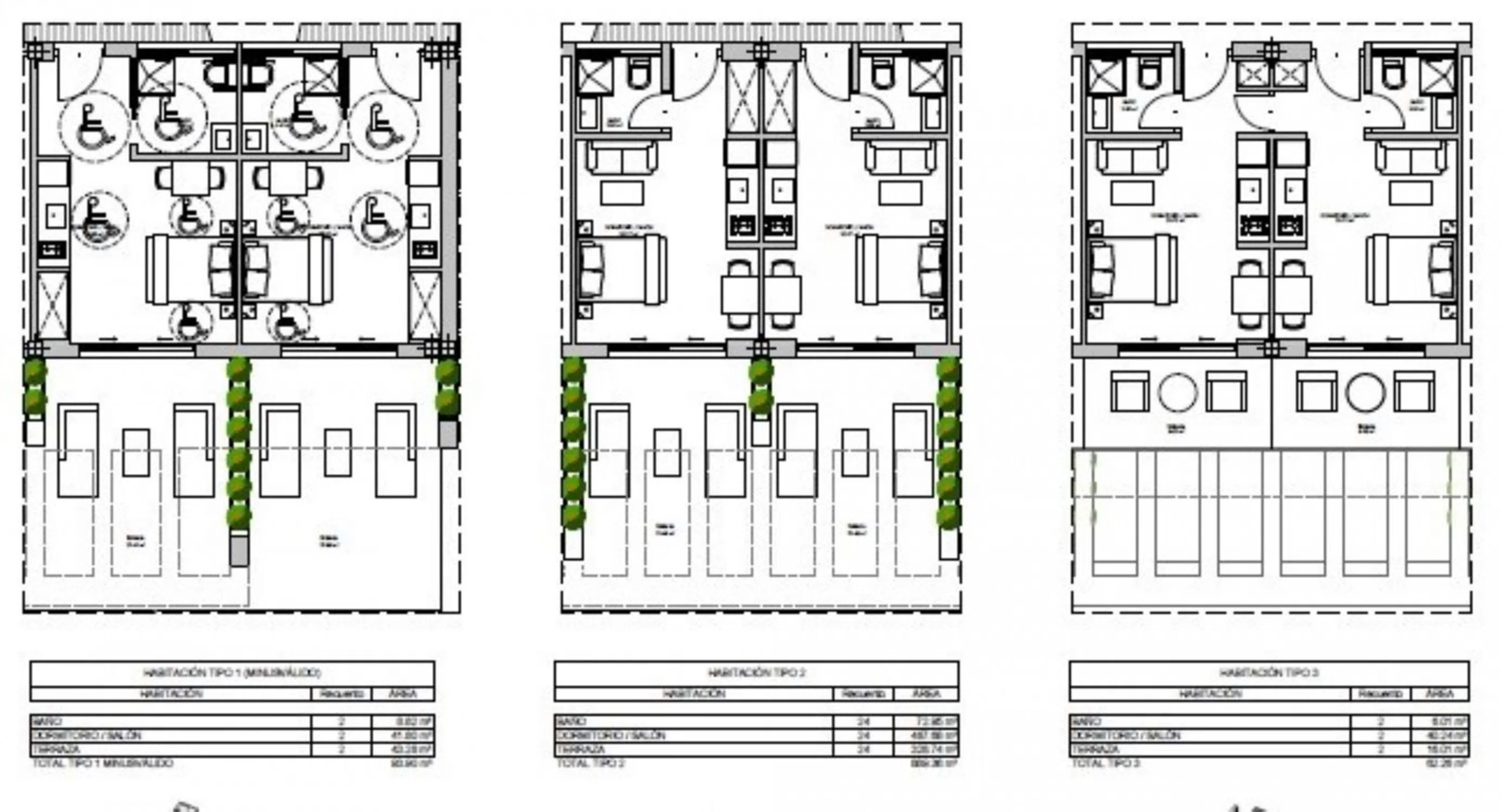
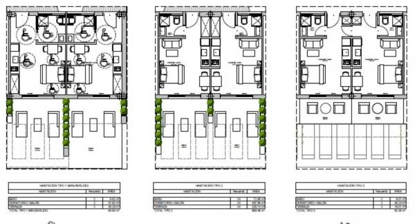
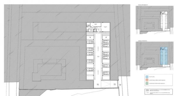
Parcela única de 3434m2 con la oportunidad de construir un exclusivo apartotel de 838m2 con 2 plantas, 28 apartamentos, restaurante, piscina y aparcamiento subterráneo en la parcela o en su lugar una fantástica oportunidad de construir 3 villas modernas de unos 300 m2 cada una con parcela independiente de más de 1000 m2 cada una. Excelente ubicación, cerca del pueblo, supermercados, servicios y la playa de Playa don Pedro. Cerca también hay varios clubes de golf, como Santa María Golf, Valle Romano y Estepona Golf. Proyecto con un diseño moderno y actual realizado por un arquitecto profesional. Una inversión sensata que traerá grandes beneficios.

Características de la propiedad

Complex information

  • Tipo de propiedad
    Urbanizable

Datos de la propiedad

  • Tipo de la propiedad
    Segunda mano

Superficies

  • Superficie del terreno
    3 434 m²

Estadísticas de precios del mercado para Terreno en calle de la Luz, 11

Mapa

Malaga, Estepona, Costa Natura, Calle de la Luz, 11 Ir a la propiedad
Deja una opinión sobre Terreno en calle de la Luz, 11
0
0 reseñas
1
0% (0)
2
0% (0)
3
0% (0)
4
0% (0)
5
0% (0)
Panspain Group
1 500 000 €
Contactar con la plataforma

para obtener más información contacta con el catálogo

REF: 244321

Opiniones sobre Terreno en calle de la Luz, 11
Loading...

No reviews have been left for this object yet

Propiedades más cercanas

Explora propiedades cercanas que hemos descubierto en las proximidades de esta ubicación.

Terreno en Barrio Valle Romano Golf

Malaga, Estepona, Costa Natura, Barrio Valle Romano Golf
450 000 €

Excepcional oportunidad para construir la villa de tus sueños en Valle Romano...

0
0 opiniones

Terreno en calle Nicaragua s/n

Malaga, Estepona, Costa Natura, Calle Nicaragua s/n
210 000 €

Construir la casa de tus sueños con vistas al mar Situado en la codiciada zona d...

0
0 opiniones

Terreno en calle Guatemala, 198 -224

Malaga, Estepona, Costa Natura, Calle Guatemala, 198 -224
350 000 €

Parcela en venta en Estepona – 880 m² con opciones de desarrollo flexibles Esta...

0
0 opiniones

Terreno en Altos de Estepona

Malaga, Estepona, Altos de Estepona, Altos de Estepona
380 000 €

Parcela rústica a la venta en la zona de Los Reales con 36.865 metros de terreno...

0
0 opiniones

Terreno en Barrio Buenas Noches

Malaga, Estepona, Playa Bahía Dorada, Barrio Buenas Noches
270 000 €

Oportunidad excepcional de adquirir una estupenda parcela de 569 m² en una de la...

0
0 opiniones

Terreno en Barrio Centro

Malaga, Estepona, Estepona Pueblo, Barrio Centro
280 000 €

Oportunidad única de adquirir una estupenda parcela de 630 m² a tan solo 5 minut...

0
0 opiniones

Terreno en Barrio Valle Romano Golf

Malaga, Estepona, Costa Natura, Barrio Valle Romano Golf
300 000 €

Presentamos una magnífica parcela de 800 m² ubicada a tan solo 5 minutos del cen...

0
0 opiniones

Terreno en Barrio Valle Romano Golf

Malaga, Estepona, Costa Natura, Barrio Valle Romano Golf
220 000 €

A tan solo 5 minutos del centro urbano de Estepona, esta magnífica parcela de 46...

0
0 opiniones

Terreno en calle Guatemala

Malaga, Estepona, Costa Natura, Calle Guatemala
295 000 €

Parcela Calle Guatemala Descubre una oportunidad excepcional para construir tu v...

0
0 opiniones
Llamada

Utilizamos cookies propias y de terceros para analizar el uso del sitio web y mostrarte publicidad relacionada con tus preferencias sobre la base de un perfil elaborado a partir de tus hábitos de navegación (por ejemplo, páginas visitadas). Más información. ¿Aceptas las cookies?