Terreno en calle Guatemala

Malaga, Estepona, Costa Natura, Calle Guatemala
295 000 €
Dejar reseña
Urbanizable Tipo de propiedad
630 m² Superficie del terreno
Residencial Uso de parcela
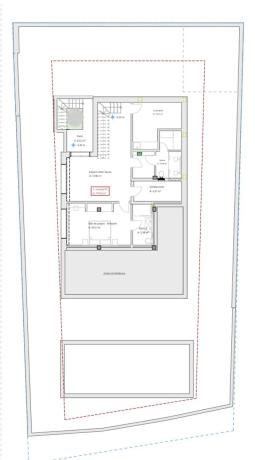
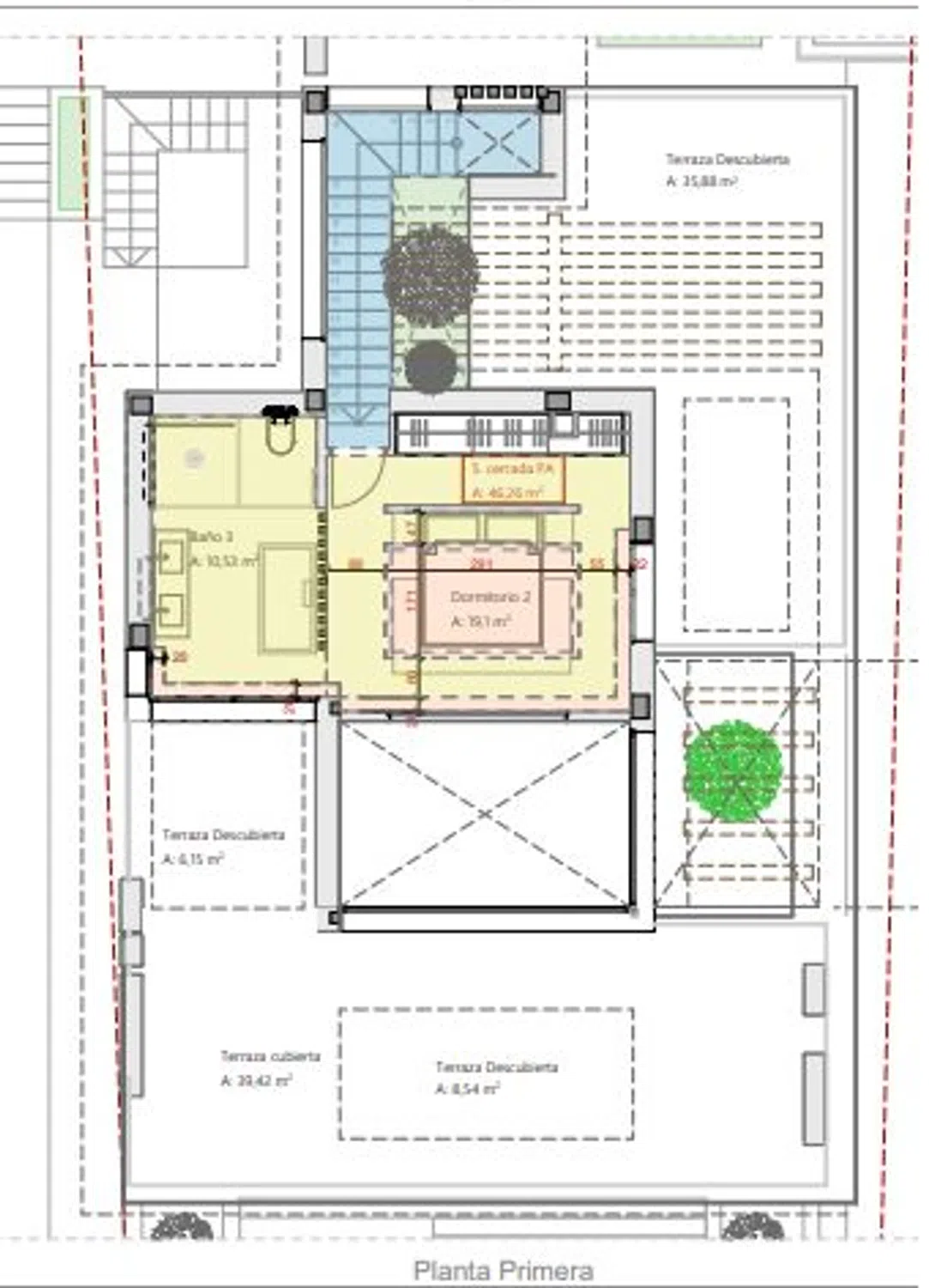
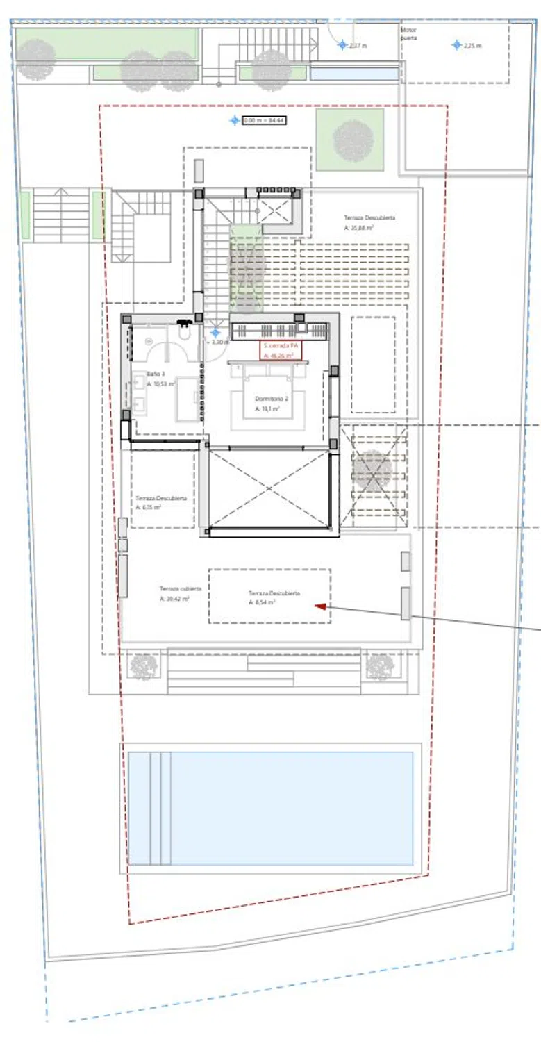
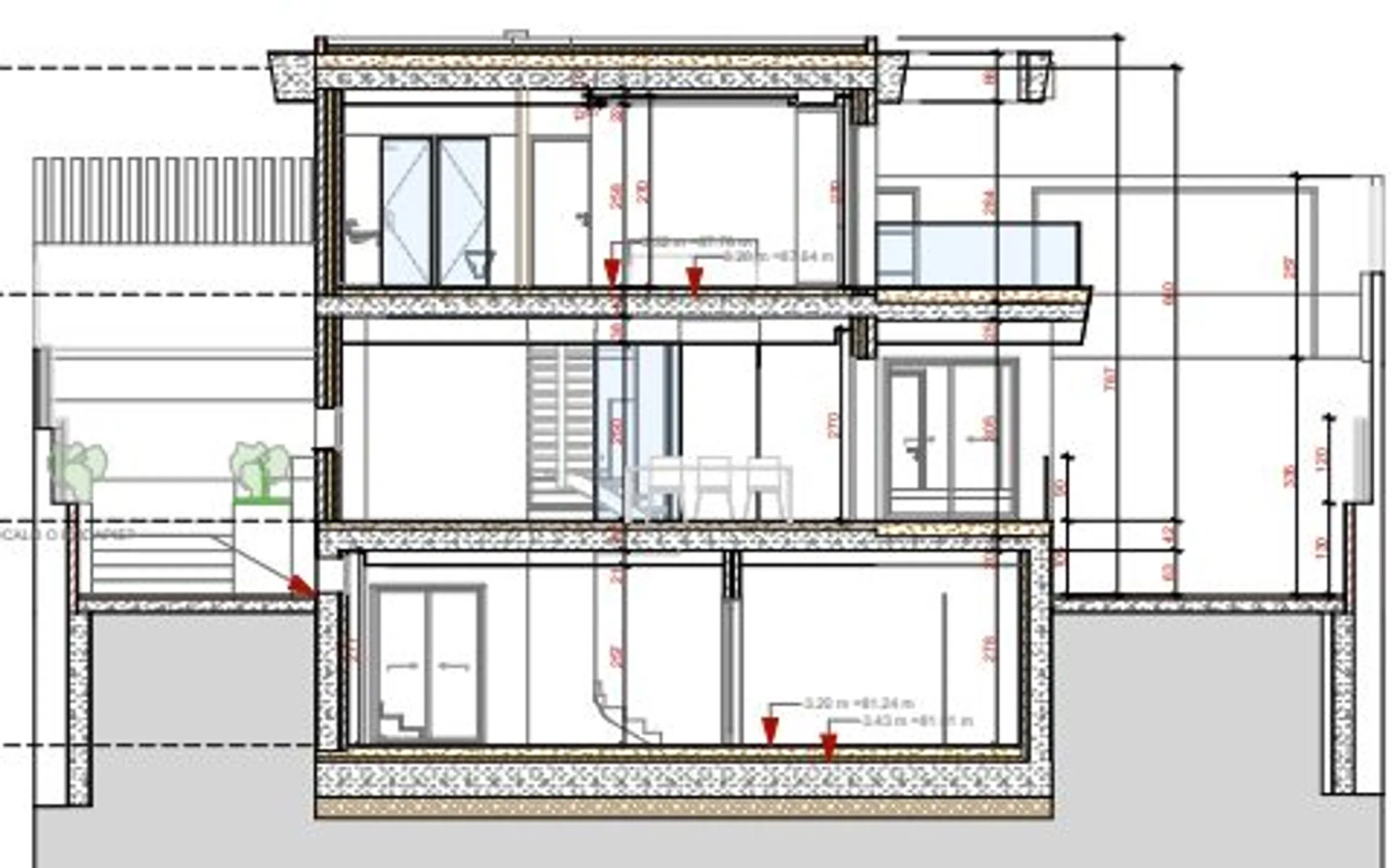
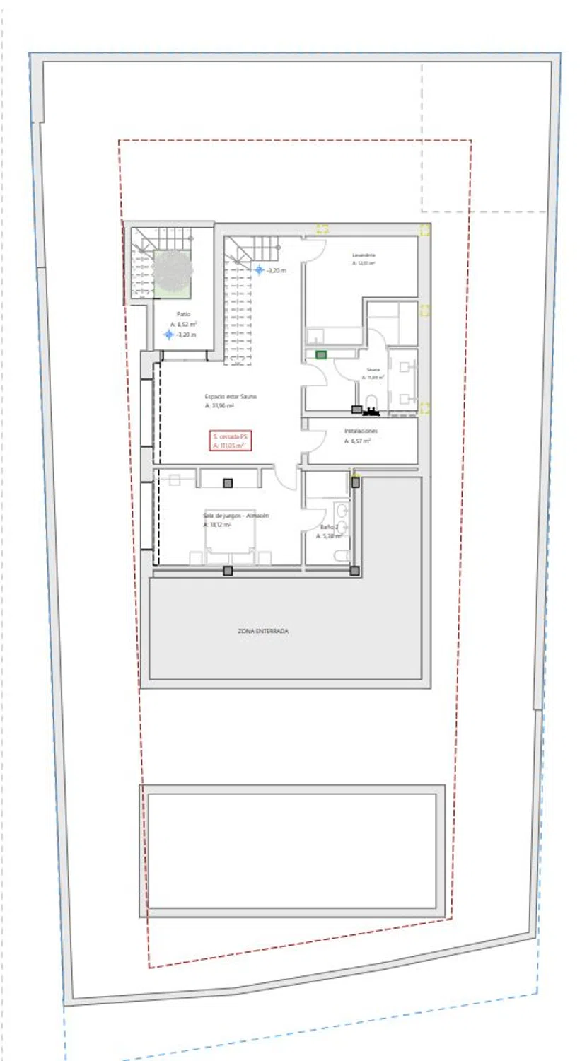
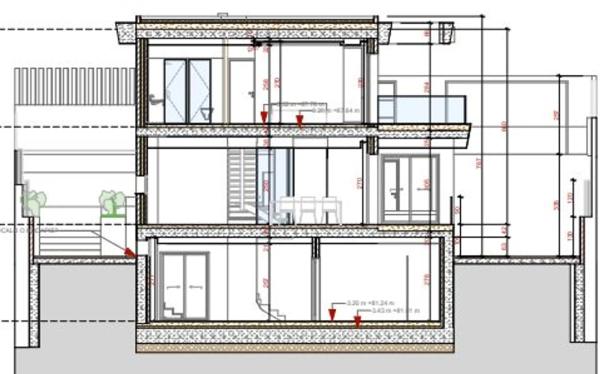
Parcela Calle Guatemala Descubre una oportunidad excepcional para construir tu villa de lujo en una de las calles más prestigiosas de Estepona — Calle Guatemala en Valle Romano. Esta parcela elevada orientada al sur está perfectamente ubicada en un enclave residencial codiciado donde las villas recién construidas se venden entre €1.5M y €2.5M, lo que la convierte no solo en una ubicación ideal para una casa de ensueño sino también en una inversión de alto potencial. Esta parcela prime viene con un permiso de construcción completo y licencia de obra, lo que te permite empezar la construcción de inmediato. El proyecto aprobado incluye una impresionante villa de 3 dormitorios en suite con vistas panorámicas sobre las montañas de Sierra Bermeja, el exuberante Campo de Golf Valle Romano, y el resplandeciente Mar Mediterráneo. También existe la posibilidad de personalizar el sótano para incluir un cuarto dormitorio, gimnasio, spa, sala de juegos o cine — creando la propiedad de estilo de vida definitiva adaptada a tus necesidades. Valle Romano se está convirtiendo rápidamente en una de las áreas residenciales más deseables de la Costa del Sol. A solo 5 minutos de la playa y del encantador centro de Estepona, este tranquilo barrio junto al golf ofrece el equilibrio perfecto entre privacidad, prestigio y conveniencia. La zona cuenta con dos campos de golf de 18 hoyos, un hospital moderno, escuelas internacionales, restaurantes gourmet y opciones de compras de primera categoría. La infraestructura de Estepona sigue evolucionando, lo que la convierte en una opción ideal tanto si te estás jubilando con estilo, criando una familia o invirtiendo en un mercado en crecimiento. Con el Aeropuerto Internacional de Málaga a solo 50 minutos y Marbella a solo 20 minutos, esta ubicación ofrece un acceso inigualable a lo mejor de la Costa del Sol. Esto es más que un terreno: es la base de tu futuro. Contáctanos hoy para más detalles o para organizar una visita.

Características de la propiedad

Complex information

  • Tipo de propiedad
    Urbanizable

Datos de la propiedad

  • Tipo de la propiedad
    Segunda mano

Superficies

  • Superficie del terreno
    630 m²

Base

  • Uso de parcela
    Residencial

Estadísticas de precios del mercado para Terreno en calle Guatemala

Mapa

Malaga, Estepona, Costa Natura, Calle Guatemala Ir a la propiedad
Deja una opinión sobre Terreno en calle Guatemala
0
0 reseñas
1
0% (0)
2
0% (0)
3
0% (0)
4
0% (0)
5
0% (0)
Engel & Völkers Estepona
295 000 €
Contactar con la plataforma

para obtener más información contacta con el catálogo

REF: 242072

Opiniones sobre Terreno en calle Guatemala
Loading...

No reviews have been left for this object yet

Propiedades más cercanas

Explora propiedades cercanas que hemos descubierto en las proximidades de esta ubicación.

Terreno en Barrio Valle Romano Golf

Malaga, Estepona, Costa Natura, Barrio Valle Romano Golf
450 000 €

Excepcional oportunidad para construir la villa de tus sueños en Valle Romano...

0
0 opiniones

Terreno en calle Nicaragua s/n

Malaga, Estepona, Costa Natura, Calle Nicaragua s/n
210 000 €

Construir la casa de tus sueños con vistas al mar Situado en la codiciada zona d...

0
0 opiniones

Terreno en calle Guatemala, 198 -224

Malaga, Estepona, Costa Natura, Calle Guatemala, 198 -224
350 000 €

Parcela en venta en Estepona – 880 m² con opciones de desarrollo flexibles Esta...

0
0 opiniones

Terreno en Altos de Estepona

Malaga, Estepona, Altos de Estepona, Altos de Estepona
380 000 €

Parcela rústica a la venta en la zona de Los Reales con 36.865 metros de terreno...

0
0 opiniones

Terreno en Barrio Buenas Noches

Malaga, Estepona, Playa Bahía Dorada, Barrio Buenas Noches
270 000 €

Oportunidad excepcional de adquirir una estupenda parcela de 569 m² en una de la...

0
0 opiniones

Terreno en Barrio Centro

Malaga, Estepona, Estepona Pueblo, Barrio Centro
280 000 €

Oportunidad única de adquirir una estupenda parcela de 630 m² a tan solo 5 minut...

0
0 opiniones

Terreno en Barrio Valle Romano Golf

Malaga, Estepona, Costa Natura, Barrio Valle Romano Golf
300 000 €

Presentamos una magnífica parcela de 800 m² ubicada a tan solo 5 minutos del cen...

0
0 opiniones

Terreno en Barrio Valle Romano Golf

Malaga, Estepona, Costa Natura, Barrio Valle Romano Golf
220 000 €

A tan solo 5 minutos del centro urbano de Estepona, esta magnífica parcela de 46...

0
0 opiniones

Terreno en calle Guatemala

Malaga, Estepona, Costa Natura, Calle Guatemala
295 000 €

Parcela Calle Guatemala Descubre una oportunidad excepcional para construir tu v...

0
0 opiniones
Llamada

Utilizamos cookies propias y de terceros para analizar el uso del sitio web y mostrarte publicidad relacionada con tus preferencias sobre la base de un perfil elaborado a partir de tus hábitos de navegación (por ejemplo, páginas visitadas). Más información. ¿Aceptas las cookies?