España Obra nueva España Obra nueva Murcia Obra nueva Molina de Segura MOD. 10.2.0 - LQ550 / Casa independiente en La Quinta

Obra nueva MOD. 10.2.0 - LQ550 / Casa independiente en La Quinta en Molina de Segura (Revista)

Murcia, Molina de Segura, Romeral, Calle Escritor Andrés Blanco s/n
desde 401 000 €
Dejar reseña
Superficie
Cantidad de dormitorios
Baños
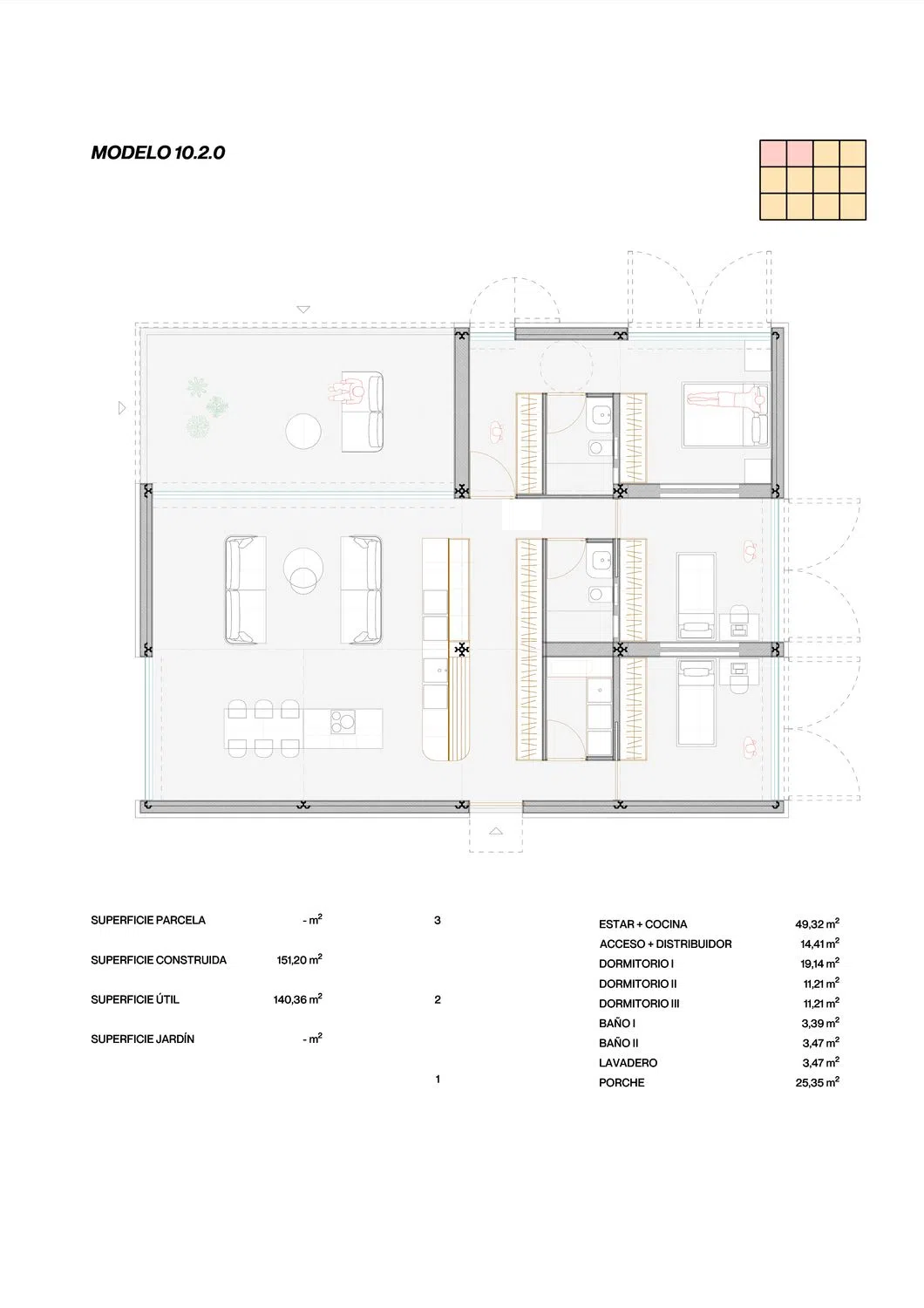
// VIVIENDA PREMIUM / CONFORT, NATURALEZA y ACCESIBILIDAD // ¡Vive en un entorno único! La promoción LQ550 te invita a descubrir una forma de vida distinta, pensada para quienes buscan calidad, confort y un espacio dónde la naturaleza y la contemporaneidad se fusionan. Además, ha sido concebida con un diseño accesible, facilitando la movilidad sin ninguna barrera para cualquier usuario, desde el exterior hasta el interior de la misma. Esta promoción te ofrece una vivienda excepcional, diseñada para adaptarse a tu estilo de vida, con amplios espacios y una ubicación inmejorable en la urbanización de La Quinta en Molina de Segura, Murcia. LQ550 se caracteriza por su diseño moderno, funcional y adaptado a las necesidades actuales. Con una distribución que maximiza la luminosidad y el aprovechamiento del espacio, este hogar está pensado para ofrecerte una experiencia única de confort y bienestar. Se han desarrollado diversos modelos del SISTEMA LaM para presentar distintas opciones del proyecto, permitiendo su adaptación a los requisitos específicos de cada usuario. No pierdas la oportunidad de formar parte de esta exclusiva urbanización, situada a tan solo 14 km del centro de Murcia. LQ550 no es sólo una casa, es una experiencia de vida pensada para quienes aprecian la armonía entre lo urbano y lo natural. IMAGEN 1 (PORTADA): Vivienda con fachada revestida en paneles Equitone: 411 mil € IMAGEN 2: Vivienda con fachada acabada en chapa de gran onda perforada, lacada en blanco: 401 mil € * Precio (Impuestos no incluidos) // CALIDADES INCLUIDAS // - Elección de: Revestimiento de fachada revestida en paneles Equitone (fibrocemento modelo LINEA 1200X2500, color a elección) Revestimiento de fachada acabada en chapa de gran onda perforada, lacada en blanco - Ventana corredera minimalista de aluminio y gran formato - Fachada plegable manual - Domótica básica - Aerotermo - Pavimento porcelánico de 90x90 para suelos y alicatado de gran formato 90x270 - Vallado parcela - Puerta acceso parcela motorizada - Iluminación interior led - Puerta acceso vivienda manual - Puertas de paso interior vivienda - Sanitarios: Inodoro suspendido y lavabo sobre encimera - Mueble lavabo de madera lamina color a elegir75cm - Cisterna empotrada en baños - Ducha de obra en baños - Mampara fija - Grifería con acabados a elegir inox o cromo - Armarios con puertas batientes de madera laminada color a elegir e iluminación led integrada (frentes, revestimiento interior y barras) - Lucernario motorizado con cúpula de vidrio solar en baños - Tabiquería premium modelo Habito - Falso techo premium 4Pro - Foseado en falso techo - Preinstalación conductos de aire // ESTANCIAS INCLUIDAS // - Salón - Cocina - 2-3 Dormitorios - 1-2 Baños - Lavadero - Solárium - Jardín - Porche - Garaje abierto // ESTANCIAS OPCIONALES // - Garaje en sótano - Trastero - Piscina - Jacuzzi - Sauna - Baño exterior - Barbacoa - Escalera exterior a solárium - Vivienda en primera planta (2 alturas) // EXTRAS OPCIONALES // - Fachada basculante motorizada - Suelo radiante / refrescante - Maquinaria climatización por conductos - Fotovoltaica - Domótica premium - Descalcificador - Ventana minimalista 3.6 motorizada - Puerta acceso vivienda motorizada - Estores - Mobiliario interior - Iluminación exterior - Vegetación jardín * Precio (Impuestos no incluidos) // SISTEMA LaM // - Premium - Personalizable - Domótico - Tecnológico - Eficiencia Energética A - Autosuficiente - Sostenible - Residuos 0 - Industrializado - Modular - Transportable - Tiempos reducidos - Accesible // FABRICANTES // INCOPERFIL – EQUITONE – ALUGOM – VELUX - LIVING CERAMIC – LG – GIRA - SCHLÜTER® SYSTEM – BANDALUX – SAITRA – LAGRAMA - COOKING SURFACE – PANDO – TRES GRIFERÍA - CATALANO - ROCA – GEBERIT - KAVE HOME // OBSERVACIONES // Exclusiva promoción de obra nueva modular sobre plano con infografía

Promociones destacadas en España

10 unidades

Nature Views 2

Alicante, Torrevieja, Los Balcones - Los Altos del Edén, Denia s/n
310 000 € - 379 000 €
1 unidades

Hotel en venta en Benidorm centro

Alicante, Benidorm, Playa de Poniente
2 250 000 € - 2 250 000 €
28 unidades

Residencial Los Balcones De Calpe

Alicante, Calpe, Calpe Pueblo, Avenida de Madrid, 1
299 000 € - 892 125 €
4 unidades

Nature Views

Alicante, Torrevieja, Lago Jardín II, Avenida Denia s/n
309 000 € - 330 000 €
5 unidades

ALONIS VILLAS

Alicante, La Villajoyosa / Vila Joiosa, Platja de Torres, Partida Torres s/n
675 000 € - 775 000 €
1 unidades

Residencial Royal Beach

Alicante, Guardamar del Segura, pueblo, Miguel Hernández 102
349 500 € - 349 500 €
7 unidades

Royal Star

Alicante, Guardamar del Segura
229 500 € - 269 500 €
Esta información ha sido obtenida de fuentes públicas y puede no estar actualizada. No representa un vínculo con la promotora

Características de la propiedad

Complex information

Datos de la propiedad

  • Tipo de la propiedad
    Obra nueva

Base

Certificación energética

  • CEE Emisión
    A

Estadísticas de precios del mercado para MOD. 10.2.0 - LQ550 / Casa independiente en La Quinta

343 997 € (1 758 €/m2)
Precio promedio de propiedades primarias Casas en la ciudad Molina de Segura
209 802 € (1 805 €/m2)
Precio promedio de propiedades primarias Pisos en la ciudad Molina de Segura
321 580 € (2 477 €/m2)
Precio promedio de propiedades primarias Casas en el distrito Romeral
315 000 € (2 588 €/m2)
Precio promedio de propiedades primarias Pisos en el distrito Romeral

Mapa

Murcia, Molina de Segura, Romeral, Calle Escritor Andrés Blanco s/n Ir a la propiedad
Deja una opinión sobre MOD. 10.2.0 - LQ550 / Casa independiente en La Quinta
0
0 reseñas
1
0% (0)
2
0% (0)
3
0% (0)
4
0% (0)
5
0% (0)
LA MIRATECA real estate SL
401 000 €
Contactar con la plataforma

para obtener más información contacta con el catálogo

REF: 449577

Opiniones sobre MOD. 10.2.0 - LQ550 / Casa independiente en La Quinta
Loading...

No reviews have been left for this object yet

Propiedades más cercanas

Explora propiedades cercanas que hemos descubierto en las proximidades de esta ubicación.

1 unidades

Obra nueva Villa Galata en Molina de Segura

Murcia, Molina de Segura, Romeral, Calle Doñana La Alcayna s/n
407 000 € - 407 000 €

Disfruta del estilo de vida que siempre has soñado en esta maravillosa villa de...

0
0 opiniones
15 unidades

Obra nueva Naturae Golf Altorreal en Molina de Segura

Murcia, Molina de Segura, Romeral, Calle de las Marismas , Urbanización Altorreal s/n
259 900 € - 369 900 €

Inmuebles en Naturae Golf Altorreal En el corazón de un paisaje natural, se sit...

0
0 opiniones
4 unidades

Obra nueva Edificio Gala en Molina de Segura

Murcia, Molina de Segura, Molina de Segura, Avenida del Chorrico, 1
450 000 € - 475 000 €

Próxima construcción en Molina de Segura, Avda. del Chorrico con Avda. Menéndez...

0
0 opiniones
2 unidades

Obra nueva VI,Pz,Tr-cl Alfonso X Sabio- Molina Segu en Molina de Segura

Murcia, Molina de Segura, Molina de Segura, Calle Alfonso X El Sabio
5 600 € - 73 600 €

Promoción de pisos de 3 dormitorios, con 1 o 2 baños, situados en edificio pluri...

0
0 opiniones
7 unidades

Obra nueva Los Álamos de Molina Fase 3 en Molina de Segura

Murcia, Molina de Segura, Molina de Segura, Calle del Oeste s/n
190 000 € - 219 000 €

Disfruta de tu dúplex unifamiliar de obra nueva en Molina del Segura, Murcia. s...

0
0 opiniones
1 unidades

Obra nueva Naturae Altorreal en Molina de Segura

Murcia, Molina de Segura, Romeral, Avenida del Golf, Altorreal s/n
239 900 € - 239 900 €

En la Urbanización Altorreal, en Murcia, encontramos la promoción NATURAE ALTORR...

0
0 opiniones
8 unidades

Obra nueva 930008091 en Molina de Segura

Murcia, Molina de Segura, Molina de Segura
180 000 € - 180 000 €

Promoción de 30 viviendas situada en la localidad de Molina de Segura, Murcia.

0
0 opiniones
2 unidades

Obra nueva Villas La Quinta en Molina de Segura

Murcia, Molina de Segura
379 000 € - 379 000 €

Inmuebles en Villas La Quinta IIIDescubra estas excepcionales villas en el entor...

0
0 opiniones

Villa Loma de Gualay

Murcia, Molina de Segura, Romeral, Calle Loma de Gualay s/n
-

Exclusiva vivienda unifamiliar aislada ideal para quienes buscan un hogar de est...

0
0 opiniones

Utilizamos cookies propias y de terceros para analizar el uso del sitio web y mostrarte publicidad relacionada con tus preferencias sobre la base de un perfil elaborado a partir de tus hábitos de navegación (por ejemplo, páginas visitadas). Más información. ¿Aceptas las cookies?