Obra nueva Residencial Miguel de Cervantes en Argés (Revista)

Toledo, Argés, Calle Miguel de Cervantes s/n
desde 166 000 €
Dejar reseña
Superficie
Cantidad de dormitorios
Baños
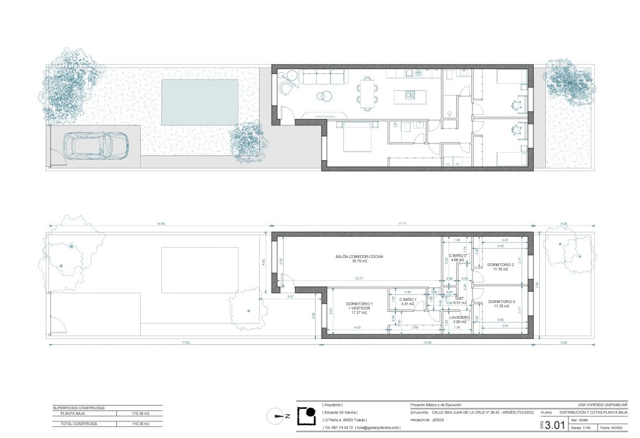
SAFIRA HOUSE - Obra nueva en Argés (Toledo), a tu gusto. Safira House ofrece en exclusiva promoción de viviendas personalizables: elige distribución, acabados y extras(como piscina) para adaptar tu casa a tus necesidades. CONSTRUCCIÓN TRADICIONAL DE LADRILLO, TANTO LA FACHADA EXTERIOR COMO LA DIVISIÓN INTERIOR, con memoria de calidades disponible para que veas todos los detalles. Parcelas de 270 m2 (esquinas 390 m2, consultar disponibilidad). Viviendas de 110 m2, con 3 dormitorios, 2 baños y aerotermia con suelo radiante. También existe la posibilidad de viviendas de 2 dormitorios y menos metros, lo que hace que baje el precio. Preguntad sin compromiso, ya que nos adaptamos al cliente y a cualquier opción posible para que todos puedan disfrutar de una vivienda a su gusto. Ubicación inmejorable: entorno tranquilo у natural, a 10 min de Toledo, cerca de Puy du Fou España, colegios, hospitales y centros comerciales, con excelentes conexiones por carretera y transporte público. Forma de pago: Ofrecemos formas de pago flexibles y un departamento financiero opcional para acompañarte durante todo el proceso. Parcela 20.000€ más IVA. Preguntarnos por la vivienda que mas se adapte a lo que estáis buscando y os decimos precio total con todos los gastos incluidos. *Visita nuestras viviendas ya terminadas, similares a está promoción, para que puedas verte en ella y ver los maravillosos acabados* ¡Contactános sin ningun compromiso, os esperamos! Safira House.

Promociones destacadas en España

10 unidades

Nature Views 2

Alicante, Torrevieja, Los Balcones - Los Altos del Edén, Denia s/n
310 000 € - 379 000 €
1 unidades

Hotel en venta en Benidorm centro

Alicante, Benidorm, Playa de Poniente
2 250 000 € - 2 250 000 €
28 unidades

Residencial Los Balcones De Calpe

Alicante, Calpe, Calpe Pueblo, Avenida de Madrid, 1
299 000 € - 892 125 €
4 unidades

Nature Views

Alicante, Torrevieja, Lago Jardín II, Avenida Denia s/n
309 000 € - 330 000 €
5 unidades

ALONIS VILLAS

Alicante, La Villajoyosa / Vila Joiosa, Platja de Torres, Partida Torres s/n
675 000 € - 775 000 €
1 unidades

Residencial Royal Beach

Alicante, Guardamar del Segura, pueblo, Miguel Hernández 102
349 500 € - 349 500 €
7 unidades

Royal Star

Alicante, Guardamar del Segura
229 500 € - 269 500 €
Esta información ha sido obtenida de fuentes públicas y puede no estar actualizada. No representa un vínculo con la promotora

Características de la propiedad

Complex information

Datos de la propiedad

  • Tipo de la propiedad
    Obra nueva

Base

Estadísticas de precios del mercado para Residencial Miguel de Cervantes

212 000 € (1 768 €/m2)
Precio promedio de propiedades primarias Casas en la ciudad Argés

Mapa

Toledo, Argés, Calle Miguel de Cervantes s/n Ir a la propiedad
Deja una opinión sobre Residencial Miguel de Cervantes
0
0 reseñas
1
0% (0)
2
0% (0)
3
0% (0)
4
0% (0)
5
0% (0)
Safira House
166 000 €
Contactar con la plataforma

para obtener más información contacta con el catálogo

REF: 450073

Opiniones sobre Residencial Miguel de Cervantes
Loading...

No reviews have been left for this object yet

Propiedades más cercanas

Explora propiedades cercanas que hemos descubierto en las proximidades de esta ubicación.

Obra nueva Residencial San Blas en Burguillos de Toledo

Toledo, Burguillos de Toledo
-

TOLEHOGAR VENDE¡OBRA NUEVA EN AUTOPROMOCION!SE VENDE 10 VIVIENDA PAREADAS CON PR...

0
0 opiniones
1 unidades

Obra nueva Alonso Cano Village en Argés

Toledo, Argés
198 000 € - 198 000 €

AGENCIA INMOBILIARIA DE TOLEDO - zona AVENIDA DE EUROPA - zona PLAZA DE TOROS -...

0
0 opiniones

Obra nueva Lago de Sanabria en Argés

Toledo, Argés
-

PROMOCIÓN DE OBRA NUEVA EN ARGÉS, ZONA AHORRAMÁS.Con la mayor comodidad y eficie...

0
0 opiniones
1 unidades

Obra nueva Chalet pareado en Burguillos de Toledo en Burguillos de Toledo

Toledo, Burguillos de Toledo
214 900 € - 214 900 €

Marín Lara Gestión inmobiliaria Vende Magnifico Chalet De OBRA NUEVA, en Burguil...

0
0 opiniones

Obra nueva Urbanización Olivar Real en Argés

Toledo, Argés
-

AUTOPROMOCIÓNChalet adosados, de una planta, 114m². de superficie construida y 2...

0
0 opiniones
2 unidades

Obra nueva Urbanización los Almendros en Cobisa

Toledo, Cobisa
249 000 € - 269 000 €

Inmuebles en Urbanización los Almendros ¡LA SEGUNDA FASE ESTÁ EN MARCHA! Aquí se...

0
0 opiniones
1 unidades

Obra nueva Residencial Aura en Burguillos de Toledo

Toledo, Burguillos de Toledo
179 000 € - 179 000 €

Cómoda distribución en una planta: salón – comedor, 3 dormitorios, 2 baños, el d...

0
0 opiniones
3 unidades

Obra nueva Residencial Cava Baja 3 en Distrito Casco Histórico

Toledo, Distrito Casco Histórico, Casco Historico, Calle Cava Baja, 3
255 600 € - 305 100 €

Nueva promoción de 5 viviendas situadas en la calle Cava Baja en el Casco Histór...

0
0 opiniones
2 unidades

Autopromoción Garbel Proyectos y Construcciones

Toledo, Argés
155 000 € - 155 000 €

Personaliza la vivienda a tu gusto. Cualquier propuesta de cambio o mejora será...

0
0 opiniones

Utilizamos cookies propias y de terceros para analizar el uso del sitio web y mostrarte publicidad relacionada con tus preferencias sobre la base de un perfil elaborado a partir de tus hábitos de navegación (por ejemplo, páginas visitadas). Más información. ¿Aceptas las cookies?