España Obra nueva España Obra nueva Toledo Obra nueva Argés Alonso Cano Village Casa o chalet independiente en venta en calle Alonso Cano, 11

Casa o chalet independiente en venta en calle Alonso Cano, 11, Argés

Agotado
Dejar reseña
Chalet independiente Tipo de propiedad
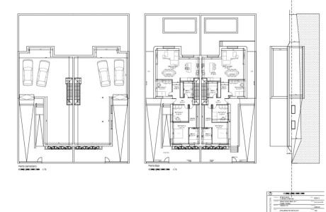
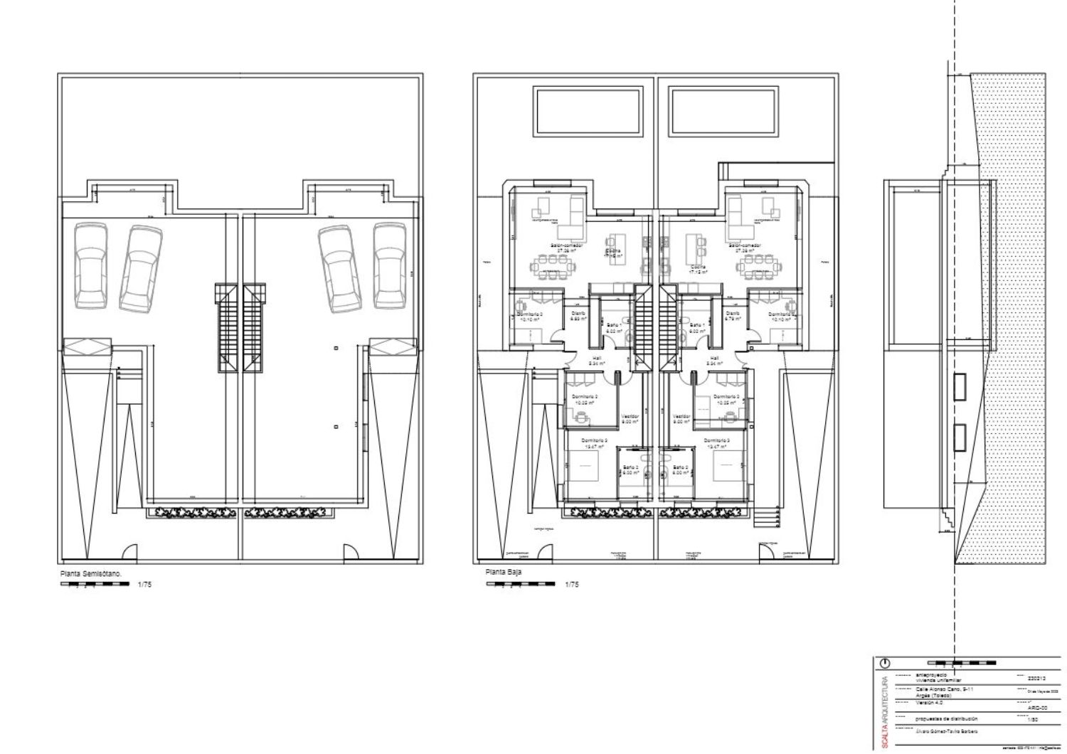
135 m² m2 construidos
2 Baños
3 Dormitorios
En construcción Estado Promoción
1 Planta
AGENCIA INMOBILIARIA DE TOLEDO - zona AVENIDA DE EUROPA - zona PLAZA DE TOROS - Vende CHALET DE OBRA NUEVA en pleno centro de ARGÉS-.VIVIENDA de 135 m2 en UNA SOLA PLANTA (accesible 100% desde la calle) y SÓTANO diáfano de 150 m2, sobre PARCELA DE 313 m2. · 3 DORMITORIOS (el dormitorio principal con vestidor y baño en suite)· ARMARIOS EMPOTRADOS (uno de ellos en el pasillo de entrada)· 2 BAÑOS completos (uno de ellos en suite dentro del dormitorio principal)· amplio SALÓN, con salida al patio trasero· COCINA abierta· GARAJE / SÓTANO de 150 m2 diáfano· PATIOS delantero y TRASERO, además de contar con un porche lateral cerradoLa vivienda cuenta con una excelente LUMINOSIDAD y confort extraordinarios, además esta pensada para tener una gran EFICIENCIA ENERGÉTICA a añadir.VIVIENDA ACTUALMENTE EN CONSTRUCCIÓN, disponemos de planos y proyecto de obra, consúltenos para más info.*La piscina, arreglos de jardín y mobiliario, NO están incluidos en el precio*La zona donde se encuentran las viviendas se sitúa en pleno centro de Argés, tras el supermercado La Despensa, y apenas metros de otros servicios cercanos como farmacias, colegios, parada de bus y otros comercios locales de proximidad.

Características de la propiedad

Complex information

  • Complejo residencial
    Alonso Cano Village
  • Tipo de propiedad
    Chalet independiente

Información del proyecto / Estado de obra

  • Estado Promoción
    En construcción

Datos de la propiedad

  • Tipo de cocina
    Cocina americana
  • Planta
    1
  • Dormitorios
    3
  • Baños
    2
  • m2 construidos
    135 m²
  • Tipo de la propiedad
    Obra nueva

Certificación energética

  • Consumo energético
    B

Instalaciones

Comodidades de la vivienda:

Armarios empotrados
Despensa
Calefacción

En edificio:

Piscina
Jardin
Sótano

Estado:

Obra nueva
En construcción

Estadísticas de precios del mercado para Casa o chalet independiente en venta en calle Alonso Cano, 11

Mapa

Toledo, Argés Ir a la propiedad
Deja una opinión sobre Casa o chalet independiente en venta en calle Alonso Cano, 11
0
0 reseñas
1
0% (0)
2
0% (0)
3
0% (0)
4
0% (0)
5
0% (0)
Alonso Cano Village
Complejo residencial
Agotado
Contactar con la plataforma

para obtener más información contacta con el catálogo

REF: 6243

Opiniones sobre Casa o chalet independiente en venta en calle Alonso Cano, 11
Loading...

No reviews have been left for this object yet

Propiedades más cercanas

Explora propiedades cercanas que hemos descubierto en las proximidades de esta ubicación.

Obra nueva Alonso Cano Village en Argés

Toledo, Argés
198 000 €

AGENCIA INMOBILIARIA DE TOLEDO - zona AVENIDA DE EUROPA - zona PLAZA DE TOROS -...

0
0 opiniones

Chalet independiente en Venta, Cobisa

Toledo, Cobisa
219 000 €

¡SEGUNDA FASE EN PROYECTO!Modelo 1 planta unitaria.Salón-comedor, 2 baños, 4 dor...

0
0 opiniones

Chalet independiente en Venta, Cobisa

Toledo, Cobisa
249 000 €

¡SEGUNDA FASE EN PROYECTO!Modelo 2 chalet de 2 plantas más semisótano. Compuesto...

0
0 opiniones

Obra nueva Urbanización los Almendros en Cobisa

Toledo, Cobisa
269 000 €

¡LA SEGUNDA FASE ESTÁ EN MARCHA! Aquí se ofrece una excepcional oportunidad en...

0
0 opiniones

Obra nueva Urbanización los Almendros en Cobisa

Toledo, Cobisa
249 000 €

¡LA SEGUNDA FASE ESTÁ EN MARCHA! Aquí se ofrece una excepcional oportunidad en...

0
0 opiniones

Utilizamos cookies propias y de terceros para analizar el uso del sitio web y mostrarte publicidad relacionada con tus preferencias sobre la base de un perfil elaborado a partir de tus hábitos de navegación (por ejemplo, páginas visitadas). Más información. ¿Aceptas las cookies?