Venta de chalet adosado en , Grisén

Agotado
Dejar reseña
Adosados Tipo de propiedad
4 Dormitorios
2025 Año de entrega
157 m² m2 construidos
2 Baños
III Trimestre Fecha de entrega
Suelo Radiante Calefacción
Incluido en el precio Garaje
2 Planta
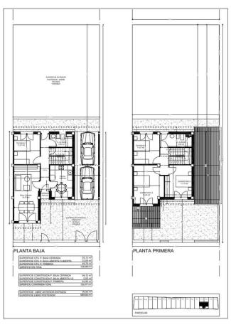
RESIDENCIAL AVENIDA DE LA ESTACIÓN, EN GRISÉN. PRÓXIMO INICIO DE OBRAS.Promoción de 4 exclusivas viviendas pareadas, combinando lo mejor de dos mundos, la tranquilidad del campo a menos de media hora del centro de Zaragoza y menos de cinco minutos de las instalaciones de Stellantis – Opel España.En la Avenida de la Estación, perfectamente ubicado en un oasis de paz, el lugar ideal para descansar y relajarse dejando el estrés del trabajo o de la ciudad.Viviendas excepcionales con las mejores calidades, energéticamente eficientes, con climatización suelo radiante-refrescante mediante sistema de aerotermia individual, suelos de mármol en salón, hall y escaleras, gres porcelánico imitación madera en dormitorios; puerta de entrada de madera de iroko, carpintería exterior de madera de iroko, ventanas con microventilación, oscilobatientes; cocinas totalmente equipadas. Excelente distribución, adaptada a los gustos y necesidades actuales. En planta baja encontramos un amplio salón comedor rectangular, ideal para diferenciar en dos ambientes y con gran cristalera al jardín delantero, cocina con espacio para comer y zona de trabajo, cuarto de baño completo y un dormitorio doble con ventana al jardín trasero. En planta primera tres dormitorios dobles y un baño completo.Jardín delantero, de aproximadamente 35 metros, con garaje en el lateral de la vivienda y gran jardín trasero de aproximadamente 100 metros.Promueve Construcciones y Reformas Lázaro & Navarro, S. L. , comercializa Fincas San Carlos, teléfonos y Infórmese sin compromiso.

Características de la propiedad

Complex information

  • Complejo residencial
    Residencial Avenida Estación Grisén
  • Tipo de propiedad
    Adosados

Información del proyecto / Estado de obra

  • Año de entrega
    2025
  • Fecha de entrega
    III Trimestre

Memoria de Calidades

  • Calefacción
    Suelo Radiante

Datos de la propiedad

  • Garaje
    Incluido en el precio
  • Planta
    2
  • Dormitorios
    4
  • Baños
    2
  • m2 construidos
    157 m²
  • Tipo de la propiedad
    Obra nueva

Certificación energética

  • Consumo energético
    No indicado

Instalaciones

Comodidades de la vivienda:

Ventana exterior

En edificio:

Jardin

Estadísticas de precios del mercado para Chalet pareado en venta en avenida de la estación s/n

Mapa

Zaragoza, Grisén Ir a la propiedad
Deja una opinión sobre Chalet pareado en venta en avenida de la estación s/n
0
0 reseñas
1
0% (0)
2
0% (0)
3
0% (0)
4
0% (0)
5
0% (0)
Agotado
Contactar con la plataforma

para obtener más información contacta con el catálogo

REF: 81116

Opiniones sobre Chalet pareado en venta en avenida de la estación s/n
Loading...

No reviews have been left for this object yet

Propiedades más cercanas

Explora propiedades cercanas que hemos descubierto en las proximidades de esta ubicación.

Chalet adosado en venta en Fernando Zamora

Zaragoza, Grisén
135 000 €

EBROFINCAS LES OFRECE CASA ADOSADA AÑO 2007.La Casa se distribuye:- S-1 con Bode...

0
0 opiniones

Chalet pareado en venta en avenida de la estación s/n

Zaragoza, Grisén
236 500 €

RESIDENCIAL AVENIDA DE LA ESTACIÓN, EN GRISÉN. PRÓXIMO INICIO DE OBRAS.Promoción...

0
0 opiniones

Chalet pareado en venta en avenida de la estación s/n

Zaragoza, Grisén
236 500 €

RESIDENCIAL AVENIDA DE LA ESTACIÓN, EN GRISÉN. PRÓXIMO INICIO DE OBRAS.Promoción...

0
0 opiniones

Chalet pareado en venta en avenida de la estación s/n

Zaragoza, Grisén
236 500 €

RESIDENCIAL AVENIDA DE LA ESTACIÓN, EN GRISÉN. PRÓXIMO INICIO DE OBRAS.Promoción...

0
0 opiniones

Chalet pareado en venta en avenida de la estación s/n

Zaragoza, Grisén
236 500 €

RESIDENCIAL AVENIDA DE LA ESTACIÓN, EN GRISÉN. PRÓXIMO INICIO DE OBRAS.Promoción...

0
0 opiniones

Chalet pareado en venta en avenida de la estación s/n

Zaragoza, Grisén
236 500 €

RESIDENCIAL AVENIDA DE LA ESTACIÓN, EN GRISÉN. PRÓXIMO INICIO DE OBRAS.Promoción...

0
0 opiniones

Utilizamos cookies propias y de terceros para analizar el uso del sitio web y mostrarte publicidad relacionada con tus preferencias sobre la base de un perfil elaborado a partir de tus hábitos de navegación (por ejemplo, páginas visitadas). Más información. ¿Aceptas las cookies?