Vente de chalet mitoyen à Calle Rúa Riveiro, 10 , Oleiros

La Corogne, Oleiros, Perillo, Calle Rúa Riveiro, 10
Vendre
Laisser un commentaire
Maisons mitoyennes Type de bien
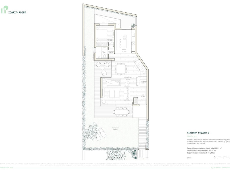
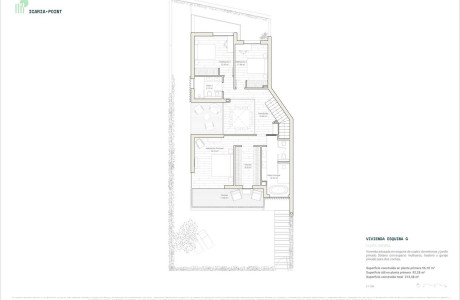
313 m² m2 construits
3 Salles de bains
4 Chambres
3 Plante
Icaria Point consta de siete viviendas adosadas en hilera, que conforman una urbanización cerrada y privada, dentro de la propia Urbanización Icaria IV. Cuentan con zonas comunes de acceso a garajes, espacios verdes y piscina.El concepto del diseño se basa en el uso de la geometría sencilla y el uso de la luz, mediante espacios abiertos interiores y ventanales, que generan, junto con las zonas de altos techos y la orientación sur de las principales estancias, una atmósfera agradable, cálida y luminosa en continuo contacto con el exterior.Su planta quebrada, vertebra los espacios más sociales como son cocina y salón-comedor y esconde de la visual las zonas más íntimas de la vivienda.En la fase de diseño de proyecto, se ofrece a cada propietario distribuir el espacio de la vivienda a su manera. La vivienda se puede personalizar siempre y cuando no afecte a la composición general de la volumetría y a los metros cuadrados construidos de la misma o supongan un cambio sustancial del proyecto.Icaria Point se ubica dentro de la nueva ampliación Icaria IV de la conocida Urbanización Icaria, situada en Oleiros. Oleiros es el área residencial por excelencia de la ciudad de A Coruña, y es donde se encuentra ubicado el proyecto. Sus espacios naturales, bosques y bonitas playas, junto con las zonas de ocio y restauración que ofrece, hacen de este enclave el lugar idóneo donde poder desarrollar una vida tranquila, cómoda y familiar.El complejo residencial de Icaria Point se encuentra en un entorno privilegiado rodeado de zonas verdes arboladas y zonas de juego infantil en continuo contacto con la naturaleza y a escasos minutos de las playas de Bastiagueiro y Santa Cristina. El transporte público, los colegios, centros de salud o supermercados son algunos de los servicios que puedes encontrar en la misma de la urbanización.

Caractéristiques du bien

Complex information

  • Complexe résidentiel
    Conjunto residencial en Icaria IV
  • Type de bien
    Maisons mitoyennes

Données de la propriété

  • Plante
    3
  • Chambres
    4
  • Salles de bains
    3
  • m2 construits
    313 m²
  • Type de propriété
    Programme neuf

Installations

Commodités du logement:

Fenêtres intérieures
Fenêtre extérieure

Dans l'immeuble:

Piscine
Spa
Aire de jeux
Zonas jardins
Zones vertes

Statistiques des prix du marché pour Chalet adosado en venta en calle Rúa Riveiro, 10

Carte

La Corogne, Oleiros, Perillo, Calle Rúa Riveiro, 10 Aller à cet endroit
Laisser un commentaire sur Chalet adosado en venta en calle Rúa Riveiro, 10
0
0 revues
1
0% (0)
2
0% (0)
3
0% (0)
4
0% (0)
5
0% (0)
Conjunto residencial en Icaria IV
Complexe résidentiel
Vendre
Contacter l'annonceur

Pour plus d’informations, contactez la plateforme

REF: 23949

Critiques à propos de Chalet adosado en venta en calle Rúa Riveiro, 10
Loading...

No reviews have been left for this object yet

Propriétés les plus proches

Explorez les biens immobiliers que nous avons découverts à proximité de ce site

Adosados en Venta en Calle do Lio, 2, Oleiros

La Corogne, Oleiros, Oleiros, Calle do Lio, 2
402 000 €

El conjunto residencial Terra Oleiros II, se encuentra ubicado en el corazón de...

0
0 commentaires

Adosados en Venta en Calle do Lio, 2, Oleiros

La Corogne, Oleiros, Oleiros, Calle do Lio, 2
410 000 €

El conjunto residencial Terra Oleiros II, se encuentra ubicado en el corazón de...

0
0 commentaires

Adosados en Venta en Calle do Lio, 2, Oleiros

La Corogne, Oleiros, Oleiros, Calle do Lio, 2
414 000 €

El conjunto residencial Terra Oleiros II, se encuentra ubicado en el corazón de...

0
0 commentaires

Adosados en Venta en Calle do Lio, 2, Oleiros

La Corogne, Oleiros, Oleiros, Calle do Lio, 2
402 000 €

El conjunto residencial Terra Oleiros II, se encuentra ubicado en el corazón de...

0
0 commentaires

Adosados en Venta en Calle do Lio, 2, Oleiros

La Corogne, Oleiros, Oleiros, Calle do Lio, 2
397 000 €

El conjunto residencial Terra Oleiros II, se encuentra ubicado en el corazón de...

0
0 commentaires

Adosados en Venta en Calle do Lio, 2, Oleiros

La Corogne, Oleiros, Oleiros, Calle do Lio, 2
410 000 €

El conjunto residencial Terra Oleiros II, se encuentra ubicado en el corazón de...

0
0 commentaires

Adosados en Venta en Calle do Lio, 2, Oleiros

La Corogne, Oleiros, Oleiros, Calle do Lio, 2
389 000 €

El conjunto residencial Terra Oleiros II, se encuentra ubicado en el corazón de...

0
0 commentaires

Obra nueva Romardeiro en Oleiros

La Corogne, Oleiros, Liáns, Calle Rua Romardeiro, 10
1 000 000 €

Las Galeras se ha convertido en una de las zonas más cotizadas de Galicia y la p...

0
0 commentaires

Adosados en Venta en Calle de Ferrer s/n, A Coruña

La Corogne, La Corogne, Eirís, Calle de Ferrer s/n
390 900 €

OBRAS INICIADASFASE II A LA VENTACélere Eirís es un conjunto residencial pensado...

0
0 commentaires

Nous utilisons nos propres cookies et ceux de tiers pour analyser l’utilisation du site Web et vous montrer des publicités en lien avec vos préférences, sur la base d’un profil établi à partir de vos habitudes de navigation (ex. : pages visitées). Plus d’informations. Acceptez-vous les cookies ?