Espagne Urbain Espagne Urbain La Corogne Urbain Oleiros Terreno en avenida María Pita, 8 -a

Terreno en avenida María Pita, 8 -a

La Corogne, Oleiros, Dorneda, Avenida María Pita, 8 -A
185 000 €
Laisser un commentaire
Urbain Type de bien
1 934 m² Superficie du terrain
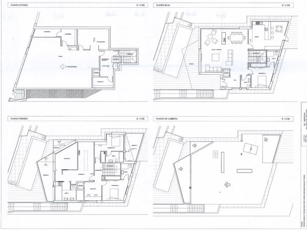
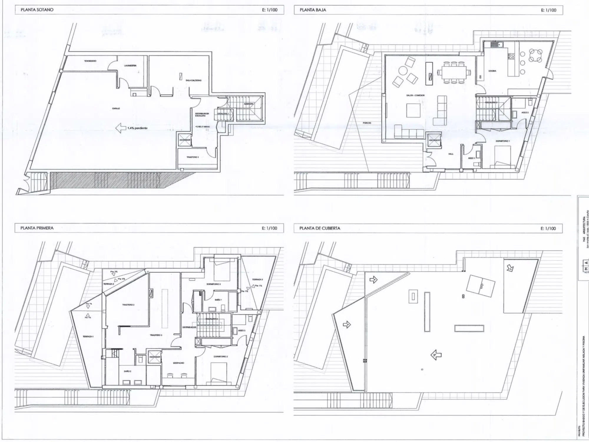
EXCLUSIVO! Terreno de 1.934m2 (424m2 urbano) en lugar de Breixo-Dorneda, encima de Punta Canido. IMPRESIONANTES! Vistas a la Torre de Hércules, a la entrada de la ría de La Coruña y a las playas de Mera y Espiñeiro, orientación perfecta. Se vende terreno de 1.934m2 de los cuales 424m2 son urbanizables pudiendo construir una casa unifamiliar de 250m2 en dos plantas y un garaje de 125m2 y piscina. Se realizo un proyecto que se puede aprovechar con las modificaciones que uno quiera a negociar con el arquitecto. El proyecto que se ve en las fotos se presento en el Ayuntamiento de Oleiros habiendo pasado el trámite del departamento técnico de urbanismo, quedo listo para la concesión de la licencia, motivado al no continuar con la construcción en aquella fecha el nuevo propietario podrá realizar los cambios en el proyecto que le interese y presentarlo de nuevo.

Caractéristiques du bien

Complex information

  • Type de bien
    Urbain

Données de la propriété

  • Type de propriété
    Occasion

Surfaces

  • Superficie du terrain
    1 934 m²

Plans

Statistiques des prix du marché pour Terreno en avenida María Pita, 8 -a

Carte

La Corogne, Oleiros, Dorneda, Avenida María Pita, 8 -A Aller à cet endroit
Laisser un commentaire sur Terreno en avenida María Pita, 8 -a
0
0 revues
1
0% (0)
2
0% (0)
3
0% (0)
4
0% (0)
5
0% (0)
Alberto Heras
185 000 €
Contacter l'annonceur

Pour plus d’informations, contactez la plateforme

REF: 347922

Critiques à propos de Terreno en avenida María Pita, 8 -a
Loading...

No reviews have been left for this object yet

Propriétés les plus proches

Explorez les biens immobiliers que nous avons découverts à proximité de ce site

Terreno en venta en Cabana

La Corogne, La Corogne, Someso - Matogrande, Cabana
555 000 €

Suelo en Venta en San Vicente de Elviña en A Coruña.Cuenta con una superficie de...

0
0 commentaires

Terreno en venta en Mera-Serantes

La Corogne, Oleiros, Mera-Serantes
141 000 €

Mera-Oleiros. En pleno centro de la villa, fantástica oportunidad. Última parcel...

0
0 commentaires

Terreno en Aldea Vilar

La Corogne, Sada
200 000 €

Parcela edificable en A Cañota, Meirás (Sada) Cuenta con una superficie, según C...

0
0 commentaires

Terreno en avenida Emilia Pardo Bazán

La Corogne, Oleiros, Dorneda, Avenida Emilia Pardo Bazán
195 000 €

Entrando en nuestra página web podrás ver la ficha técnica con todos los datos d...

0
0 commentaires

Terreno en calle do Portelo s/n

La Corogne, Oleiros, Dexo-Lorbé, Calle do Portelo s/n
90 000 €

Tenemos tres parcelas, de las cuales nos queda una por vender en Lorbé con vista...

0
0 commentaires

Terreno en calle Curtis

La Corogne, La Corogne, Les Castros - Castrillón, Calle Curtis
545 000 €

NO COBRAMOS COMISIÓN DE INTERMEDIACIÓN AL COMPRADOR Excelente oportunidad de adq...

0
0 commentaires

Terreno en Sada

La Corogne, Sada
55 000 €

INMOBICAR tiene el gusto de presentarte estas FINCAS URBANAS a un paso de Sada,...

0
0 commentaires

Terreno en calle dos Trovadores

La Corogne, Oleiros, Mera-Serantes, Calle dos Trovadores
115 000 €

Traemos un fantástico solar en Mera, en la urbanización Punxeiros, Parcela num....

0
0 commentaires

Terreno en avenida Rutis s/n

La Corogne, Culleredo, Acea de Ama - O Burgo, Avenida Rutis s/n
457 000 €

Suelo urbano no consolidado de 5.481 m², de uso residencial, en Culleredo (A Cor...

0
0 commentaires

Nous utilisons nos propres cookies et ceux de tiers pour analyser l’utilisation du site Web et vous montrer des publicités en lien avec vos préférences, sur la base d’un profil établi à partir de vos habitudes de navigation (ex. : pages visitées). Plus d’informations. Acceptez-vous les cookies ?