Piso en calle Alemania

Alicante, Alicante / Alacant, centre, Calle Alemania
260 000 €
3 824 € / m2
Laisser un commentaire
Appartements Type de bien
1965 Année de livraison
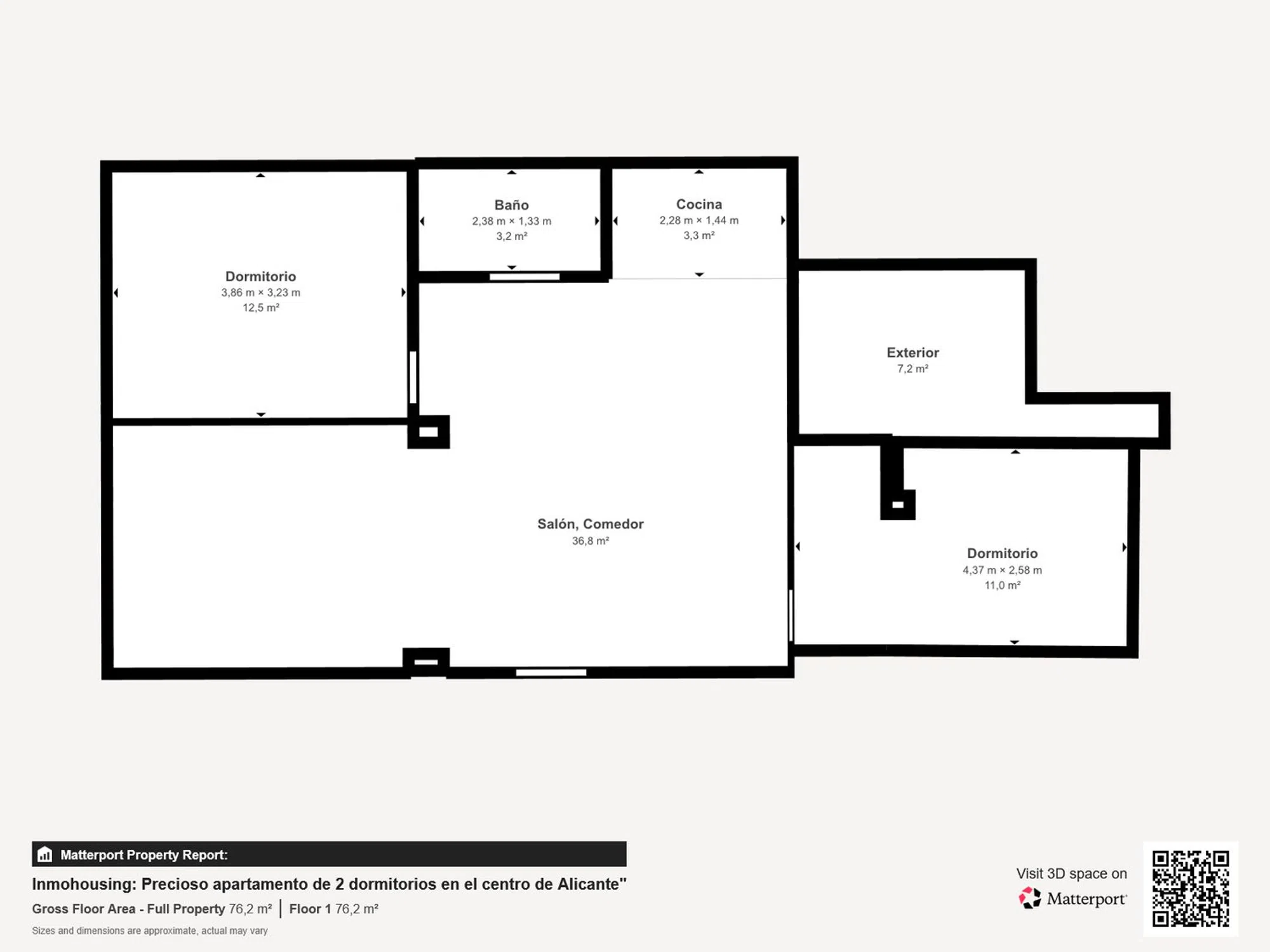
68 m² m2 construits
1 Salles de bains
2 Chambres
1 Plante
Bon état État de l'immeuble
Presentamos esta exclusiva vivienda totalmente reformada con un elegante estilo minimalista de autor, donde cada detalle ha sido cuidado para ofrecer una experiencia de confort y modernidad. La propiedad dispone de un amplio salón comedor con distintos ambientes con cocina americana integrada, perfecto para disfrutar de reuniones en un espacio diáfano y luminoso. Cuenta con dos dormitorios, un baño con ducha y un encantador patio-terraza ideal para relajarse o crear un ambiente chill-out. Las estancias destacan por sus grandes ventanales, que aportan abundante luz natural, además de disponer de aire acondicionado para garantizar el máximo confort durante todo el año. La finca dispone de ascensor, lo que facilita la accesibilidad. � Ubicada en pleno centro de Alicante, a un paso del tram, del puerto deportivo y rodeada de todo tipo de servicios. Esta vivienda es perfecta tanto como residencia habitual como inversión en una de las zonas más demandadas de la ciudad. Fotografías editadas con home staging virtual. ¿Necesitas financiación para tu vivienda? ¡Deja que nosotros nos encarguemos de TODO lo necesario para tramitar tu hipoteca y obtener las mejores condiciones para ti! Somos gestores directos y trabajamos con todas las entidades bancarias.

Caractéristiques du bien

Complex information

  • Type de bien
    Appartements

Informations sur le projet / État des travaux

  • Année de livraison
    1965
  • État de l'immeuble
    Bon état

Données de la propriété

  • Plante
    1
  • Chambres
    2
  • Salles de bains
    1
  • m2 construits
    68 m²
  • Orientation
    Nord
  • Type de propriété
    Occasion

Base

Certificat énergétique

  • État du certificat énergétique
    En cours

Installations

Commodités du logement:

Climatisation
Terrasse

Dans l'immeuble:

Ascenseur

État:

Bon état

Statistiques des prix du marché pour Piso en calle Alemania

321 005 € (3 374 €/m2)
Prix moyen du Appartements primaire dans la ville de Alicante / Alacant
311 869 € (1 845 €/m2)
Prix moyen du Appartements secondaire dans la ville de Alicante / Alacant

Carte

Alicante, Alicante / Alacant, centre, Calle Alemania Aller à cet endroit
Laisser un commentaire sur Piso en calle Alemania
0
0 revues
1
0% (0)
2
0% (0)
3
0% (0)
4
0% (0)
5
0% (0)
Inmohousing
260 000 €
de 3 824 € / m2
Contacter l'annonceur

Pour plus d’informations, contactez la plateforme

REF: 406991

Critiques à propos de Piso en calle Alemania
Loading...

No reviews have been left for this object yet

Appartements pas chers 62930 Appartements à rénover 30902 Appartements jusqu'à 50.000€ 28985 Appartements jusqu'à 100.000€ 30213 Maisons jusqu'à 100.000€ 30213 Appartements avec vue sur la mer 29755 Appartements de luxe 29420 Appartements neufs pas chers 47752 Vente d'appartements de 2 chambres Alicante 23645 Vente appartements 3 chambres Alicante 24103 Vente appartements 4 chambres Alicante 21299 Vente appartements 5 chambres Alicante 20411 Appartements en bon état Alicante 22010 Appartements à rénover Alicante 21315 Appartements d'occasion Alicante 28899 Appartements avec vue sur la mer Alicante 20381 Appartements bon marché Alicante 29536 Appartements à vendre avec ascenseur Alicante 26315 Appartements jusqu'à 50 000 € Alicante 20464 Appartements jusqu'à 100.000€ Alicante 21121 Appartements neufs Alicante 20842 Appartements de luxe Alicante 20324 Appartements extérieurs Alicante 20369 Appartements neufs pas chers Alicante 20842 Appartements de Particuliers Alicante 17466 Vente appartements 2 chambres Alicante / Alacant 3263 Vente appartements 3 chambres Alicante / Alacant 3441 Vente d'appartements 4 chambres Alicante / Alacant 3296 Vente appartements 5 chambres Alicante / Alacant 3112 Appartements en bon état Alicante / Alacant 3271 Appartements à rénover Alicante / Alacant 3229 Appartements d'occasion Alicante / Alacant 3914 Appartements avec vue sur la mer Alicante / Alacant 3086 Appartements pas chers Alicante / Alacant 4020 Appartements à vendre avec ascenseur Alicante / Alacant 3801 Appartements jusqu'à 100 000 € Alicante / Alacant 3082 Appartements neufs Alicante / Alacant 3137 Appartements jusqu'à 50.000€ Alicante / Alacant 3081 Appartements de luxe Alicante / Alacant 3078 Appartements extérieurs Alicante / Alacant 3073 Appartements neufs pas chers Alicante / Alacant 3137 Appartements de particuliers Alicante / Alacant 2855

Propriétés les plus proches

Explorez les biens immobiliers que nous avons découverts à proximité de ce site

Apartamentos en Venta en Calle Deportista Pitu Perramón, 3, Alicante / Alacant

Alicante, Alicante / Alacant, San Blas-Pau, Calle Deportista Pitu Perramón, 3
228 800 €

AEDAS Homes lanza una moderna y exclusiva promoción de 28 viviendas de 2 y 3 hab...

0
0 commentaires

Apartamentos en Venta en Calle Deportista Pitu Perramón, 3, Alicante / Alacant

Alicante, Alicante / Alacant, San Blas-Pau, Calle Deportista Pitu Perramón, 3
308 400 €

AEDAS Homes lanza una moderna y exclusiva promoción de 28 viviendas de 2 y 3 hab...

0
0 commentaires

Apartamentos en Venta en Calle Deportista Pitu Perramón, 3, Alicante / Alacant

Alicante, Alicante / Alacant, San Blas-Pau, Calle Deportista Pitu Perramón, 3
216 000 €

AEDAS Homes lanza una moderna y exclusiva promoción de 28 viviendas de 2 y 3 hab...

0
0 commentaires

Apartamentos en Venta en Calle Deportista Pitu Perramón, 3, Alicante / Alacant

Alicante, Alicante / Alacant, San Blas-Pau, Calle Deportista Pitu Perramón, 3
262 350 €

AEDAS Homes lanza una moderna y exclusiva promoción de 28 viviendas de 2 y 3 hab...

0
0 commentaires

Apartamentos en Venta en Calle Deportista Pitu Perramón, 3, Alicante / Alacant

Alicante, Alicante / Alacant, San Blas-Pau, Calle Deportista Pitu Perramón, 3
281 750 €

AEDAS Homes lanza una moderna y exclusiva promoción de 28 viviendas de 2 y 3 hab...

0
0 commentaires

Apartamentos en Venta en Calle Deportista Pitu Perramón, 3, Alicante / Alacant

Alicante, Alicante / Alacant, San Blas-Pau, Calle Deportista Pitu Perramón, 3
216 000 €

AEDAS Homes lanza una moderna y exclusiva promoción de 28 viviendas de 2 y 3 hab...

0
0 commentaires

Apartamentos en Venta en Calle Deportista Pitu Perramón, 3, Alicante / Alacant

Alicante, Alicante / Alacant, San Blas-Pau, Calle Deportista Pitu Perramón, 3
373 250 €

AEDAS Homes lanza una moderna y exclusiva promoción de 28 viviendas de 2 y 3 hab...

0
0 commentaires

Apartamentos en Venta en Calle Deportista Pitu Perramón, 3, Alicante / Alacant

Alicante, Alicante / Alacant, San Blas-Pau, Calle Deportista Pitu Perramón, 3
280 260 €

AEDAS Homes lanza una moderna y exclusiva promoción de 28 viviendas de 2 y 3 hab...

0
0 commentaires

Apartamentos en Venta en Calle Deportista Pitu Perramón, 3, Alicante / Alacant

Alicante, Alicante / Alacant, San Blas-Pau, Calle Deportista Pitu Perramón, 3
278 750 €

AEDAS Homes lanza una moderna y exclusiva promoción de 28 viviendas de 2 y 3 hab...

0
0 commentaires
Appeler

Nous utilisons nos propres cookies et ceux de tiers pour analyser l’utilisation du site Web et vous montrer des publicités en lien avec vos préférences, sur la base d’un profil établi à partir de vos habitudes de navigation (ex. : pages visitées). Plus d’informations. Acceptez-vous les cookies ?