Espagne Maison Espagne Maison Alicante Maison Altea Casa independiente en calle La LLebre, 23

Nouvelle œuvre Casa independiente en calle La LLebre, 23 à Altea

Alicante, Altea, Altea la Vella, Calle La LLebre, 23
2 257 500 €
4 834 € / m2
Laisser un commentaire
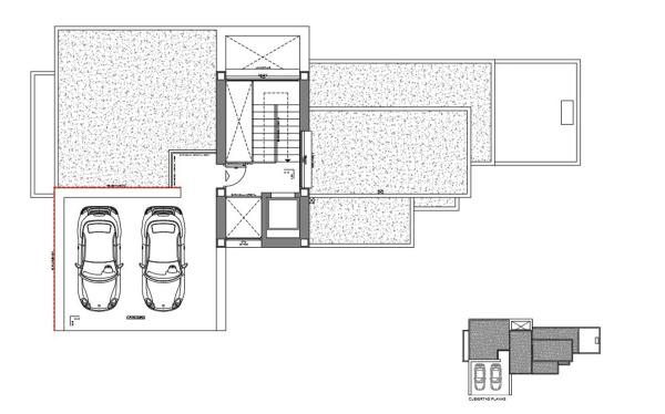
467 m² m2 construits
1 046 m² Superficie du terrain
5 Salles de bains
3 Chambres
Inclus dans le prix Garage
Construction neuve État de l'immeuble
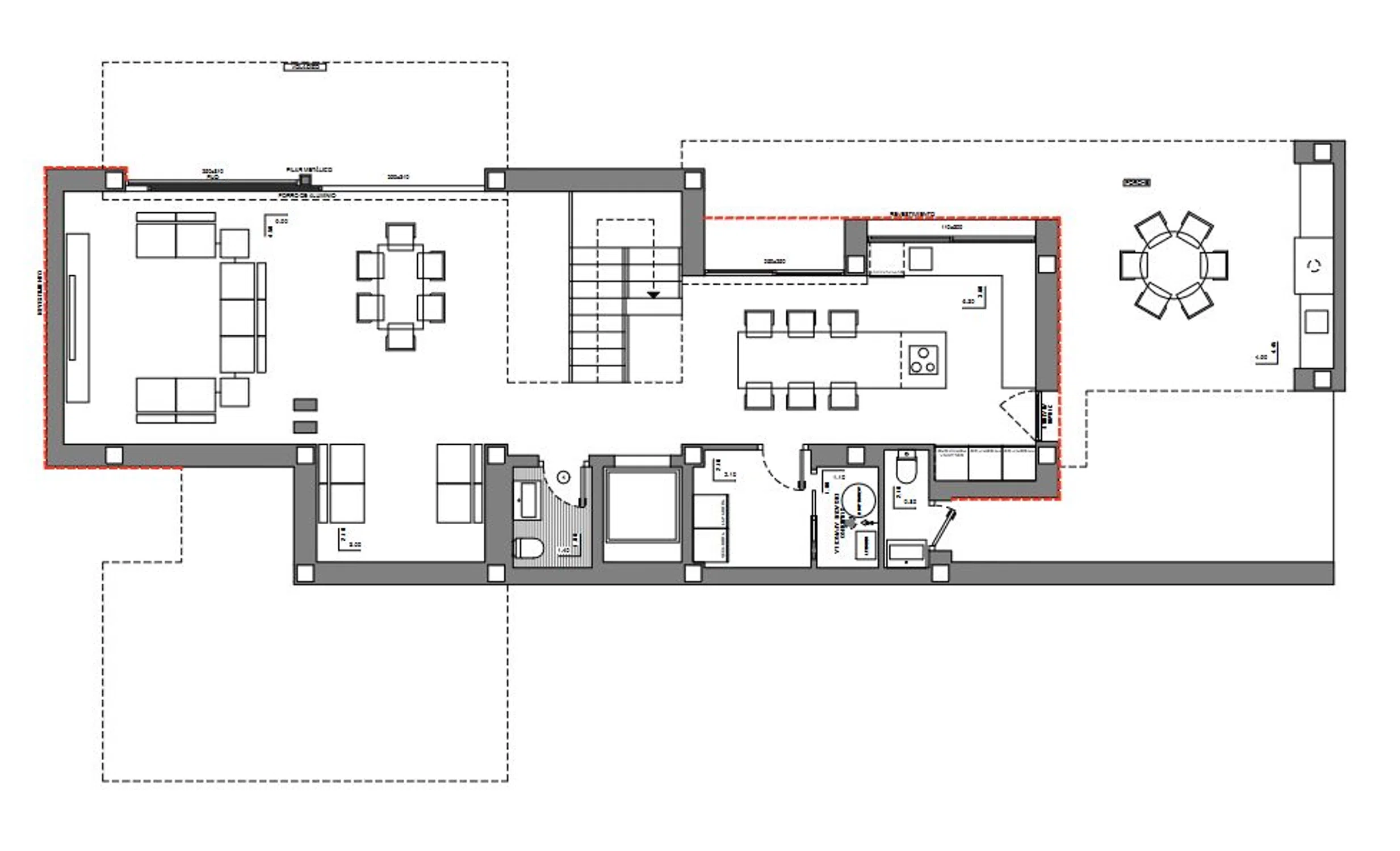
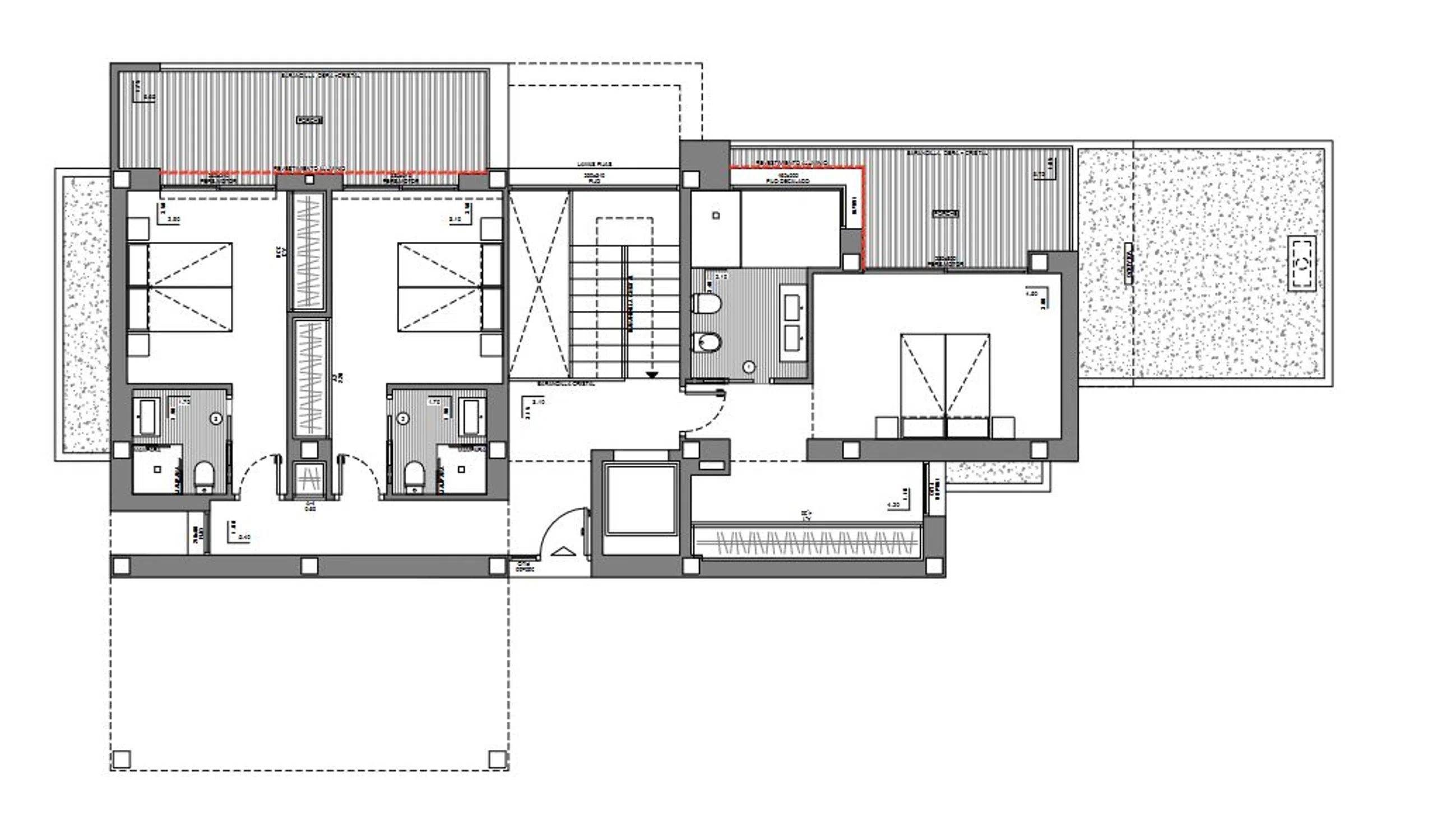
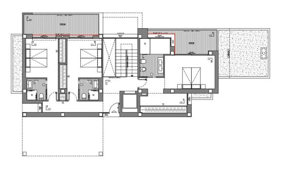
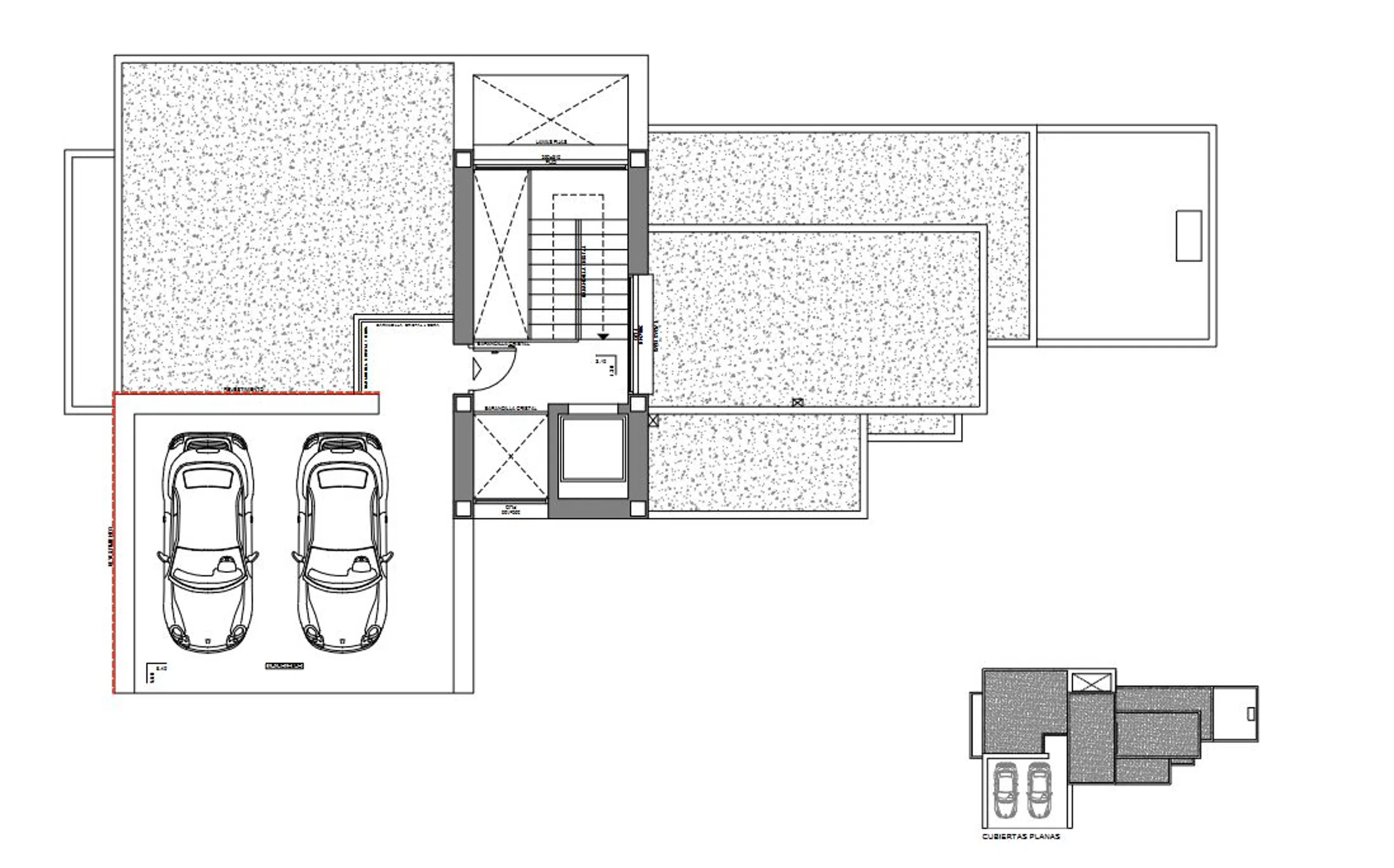
**Impresionante Casa Independiente en Venta - Costa Blanca** Descubra un pedazo de paraíso con esta impresionante casa independiente que ofrece vistas panorámicas al mar desde una gran ventana de cristal en la planta superior. Esta joya arquitectónica cuenta con un núcleo central que conecta a la perfección todos los niveles a través de un ascensor y escaleras, lo que garantiza un fácil acceso en todo momento. Disfrute de la comodidad de aparcamiento para dos vehículos, haciendo que su llegada sea tan fácil como su estancia. La planta intermedia cuenta con tres dormitorios excepcionales, incluidos dos con lujosos baños en suite y amplios vestidores. Salga a la terraza compartida desde estas habitaciones para disfrutar del sol y la brisa marina. El espectacular dormitorio principal es un verdadero refugio, con un generoso vestidor y un baño en suite completo con una relajante bañera. Estratégicamente ubicada, la cama ofrece impresionantes vistas al mar, complementadas con una terraza privada para mañanas tranquilas o noches románticas. Diseñada para un disfrute óptimo, la planta baja es el sueño de un anfitrión. La amplia cocina cuenta con una enorme isla central, perfecta para aventuras culinarias, mientras que dos comedores, uno interior y otro exterior con barbacoa, se adaptan a cada ocasión. El comedor interior se integra en una elegante sala de estar y una terraza principal, creando espacios conectados ideales para la relajación o las reuniones. Un acogedor rincón de lectura y un salón al aire libre mejoran la experiencia de vida. Salga al exterior para encontrar una espectacular piscina infinita que parece fundirse con el horizonte, invitándole a relajarse con estilo. Con 467 m² de espacio construido en una generosa parcela de 1.046 m², esta casa está diseñada para abrazar la belleza del entorno de la Costa Blanca. Las orientaciones sur, este y oeste garantizan abundante luz natural durante todo el día. Esta propiedad no es solo una casa; es un estilo de vida. Con clase energética A por su eficiencia y en buenas condiciones, está lista para darle la bienvenida a casa. ¡No pierda esta oportunidad de poseer un pedazo de paraíso!

Promotions remarquables en Espagne

10 unités

Nature Views 2

Alicante, Torrevieja, Les Balcons - Les Hauts de l'Éden, Denia s/n
310 000 € - 379 000 €
1 unités

Hotel en venta en Benidorm centro

Alicante, Benidorm, Plage de Poniente
2 250 000 € - 2 250 000 €
28 unités

Residencial Los Balcones De Calpe

Alicante, Calpe, Calpe Pueblo, Avenida de Madrid, 1
299 000 € - 892 125 €
7 unités

Nature Views

Alicante, Torrevieja, Lago Jardín II, Avenida Denia s/n
305 000 € - 330 000 €
5 unités

ALONIS VILLAS

Alicante, La Villajoyosa / Vila Joiosa, Plage de Torres, Partida Torres s/n
675 000 € - 775 000 €
1 unités

Residencial Royal Beach

Alicante, Guardamar del Segura, village, Miguel Hernández 102
349 500 € - 349 500 €
7 unités

Royal Star

Alicante, Guardamar del Segura
229 500 € - 269 500 €

Caractéristiques du bien

Complex information

Informations sur le projet / État des travaux

  • État de l'immeuble
    Construction neuve

Données de la propriété

  • Garage
    Inclus dans le prix
  • Chambres
    3
  • Salles de bains
    5
  • m2 construits
    467 m²
  • Type de propriété
    Occasion

Surfaces

  • Superficie du terrain
    1 046 m²

Base

Certificat énergétique

  • Certificat énergétique
    A

Installations

Commodités du logement:

Climatisation
Débarras
Terrasse

Dans l'immeuble:

Piscine
Jardin
Parking privé

État:

Nouveau projet

Statistiques des prix du marché pour Casa independiente en calle La LLebre, 23

1 604 833 € (3 948 €/m2)
Prix moyen du primaire dans la ville de Altea
1 626 480 € (3 365 €/m2)
Prix moyen du secondaire dans la ville de Altea

Carte

Alicante, Altea, Altea la Vella, Calle La LLebre, 23 Aller à cet endroit
Laisser un commentaire sur Casa independiente en calle La LLebre, 23
0
0 revues
1
0% (0)
2
0% (0)
3
0% (0)
4
0% (0)
5
0% (0)
Spania Property
2 257 500 €
de 4 834 € / m2
Contacter l'annonceur

Pour plus d’informations, contactez la plateforme

REF: 436518

Critiques à propos de Casa independiente en calle La LLebre, 23
Loading...

No reviews have been left for this object yet

Propriétés les plus proches

Explorez les biens immobiliers que nous avons découverts à proximité de ce site

Chalet independiente en Venta en Calle Munich s/n, Altea

Alicante, Altea, Altea Hills, Calle Munich s/n
3 500 000 €

Disfrute de la vida de lujo en esta impresionante villa con magníficas vistas al...

0
0 commentaires

Chalet independiente en Venta, Altea

Alicante, Altea, Altea la Vella
1 908 000 €

Villas con personalidad propia, diseños exclusivos y personalizados para que la...

0
0 commentaires

Chalet independiente en Venta, Altea

Alicante, Altea, Altea la Vella
2 044 000 €

Villas con personalidad propia, diseños exclusivos y personalizados para que la...

0
0 commentaires

Nouveaux logements de luxe à Infinity Villas dans la région d'Altea Hills, Altea.

Alicante, Altea, Altea la Vella, Calle Costa del Azahar Altea Hills s/n
1 386 000 €

À Altea Hills, découvrez une nouvelle promotion composée de 14 villas indépenda...

0
0 commentaires

Nouveaux logements de luxe à Infinity Villas dans la région d'Altea Hills, Altea.

Alicante, Altea, Altea la Vella, Calle Costa del Azahar Altea Hills s/n
1 112 400 €

À Altea Hills, découvrez une nouvelle promotion composée de 14 villas indépenda...

0
0 commentaires

Chalet independiente en Venta en Calle Costa del Azahar Altea Hills s/n, Altea

Alicante, Altea, Altea la Vella, Calle Costa del Azahar Altea Hills s/n
1 150 000 €

La nueva promoción INFINITY VILLAS, en Altea Hills, está compuesta por 14 villas...

0
0 commentaires

Nouveaux logements de luxe à Infinity Villas dans la région d'Altea Hills, Altea.

Alicante, Altea, Altea la Vella, Calle Costa del Azahar Altea Hills s/n
1 170 000 €

À Altea Hills, découvrez une nouvelle promotion composée de 14 villas indépenda...

0
0 commentaires

Nouveaux logements de luxe à Infinity Villas dans la région d'Altea Hills, Altea.

Alicante, Altea, Altea la Vella, Calle Costa del Azahar Altea Hills s/n
1 182 000 €

À Altea Hills, découvrez une nouvelle promotion composée de 14 villas indépenda...

0
0 commentaires

Chalet independiente en Venta en Calle Costa del Azahar Altea Hills s/n, Altea

Alicante, Altea, Altea la Vella, Calle Costa del Azahar Altea Hills s/n
1 107 600 €

La nueva promoción INFINITY VILLAS, en Altea Hills, está compuesta por 14 villas...

0
0 commentaires
Appeler

Nous utilisons nos propres cookies et ceux de tiers pour analyser l’utilisation du site Web et vous montrer des publicités en lien avec vos préférences, sur la base d’un profil établi à partir de vos habitudes de navigation (ex. : pages visitées). Plus d’informations. Acceptez-vous les cookies ?