Terreno en La Fustera

Alicante, Benissa, La Fustera, La Fustera
745 000 €
Laisser un commentaire
Urbain Type de bien
1 423 m² Superficie du terrain
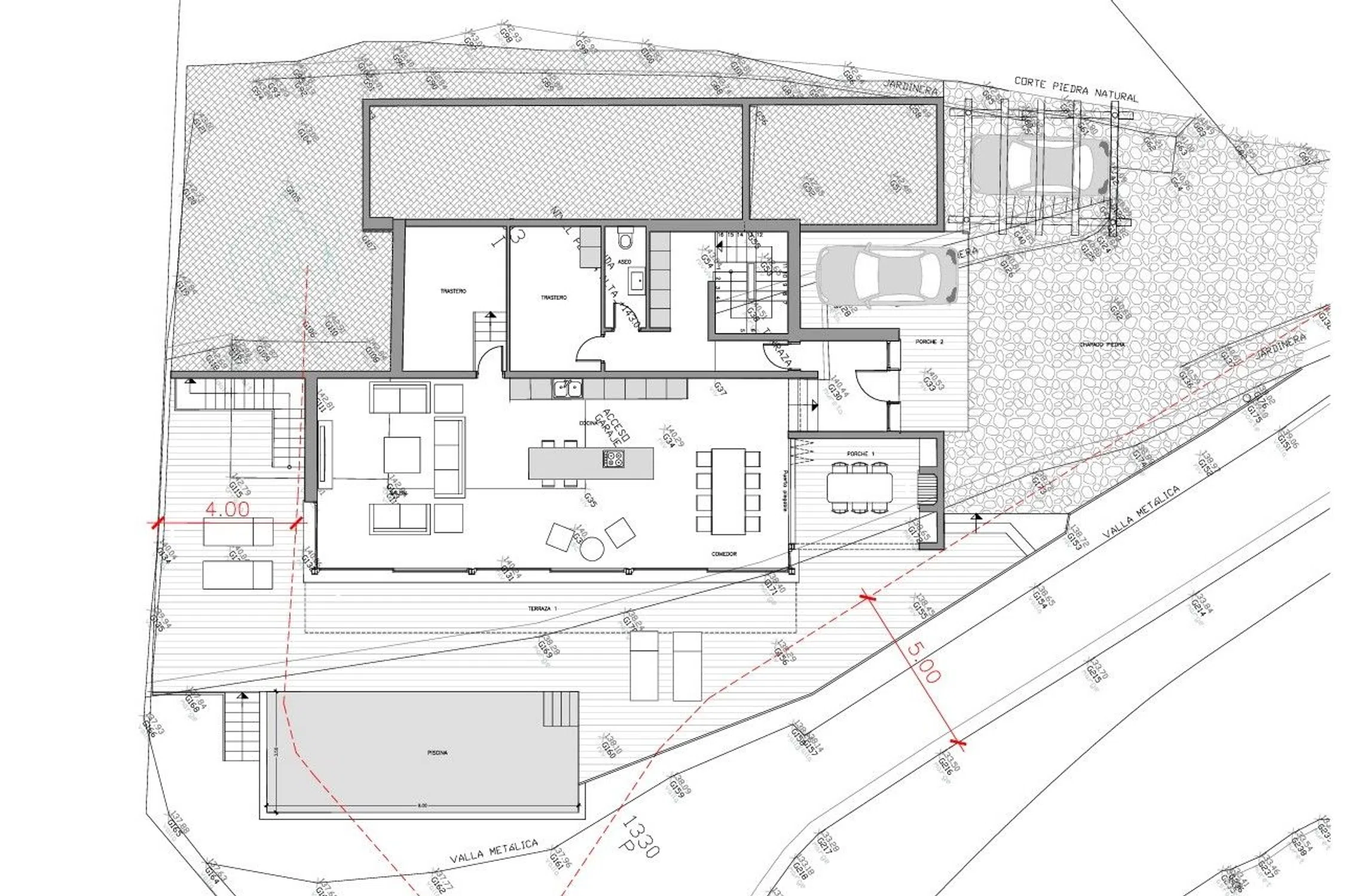
Parcela única con vistas al mar en Racó del Galeno Esta espaciosa parcela de 1.423 m² se encuentra en la exclusiva y moderna urbanización Racó del Galeno. Ofrece impresionantes vistas panorámicas sobre el mar Mediterráneo, desde el Cap d'Or en Moraira hasta más allá del emblemático Peñón de Ifach en Calpe. Gracias a su orientación sureste, aquí disfrutará de una luz óptima y de impresionantes amaneceres. La parcela alberga actualmente una villa tradicional con una superficie construida de 117 m². Existen tres interesantes posibilidades de desarrollo para esta propiedad: 1. Renovación - Puede renovar la propiedad existente y disfrutar rápidamente de su propio hogar en una ubicación privilegiada. 2. Renovación integral y ampliación - Ya está disponible un proyecto básico y de ejecución que le permite transformar completamente la propiedad en una moderna villa de estilo ibicenco con encanto mediterráneo. Los renders y planos ilustran esta opción. 3. Nueva construcción - Puede optar por demoler la casa actual y construir una villa completamente nueva y lujosa, totalmente de acuerdo con sus propios deseos y estilo. La ubicación es ideal: a sólo 5 minutos en coche de la pintoresca costa de Benissa y a 10 minutos del animado centro de Calpe, con sus amplios servicios, playas y restaurantes, aquí lo tiene todo a su alcance. Más información o una visita con cita previa.

Caractéristiques du bien

Complex information

  • Type de bien
    Urbain

Données de la propriété

  • Type de propriété
    Occasion

Surfaces

  • Superficie du terrain
    1 423 m²

Base

Installations

Vues:

Vues sur la mer

Statistiques des prix du marché pour Terreno en La Fustera

Carte

Alicante, Benissa, La Fustera, La Fustera Aller à cet endroit
Laisser un commentaire sur Terreno en La Fustera
0
0 revues
1
0% (0)
2
0% (0)
3
0% (0)
4
0% (0)
5
0% (0)
La Naya Real Estate
745 000 €
Contacter l'annonceur

Pour plus d’informations, contactez la plateforme

REF: 366295

Critiques à propos de Terreno en La Fustera
Loading...

No reviews have been left for this object yet

Propriétés les plus proches

Explorez les biens immobiliers que nous avons découverts à proximité de ce site

Terreno en venta en Grupo Pinos los Urban

Alicante, Calpe, Cometa-Carrió, Grupo Pinos los Urban
149 000 €

Descubre una oportunidad única para construir la casa de tus sueños en una parce...

0
0 commentaires

Terreno en venta en Benissa pueblo

Alicante, Benissa, Benissa pueblo
180 000 €

Descubre 15,000 m2 de paraíso en la codiciada costa de Benissa, a solo 7 minutos...

0
0 commentaires

Terreno en venta en Partida Empedrola II

Alicante, Calpe, Cometa-Carrió, Partida Empedrola II
145 000 €

Calpe Urb Empedrola II. Parcela de 1. 000 m2, apta para construir una vivienda u...

0
0 commentaires

Se vende atractivo solar urbano de 1350m2 en urbanización de lujo entre Calpe y Moraira

Alicante, Benissa
184 000 €

El solar de 1350m2 está ubicado en un área tranquila, ofrece conexiones de luz y...

0
0 commentaires

En venta solar urbano de 1350m2 en urbanización de lujo entre Calpe y Moraira

Alicante, Benissa
175 000 €

El solar de 1350m2 está ubicado en un área tranquila, ofrece conexiones de luz y...

0
0 commentaires

Terreno en Benissa pueblo

Alicante, Benissa, Benissa pueblo, Benissa pueblo
90 000 €

Esta espaciosa parcela rural de poco más de 8000 m² ofrece un remanso de paz y m...

0
0 commentaires

Terreno en Teulada

Alicante, Teulada
275 000 €

Esta impresionante parcela de terreno rústico tiene una extensión de 10.400 metr...

0
0 commentaires

Terreno en Cometa-Carrió

Alicante, Calpe, Cometa-Carrió, Cometa-Carrió
1 100 000 €

Oportunidad de Inversión, 856 m2 parcela para la construcción de un chalet de lu...

0
0 commentaires

Terreno en Teulada

Alicante, Teulada
2 000 000 €

Parcela a la venta con fantásticas vistas abiertas al mar Mediterráeno y a la si...

0
0 commentaires
Appeler

Nous utilisons nos propres cookies et ceux de tiers pour analyser l’utilisation du site Web et vous montrer des publicités en lien avec vos préférences, sur la base d’un profil établi à partir de vos habitudes de navigation (ex. : pages visitées). Plus d’informations. Acceptez-vous les cookies ?