Piso en Castalla

Alicante, Castalla, Castalla
111 616 €
1 227 € / m2
Laisser un commentaire
Appartements Type de bien
2025 Année de livraison
91 m² m2 construits
90 m² m2 utiles
2 Salles de bains
4 Chambres
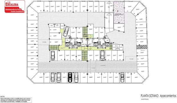
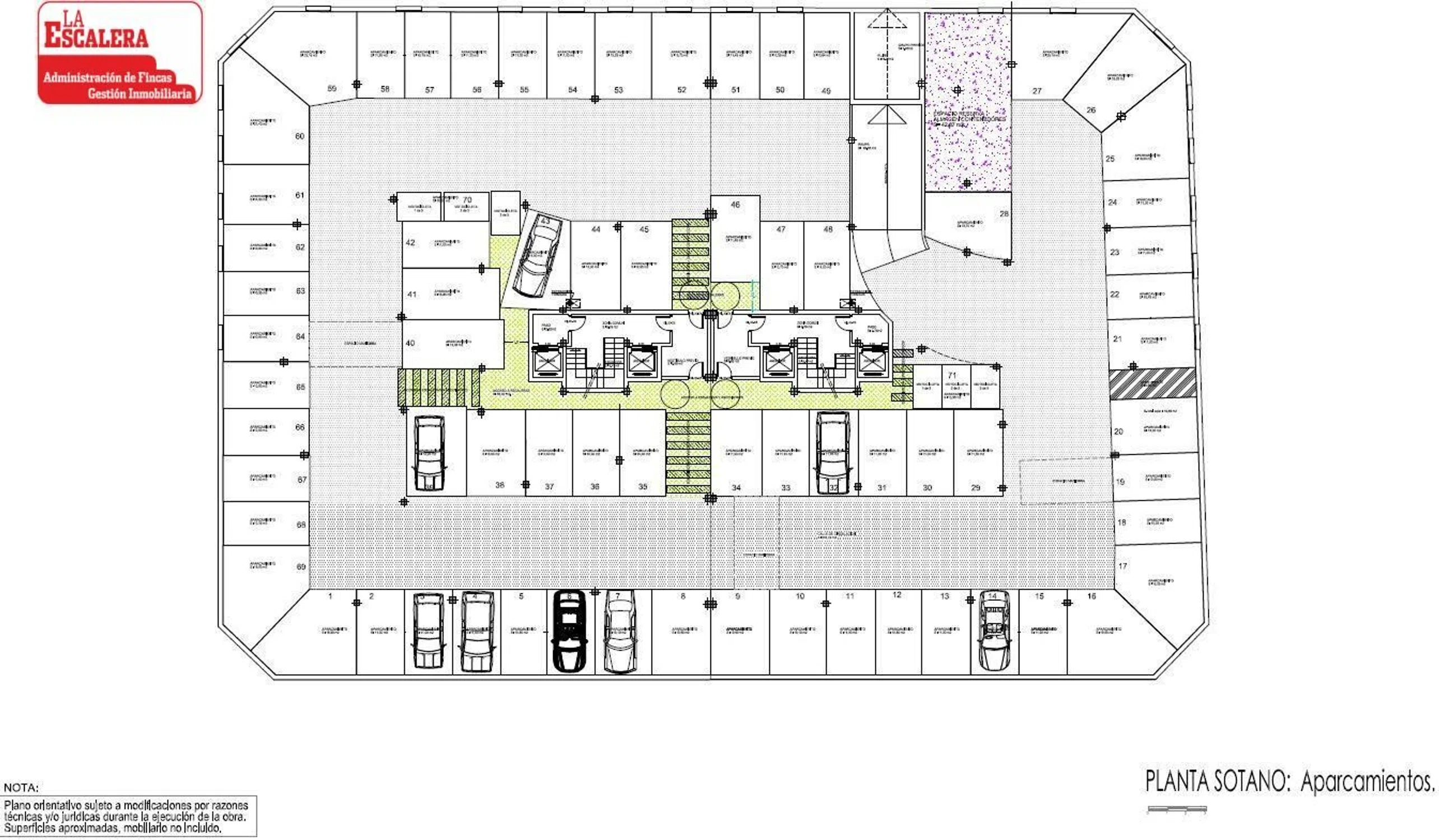
Inclus dans le prix Garage
3 Plante
Bon état État de l'immeuble
Ref 4436. Nueva promoción de viviendas en Castalla (Alicante) con garaje en planta -1 y trastero en planta cubierta. Cocina amueblada, armarios empotrados, balcón. Divisiones interiores con ladrillos. Divisiones entre viviendas y zonas comunes aisladas acústicamente. Pavimento de gres de primera calidad. Generación agua caliente mediante termo con aerotermia. Bomba de calor en salón y dormitorios. Sistema de renovación de aire con sistema de extracción mecánica constante. Terraza transitable. Certificación energética A o B. Buenos precios, varían según tipología, solicite listado valorado de la disponibilidad. Quedan pisos de 3 y 4 habitaciones en varias plantas. Zona residencial en expansión, cerca hay servicios como colegios, institutos, médicos, supermercados. Elija su vivienda ahora sobre plano, hay 4 plantas y 4 orientaciones para elegir. IMPORTANTE: Los precios vigente para obra nueva son una auténtica ganga y podrían subir, si le interesa reserve ya.

Caractéristiques du bien

Complex information

  • Type de bien
    Appartements

Informations sur le projet / État des travaux

  • Année de livraison
    2025
  • État de l'immeuble
    Bon état

Données de la propriété

  • Garage
    Inclus dans le prix
  • Plante
    3
  • Chambres
    4
  • Salles de bains
    2
  • m2 construits
    91 m²
  • m2 utiles
    90 m²
  • Type de propriété
    Occasion

Base

Certificat énergétique

  • État du certificat énergétique
    Non indiqué

Installations

Commodités du logement:

Débarras

Dans l'immeuble:

Ascenseur
Parking privé

État:

Bon état

Statistiques des prix du marché pour Piso en Castalla

125 750 € (2 031 €/m2)
Prix moyen du Appartements primaire dans la ville de Castalla
120 142 € (1 416 €/m2)
Prix moyen du Appartements secondaire dans la ville de Castalla

Carte

Alicante, Castalla, Castalla Aller à cet endroit
Laisser un commentaire sur Piso en Castalla
0
0 revues
1
0% (0)
2
0% (0)
3
0% (0)
4
0% (0)
5
0% (0)
Oportunidon.com
111 616 €
de 1 227 € / m2
Contacter l'annonceur

Pour plus d’informations, contactez la plateforme

REF: 451599

Critiques à propos de Piso en Castalla
Loading...

No reviews have been left for this object yet

Appartements pas chers 62853 Appartements à rénover 30825 Appartements jusqu'à 50.000€ 28908 Appartements jusqu'à 100.000€ 30136 Maisons jusqu'à 100.000€ 30136 Appartements avec vue sur la mer 29678 Appartements de luxe 29343 Appartements neufs pas chers 47675 Vente d'appartements de 2 chambres Alicante 23568 Vente appartements 3 chambres Alicante 24026 Vente appartements 4 chambres Alicante 21222 Vente appartements 5 chambres Alicante 20334 Appartements en bon état Alicante 21933 Appartements à rénover Alicante 21238 Appartements d'occasion Alicante 28822 Appartements avec vue sur la mer Alicante 20304 Appartements bon marché Alicante 29459 Appartements à vendre avec ascenseur Alicante 26238 Appartements jusqu'à 50 000 € Alicante 20387 Appartements jusqu'à 100.000€ Alicante 21044 Appartements neufs Alicante 20765 Appartements de luxe Alicante 20247 Appartements extérieurs Alicante 20292 Appartements neufs pas chers Alicante 20765 Appartements de Particuliers Alicante 17388 Vente appartements 2 chambres Castalla 52 Vente appartements 3 chambres Castalla 43 Vente d'appartements 4 chambres Castalla 42 Vente appartements 5 chambres Castalla 39 Appartements en bon état Castalla 40 Appartements à rénover Castalla 42 Appartements d'occasion Castalla 53 Appartements avec vue sur la mer Castalla 39 Appartements pas chers Castalla 61 Appartements à vendre avec ascenseur Castalla 48 Appartements jusqu'à 100 000 € Castalla 44 Appartements neufs Castalla 47 Appartements jusqu'à 50.000€ Castalla 39 Appartements de luxe Castalla 39 Appartements extérieurs Castalla 39 Appartements neufs pas chers Castalla 47 Appartements de particuliers Castalla 19

Propriétés les plus proches

Explorez les biens immobiliers que nous avons découverts à proximité de ce site

Apartamentos en Venta, Castalla

Alicante, Castalla
168 000 €

Descubre una exclusiva promoción de pisos y chalets de obra nueva en la encantad...

0
0 commentaires

Apartamentos en Venta, Castalla

Alicante, Castalla
145 000 €

Descubre una oportunidad única para adquirir viviendas de obra nueva en una loca...

0
0 commentaires

Piso en Castalla

Alicante, Castalla
113 000 €

Descubre este encantador apartamento en planta baja que combina a la perfección...

0
0 commentaires

Piso en calle Rabosí

Alicante, Onil
115 000 €

¿Estás interesado en adquirir una vivienda en construcción en pausa? Esta es una...

0
0 commentaires

Piso en calle de la Corbella

Alicante, Castalla
53 000 €

Se ofrece en venta un espacioso bajo ubicado en una encantadora localidad, con u...

0
0 commentaires

Piso en Castalla

Alicante, Castalla, Castalla
145 000 €

¿Buscas un piso luminoso, exterior, reformado y con ascensor? ¡Este es el piso i...

0
0 commentaires

Piso en Castalla

Alicante, Castalla, Castalla
123 900 €

¡Descubre este amplio piso en el corazón de Castalla! Situado en un primer piso...

0
0 commentaires

Piso en calle Pamplona

Alicante, Castalla, Calle Pamplona
99 500 €

Este encantador piso en venta se encuentra en Castalla, en una ubicación privile...

0
0 commentaires

Piso en avenida Tibi

Alicante, Castalla, Avenida Tibi
120 000 €

ESTRENA CASA POR SOLO 330 Euros al MES ES TUYA Vivienda exclusiva a estrenar en...

0
0 commentaires

Nous utilisons nos propres cookies et ceux de tiers pour analyser l’utilisation du site Web et vous montrer des publicités en lien avec vos préférences, sur la base d’un profil établi à partir de vos habitudes de navigation (ex. : pages visitées). Plus d’informations. Acceptez-vous les cookies ?