Terreno en El Montgó

Alicante, Dénia, Le Montgó, El Montgó
560 000 €
Laisser un commentaire
Urbanisable Type de bien
1 300 m² Superficie du terrain
Fruitiers Cultures
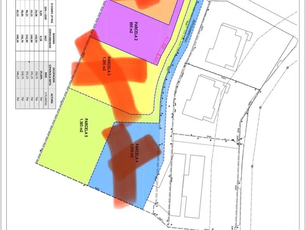
Mi hogar, en la exclusiva zona de Las Rotas en Denia, es el lugar donde la tranquilidad se encuentra con el mar. A tan solo 40 metros de la orilla, puedo sentir cómo el azul del Mediterráneo me envuelve cada día, ofreciéndome un rincón único para vivir y disfrutar. Aquí, cada amanecer es una oportunidad. Soy una parcela urbanizable, dividida en cinco partes exclusivas, listas para que des vida a tu proyecto de vivienda. Mis espacios van desde los 800 m² hasta los 1300 m², en una zona premium donde la tranquilidad y la belleza natural se fusionan. Cada metro cuadrado tiene un valor de 700€, y mis parcelas, una vez seleccionadas, no podrán ser divididas, lo que garantiza que mantendrás la amplitud y privacidad que mereces. Aquí, cada espacio se convierte en un refugio personal, rodeado de la calma de Las Rotas, conocida por sus acantilados escarpados, aguas cristalinas y un ambiente que invita al descanso. Este proyecto será una urbanización cerrada, diseñada para ofrecer un entorno exclusivo y seguro que combina confort, privacidad y calidad de vida. Tienes la posibilidad de consultar proyectos ya disponibles o, si prefieres, crear uno a medida que se ajuste a cada uno de tus deseos. Con cada paso que des en esta zona privilegiada, sentirás la exclusividad y el confort de estar a un suspiro del mar. Denia, con su historia, su cultura vibrante y su naturaleza, ofrece el escenario perfecto para aquellos que buscan un lugar único. Desde el Montgó hasta las aguas que bordean la costa, el entorno te proporcionará todo lo que necesitas para disfrutar de una vida plena. Si alguna vez has soñado con un lugar especial junto al Mediterráneo, aquí lo tienes, esperando a que lo transformes en tu hogar ideal. ¡Ven a descubrir cómo estas parcelas en Las Rotas pueden ser el inicio de una nueva etapa en tu vida!

Caractéristiques du bien

Complex information

  • Type de bien
    Urbanisable

Données de la propriété

  • Type de propriété
    Occasion

Surfaces

  • Superficie du terrain
    1 300 m²

Base

  • Cultures
    Fruitiers

Installations

Cultivo:

Arbres fruitiers

Statistiques des prix du marché pour Terreno en El Montgó

Carte

Alicante, Dénia, Le Montgó, El Montgó Aller à cet endroit
Laisser un commentaire sur Terreno en El Montgó
0
0 revues
1
0% (0)
2
0% (0)
3
0% (0)
4
0% (0)
5
0% (0)
Home Stories
560 000 €
Contacter l'annonceur

Pour plus d’informations, contactez la plateforme

REF: 159928

Critiques à propos de Terreno en El Montgó
Loading...

No reviews have been left for this object yet

Propriétés les plus proches

Explorez les biens immobiliers que nous avons découverts à proximité de ce site

Terreno en calle de Auriga, 20

Alicante, Jávea/Xàbia, Montgó - Ermita, Calle de Auriga, 20
158 000 €

¿Quieres comprar un suelo urbano residencial en Jávea? Excelente oportunidad de...

0
0 commentaires

Terreno en Barrio Les Bassetes-El Marjal

Alicante, Dénia, Les Marines, Barrio Les Bassetes-El Marjal
1 450 000 €

Oportunidad inversión 13 habitaciones y local primera linea Denia El Hostal Oasi...

0
0 commentaires

Terreno en calle Cassandra

Alicante, Dénia, La Pedrera-Vessanes, Calle Cassandra
295 000 €

Parcela grande, edificable y divisible en ladera sur en Denia Esta propiedad es...

0
0 commentaires

Terreno en Assagador de Santa Llúcia

Alicante, Dénia, Le Montgó, Assagador de Santa Llúcia
260 000 €

Bonita parcela con impresionantes vistas al mar, situada en la exclusiva zona de...

0
0 commentaires

Terreno en Parcela 60 D4, Partida El Montgo, Marina Alta s/n

Alicante, Jávea/Xàbia, Montgó - Ermita, PARCELA 60 D4, PARTIDA EL MONTGO, Marina Alta s/n
144 000 €

¿Buscas comprar suelo en venta en Jávea (Alicante)? Excelente oportunidad de adq...

0
0 commentaires

Terreno en calle Core, 11

Alicante, Dénia, La Pedrera-Vessanes, Calle Core, 11
130 800 €

Parcela para construir en urbanización consolidada en Denia, en la zona denomina...

0
0 commentaires

Terreno en La Xara - La Sella - Jesús Pobre

Alicante, Dénia, La Xara - La Sella - Jesús Pobre, La Xara - La Sella - Jesús Pobre
249 000 €

Fantástica Parcela de 10.004 m2 con licencia de obra aprobada y pagado para una...

0
0 commentaires

Terreno en calle del Pinaret, 9

Alicante, Dénia, La Xara - La Sella - Jesús Pobre, Calle del Pinaret, 9
284 000 €

¿Buscas comprar suelo en venta en Denia (Alicante)? Excelente oportunidad de adq...

0
0 commentaires

Terreno en Partida Pinella b

Alicante, Dénia, La Xara - La Sella - Jesús Pobre, PARTIDA PINELLA B
250 000 €

FINCA RUSTICA UBICADA EN UNA ZONA PRIVILEGIADA DE LA XARA, A MANO DE TODOS LOS S...

0
0 commentaires
Appeler

Nous utilisons nos propres cookies et ceux de tiers pour analyser l’utilisation du site Web et vous montrer des publicités en lien avec vos préférences, sur la base d’un profil établi à partir de vos habitudes de navigation (ex. : pages visitées). Plus d’informations. Acceptez-vous les cookies ?