Terreno en calle la Creu, 26

Alicante, El Verger, Calle la Creu, 26
270 000 €
Laisser un commentaire
Urbain Type de bien
1 602 m² Superficie du terrain
Résidentiel Usage de la parcelle
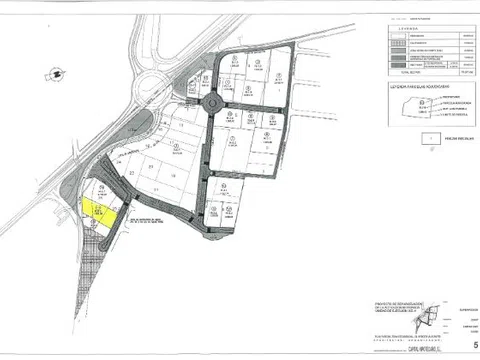
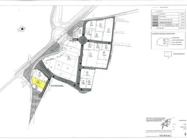
Parcela urbana en situación muy céntrica en Vergel apta para la construcción de residenciales o vivienda unifamiliar aislada. ¡Muy interesante para inversores y promotoras! La parcela está completamente llana. En ella se autoriza la construcción de una vivienda unifamiliar aislada o residenciales de viviendas pareadas, agrupadas y en hilera según artículo 1.2 de las Ordenanzas de Plan Parcial. Altura máxima: 7 m Índice de edificabilidad: 0,5 m2/m2 Edificabilidad máxima: 801,13 m2 Usos pormenorizados Residencial en edificación principal. Se autorizan edificaciones secundarias destinadas a garaje, paelleros y usos similares, siempre que guarden las debidas condiciones estéticas y no supere entre la edificación principal y secundaria el volumen máximo edificable. La concreción de las condiciones de edificación en cuanto a uso, ocupación y demás parámetros se ajustará a lo establecido en las Ordenancias del correspondiente Plan Parcial. Referencia catastral: 0148203BD4004N0001QU Ubicación La parcela ofrece una situación muy céntrica con excelentes comunicaciones a la N332 y AP7. Son 850 m a las playas de Almadrava con su oferta gastronómica y deporte náutico y 1 km a cada ciudad de Vergel y Els Poblets. Muy cerca de la propiedad se encuentra el centro comercial de Vergel y varios supermercados, restaurantes y tiendas. Denia, la capital de la Marina Alta, está a 9 km. Ubicación google maps: 38°51'08.4"N 0°00'14.6"E.

Caractéristiques du bien

Complex information

  • Type de bien
    Urbain

Données de la propriété

  • Type de propriété
    Occasion

Surfaces

  • Superficie du terrain
    1 602 m²

Base

  • Usage de la parcelle
    Résidentiel

Installations

Caractéristiques supplémentaires:

Terrain constructible

Plans

Statistiques des prix du marché pour Terreno en calle la Creu, 26

Carte

Alicante, El Verger, Calle la Creu, 26 Aller à cet endroit
Laisser un commentaire sur Terreno en calle la Creu, 26
0
0 revues
1
0% (0)
2
0% (0)
3
0% (0)
4
0% (0)
5
0% (0)
Promociones Denia
270 000 €
Contacter l'annonceur

Pour plus d’informations, contactez la plateforme

REF: 206863

Critiques à propos de Terreno en calle la Creu, 26
Loading...

No reviews have been left for this object yet

Propriétés les plus proches

Explorez les biens immobiliers que nous avons découverts à proximité de ce site

PARCELA PLAYA DE OLIVA

Valence, Olive
70 000 €

Si estas busacando una parcela en la playa, de Oliva aquí la tienes. Una una opo...

0
0 commentaires

Terreno en calle Riu de La Sénia

Alicante, Dénia, Devesses - Monte Pego, Calle Riu de La Sénia
760 000 €

¡OPORTUNIDAD LIBRE DE COMISIÓN! Parcela de terreno con una superficie de 2986,3...

0
0 commentaires

Terreno en calle Pedreguer

Alicante, El Verger
13 000 €

A la venta el 14.19 del pleno dominio de un solar de 1.036 m², situado en el mun...

0
0 commentaires

Terreno en calle Riu del Vedat, 1

Alicante, Dénia, Devesses - Monte Pego, Calle Riu del Vedat, 1
670 000 €

Suelo URBANO en venta en Dénia SIN COMISIONES Se trata de un suelo RESIDENCIAL d...

0
0 commentaires

Terreno en avenida de Jaume I, 3

Alicante, Pedreguer
585 000 €

2 Parcelas urbanas de 742 m2 cada una, situadas en la avenida principal de la lo...

0
0 commentaires

Terreno en Els Poblets

Alicante, Els Poblets
20 500 €

Parcela rustica agraria. 1.400m2, rectangular, con agua a pie de parcela, camino...

0
0 commentaires

Terreno en Pedreguer

Alicante, Pedreguer
275 000 €

SOLAR URBANO KL-00446-0001 Solar de 535 m², de uso residencial, en venta en Pedr...

0
0 commentaires

Terreno en El Verger

Alicante, El Verger
456 000 €

REF. 24462. Suelo urbano sin edificar, colindante con otros suelos sin edificar...

0
0 commentaires

Terreno en Sanet y Negrals

Alicante, Sanet y Negrals
63 000 €

Parcela en venta de 770 m2 a la entrada de la Urbanización Montesano en Sanet i...

0
0 commentaires
Appeler

Nous utilisons nos propres cookies et ceux de tiers pour analyser l’utilisation du site Web et vous montrer des publicités en lien avec vos préférences, sur la base d’un profil établi à partir de vos habitudes de navigation (ex. : pages visitées). Plus d’informations. Acceptez-vous les cookies ?