Nouvelle œuvre Casa independiente à Elche / Elx

Alicante, Elche / Elx, Peña de Las Águilas, Peña de Las Águilas
385 000 €
2 406 € / m2
Laisser un commentaire
1960 Année de livraison
160 m² m2 construits
115 m² m2 utiles
1 843 m² Superficie du terrain
2 Salles de bains
4 Chambres
Inclus dans le prix Garage
Bon état État de l'immeuble
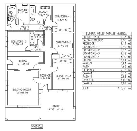
¿Te gustaría vivir en una de las mejores zonas de Elche, en una situación envidiable y lo mas importante, cerca del centro de la ciudad? Aprovecha esta oportunidad de adquirir tu nuevo hogar. Vivienda en una sola planta (muy cómoda) construida en año 1960, pero que se encuentra en buen estado para entrar a vivir, está habitable, aunque requiere actualización con un enorme potencial. Se encuentra ubicada en una parcela rústica de 1.843 m2. Dispone de 4 dormitorios, salón-comedor amplio, cocina amueblada frente al salón semi-abierta´, recibidor de entrada, 2 baños, despensa y lavadero en pasillos. Y en su exterior en planta un porche ideal cubierto para poder disfrutar a lo largo de todo el día. ´ En planta sobre rasante también dispone la parcela de varios anexos según detallamos superficies: Anexo 1 destinado almacén - superficie construida: 17,17 m2 Anexo 2 destinado barbacoa con armario - superficie construida: 11,74 m2 Anexo 3 destinado pérgola´ - superficie construida: 11,05 m2 Anexo 4 destinado trastero - superficie construida: 44,02 m2 Anexo 5 destinado aparcamiento exterior - superficie construida: 45,47 m2 Anexo 6 destinado piscina - superficie construida: 75,45 m2 Todos los anexos han sido facilitados por mediciones (coordenadas georreferenciadas) realizadas por un arquitecto técnico para obtener el certificado de antigüedad tanto de la vivienda como de los anexos. En su exterior todos los anexos están en perfecto estado, con múltiple posibilidades, con amplias zonas verdes bien mantenidas y una zona de piscina ideal para disfrutar tanto en familia como con amistades. Si quiere programar una visita con cita previa, póngase en contacto, esperamos su llamada. - - - - - - - - - - - - - - - - - - - - - - - - - - - HABIKA consultora inmobiliaria - - - - - - - - - - - - - - - - - - - - - - - - - - -.

Promotions remarquables en Espagne

10 unités

Nature Views 2

Alicante, Torrevieja, Les Balcons - Les Hauts de l'Éden, Denia s/n
310 000 € - 379 000 €
1 unités

Hotel en venta en Benidorm centro

Alicante, Benidorm, Plage de Poniente
2 250 000 € - 2 250 000 €
28 unités

Residencial Los Balcones De Calpe

Alicante, Calpe, Calpe Pueblo, Avenida de Madrid, 1
299 000 € - 892 125 €
4 unités

Nature Views

Alicante, Torrevieja, Lago Jardín II, Avenida Denia s/n
309 000 € - 330 000 €
5 unités

ALONIS VILLAS

Alicante, La Villajoyosa / Vila Joiosa, Plage de Torres, Partida Torres s/n
675 000 € - 775 000 €
1 unités

Residencial Royal Beach

Alicante, Guardamar del Segura, village, Miguel Hernández 102
349 500 € - 349 500 €
7 unités

Royal Star

Alicante, Guardamar del Segura
229 500 € - 269 500 €

Caractéristiques du bien

Complex information

Informations sur le projet / État des travaux

  • Année de livraison
    1960
  • État de l'immeuble
    Bon état

Données de la propriété

  • Garage
    Inclus dans le prix
  • Chambres
    4
  • Salles de bains
    2
  • m2 construits
    160 m²
  • m2 utiles
    115 m²
  • Type de propriété
    Occasion

Surfaces

  • Superficie du terrain
    1 843 m²

Base

Certificat énergétique

  • État du certificat énergétique
    Non indiqué

Installations

Commodités du logement:

Terrasse

Dans l'immeuble:

Piscine
Parking privé

État:

Bon état

Statistiques des prix du marché pour Casa independiente

Carte

Alicante, Elche / Elx, Peña de Las Águilas, Peña de Las Águilas Aller à cet endroit
Laisser un commentaire sur Casa independiente
0
0 revues
1
0% (0)
2
0% (0)
3
0% (0)
4
0% (0)
5
0% (0)
HABIKA
385 000 €
de 2 406 € / m2
Contacter l'annonceur

Pour plus d’informations, contactez la plateforme

REF: 452956

Critiques à propos de Casa independiente
Loading...

No reviews have been left for this object yet

Propriétés les plus proches

Explorez les biens immobiliers que nous avons découverts à proximité de ce site

Obra nueva Villas Ciudad Jardin en Elche / Elx

Alicante, Elche / Elx, Elche Ville, Calle Manacor 12- 16 con Calvia, 5
490 000 €

Si quieres conseguir la casa de tus sueños, no busques más, aquí la tienes.Descu...

0
0 commentaires

Obra nueva Villas Ciudad Jardin en Elche / Elx

Alicante, Elche / Elx, Elche Ville, Calle Manacor 12- 16 con Calvia, 5
480 000 €

Si quieres conseguir la casa de tus sueños, no busques más, aquí la tienes.Descu...

0
0 commentaires

Obra nueva Villas Ciudad Jardin en Elche / Elx

Alicante, Elche / Elx, Elche Ville, Calle Manacor 12- 16 con Calvia, 5
515 000 €

Si quieres conseguir la casa de tus sueños, no busques más, aquí la tienes.Descu...

0
0 commentaires

Obra nueva Villas Ciudad Jardin en Elche / Elx

Alicante, Elche / Elx, Elche Ville, Calle Manacor 12- 16 con Calvia, 5
525 000 €

Si quieres conseguir la casa de tus sueños, no busques más, aquí la tienes.Descu...

0
0 commentaires

Casa o chalet independiente en venta en camino dels Patiños

Alicante, Elche / Elx, La Hoya-Daimes-El Derramador, Camino dels Patiños
158 000 €

Casa de campo rústica en planta baja para reformar, ubicada en una zona tranquil...

0
0 commentaires

Chalet adosado en venta en Av. Costa Blanca

Alicante, Elche / Elx, Arenales del Sol, Av. Costa Blanca
185 000 €

Este encantador bungalow se sitúa en la hermosa área de Arenales del Sol y se or...

0
0 commentaires

Finca rústica en venta en Algoda-Matola-Llano de San José

Alicante, Elche / Elx, Algoda-Matola-Llano de San José
140 000 €

Descubre una encantadora casa de campo con terreno en la tranquila zona de Matol...

0
0 commentaires

Casa o chalet independiente en venta en Algoda-Matola-Llano de San José

Alicante, Elche / Elx, Algoda-Matola-Llano de San José
590 000 €

Magnífico chalet independiente ubicado en una zona tranquila, a solo cinco minut...

0
0 commentaires

Casa o chalet independiente en venta en Portes Encarnades-Torreta-Portalada

Alicante, Elche / Elx, Elche Ville
494 000 €

Este hermoso chalet se encuentra en una tranquila área residencial, ideal para q...

0
0 commentaires

Nous utilisons nos propres cookies et ceux de tiers pour analyser l’utilisation du site Web et vous montrer des publicités en lien avec vos préférences, sur la base d’un profil établi à partir de vos habitudes de navigation (ex. : pages visitées). Plus d’informations. Acceptez-vous les cookies ?