Vente d'appartement à Calle del Palangre, 6, Torrevieja

Alicante, Torrevieja, Plage des Fous, Calle del Palangre, 6
238 000 €
1 904 € / m2
Laisser un commentaire
Appartements Type de bien
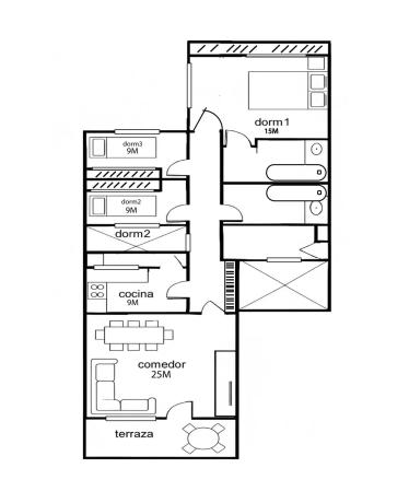
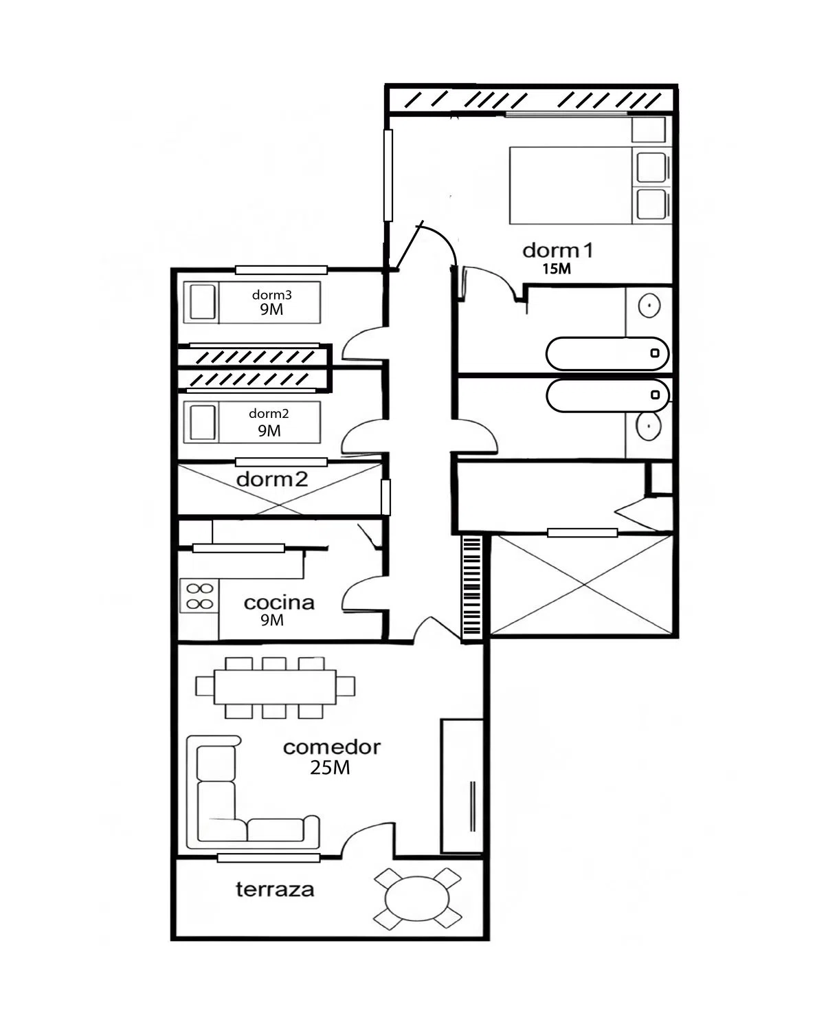
125 m² m2 construits
2 Salles de bains
4 Chambres
3 Plante
Bon état État de l'immeuble
Este espacioso y luminoso apartamento de cuatro habitaciones cuenta con tres dormitorios y un amplio salón. Ubicado a tan solo 50 metros de una playa de arena blanca, evoca la sensación de un verano eterno. Construido en 2008, el apartamento combina arquitectura moderna con acabados impecables: paredes lisas, materiales naturales, aire acondicionado central y gas natural; todo funciona a la perfección. El amplio salón de 25 m² se abre a una gran terraza, el lugar perfecto para disfrutar del café matutino al sol o de cenas al atardecer. Dos amplios baños, una cocina independiente con electrodomésticos modernos y un balcón de servicio garantizan el máximo confort y orden. Un ascensor conduce al tercer piso, ofreciendo comodidad y seguridad. Todo lo que necesita para el día a día está a poca distancia a pie: tiendas, cafeterías, farmacias, bancos y salones de belleza; todo muy cerca, sin necesidad de coche.

Caractéristiques du bien

Complex information

  • Type de bien
    Appartements

Informations sur le projet / État des travaux

  • État de l'immeuble
    Bon état

Données de la propriété

  • Plante
    3
  • Chambres
    4
  • Salles de bains
    2
  • m2 construits
    125 m²
  • Type de propriété
    Occasion

Base

Certificat énergétique

  • Certificat énergétique
    C
  • Émissions
    11 kg CO2/m² year
  • Consommation énergétique
    66 kwh/m² year

Installations

Commodités du logement:

Climatisation
Terrasse

Dans l'immeuble:

Ascenseur

État:

Bon état

Statistiques des prix du marché pour Piso en calle del Palangre, 6

291 329 € (3 238 €/m2)
Prix moyen du Appartements primaire dans la ville de Torrevieja
185 610 € (2 309 €/m2)
Prix moyen du Appartements secondaire dans la ville de Torrevieja

Carte

Alicante, Torrevieja, Plage des Fous, Calle del Palangre, 6 Aller à cet endroit
Laisser un commentaire sur Piso en calle del Palangre, 6
0
0 revues
1
0% (0)
2
0% (0)
3
0% (0)
4
0% (0)
5
0% (0)
ANGELA MANZANERO
238 000 €
de 1 904 € / m2
Contacter l'annonceur

Pour plus d’informations, contactez la plateforme

REF: 434342

Critiques à propos de Piso en calle del Palangre, 6
Loading...

No reviews have been left for this object yet

Appartements pas chers 64626 Appartements à rénover 21902 Appartements jusqu'à 50.000€ 18663 Appartements jusqu'à 100.000€ 20261 Maisons jusqu'à 100.000€ 20261 Appartements avec vue sur la mer 19409 Appartements de luxe 19115 Appartements neufs pas chers 37510 Vente d'appartements de 2 chambres Alicante 22543 Vente appartements 3 chambres Alicante 20511 Vente appartements 4 chambres Alicante 14419 Vente appartements 5 chambres Alicante 13153 Appartements en bon état Alicante 15864 Appartements à rénover Alicante 15406 Appartements d'occasion Alicante 33569 Appartements avec vue sur la mer Alicante 13120 Appartements bon marché Alicante 34304 Appartements à vendre avec ascenseur Alicante 27435 Appartements jusqu'à 50 000 € Alicante 13233 Appartements jusqu'à 100.000€ Alicante 14260 Appartements neufs Alicante 13671 Appartements de luxe Alicante 13110 Appartements extérieurs Alicante 13134 Appartements neufs pas chers Alicante 13671 Appartements de Particuliers Alicante 7881 Vente appartements 2 chambres Torrevieja 4207 Vente appartements 3 chambres Torrevieja 4054 Vente d'appartements 4 chambres Torrevieja 3660 Vente appartements 5 chambres Torrevieja 3613 Appartements en bon état Torrevieja 3921 Appartements à rénover Torrevieja 3685 Appartements d'occasion Torrevieja 4896 Appartements avec vue sur la mer Torrevieja 3606 Appartements pas chers Torrevieja 4938 Appartements à vendre avec ascenseur Torrevieja 4504 Appartements jusqu'à 100 000 € Torrevieja 3661 Appartements neufs Torrevieja 3626 Appartements jusqu'à 50.000€ Torrevieja 3593 Appartements de luxe Torrevieja 3591 Appartements extérieurs Torrevieja 3591 Appartements neufs pas chers Torrevieja 3626 Appartements de particuliers Torrevieja 2557

Propriétés les plus proches

Explorez les biens immobiliers que nous avons découverts à proximité de ce site

Apartamentos en Venta en Calle Pleamar, 22, Torrevieja

Alicante, Torrevieja, El Acequión - Los Náufragos, Calle Pleamar, 22
393 000 €

Un sueño, el mar, tu hogar Ocean Dream by TM se encuentra en la privilegiada zon...

0
0 commentaires

Apartamentos en Venta en Calle Pleamar, 22, Torrevieja

Alicante, Torrevieja, El Acequión - Los Náufragos, Calle Pleamar, 22
246 000 €

Un sueño, el mar, tu hogar Ocean Dream by TM se encuentra en la privilegiada zon...

0
0 commentaires

Apartamentos en Venta en Calle Pleamar, 22, Torrevieja

Alicante, Torrevieja, El Acequión - Los Náufragos, Calle Pleamar, 22
336 000 €

Un sueño, el mar, tu hogar Ocean Dream by TM se encuentra en la privilegiada zon...

0
0 commentaires

Apartamentos en Venta en Calle Pleamar, 22, Torrevieja

Alicante, Torrevieja, El Acequión - Los Náufragos, Calle Pleamar, 22
260 000 €

Un sueño, el mar, tu hogar Ocean Dream by TM se encuentra en la privilegiada zon...

0
0 commentaires

Apartamentos en Venta en Calle Pleamar, 22, Torrevieja

Alicante, Torrevieja, El Acequión - Los Náufragos, Calle Pleamar, 22
407 000 €

Un sueño, el mar, tu hogar Ocean Dream by TM se encuentra en la privilegiada zon...

0
0 commentaires

Apartamentos en Venta en Calle Pleamar, 22, Torrevieja

Alicante, Torrevieja, El Acequión - Los Náufragos, Calle Pleamar, 22
310 000 €

Un sueño, el mar, tu hogar Ocean Dream by TM se encuentra en la privilegiada zon...

0
0 commentaires

Apartamentos en Venta en Calle Pleamar, 22, Torrevieja

Alicante, Torrevieja, El Acequión - Los Náufragos, Calle Pleamar, 22
303 000 €

Un sueño, el mar, tu hogar Ocean Dream by TM se encuentra en la privilegiada zon...

0
0 commentaires

Apartamentos en Venta en Calle Pleamar, 22, Torrevieja

Alicante, Torrevieja, El Acequión - Los Náufragos, Calle Pleamar, 22
280 000 €

Un sueño, el mar, tu hogar Ocean Dream by TM se encuentra en la privilegiada zon...

0
0 commentaires

Apartamentos en Venta en Calle Pleamar, 22, Torrevieja

Alicante, Torrevieja, El Acequión - Los Náufragos, Calle Pleamar, 22
293 000 €

Un sueño, el mar, tu hogar Ocean Dream by TM se encuentra en la privilegiada zon...

0
0 commentaires

Nous utilisons nos propres cookies et ceux de tiers pour analyser l’utilisation du site Web et vous montrer des publicités en lien avec vos préférences, sur la base d’un profil établi à partir de vos habitudes de navigation (ex. : pages visitées). Plus d’informations. Acceptez-vous les cookies ?