Vente d'appartement à Calle Eneas, Torrevieja

Alicante, Torrevieja, Plage des Fous, Calle Eneas
105 000 €
3 750 € / m2
Laisser un commentaire
Appartements Type de bien
1991 Année de livraison
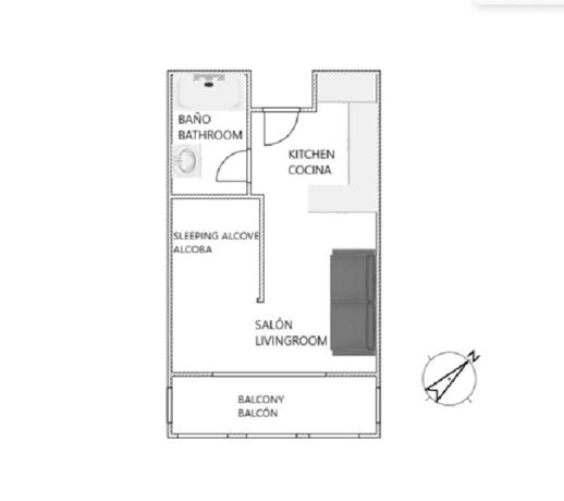
28 m² m2 construits
24 m² m2 utiles
1 Salles de bains
1 Chambres
1 Plante
Bon état État de l'immeuble
¡Estudio moderno cerca del mar! Bienvenido a este moderno y bien distribuido estudio con cocina elegante y práctica zona de dormitorio. Disfrute del balcón acristalado como un espacio extra con un vistazo al mar. La comunidad ofrece una piscina compartida para relajarse. Ubicación excelente cerca de todos los servicios, ideal tanto para vacaciones como para vivir todo el año. ¡Bienvenido a la visita!

Caractéristiques du bien

Complex information

  • Type de bien
    Appartements

Informations sur le projet / État des travaux

  • Année de livraison
    1991
  • État de l'immeuble
    Bon état

Données de la propriété

  • Plante
    1
  • Chambres
    1
  • Salles de bains
    1
  • m2 construits
    28 m²
  • m2 utiles
    24 m²
  • Type de propriété
    Occasion

Base

Certificat énergétique

  • Certificat énergétique
    E
  • Émissions
    26 kg CO2/m² year
  • Consommation énergétique
    143 kwh/m² year

Installations

Dans l'immeuble:

Piscine
Ascenseur

État:

Bon état

Statistiques des prix du marché pour Piso en calle Eneas

303 170 € (3 317 €/m2)
Prix moyen du Appartements primaire dans la ville de Torrevieja
190 630 € (2 314 €/m2)
Prix moyen du Appartements secondaire dans la ville de Torrevieja

Carte

Alicante, Torrevieja, Plage des Fous, Calle Eneas Aller à cet endroit
Laisser un commentaire sur Piso en calle Eneas
0
0 revues
1
0% (0)
2
0% (0)
3
0% (0)
4
0% (0)
5
0% (0)
Fastighetsbyran Torrevieja
105 000 €
de 3 750 € / m2
Contacter l'annonceur

Pour plus d’informations, contactez la plateforme

REF: 452883

Critiques à propos de Piso en calle Eneas
Loading...

No reviews have been left for this object yet

Appartements pas chers 62853 Appartements à rénover 30825 Appartements jusqu'à 50.000€ 28908 Appartements jusqu'à 100.000€ 30136 Maisons jusqu'à 100.000€ 30136 Appartements avec vue sur la mer 29678 Appartements de luxe 29343 Appartements neufs pas chers 47675 Vente d'appartements de 2 chambres Alicante 23568 Vente appartements 3 chambres Alicante 24026 Vente appartements 4 chambres Alicante 21222 Vente appartements 5 chambres Alicante 20334 Appartements en bon état Alicante 21933 Appartements à rénover Alicante 21238 Appartements d'occasion Alicante 28822 Appartements avec vue sur la mer Alicante 20304 Appartements bon marché Alicante 29459 Appartements à vendre avec ascenseur Alicante 26238 Appartements jusqu'à 50 000 € Alicante 20387 Appartements jusqu'à 100.000€ Alicante 21044 Appartements neufs Alicante 20765 Appartements de luxe Alicante 20247 Appartements extérieurs Alicante 20292 Appartements neufs pas chers Alicante 20765 Appartements de Particuliers Alicante 17388 Vente appartements 2 chambres Torrevieja 4345 Vente appartements 3 chambres Torrevieja 4337 Vente d'appartements 4 chambres Torrevieja 4144 Vente appartements 5 chambres Torrevieja 4117 Appartements en bon état Torrevieja 4205 Appartements à rénover Torrevieja 4152 Appartements d'occasion Torrevieja 4669 Appartements avec vue sur la mer Torrevieja 4117 Appartements pas chers Torrevieja 4706 Appartements à vendre avec ascenseur Torrevieja 4502 Appartements jusqu'à 100 000 € Torrevieja 4125 Appartements neufs Torrevieja 4138 Appartements jusqu'à 50.000€ Torrevieja 4106 Appartements de luxe Torrevieja 4105 Appartements extérieurs Torrevieja 4105 Appartements neufs pas chers Torrevieja 4138 Appartements de particuliers Torrevieja 3786

Propriétés les plus proches

Explorez les biens immobiliers que nous avons découverts à proximité de ce site

Apartamentos en Venta en Avenida Dr. Gregorio Marañón, 62, Torrevieja

Alicante, Torrevieja, El Acequión - Los Náufragos, Avenida Dr. Gregorio Marañón, 62
395 000 €

Bienvenido a Esentya, un innovador y emocionante proyecto inmobiliario ubicado e...

0
0 commentaires

Apartamentos en Venta en Avenida Dr. Gregorio Marañón, 62, Torrevieja

Alicante, Torrevieja, El Acequión - Los Náufragos, Avenida Dr. Gregorio Marañón, 62
290 000 €

Bienvenido a Esentya, un innovador y emocionante proyecto inmobiliario ubicado e...

0
0 commentaires

Apartamentos en Venta en Avenida Dr. Gregorio Marañón, 62, Torrevieja

Alicante, Torrevieja, El Acequión - Los Náufragos, Avenida Dr. Gregorio Marañón, 62
250 000 €

Bienvenido a Esentya, un innovador y emocionante proyecto inmobiliario ubicado e...

0
0 commentaires

Apartamentos en Venta en Avenida Dr. Gregorio Marañón, 62, Torrevieja

Alicante, Torrevieja, El Acequión - Los Náufragos, Avenida Dr. Gregorio Marañón, 62
235 000 €

Bienvenido a Esentya, un innovador y emocionante proyecto inmobiliario ubicado e...

0
0 commentaires

Apartamentos en Venta en Avenida Dr. Gregorio Marañón, 62, Torrevieja

Alicante, Torrevieja, El Acequión - Los Náufragos, Avenida Dr. Gregorio Marañón, 62
228 000 €

Bienvenido a Esentya, un innovador y emocionante proyecto inmobiliario ubicado e...

0
0 commentaires

Apartamentos en Venta en Avenida Dr. Gregorio Marañón, 62, Torrevieja

Alicante, Torrevieja, El Acequión - Los Náufragos, Avenida Dr. Gregorio Marañón, 62
240 000 €

Bienvenido a Esentya, un innovador y emocionante proyecto inmobiliario ubicado e...

0
0 commentaires

Apartamentos en Venta en Avenida Dr. Gregorio Marañón, 62, Torrevieja

Alicante, Torrevieja, El Acequión - Los Náufragos, Avenida Dr. Gregorio Marañón, 62
230 000 €

Bienvenido a Esentya, un innovador y emocionante proyecto inmobiliario ubicado e...

0
0 commentaires

Apartamentos en Venta en Avenida Dr. Gregorio Marañón, 62, Torrevieja

Alicante, Torrevieja, El Acequión - Los Náufragos, Avenida Dr. Gregorio Marañón, 62
400 000 €

Bienvenido a Esentya, un innovador y emocionante proyecto inmobiliario ubicado e...

0
0 commentaires

Apartamentos en Venta en Avenida Dr. Gregorio Marañón, 62, Torrevieja

Alicante, Torrevieja, El Acequión - Los Náufragos, Avenida Dr. Gregorio Marañón, 62
220 000 €

Bienvenido a Esentya, un innovador y emocionante proyecto inmobiliario ubicado e...

0
0 commentaires

Nous utilisons nos propres cookies et ceux de tiers pour analyser l’utilisation du site Web et vous montrer des publicités en lien avec vos préférences, sur la base d’un profil établi à partir de vos habitudes de navigation (ex. : pages visitées). Plus d’informations. Acceptez-vous les cookies ?