Espagne Sous-sols Espagne Sous-sols Alicante Sous-sols Torrevieja Piso en venta en Avenida Habaneras - Curva de Palangre

Vente de bas en Plage du Cura, Torrevieja

Alicante, Torrevieja, Plage du Cura
Vendre
Laisser un commentaire
Sous-sols Type de bien
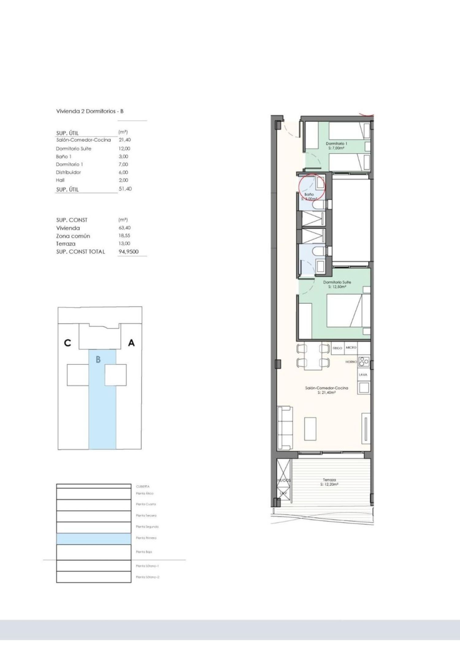
63 m² m2 construits
2 Salles de bains
2 Chambres
Pas de chauffage Chauffage
Extérieur Distribution des fenêtres
RESIDENCIAL DE OBRA NUEVA EN TORREVIEJA Apartamentos y áticos de obra nueva de 2 y 3 dormitorios situados en una de las calles más importantes de Torrevieja y a tan sólo 200 metros de la Playa de Los Locos. Hermosas propiedades son la opción perfecta para vivir todo el año de vacaciones. Cerca de bares, restaurantes, zonas de ocio, tiendas, supermercados, cerca del paseo marítimo, donde podrá disfrutar de los más bellos amaneceres.. . Muebles de cocina incluidos y bancada de mármol o similar con 3 enchufes y luces LED. Baños completos con muebles, espejo con luces LED, mampara fija de cristal y azulejos de porcelana artística. Armarios empotrados forrados con cajoneras y luces LED con sensor. Carpintería de aluminio o PVC y ventanas con rotura de puente térmico para aislamiento acústico. Piscina y solarium comunitarios Posibilidad de plaza de garaje subterráneo y trastero con coste adicional. Torrevieja es una ciudad española de la provincia de Alicante, en la Costa Blanca. Es conocida por su clima típicamente mediterráneo y su costa. Tiene paseos marítimos con complejos turísticos a lo largo de sus playas de arena. El pequeño Museo del Mar y de la Sal alberga exposiciones sobre la historia pesquera y salinera de la ciudad. En el interior, el Parque Natural de las Lagunas de La Mata-Torrevieja cuenta con senderos y dos lagunas saladas, una rosa y otra verde. El aeropuerto de Alicante está a 40 minutos y el de Murcia, a 1 hora.

Caractéristiques du bien

Complex information

  • Type de bien
    Sous-sols

Mémoire des Qualités

  • Chauffage
    Pas de chauffage

Données de la propriété

  • Chambres
    2
  • Salles de bains
    2
  • m2 construits
    63 m²
  • Type de propriété
    Occasion
  • Meubles
    Avec meubles

Base

  • Distribution des fenêtres
    Extérieur

Installations

Commodités du logement:

Placards intégrés
Meubles
Débarras
Chauffage
Fenêtres intérieures
Fenêtre extérieure

Dans l'immeuble:

Piscine
Garage
Ascenseur
Bar
Spa
Cave
Solarium

État:

Bon état
Nouveau projet

Statistiques des prix du marché pour Piso en venta en Avenida Habaneras - Curva de Palangre

333 788 € (2 821 €/m2)
Prix moyen du Sous-sols primaire dans la ville de Torrevieja

Carte

Alicante, Torrevieja, Plage du Cura Aller à cet endroit
Laisser un commentaire sur Piso en venta en Avenida Habaneras - Curva de Palangre
0
0 revues
1
0% (0)
2
0% (0)
3
0% (0)
4
0% (0)
5
0% (0)
Mivo Business Centre
Vendre
Contacter l'annonceur

Pour plus d’informations, contactez la plateforme

REF: 46169

Critiques à propos de Piso en venta en Avenida Habaneras - Curva de Palangre
Loading...

No reviews have been left for this object yet

Propriétés les plus proches

Explorez les biens immobiliers que nous avons découverts à proximité de ce site

Apartamentos en Venta en Calle Teulada, 3, Torrevieja

Alicante, Torrevieja, Les Balcons - Les Hauts de l'Éden, Calle Teulada, 3
290 000 €

Balcones De Amay se trouve dans une zone tranquille de l'urbanisation Los Balcon...

0
0 commentaires

Apartamentos en Venta en Calle Teulada, 3, Torrevieja

Alicante, Torrevieja, Les Balcons - Les Hauts de l'Éden, Calle Teulada, 3
265 000 €

Balcones De Amay se trouve dans une zone tranquille de l'urbanisation Los Balcon...

0
0 commentaires

Lagoons Village Laguna Rosa

Alicante, Torrevieja, La Siesta - El Salado - Torreta, Calle Jose Carreras, 3
251 000 €

Un complexe résidentiel exclusif situé entre le parc naturel des Lagunas de La M...

0
0 commentaires

Estudio en venta en Avenida Habaneras - Curva de Palangre

Alicante, Torrevieja, Plage du Cura
119 900 €

¡Le ofrecemos un apartamento en un magnífico edificio de clase ejecutiva "Reside...

0
0 commentaires

Dúplex en venta en La Siesta - El Salado - Torreta

Alicante, Torrevieja, La Siesta - El Salado - Torreta
109 000 €

Casa ubicada en el chaparral; excelente zona familiar, con bares alrededor, tien...

0
0 commentaires

Piso en venta en Ciclón

Alicante, Torrevieja, El Acequión - Los Náufragos, Ciclón
195 000 €

Moderno piso en venta en un residencial exclusivo, a solo 100 metros del mar. Co...

0
0 commentaires

Piso en venta en El Acequión

Alicante, Torrevieja, El Acequión - Los Náufragos
74 999 €

Luminoso apartamento en urbanización con piscina comunitaria a atan solo 200m de...

0
0 commentaires

Piso en venta en calle Beduinos

Alicante, Orihuela, Orihuela Costa, Calle Beduinos
160 000 €

Bungalow en planta baja con amplia terraza!Bienvenido a tu nuevo hogar en Zeniam...

0
0 commentaires

Piso en venta en Los Balcones - Los Altos del Edén

Alicante, Torrevieja, Les Balcons - Les Hauts de l'Éden
265 000 €

PLANTA BAJA NUY SOLEADA. LISTO PARA ENTRAR A VIVIRImpresionante propiedad de esq...

0
0 commentaires
Appeler

Nous utilisons nos propres cookies et ceux de tiers pour analyser l’utilisation du site Web et vous montrer des publicités en lien avec vos préférences, sur la base d’un profil établi à partir de vos habitudes de navigation (ex. : pages visitées). Plus d’informations. Acceptez-vous les cookies ?