Espagne Maison Espagne Maison Alicante Maison Torrevieja Casa independiente en avenida Torreblanca, 11

Nouvelle œuvre Casa independiente en avenida Torreblanca, 11 à Torrevieja

Alicante, Torrevieja, Nueva Torrevieja - Aguas Nuevas, Avenida Torreblanca, 11
450 000 €
4 639 € / m2
Laisser un commentaire
3 Chambres
2009 Année de livraison
97 m² m2 construits
2 Salles de bains
Inclus dans le prix Garage
Bon état État de l'immeuble
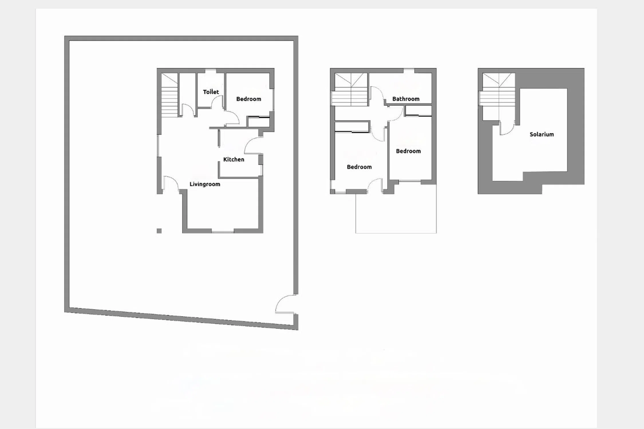
Preciosa villa con vistas al mar en la Marina de Torreblanca - A solo 600 m de la playa de La Mata Una oportunidad única para adquirir una de las villas más exclusivas de Torre La Mata, con vistas panorámicas al mar desde todas las ventanas, excelente orientación sur, excepcional potencial de ampliación y reforma, y una ubicación privilegiada a solo 600 m de la playa y a 100 m del supermercado Dialprix.Ubicada a solo 38 km del aeropuerto de Alicante, esta propiedad es perfecta como vivienda habitual, residencia vacacional o inversión. La villa Planta baja:La planta baja ofrece un luminoso y cómodo salón conectado a una cocina americana. En esta planta, también hay un baño y un práctico trastero. Desde el trastero, se puede crear una escalera interior con acceso directo al sótano para una cómoda conexión entre todas las plantas. Primera planta:La primera planta consta de dos dormitorios y un amplio baño familiar. Uno de los dormitorios tiene acceso a un agradable balcón con hermosas vistas al mar y al verde valle, ofreciendo un espacio tranquilo para disfrutar del entorno. Segunda Planta:Subiendo la escalera, la segunda planta conduce a un solárium orientado al sur. Esta zona es ideal para tomar el sol durante todo el año. Gracias a sus muros de protección, el solárium está protegido de los vientos fríos, lo que permite disfrutar del sol incluso en invierno. Espacios Exteriores:La villa está rodeada por un jardín privado de 161 m² con vistas al verde valle, que ofrece privacidad y un atractivo entorno natural. También hay espacio disponible para construir una piscina privada si se desea. Plantas Subterráneas y Potencial de AmpliaciónDebajo de la casa, la propiedad incluye un garaje privado de 60 m² con espacio suficiente para vehículos y trastero.Además, hay un amplio sótano de 90 m² que puede convertirse en tres dormitorios adicionales y un baño. Esta planta baja también puede tener acceso independiente, lo que aumenta el valor para familias numerosas, invitados o como opción de alquiler.Muchas casas vecinas ya han completado ampliaciones similares. Ubicación destacadaA 600 m de la playa de La MataA 100 m del supermercado DialprixCerca de tiendas, restaurantes, parques y transporte públicoA 38 km del aeropuerto de AlicanteFácil acceso al centro de Torrevieja y a las atracciones costeras ¿Por qué esta villa es especial?Vistas al mar desde todas las ventanasEdificio singular de varios niveles con gran potencial de expansiónOrientado al sur, luminoso y abiertoUbicado en una de las zonas costeras más codiciadas de TorreviejaMantenido con esmero por propietarios suecosUna valiosa oportunidad para personalizar, invertir o disfrutar de vacaciones.

Promotions remarquables en Espagne

10 unités

Nature Views 2

Alicante, Torrevieja, Les Balcons - Les Hauts de l'Éden, Denia s/n
310 000 € - 379 000 €
1 unités

Hotel en venta en Benidorm centro

Alicante, Benidorm, Plage de Poniente
2 250 000 € - 2 250 000 €
28 unités

Residencial Los Balcones De Calpe

Alicante, Calpe, Calpe Pueblo, Avenida de Madrid, 1
299 000 € - 892 125 €
4 unités

Nature Views

Alicante, Torrevieja, Lago Jardín II, Avenida Denia s/n
309 000 € - 330 000 €
5 unités

ALONIS VILLAS

Alicante, La Villajoyosa / Vila Joiosa, Plage de Torres, Partida Torres s/n
675 000 € - 775 000 €
1 unités

Residencial Royal Beach

Alicante, Guardamar del Segura, village, Miguel Hernández 102
349 500 € - 349 500 €
7 unités

Royal Star

Alicante, Guardamar del Segura
229 500 € - 269 500 €

Caractéristiques du bien

Complex information

Informations sur le projet / État des travaux

  • Année de livraison
    2009
  • État de l'immeuble
    Bon état

Données de la propriété

  • Garage
    Inclus dans le prix
  • Chambres
    3
  • Salles de bains
    2
  • m2 construits
    97 m²
  • Orientation
    Est, Sud
  • Type de propriété
    Occasion

Base

Certificat énergétique

  • État du certificat énergétique
    En cours

Installations

Commodités du logement:

Climatisation
Terrasse

Dans l'immeuble:

Jardin
Parking privé

État:

Bon état

Vues:

Vues dégagées

Statistiques des prix du marché pour Casa independiente en avenida Torreblanca, 11

507 537 € (3 412 €/m2)
Prix moyen du primaire dans la ville de Torrevieja
350 592 € (2 545 €/m2)
Prix moyen du secondaire dans la ville de Torrevieja

Carte

Alicante, Torrevieja, Nueva Torrevieja - Aguas Nuevas, Avenida Torreblanca, 11 Aller à cet endroit
Laisser un commentaire sur Casa independiente en avenida Torreblanca, 11
0
0 revues
1
0% (0)
2
0% (0)
3
0% (0)
4
0% (0)
5
0% (0)
EFFICAX REAL ESTATE
450 000 €
de 4 639 € / m2
Contacter l'annonceur

Pour plus d’informations, contactez la plateforme

REF: 433675

Critiques à propos de Casa independiente en avenida Torreblanca, 11
Loading...

No reviews have been left for this object yet

Propriétés les plus proches

Explorez les biens immobiliers que nous avons découverts à proximité de ce site

Chalet en Barrio El Molino

Alicante, Torrevieja, Centre, Barrio El Molino
165 000 €

Esta encantadora casa adosada se encuentra en la playa de Naufragos en Torreviej...

0
0 commentaires

Chalet en Barrio El Molino

Alicante, Torrevieja, Centre, Barrio El Molino
168 000 €

Esta encantadora casa adosada en Torrevieja es una fantástica oportunidad de rev...

0
0 commentaires

Chalet independiente en Venta en Calle Popa , 28, Torrevieja

Alicante, Torrevieja, Plage des Fous, Calle Popa , 28
590 000 €

Se vende villa con vistas al mar (obra nueva) en segunda línea de mar y muy cerc...

0
0 commentaires

Chalet independiente en Venta en Avenida Alemania, 51, Torrevieja

Alicante, Torrevieja, La Mata, Avenida Alemania, 51
990 000 €

Se vende una casa moderna (obra nueva) a 1 minuto de la playa de “La Mata” con v...

0
0 commentaires

Chalet independiente en Venta en Avenida Alemania, 51, Torrevieja

Alicante, Torrevieja, La Mata, Avenida Alemania, 51
940 000 €

Se vende una casa moderna (obra nueva) a 1 minuto de la playa de “La Mata” con v...

0
0 commentaires

Chalet independiente en Venta en Avenida de Alemania, 43, Torrevieja

Alicante, Torrevieja, La Mata, Avenida de Alemania, 43
820 000 €

Últimas 2 unidades – Entrega: octubre 2023¡Descubre Villa Playa: Exclusivas vill...

0
0 commentaires

Chalet independiente en Venta en Avenida de Alemania, 43, Torrevieja

Alicante, Torrevieja, La Mata, Avenida de Alemania, 43
865 000 €

Últimas 2 unidades – Entrega: octubre 2023¡Descubre Villa Playa: Exclusivas vill...

0
0 commentaires

Chalet en Barrio El Molino

Alicante, Torrevieja, Centre, Barrio El Molino
424 900 €

Moderna villa independiente en una zona muy solicitada de Los Balcones, cerca de...

0
0 commentaires

Chalet en Barrio El Molino

Alicante, Torrevieja, Centre, Barrio El Molino
235 000 €

¡Mira esta hermosa casa que acabamos de recibir! Está orientada al sur y está ub...

0
0 commentaires
Appeler

Nous utilisons nos propres cookies et ceux de tiers pour analyser l’utilisation du site Web et vous montrer des publicités en lien avec vos préférences, sur la base d’un profil établi à partir de vos habitudes de navigation (ex. : pages visitées). Plus d’informations. Acceptez-vous les cookies ?