Nouvelle œuvre Can Cobet à Argentona

Barcelone, Argentona, Can Raimí - Les Ginesteres - Can Cabot, Can Cabot
de 775 000 €
3 063 € / m2
Laisser un commentaire
2026 Année de livraison
253 m² - 253 m² Surfaces des biens
4 Nombre de chambres
4 Bains

Immobilier à Can Cobet

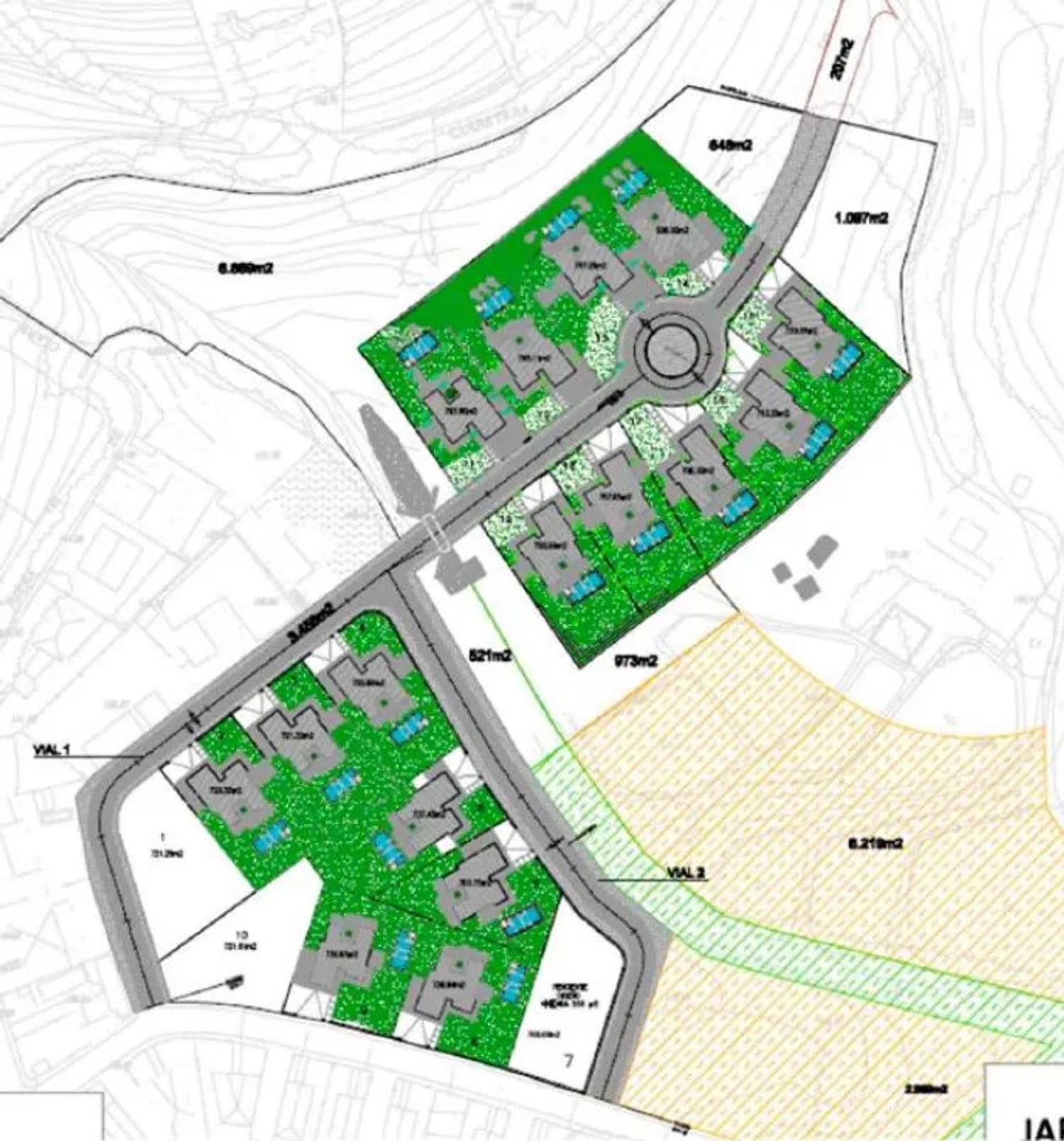
Découvrez cette maison unifamiliale de design nichée dans un cadre exclusif à Can Cabot, Barcelone. Cette superbe résidence à quatre vents est implantée sur une parcelle de 750 m², offrant un style moderne, de grands espaces et une disposition fonctionnelle alliant confort et intimité. Sur une surface construite de 253 m² répartie sur deux étages, la maison se distingue par sa luminosité, ses finitions de qualité et ses vues imprenables.

Avantages d'un nouveau bâtiment Can Cobet

Au rez-de-chaussée, un garage pouvant accueillir deux véhicules s'associe à l'entrée principale. Un vaste noyau d'accès vertical relie le rez-de-chaussée à l'étage supérieur, conçu pour accueillir un ascenseur si souhaité. L'intérieur se divise en deux zones distinctes :

Zone de jour : Composée de trois espaces ouverts et bien distincts : une cuisine moderne et fonctionnelle, un salon-salle à manger et un coin détente avec de grandes baies vitrées, profitant ainsi de la lumière naturelle et des vues sur le jardin. Depuis cet étage, on accède directement à un espace pavé entouré de verdure, parfait pour se relaxer à l'extérieur.

Zone de nuit : Comprend une suite avec salle de bain privative, une pratique buanderie et une toilette de courtoisie. À l'étage supérieur, se trouve la zone de repos avec trois chambres doubles, toutes dotées de grandes fenêtres assurant luminosité et ouverture sur la nature environnante.

La disposition comprend : une suite parentale avec dressing, salle de bain privative et accès à une spectaculaire terrasse de 40 m². Deux chambres doubles partagent une salle de bain complète et une deuxième terrasse de 20 m², offrant un espace extérieur supplémentaire pour apprécier les vues et la tranquillité du quartier.

Vie en ville Argentona

La propriété est entourée de 500 m² de jardin, mélangeant espaces verts et zones pavées, idéales pour la détente et le loisir. L'extérieur offre de multiples possibilités d'utilisation, depuis les réunions familiales jusqu'aux zones récréatives entièrement personnalisables. Conçue pour offrir un confort optimal, cette maison dispose de quatre salles de bains complètes, de quatre chambres doubles et de la possibilité d'intégrer un ascenseur pour une accessibilité et un confort accrus. Un bien qui conjugue intimité, espace et exclusivité, avec une situation privilégiée et d'excellentes connexions avec les principaux points d'intérêt de la région.

Promotions remarquables en Espagne

10 unités

Nature Views 2

Alicante, Torrevieja, Les Balcons - Les Hauts de l'Éden, Denia s/n
310 000 € - 379 000 €
1 unités

Hotel en venta en Benidorm centro

Alicante, Benidorm, Plage de Poniente
2 250 000 € - 2 250 000 €
32 unités

Residencial Los Balcones De Calpe

Alicante, Calpe, Calpe Pueblo, Avenida de Madrid, 1
299 000 € - 892 125 €
7 unités

Nature Views

Alicante, Torrevieja, Lago Jardín II, Avenida Denia s/n
305 000 € - 330 000 €
5 unités

ALONIS VILLAS

Alicante, La Villajoyosa / Vila Joiosa, Plage de Torres, Partida Torres s/n
675 000 € - 775 000 €
1 unités

Residencial Royal Beach

Alicante, Guardamar del Segura, village, Miguel Hernández 102
349 500 € - 349 500 €
7 unités

Royal Star

Alicante, Guardamar del Segura
229 500 € - 269 500 €

Propriétés dans ce complexe

Les informations fournies sur les prix, les spécifications et les détails de cette promotion sont susceptibles de varier et de changer en fonction de la source. Elles n'ont donc pas de valeur commerciale en soi, mais sont purement informatives et indicatives. Ce site web ne commercialise pas ce projet ou cette propriété.

Nom
Chambres
Salles de bains
Surface carrée
Plancher
Catégorie
Prix
4 4 253 m² 2 Chalet indépendant 775 000 € Visit
4 4 253 m² 2 Chalet indépendant 775 000 € Visit
4 4 253 m² 2 Chalet indépendant 775 000 € Visit
4 4 253 m² 2 Chalet indépendant 775 000 € Visit
4 4 253 m² 2 Chalet indépendant 775 000 € Visit
4 4 253 m² 2 Chalet indépendant 775 000 € Visit
4 4 253 m² 2 Chalet indépendant 775 000 € Visit
4 4 253 m² 2 Chalet indépendant 775 000 € Visit
Ces informations proviennent de sources publiques et peuvent ne pas être à jour. Elles ne représentent pas un lien avec le promoteur.

Caractéristiques du bien

Complex information

  • Nombre d'unités
    8
  • Fourchette de prix
    775 000 € - 775 000 €
  • Nombre de chambres
    4
  • Surfaces des biens
    253 m² - 253 m²
  • Types de propriétés
    Chalet indépendant

Informations sur le projet / État des travaux

  • Année de livraison
    2026
  • État
    En construction
  • Format de la promotion
    Libre

Données de la propriété

  • M2 moyens
    253 m²
  • Type de design
    Moderne
  • Type de la propriété
    Programme neuf

Certificat énergétique

  • Certificat énergétique
    A
  • CEE Émission
    A

Installations

Dans l'immeuble:

Jardin

Plans

Statistiques des prix du marché pour Can Cobet

775 000 € (3 063 €/m2)
Prix moyen dans le complexe
775 000 € (3 063 €/m2)
Prix moyen d’un avec 4 chambres ou plus

Carte

Barcelone, Argentona, Can Raimí - Les Ginesteres - Can Cabot, Can Cabot Aller à cet endroit
Laisser un commentaire sur Can Cobet
0
0 revues
1
0% (0)
2
0% (0)
3
0% (0)
4
0% (0)
5
0% (0)
Engel & Völkers Barcelona
775 000 €
de 3 063 € / m2
Contacter l'annonceur

Pour plus d’informations, contactez la plateforme

REF: 188288

Critiques à propos de Can Cobet
Loading...

No reviews have been left for this object yet

Propriétés les plus proches

Explorez les biens immobiliers que nous avons découverts à proximité de ce site

2 unités

Nouvelle construction résidentielle à Premià de Dalt.

Barcelone, Premià de Dalt
790 000 € - 850 000 €

Immobilier à Residencial Can Mora Découvrez des résidences uniques nichées dans...

0
0 commentaires
4 unités

Obra nueva Unió 33 Mataró en Mataró

Barcelone, Mataró, Eixample, Calle Unió, 33
360 000 € - 495 000 €

U33 - SU PROYECTO FAMILIARPromoción de obra nueva ubicada en la Calle Unió 33 de...

5
0 commentaires

Obra nueva Voramar en Mataró

Barcelone, Mataró, Eixample, Ronda Barceló, 54
-

Viviendas de obra nueva en venta, de 2 y 3 dormitorios en Ronda BarcelóEdificio...

0
0 commentaires

Obra nueva 4 Camins en Cabrils

Barcelone, Cabrils
-

Te presentamos una emocionante oportunidad en el corazón de Cabrils: una encanta...

0
0 commentaires
6 unités

Obra nueva Edifici sota el Castell en La Roca del Vallès

Barcelone, La Roca del Vallès
208 500 € - 262 000 €

En sus alrededores encontramos colegios, supermercados, comercios y centros depo...

0
0 commentaires
3 unités

Nouvelle construction à Mataró sur l'Avenue Unió, numéro 81.

Barcelone, Mataró, Eixample, Calle Unió, 81
319 000 € - 479 000 €

Immobilier à Unió 81 Découvrez notre nouvelle promotion immobilière située en pl...

0
0 commentaires
1 unités

Nouvelle construction résidentielle à Mataró.

Barcelone, Mataró, Eixample, Camino Ral 523 esquina C/ de la Cooperativa 2, 4
449 000 € - 449 000 €

Immobilier à Residencial Iluro DERNIERS APPARTEMENTS DISPONIBLES – Profitez de c...

0
0 commentaires
4 unités

Nouvelle construction Célere Ansa Mataró à Mataró.

Barcelone, Mataró, El Rengle, Avenida Avenida de Ernest Lluch, 1
399 200 € - 513 000 €

Immobilier à Célere Ansa Mataró Découvrez la dernière opportunité avec une terra...

0
0 commentaires
3 unités

Nouvelle construction à Mataró : Culmia Mirador del Maresme.

Barcelone, Mataró, Centre, Calle Lepanto s/n
315 000 € - 595 000 €

Immobilier à Culmia Mirador del Maresme La nouvelle promotion résidentielle offr...

0
0 commentaires
Appeler

Nous utilisons nos propres cookies et ceux de tiers pour analyser l’utilisation du site Web et vous montrer des publicités en lien avec vos préférences, sur la base d’un profil établi à partir de vos habitudes de navigation (ex. : pages visitées). Plus d’informations. Acceptez-vous les cookies ?