Terreno en Barrio El Carmel

Barcelone, Barcelone, Horta-Guinardó, Barrio El Carmel
159 000 €
Laisser un commentaire
Urbain Type de bien
181 m² Superficie du terrain
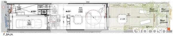
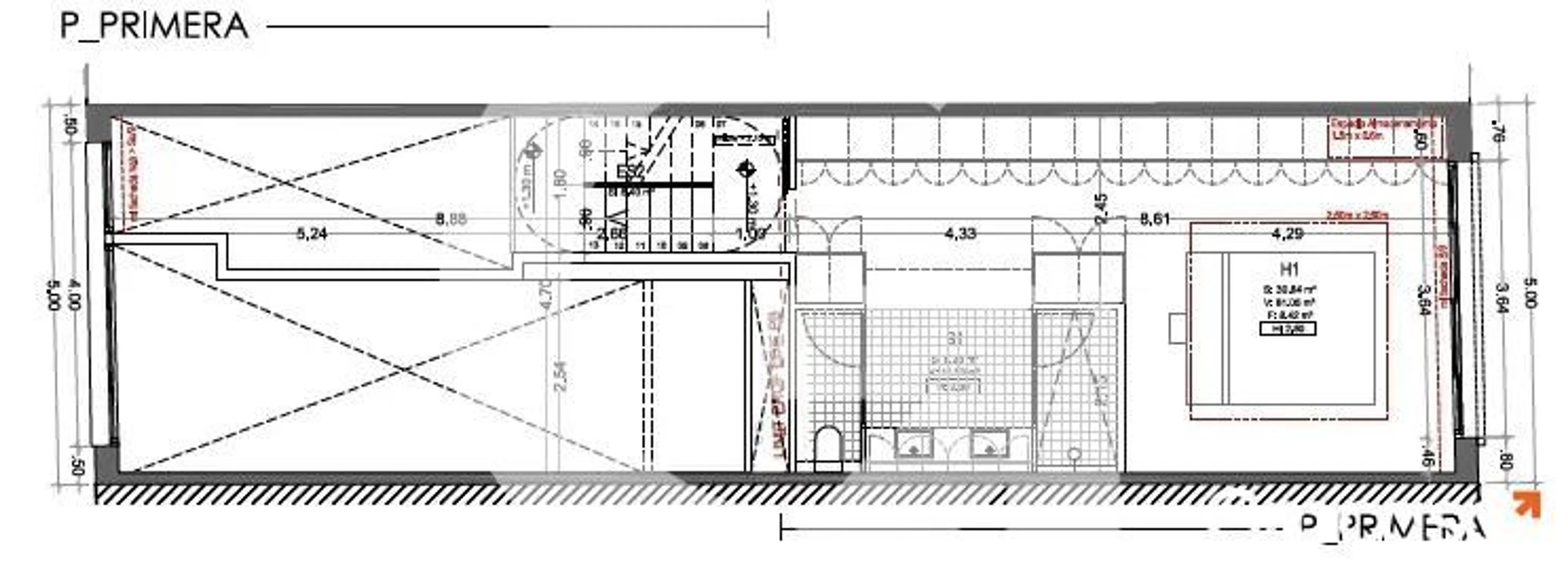
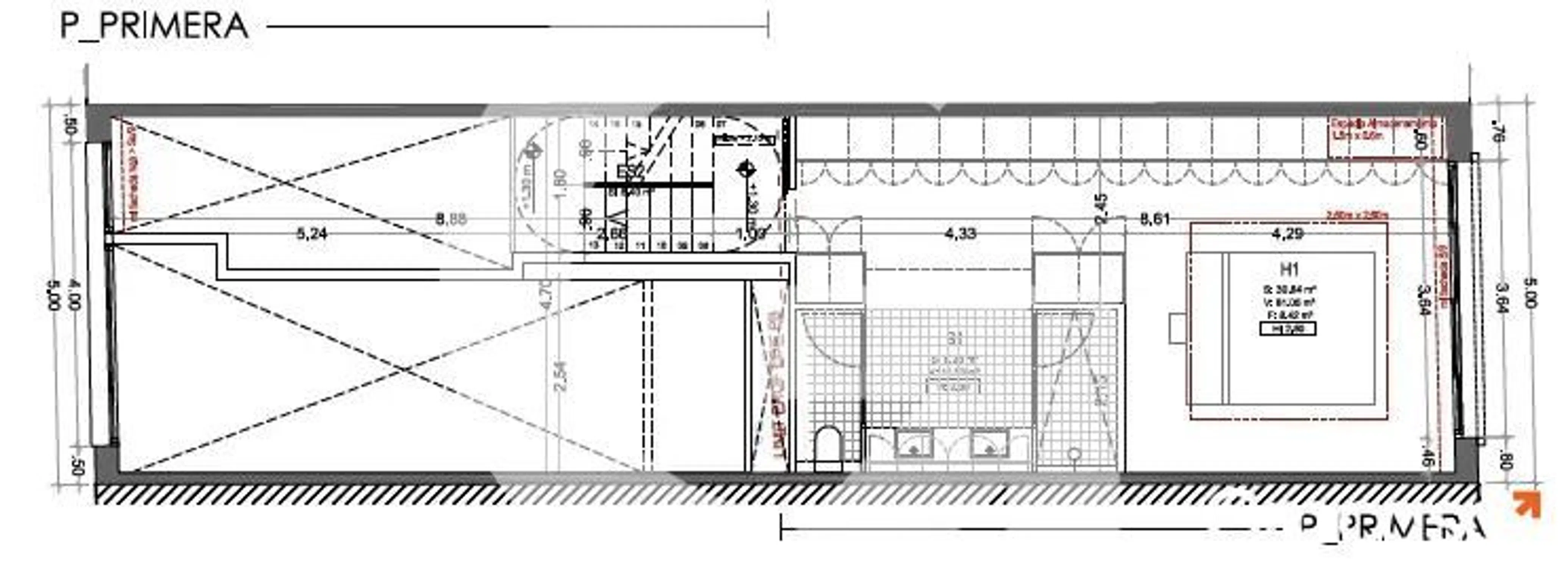
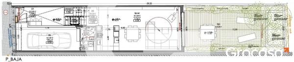
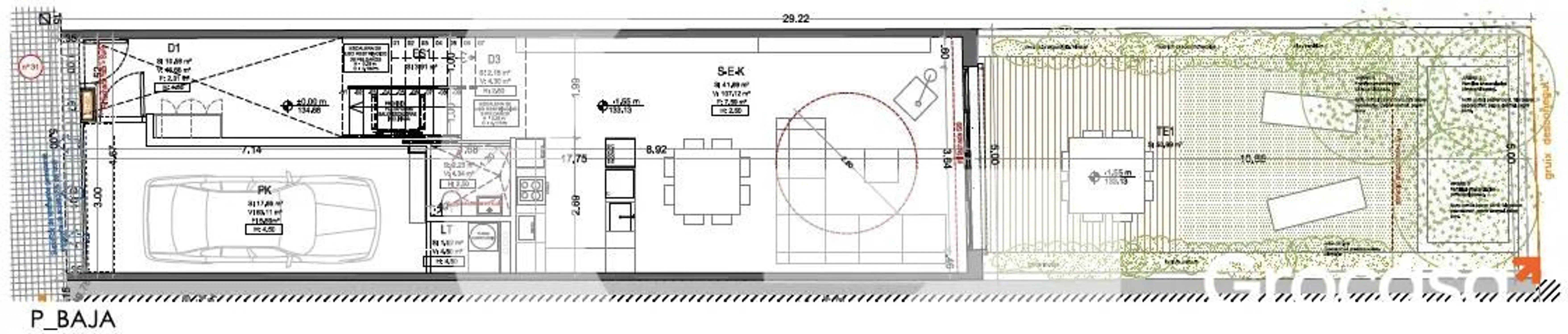
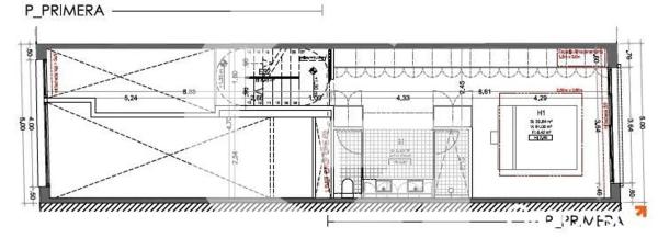
Grocasa el Carmel presenta solar edificable para casa unifamiliar con derecho de vuelo, listo para hacer al gusto y poder estrenar tu nuevo hogar. Ofrece un amplio abanico de posibilidades, una de las cuales, consta de permisos del ayuntamiento, con el proyecto arquitectónico, cuyos planos se muestran en la publicación. La propuesta estructurada en tres plantas, con un total de 181m², tal y como se aprecia en los planos adjuntos en la publicación, se distribuyen en garaje privado, cuatro habitaciones (la principal en suitte con zona de vestidor), salón con cocina americana de 40m² con salida a terraza de 50m², 3 baños completos y solarium de 40m², donde todas las estancias son exteriores y orientadas al sur-este. Tu hogar totalmente nuevo y listo para entrar a vivir, sumando la inversión del solar más la aportación de la casa construida (según la distribución comentada en el párrafo anterior), por tan solo 410.000€. Aprovecha la oportunidad de estrenar una casa a tu gusto, en una zona tranquila y bien comunicada, cerca de todo tipo de comercios y servicios. LOCALIZACIÓN Se encuentra a 2 minutos del Mercat del Carmel, junto supermercados, colegios y servicios de transporte público, como la parada de metro del Carmel/Llobregos. Soy daniel! Ponte en contacto conmigo en el y también por WhatsApp para más información y visitas! GROCASA GRUP una red Inmobiliaria con oficinas en el Baix Llobregat y el Barcelonés. Como cliente nuestro, podrás beneficiarte de todos los servicios que ofrecen las empresas del grupo. - Dpto. financiero (Grocasa hipotecas): Te asistirán y acompañarán para que puedas encontrar tu FINANCIACIÓN HASTA EL 100%**. - Grocasa Alquileres: Nuestro dpto. de alquileres que garantiza el pago a los propietarios el día 3 de cada mes, además de ofrecer el resto de servicios de alquiler. - GroHabitat y Grocasa Obra Nueva: Promociones exclusivas y de obra nueva a tu alcance. - Mao Construcciones: Equipos de reforma para darle una nueva vida a tu nuevo inmueble. *Consulta nuestra web para leer el Aviso Legal sobre la descripción de este inmueble. **La obtención de la financiación está sujeta a las condiciones de la entidad financiera y tendrá en cuenta el perfil y solvencia del cliente..

Caractéristiques du bien

Complex information

  • Type de bien
    Urbain

Données de la propriété

  • Type de propriété
    Occasion

Surfaces

  • Superficie du terrain
    181 m²

Base

Statistiques des prix du marché pour Terreno en Barrio El Carmel

Carte

Barcelone, Barcelone, Horta-Guinardó, Barrio El Carmel Aller à cet endroit
Laisser un commentaire sur Terreno en Barrio El Carmel
0
0 revues
1
0% (0)
2
0% (0)
3
0% (0)
4
0% (0)
5
0% (0)
Grocasa Red Inmobiliaria
159 000 €
Contacter l'annonceur

Pour plus d’informations, contactez la plateforme

REF: 374619

Critiques à propos de Terreno en Barrio El Carmel
Loading...

No reviews have been left for this object yet

Propriétés les plus proches

Explorez les biens immobiliers que nous avons découverts à proximité de ce site

Terreno en venta en Vilapicina i la Torre Llobeta

Barcelone, Barcelone, Nou Barris
3 450 000 €

Solar en venta en Barcelona, dispuesto para hacer una residencia de estudiantes...

0
0 commentaires

Terreno en venta en Vallvidrera - El Tibidabo i les Planes

Barcelone, Barcelone, Sarrià-Sant Gervasi
145 000 €

Este terreno urbano, ubicado en el pintoresco barrio de montaña Can Rectoret de...

0
0 commentaires

Terreno en venta en calle de la Madriguera, 1

Barcelone, Barcelone, Sant Andreu, Calle de la Madriguera, 1
1 200 000 €

Finalista. Residencial Multifamiliar. Superficie: 339,74. Edificabilidad: 1349....

0
0 commentaires

Terreno en calle del Frontó

Barcelone, Esplugues de Llobregat, La Miranda - Ciutat Diagonal, Calle del Frontó
1 950 000 €

PARCELA ÚNICA EN CIUDAD DIAGONAL CON VISTAS INIGUALABLES Presentamos EN EXCLUSI...

0
0 commentaires

Terreno en calle del Frontó

Barcelone, Esplugues de Llobregat, La Miranda - Ciutat Diagonal, Calle del Frontó
990 000 €

PARCELA EN CIUDAD DIAGONAL CON VISTAS A BARCELONA Y EL MEDITERRANEO Presentamos...

0
0 commentaires

Terreno en calle del Frontó

Barcelone, Esplugues de Llobregat, La Miranda - Ciutat Diagonal, Calle del Frontó
960 000 €

PARCELA ÚNICA EN CIUDAD DIAGONAL CON VISTAS INIGUALABLES Presentamos EN EXCLUSIV...

0
0 commentaires

Terreno en La Miranda - Ciutat Diagonal

Barcelone, Esplugues de Llobregat, La Miranda - Ciutat Diagonal, La Miranda - Ciutat Diagonal
1 800 000 €

En una zona de las mejores zonas residenciales de Esplugues de Llobregat, zona r...

0
0 commentaires

Terreno en calle de la Bonavista

Barcelone, Esplugues de Llobregat, Finestrelles, Calle de la Bonavista
600 000 €

SOLAR RESIDENCIAL de 170 m2. esquinero que por la Normativa que le afecta permit...

0
0 commentaires

Terreno en Finestrelles

Barcelone, Esplugues de Llobregat, Finestrelles, Finestrelles
750 000 €

Estupendo solar en Finestrelles junto parc de Pompeu I Fabra, con proyecto para...

0
0 commentaires
Appeler

Nous utilisons nos propres cookies et ceux de tiers pour analyser l’utilisation du site Web et vous montrer des publicités en lien avec vos préférences, sur la base d’un profil établi à partir de vos habitudes de navigation (ex. : pages visitées). Plus d’informations. Acceptez-vous les cookies ?