Apartamentos en Venta en Camino de la Corredera, 3, Colmenar Viejo

Madrid, Colmenar Viejo, El Mirador, Camino de la Corredera, 3
Vendre
Laisser un commentaire
Appartements Type de bien
3 Chambres
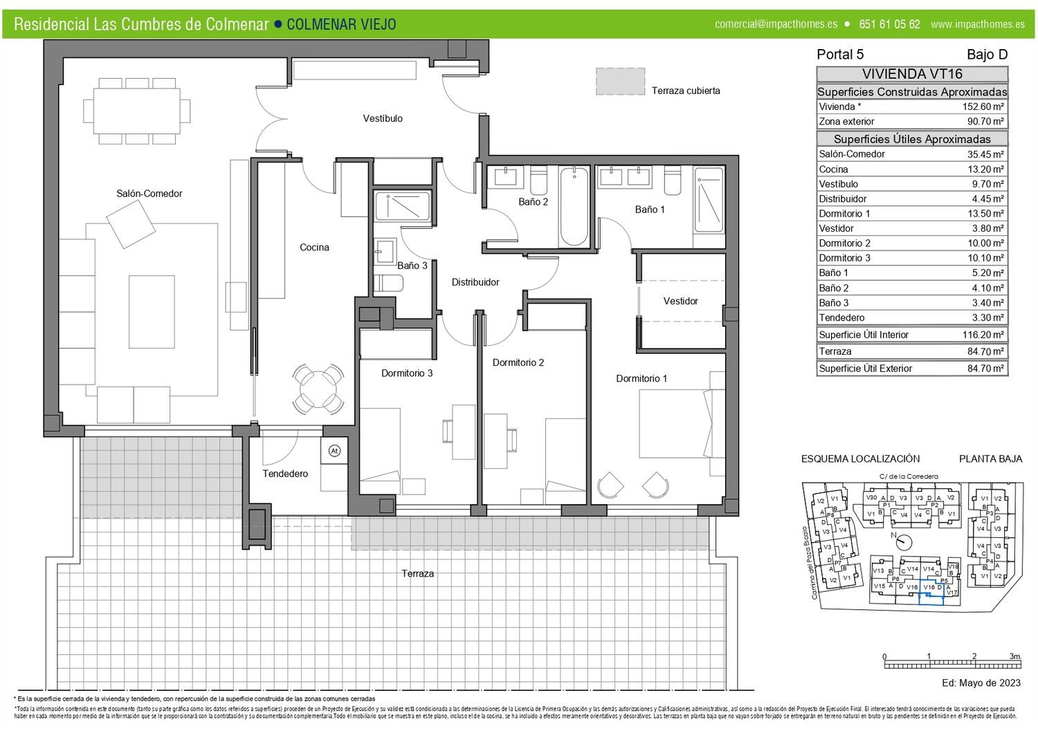
153 m² m2 construits
3 Salles de bains
En construction État
Chauffage par le sol Chauffage
OBRAS INICIADAS.¿Te gustaría vivir en el centro de Colmenar Viejo, con todos los servicios a tu alcance?Estamos construyendo tu nuevo hogar, LAS CUMBRES DE COLMENAR, a solo cinco minutos caminando del centro.Una promoción única por su ubicación, su diseño y sus magníficas vistas. Y a tan solo 30 minutos de Madrid.LAS CUMBRES DE COLMENAR es una urbanización de 110 viviendas, con 1, 2, 3 y 4 dormitorios, plaza de garaje y trastero.Bajos con jardín, áticos y dúplex, con zonas comunes y piscina.Disfruta de las extraordinarias vistas que ofrecen sus terrazas y del entorno de naturaleza de los alrededores de Colmenar Viejo.Promoción promovida por GRUPO INMOBILIARIO FERROCARRIL y gestionada por IMPACT HOMES.Teniendo en cuenta el compromiso de sostenibilidad de Impact Homes, las viviendas vienen equipadas con Aerotermia colectiva para suelo radiante y refrescante, un sistema de alta eficiencia, sostenible y de energía renovable.No lo dudes y llámanos. Estaremos encantados de informarte.Promueve Grupo Ferrocarril.

Caractéristiques du bien

Complex information

  • Complexe résidentiel
    Las Cumbres de Colmenar
  • Type de bien
    Appartements

Informations sur le projet / État des travaux

  • État
    En construction

Mémoire des Qualités

  • Chauffage
    Chauffage par le sol

Données de la propriété

  • Chambres
    3
  • Salles de bains
    3
  • m2 construits
    153 m²
  • Type de propriété
    Programme neuf

Installations

Commodités du logement:

Débarras
Terrasse

Dans l'immeuble:

Piscine
Garage
Ascenseur
Zonas jardins
Cave
Zones vertes
Jardin

Statistiques des prix du marché pour Piso en venta en camino de la Corredera, 3

281 581 € (3 418 €/m2)
Prix moyen du Appartements primaire dans la ville de Colmenar Viejo

Carte

Madrid, Colmenar Viejo, El Mirador, Camino de la Corredera, 3 Aller à cet endroit
Laisser un commentaire sur Piso en venta en camino de la Corredera, 3
0
0 revues
1
0% (0)
2
0% (0)
3
0% (0)
4
0% (0)
5
0% (0)
Las Cumbres de Colmenar
Complexe résidentiel
Vendre
Contacter l'annonceur

Pour plus d’informations, contactez la plateforme

REF: 22901

Critiques à propos de Piso en venta en camino de la Corredera, 3
Loading...

No reviews have been left for this object yet

Propriétés les plus proches

Explorez les biens immobiliers que nous avons découverts à proximité de ce site

Obra nueva Mendoza en Colmenar Viejo

Madrid, Colmenar Viejo, San Crispín - La Estación Consorcio, Calle Orient Express, 12
423 100 €

es una magnífica promoción de viviendas de 2, 3 y 4 dormitorios. Ubicada en la...

0
0 commentaires

Apartamentos en Venta en Calle del Orient Express, Colmenar Viejo

Madrid, Colmenar Viejo, San Crispín - La Estación Consorcio, Calle del Orient Express
439 900 €

La promoción se encuentra en la zona de la Estación de Colmenar Viejo. Considera...

0
0 commentaires

Apartamentos en Venta en Calle del Orient Express, Colmenar Viejo

Madrid, Colmenar Viejo, San Crispín - La Estación Consorcio, Calle del Orient Express
423 100 €

La promoción se encuentra en la zona de la Estación de Colmenar Viejo. Considera...

0
0 commentaires

Obra nueva Suelo,CL Orient Express 10-colmenar Viej en Colmenar Viejo

Madrid, Colmenar Viejo, San Crispín - La Estación Consorcio, Calle del Orient Express
432 100 €

La promoción se encuentra en la zona de la Estación de Colmenar Viejo. Considera...

0
0 commentaires

Obra nueva Suelo,CL Orient Express 10-colmenar Viej en Colmenar Viejo

Madrid, Colmenar Viejo, San Crispín - La Estación Consorcio, Calle del Orient Express
423 100 €

La promoción se encuentra en la zona de la Estación de Colmenar Viejo. Considera...

0
0 commentaires

Obra nueva Suelo,CL Orient Express 10-colmenar Viej en Colmenar Viejo

Madrid, Colmenar Viejo, San Crispín - La Estación Consorcio, Calle del Orient Express
498 200 €

La promoción se encuentra en la zona de la Estación de Colmenar Viejo. Considera...

0
0 commentaires

Obra nueva Colmenar Class I en Colmenar Viejo

Madrid, Colmenar Viejo, San Crispín - La Estación Consorcio, Avenida Severo Ochoa, 4
350 000 €

ÚLTIMA VIVIENDA DISPONIBLELa promoción se sitúa en el sector de la estación, un...

3
0 commentaires

Obra nueva Las Terrazas de Colmenar Green en Colmenar Viejo

Madrid, Colmenar Viejo, San Crispín - La Estación Consorcio, Calle Ave, 2
367 284 €

ÚLTIMA VIVIENDA DISPONIBLE. Obras iniciadas., vive como siempre habías soñado.Si...

0
0 commentaires

Obra nueva El Viso de Colmenar en Colmenar Viejo

Madrid, Colmenar Viejo, San Crispín - La Estación Consorcio, Calle del Ave, 2
360 500 €

OBRAS INICIADAS¡Nueva promoción de viviendas! Excelente complejo residencial sit...

0
0 commentaires

Nous utilisons nos propres cookies et ceux de tiers pour analyser l’utilisation du site Web et vous montrer des publicités en lien avec vos préférences, sur la base d’un profil établi à partir de vos habitudes de navigation (ex. : pages visitées). Plus d’informations. Acceptez-vous les cookies ?