Vente de chalet mitoyen à Calle Ebro s/n , Villaviciosa de Odón

Madrid, Villaviciosa de Odón, Le Bosque, Calle Ebro s/n
Vendre
Laisser un commentaire
Maisons mitoyennes Type de bien
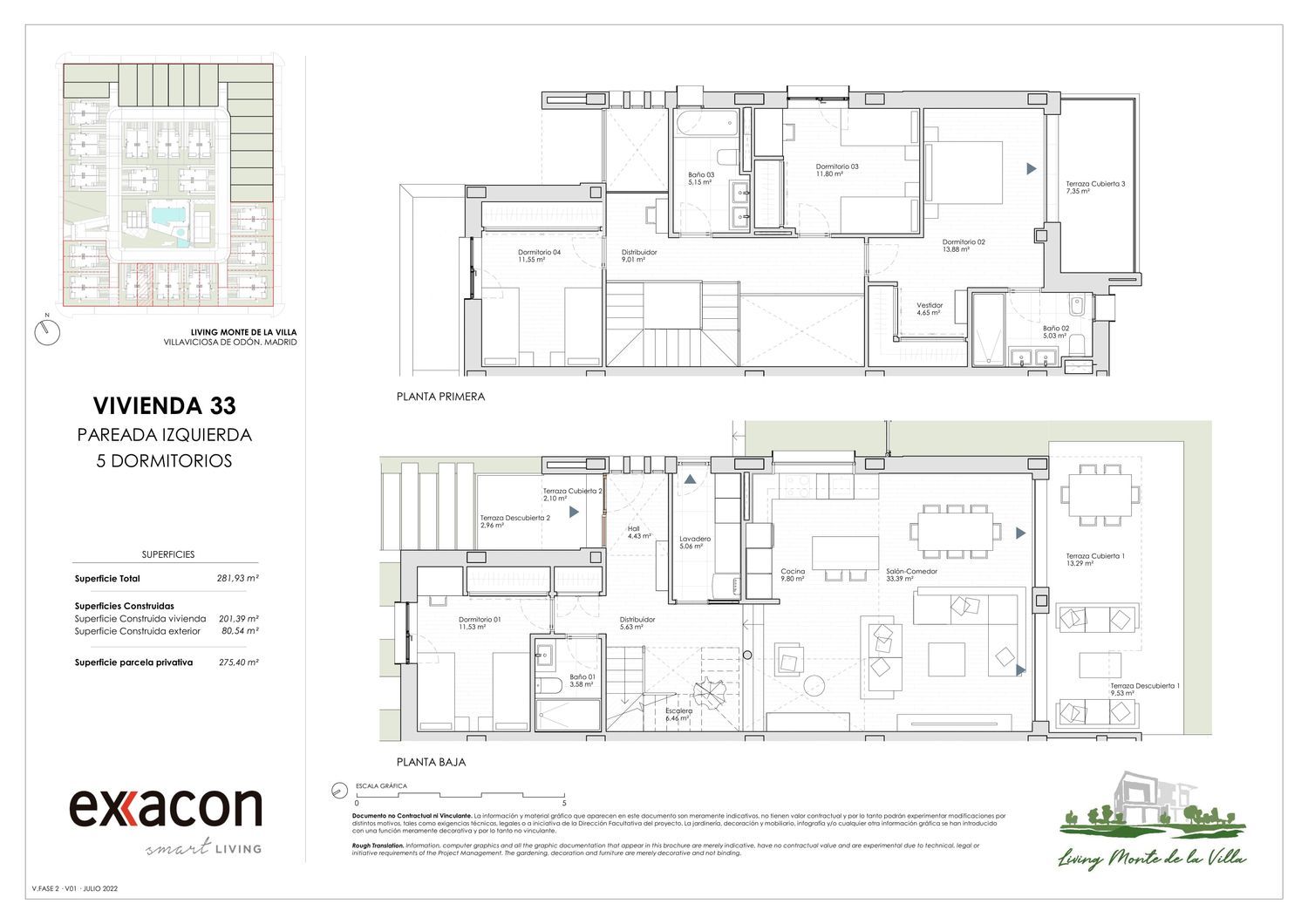
282 m² m2 construits
3 Salles de bains
4 Chambres
2 Plante
LIVING MONTE DE LA VILLAVIVE LO NATURALEsta nueva promoción, cuya construcción se iniciará muy pronto estará ubicada en Villaviciosa de Odón, muy cerca de la urbanización El Bosque y la Universidad Europea de Madrid, estará formada por 48 viviendas dentro de una parcela privada con un único acceso con garita para guarda o conserje.Living Monte de la Villa forma parte de la expansión de Villaviciosa de Odón dentro de una nueva urbanización que se está llevando a cabo y que contará con diversas dotaciones.Ofrecemos viviendas con arquitectura moderna e innovadora, viviendas luminosas de 4 y 5 dormitorios con diferentes orientaciones. Salón- comedor con doble altura que permite bañar la planta alta y baja con luz natural que cae desde la cubierta de la vivienda. Espectacular entrada de la vivienda y original escalera que comunica con las habitaciones en planta alta.Disfrutarás de la familia y amigos en la cocina integrada al salón-comedor abierto a la zona del jardín privado.Espacio para aparcamiento de 3 a 4 vehículos con acceso directo a la zona lavadero y cocina.El complejo residencial cuenta con zonas comunes para toda la familia. Es un recinto cerrado que permitirá pasear con la bicicleta por su vial interior, tirar unas bolas en el putting green, caminar sobre una máquina de cinta en el gym o levantar pesas, tomar una clase de yoga y nadar en la piscina de más de 20 metros de largo. Si te gusta competir, podrás disfrutar de una partida de paddel.Viviendas con máxima eficiencia energética y sostenibilidad. Paquete básico de domótica e Instalación solar fotovoltaica para autoconsumo incluida con reserva**Promoción Especial.

Caractéristiques du bien

Complex information

  • Complexe résidentiel
    Living Monte de la Villa
  • Type de bien
    Maisons mitoyennes

Données de la propriété

  • Plante
    2
  • Chambres
    4
  • Salles de bains
    3
  • m2 construits
    282 m²
  • Type de propriété
    Programme neuf

Installations

Commodités du logement:

Fenêtres intérieures

Dans l'immeuble:

Piscine
Salle de sport
Spa
Zonas jardins
Zones vertes
Jardin
Yoga

Statistiques des prix du marché pour Chalet pareado en venta en calle Ebro s/n

666 918 € (2 250 €/m2)
Prix moyen du Maisons mitoyennes primaire dans la ville de Villaviciosa de Odón
659 546 € (2 324 €/m2)
Prix moyen du Maisons mitoyennes primaire dans le quartier Le Bosque

Carte

Madrid, Villaviciosa de Odón, Le Bosque, Calle Ebro s/n Aller à cet endroit
Laisser un commentaire sur Chalet pareado en venta en calle Ebro s/n
0
0 revues
1
0% (0)
2
0% (0)
3
0% (0)
4
0% (0)
5
0% (0)
Living Monte de la Villa
Complexe résidentiel
Vendre
Contacter l'annonceur

Pour plus d’informations, contactez la plateforme

REF: 19547

Critiques à propos de Chalet pareado en venta en calle Ebro s/n
Loading...

No reviews have been left for this object yet

Propriétés les plus proches

Explorez les biens immobiliers que nous avons découverts à proximité de ce site

Obra nueva Los Altos del Pastel en Boadilla del Monte

Madrid, Boadilla del Monte, Le Pastel, Calle Cabo de Peñas, 4
760 000 €

Inmobiliarias Inmoges vende en exclusiva promoción de chalets adosados en la mej...

0
0 commentaires

Obra nueva Los Altos del Pastel en Boadilla del Monte

Madrid, Boadilla del Monte, Le Pastel, Calle Cabo de Peñas, 4
695 000 €

Inmobiliarias Inmoges vende en exclusiva promoción de chalets adosados en la mej...

0
0 commentaires

Adosados en Venta en Calle Cabo de Peñas, 4, Boadilla del Monte

Madrid, Boadilla del Monte, Le Pastel, Calle Cabo de Peñas, 4
698 000 €

Inmobiliarias Inmoges vende en exclusiva promoción de chalets adosados en la mej...

0
0 commentaires

Adosados en Venta en Calle Cabo de Peñas, 4, Boadilla del Monte

Madrid, Boadilla del Monte, Le Pastel, Calle Cabo de Peñas, 4
695 000 €

Inmobiliarias Inmoges vende en exclusiva promoción de chalets adosados en la mej...

0
0 commentaires

Adosados en Venta en Calle Cabo de Peñas, 4, Boadilla del Monte

Madrid, Boadilla del Monte, Le Pastel, Calle Cabo de Peñas, 4
720 000 €

Inmobiliarias Inmoges vende en exclusiva promoción de chalets adosados en la mej...

0
0 commentaires

Adosados en Venta en Calle Cabo de Peñas, 4, Boadilla del Monte

Madrid, Boadilla del Monte, Le Pastel, Calle Cabo de Peñas, 4
698 000 €

Inmobiliarias Inmoges vende en exclusiva promoción de chalets adosados en la mej...

0
0 commentaires

Adosados en Venta en Calle Cabo de Peñas, 4, Boadilla del Monte

Madrid, Boadilla del Monte, Le Pastel, Calle Cabo de Peñas, 4
698 000 €

Inmobiliarias Inmoges vende en exclusiva promoción de chalets adosados en la mej...

0
0 commentaires

Adosados en Venta en Calle Cabo de Peñas, 4, Boadilla del Monte

Madrid, Boadilla del Monte, Le Pastel, Calle Cabo de Peñas, 4
698 000 €

Inmobiliarias Inmoges vende en exclusiva promoción de chalets adosados en la mej...

0
0 commentaires

Pareados en Venta en Paseo Monte de la Villa s/n, Villaviciosa de Odón

Madrid, Villaviciosa de Odón, Le Bosque, Paseo Monte de la Villa s/n
650 000 €

Viviendas de diseño contemporáneo y realizadas en solida construcción tradiciona...

0
0 commentaires

Nous utilisons nos propres cookies et ceux de tiers pour analyser l’utilisation du site Web et vous montrer des publicités en lien avec vos préférences, sur la base d’un profil établi à partir de vos habitudes de navigation (ex. : pages visitées). Plus d’informations. Acceptez-vous les cookies ?