Espagne Urbain Espagne Urbain Malaga Urbain Benahavís Terreno en calle Endrinas, 17

Terreno en calle Endrinas, 17

Malaga, Benahavís, La Alquería, Calle Endrinas, 17
700 000 €
Laisser un commentaire
Urbain Type de bien
1 240 m² Superficie du terrain
3 Terrains constructibles
620 Constructibilité
Fruitiers Cultures
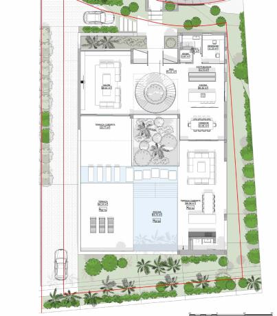
Parcela con proyecto y Licencia con tasas abonadas! ¡Descubre la oportunidad que estabas esperando en Flores Del Paraíso, La Alquería! Este espectacular terreno de 1.240 m² se encuentra en un apacible fondo de saco, garantizando la tranquilidad que buscas para tu nuevo hogar. Con una orientación sur, disfrutarás de abundante luz natural durante todo el día, creando un ambiente cálido y acogedor. La edificabilidad del 50% te permite construir hasta 620 m², ideal para diseñar la casa de tus sueños. Además, ya cuenta con la licencia de construcción abonada, lista para que inicies tus obras sin demoras. La zona es conocida por su exclusividad, rodeada de campos de golf como Paraíso, Atalaya, Campanario y Guadalmina, perfectos para los amantes del deporte y la naturaleza. A solo 15 minutos de Puerto Banús y 20 minutos de Estepona, tendrás acceso a una variedad de servicios cercanos, incluyendo colegios dentro de la urbanización y centros comerciales como Mercadona a menos de 3 km. La conexión con la autopista AP7 es rápida y fácil, permitiéndote disfrutar de todo lo que la Costa del Sol tiene para ofrecer. No dejes pasar esta increíble oportunidad de invertir en una de las zonas más prestigiosas de la Costa del Sol. ¡Tu futuro hogar te espera en Flores Del Paraíso!

Caractéristiques du bien

Complex information

  • Type de bien
    Urbain

Données de la propriété

  • Type de propriété
    Occasion

Surfaces

  • Superficie du terrain
    1 240 m²

Base

  • Parcelle minimale à vendre
    1 240 m²
  • Terrains constructibles
    3
  • Constructibilité
    620
  • Cultures
    Fruitiers

Installations

Cultivo:

Culture alimentaire

Caractéristiques supplémentaires:

Terrain constructible

Statistiques des prix du marché pour Terreno en calle Endrinas, 17

Carte

Malaga, Benahavís, La Alquería, Calle Endrinas, 17 Aller à cet endroit
Laisser un commentaire sur Terreno en calle Endrinas, 17
0
0 revues
1
0% (0)
2
0% (0)
3
0% (0)
4
0% (0)
5
0% (0)
TOTEM HIGH CLASS SERVICES
700 000 €
Contacter l'annonceur

Pour plus d’informations, contactez la plateforme

REF: 242132

Critiques à propos de Terreno en calle Endrinas, 17
Loading...

No reviews have been left for this object yet

Propriétés les plus proches

Explorez les biens immobiliers que nous avons découverts à proximité de ce site

Terreno en venta en Gaucín s/n

Malaga, Benahavís, Los Arqueros-Puerto del Almendro, Gaucín s/n
3 600 000 €

Este terreno se encuentra en Gaucín, 0, 29679, Benahavís, Málaga. Es un solar qu...

0
0 commentaires

Terreno en avenida del Norte

Malaga, Marbella, Nouvelle Andalousie, Avenida del Norte
2 800 000 €

Ubicación Prime | Vistas al Mar | Listas para Construir | Lujo en Estado Puro Pr...

0
0 commentaires

Terreno en benahavis, costa del sol, malaga

Malaga, Benahavís, Benahavís, Benahavis, costa del sol, malaga
450 000 €

Descubra esta excepcional parcela de terreno urbano, con una generosa extensión...

0
0 commentaires

Terreno en calle Peral

Malaga, Benahavís, El Paraíso, Calle Peral
1 500 000 €

¡Parcela con PROYECTO Y LICENCIA APROBADOS! Ubicada en el exclusivo y tranquilo...

0
0 commentaires

Terreno en El Madroñal, 137

Malaga, Benahavís, El Madroñal, El Madroñal, 137
1 500 000 €

PARCELA EN VENTA CON PROYECTO Y LICENCIA EN LA PRESTIGIOSA URBANIZACIÓN EL MADRO...

0
0 commentaires

Terreno en Urbanizacion Real de la Quinta

Malaga, Benahavís, El Madroñal, Urbanizacion Real de la Quinta
1 350 000 €

Terreno Urbano, La Quinta, Costa del Sol. Jardin/Terreno 2103 m². Posición: Cerc...

0
0 commentaires

Terreno en calle Endrinas

Malaga, Benahavís, La Alquería, Calle Endrinas
700 000 €

¡Parcela con proyecto y licencia aprobada — lista para construir en La Alquería,...

0
0 commentaires

Terreno en calle del Almendro, 21

Malaga, Benahavís, Benahavís, Calle del Almendro, 21
450 000 €

**Terreno en Venta en Benahavís Pueblo ** Descubre esta magnífica parcela de 308...

0
0 commentaires

Terreno en calle Montemayor

Malaga, Benahavís, Benahavís, Calle Montemayor
850 000 €

Descubre esta magnífica parcela ubicada en la prestigiosa Urbanización Montemayo...

0
0 commentaires

Nous utilisons nos propres cookies et ceux de tiers pour analyser l’utilisation du site Web et vous montrer des publicités en lien avec vos préférences, sur la base d’un profil établi à partir de vos habitudes de navigation (ex. : pages visitées). Plus d’informations. Acceptez-vous les cookies ?