Espagne Urbain Espagne Urbain Malaga Urbain Benalmádena Terreno en calle de la Cañada

Terreno en calle de la Cañada

Malaga, Benalmádena, Benalmádena Pueblo, Calle de la Cañada
286 000 €
Laisser un commentaire
Urbain Type de bien
294 m² Superficie du terrain
Électrique Chauffage
Oui Fourniture d'électricité
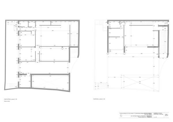
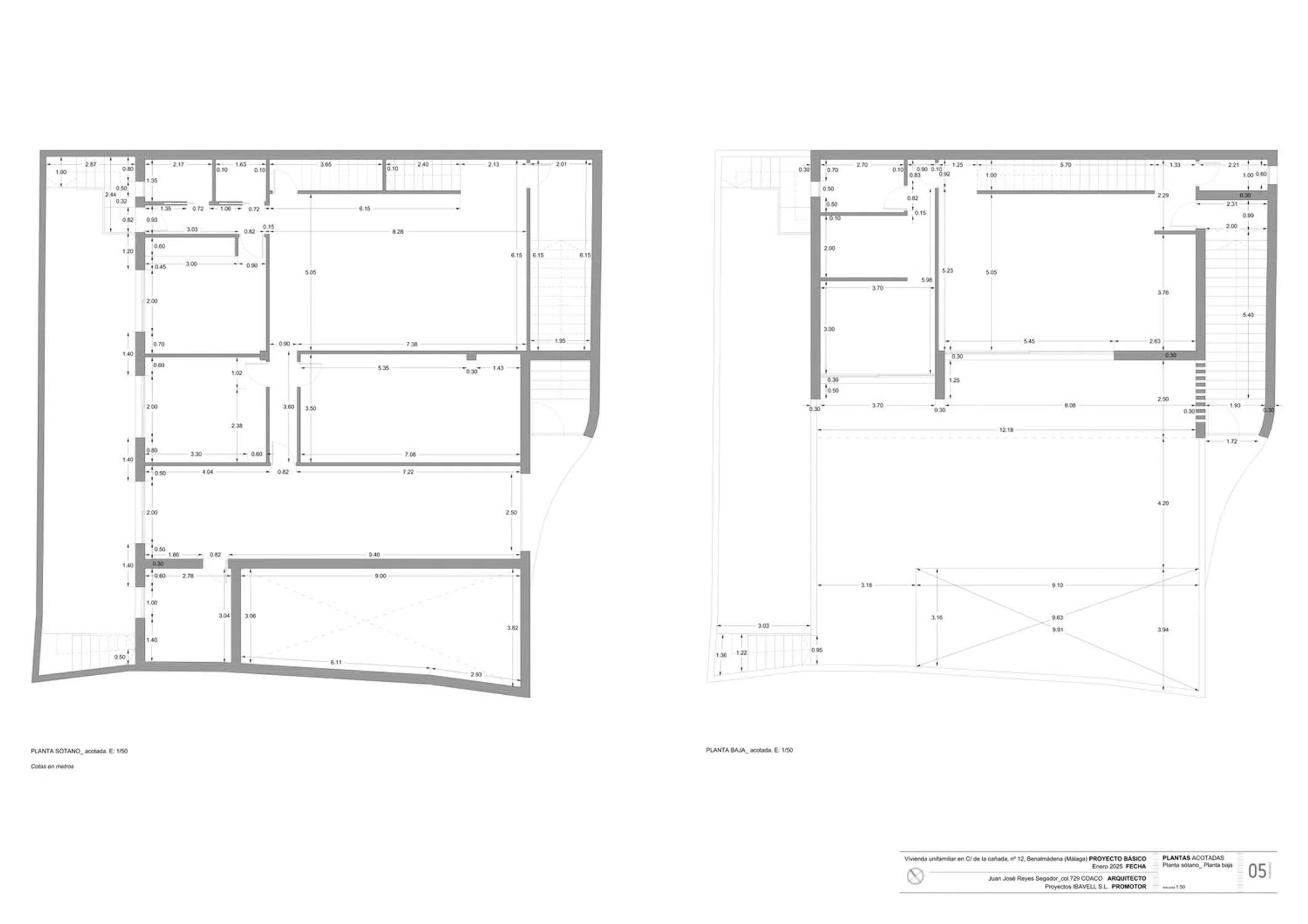
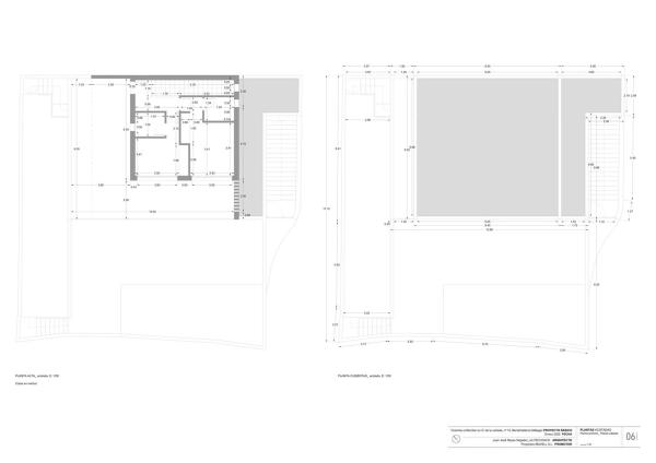
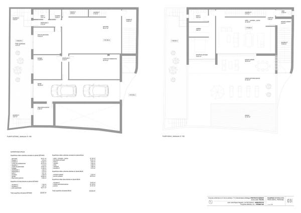
Oportunidad única: terreno urbanizable con proyecto visado y aprobado para construir la casa de tus sueños. Parcela de 294 m² en la exclusiva Urb. La Hacienda, Benalmádena, Málaga, cerca de la Cl. la Cañada y un próspero pueblo costero. Finca urbana con edificabilidad aprobada de 137 m² y 18,5 m de fachada, ideal para una vivienda unifamiliar con sótano, piscina y garaje para dos vehículos. 3 Amplios dormitorios en suite mas un Aseo de cortesía. Disfrute del estilo de vida tranquilo, el clima mediterráneo y la gastronomía de la Costa del Sol, un destino privilegiado. Para más información o visita, llámenos. Le acompañamos en este proyecto hasta el final. MH1. Documento informativo abreviado a su disposición. Gastos: Impuestos (ITP o IVA+AJD) + Gastos notariales y registrales. MH1.

Caractéristiques du bien

Complex information

  • Type de bien
    Urbain

Mémoire des Qualités

  • Chauffage
    Électrique

Données de la propriété

  • Type de propriété
    Occasion

Surfaces

  • Superficie du terrain
    294 m²

Base

  • Fourniture d'électricité
    Oui

Installations

Approvisionnement:

Avec électricité

Caractéristiques supplémentaires:

Terrain constructible

Dans l'immeuble:

Sous-sol

Statistiques des prix du marché pour Terreno en calle de la Cañada

Carte

Malaga, Benalmádena, Benalmádena Pueblo, Calle de la Cañada Aller à cet endroit
Laisser un commentaire sur Terreno en calle de la Cañada
0
0 revues
1
0% (0)
2
0% (0)
3
0% (0)
4
0% (0)
5
0% (0)
Keller Williams Marbella
286 000 €
Contacter l'annonceur

Pour plus d’informations, contactez la plateforme

REF: 366680

Critiques à propos de Terreno en calle de la Cañada
Loading...

No reviews have been left for this object yet

Propriétés les plus proches

Explorez les biens immobiliers que nous avons découverts à proximité de ce site

Terreno en venta en Urbanizacion Torreblanca del Sol

Malaga, Fuengirola, Los Pacos, Urbanizacion Torreblanca del Sol
175 000 €

¡Oportunidad única de inversión en la Costa del Sol! Se venden 6 Terrenos ubicad...

0
0 commentaires

Terreno en venta en calle Veleta s/n

Malaga, Benalmádena, Montealto, Calle Veleta s/n
3 000 000 €

Este terreno se encuentra en Calle Veleta, 29631, Benalmádena, Málaga. Es un sol...

0
0 commentaires

Terreno en Platero - El Limón

Malaga, Alhaurín de la Torre, Platero - Le Citron, Platero - El Limón
350 000 €

**Terreno Urbano en Alhaurín de la Torre - ¡Tu Oportunidad de Construcción! ** D...

0
0 commentaires

Terreno en avenida Esmeralda, 14

Malaga, Benalmádena, Arroyo de la Miel, Avenida Esmeralda, 14
420 000 €

SOLAR CON PROYECTO Y LICENCIA EN TRAMITE Si quieres construir tu casa a pocos me...

0
0 commentaires

Terreno en calle las Palomas, 11

Malaga, Fuengirola, Torreblanca del Sol, Calle las Palomas, 11
185 000 €

Espectacular solar de 436 m2 con vista lateral al mar.

0
0 commentaires

Terreno en Los Pacos

Malaga, Fuengirola, Los Pacos, Los Pacos
4 500 000 €

Parcela Edificable en Venta en Los Pacos (Fuengirola) ¡Oportunidad única para pr...

0
0 commentaires

Terreno en calle Pensamiento, 3

Malaga, Benalmádena, Benalmádena Pueblo, Calle Pensamiento, 3
1 530 000 €

Oportunidad Exclusiva para Inversores en la Costa del Sol. Descubre una oportuni...

0
0 commentaires

Terreno en calle Jilguero

Malaga, Fuengirola, Torreblanca del Sol, Calle Jilguero
2 150 000 €

Parcela urbana en venta en Urb. Torreblanca del Sol, Fuengirola (Málaga). Tiene...

0
0 commentaires

Terreno en Mijas s/n

Malaga, Mijas, Mijas Pueblo, Mijas s/n
250 000 €

Oportunidad Única de TERRENO con Proyecto Aprobado en la Prestigiosa Zona de Mij...

0
0 commentaires
Appeler

Nous utilisons nos propres cookies et ceux de tiers pour analyser l’utilisation du site Web et vous montrer des publicités en lien avec vos préférences, sur la base d’un profil établi à partir de vos habitudes de navigation (ex. : pages visitées). Plus d’informations. Acceptez-vous les cookies ?