Piso en calle Tucán, 61

Malaga, Marbella, Nouvelle Andalousie, Calle Tucán, 61
890 000 €
4 406 € / m2
Laisser un commentaire
Appartements Type de bien
2 Chambres
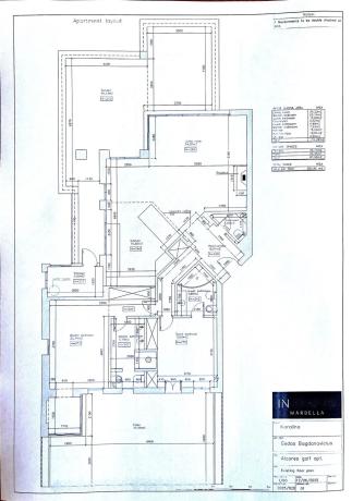
202 m² m2 construits
115 m² m2 utiles
3 Salles de bains
Inclus dans le prix Garage
Bon état État de l'immeuble
Venta directa, sin comisiones de agencia. Apartamento en Alcores del Golf, planta intermedia, Nueva Andalucía, Costa del Sol. 2 dormitorios, 3 baños, 115 m² construidos, 87 m² de terrazas. Ubicación: En primera línea de golf, cerca del campo de golf, del centro, de colegios y de la urbanización. Orientación: Oeste. Estado: Recientemente reformado. Piscina: Comunitaria. Aire acondicionado: Aire acondicionado frío/calor, chimenea. Vistas: Mar, montaña, golf, jardín, piscina, lago. Características: Terraza cubierta, armarios empotrados, terraza privada, TV vía satélite, baño en suite, acceso para personas con movilidad reducida, suelos de mármol, recepción 24 horas. Mobiliario: Amueblado. Cocina: Equipada. Jardín: Comunitario. Seguridad: Urbanización cerrada con alta seguridad, persianas eléctricas, videoportero, seguridad 24 horas, caja fuerte. Aparcamiento: Subterráneo, garaje. Servicios: Electricidad. Categoría: Golf, Familiar, Inversión, Reventa.

Caractéristiques du bien

Complex information

  • Type de bien
    Appartements

Informations sur le projet / État des travaux

  • État de l'immeuble
    Bon état

Données de la propriété

  • Garage
    Inclus dans le prix
  • Chambres
    2
  • Salles de bains
    3
  • m2 construits
    202 m²
  • m2 utiles
    115 m²
  • Type de propriété
    Occasion

Base

Certificat énergétique

  • Certificat énergétique
    E

Installations

Commodités du logement:

Climatisation
Débarras
Terrasse

Dans l'immeuble:

Piscine
Parking privé

État:

Bon état

Statistiques des prix du marché pour Piso en calle Tucán, 61

866 578 € (5 902 €/m2)
Prix moyen du Appartements primaire dans la ville de Marbella
993 404 € (6 914 €/m2)
Prix moyen du Appartements secondaire dans la ville de Marbella
561 645 € (4 563 €/m2)
Prix moyen du Appartements primaire dans le quartier Nouvelle Andalousie
896 572 € (5 980 €/m2)
Prix moyen du Appartements secondaire dans le quartier Nouvelle Andalousie

Carte

Malaga, Marbella, Nouvelle Andalousie, Calle Tucán, 61 Aller à cet endroit
Laisser un commentaire sur Piso en calle Tucán, 61
0
0 revues
1
0% (0)
2
0% (0)
3
0% (0)
4
0% (0)
5
0% (0)
Nerius
890 000 €
de 4 406 € / m2
Contacter l'annonceur

Pour plus d’informations, contactez la plateforme

REF: 459187

Critiques à propos de Piso en calle Tucán, 61
Loading...

No reviews have been left for this object yet

Appartements pas chers 63356 Appartements à rénover 33299 Appartements jusqu'à 50.000€ 31706 Appartements jusqu'à 100.000€ 32923 Maisons jusqu'à 100.000€ 32923 Appartements avec vue sur la mer 32477 Appartements de luxe 31881 Appartements neufs pas chers 50474 Vente d'appartements de 2 chambres Malaga 8884 Vente appartements 3 chambres Malaga 8630 Vente appartements 4 chambres Malaga 7457 Vente appartements 5 chambres Malaga 7263 Appartements en bon état Malaga 7426 Appartements à rénover Malaga 7770 Appartements d'occasion Malaga 10088 Appartements avec vue sur la mer Malaga 7467 Appartements bon marché Malaga 11211 Appartements à vendre avec ascenseur Malaga 10399 Appartements jusqu'à 50 000 € Malaga 7252 Appartements jusqu'à 100.000€ Malaga 7284 Appartements neufs Malaga 8379 Appartements de luxe Malaga 7437 Appartements extérieurs Malaga 7361 Appartements neufs pas chers Malaga 8379 Appartements de Particuliers Malaga 6813 Vente appartements 2 chambres Marbella 2861 Vente appartements 3 chambres Marbella 2923 Vente d'appartements 4 chambres Marbella 2843 Vente appartements 5 chambres Marbella 2822 Appartements en bon état Marbella 2822 Appartements à rénover Marbella 2836 Appartements d'occasion Marbella 2921 Appartements avec vue sur la mer Marbella 2832 Appartements pas chers Marbella 3007 Appartements à vendre avec ascenseur Marbella 2969 Appartements jusqu'à 100 000 € Marbella 2819 Appartements neufs Marbella 2899 Appartements jusqu'à 50.000€ Marbella 2819 Appartements de luxe Marbella 2865 Appartements extérieurs Marbella 2844 Appartements neufs pas chers Marbella 2899 Appartements de particuliers Marbella 2768

Propriétés les plus proches

Explorez les biens immobiliers que nous avons découverts à proximité de ce site

Apartamentos en Venta en Calle pico Alcazaba s/n, Estepona

Malaga, Estepona, Benamara - Atalaya, Calle pico Alcazaba s/n
535 000 €

 Commencez une nouvelle vie pleine d'émotions. Ce complexe résidentiel impr...

0
0 commentaires

Apartamentos en Venta en Calle pico Alcazaba s/n, Estepona

Malaga, Estepona, Benamara - Atalaya, Calle pico Alcazaba s/n
512 000 €

 Commencez une nouvelle vie pleine d'émotions. Ce complexe résidentiel impr...

0
0 commentaires

Apartamentos en Venta en Calle pico Alcazaba s/n, Estepona

Malaga, Estepona, Benamara - Atalaya, Calle pico Alcazaba s/n
695 000 €

 Commencez une nouvelle vie pleine d'émotions. Ce complexe résidentiel impr...

0
0 commentaires

Apartamentos en Venta en Calle pico Alcazaba s/n, Estepona

Malaga, Estepona, Benamara - Atalaya, Calle pico Alcazaba s/n
716 000 €

 Commencez une nouvelle vie pleine d'émotions. Ce complexe résidentiel impr...

0
0 commentaires

Apartamentos en Venta en Calle pico Alcazaba s/n, Estepona

Malaga, Estepona, Benamara - Atalaya, Calle pico Alcazaba s/n
570 000 €

 Commencez une nouvelle vie pleine d'émotions. Ce complexe résidentiel impr...

0
0 commentaires

Apartamentos en Venta en Calle pico Alcazaba s/n, Estepona

Malaga, Estepona, Benamara - Atalaya, Calle pico Alcazaba s/n
791 000 €

 Commencez une nouvelle vie pleine d'émotions. Ce complexe résidentiel impr...

0
0 commentaires

Apartamentos en Venta en Calle pico Alcazaba s/n, Estepona

Malaga, Estepona, Benamara - Atalaya, Calle pico Alcazaba s/n
514 000 €

 Commencez une nouvelle vie pleine d'émotions. Ce complexe résidentiel impr...

0
0 commentaires

Apartamentos en Venta en Calle pico Alcazaba s/n, Estepona

Malaga, Estepona, Benamara - Atalaya, Calle pico Alcazaba s/n
552 000 €

 Commencez une nouvelle vie pleine d'émotions. Ce complexe résidentiel impr...

0
0 commentaires

Nouvelle construction Atalaya Emotion par Tm à Estepona.

Malaga, Estepona, Benamara - Atalaya, Calle pico Alcazaba s/n
767 000 €

Commencez une nouvelle vie pleine d'émotions. Ce complexe résidentiel exception...

0
0 commentaires
Appeler

Nous utilisons nos propres cookies et ceux de tiers pour analyser l’utilisation du site Web et vous montrer des publicités en lien avec vos préférences, sur la base d’un profil établi à partir de vos habitudes de navigation (ex. : pages visitées). Plus d’informations. Acceptez-vous les cookies ?