Espagne Maison Espagne Maison Malaga Maison Marbella Casa independiente en calle Osa Menor 2g, 57 a

Nouvelle œuvre Casa independiente en calle Osa Menor 2g, 57 a à Marbella

Malaga, Marbella, Nouvelle Andalousie, Calle Osa Menor 2G, 57 A
4 300 000 €
9 471 € / m2
Laisser un commentaire
2025 Année de livraison
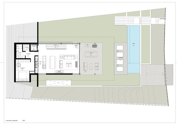
454 m² m2 construits
858 m² Superficie du terrain
5 Salles de bains
4 Chambres
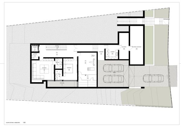
Inclus dans le prix Garage
Bon état État de l'immeuble
Situada en el exclusivo barrio de La Cerquilla, esta extraordinaria villa moderna es una creación visionaria actualmente en construcción, que ofrece una fusión perfecta de elegancia contemporánea y elementos naturales. Diseñada por Jacobsen Arquitectura, la audaz arquitectura de la propiedad se complementa con el uso de materiales naturales que mejoran su integración con el paisaje circundante. Ubicada en una amplia parcela en el corazón del Valle del Golf, la villa goza de vistas al Mediterráneo, un jardín paisajista y excepcionales espacios exteriores, como una piscina privada, zonas de entretenimiento y terrazas diseñadas para comer al aire libre, descansar y socializar. El interior de la villa es tan impresionante como su exterior, con un diseño sofisticado que combina forma y funcionalidad. La distribución abierta conecta la cocina, el salón y el comedor, con grandes puertas de cristal que crean un flujo continuo hacia el exterior. El nivel superior está dedicado a la vida serena, con una suntuosa suite principal que ofrece un vestidor y un baño en-suite, junto con habitaciones de invitados bellamente decoradas. El nivel inferior está reservado para el ocio y la comodidad, con un amplio garaje, una oficina en casa, un spa y gimnasio, y una sala de entretenimiento hecha a medida para el lujo moderno. Situada en la tranquila y segura comunidad de La Cerquilla, esta villa ofrece un codiciado equilibrio entre privacidad y accesibilidad. Con su proximidad a prestigiosos colegios, servicios esenciales y el animado centro de Puerto Banús, esta propiedad es un refugio ideal para aquellos que buscan un estilo de vida contemporáneo en uno de los lugares más deseables de Marbella.

Promotions remarquables en Espagne

10 unités

Nature Views 2

Alicante, Torrevieja, Les Balcons - Les Hauts de l'Éden, Denia s/n
310 000 € - 379 000 €
1 unités

Hotel en venta en Benidorm centro

Alicante, Benidorm, Plage de Poniente
2 250 000 € - 2 250 000 €
28 unités

Residencial Los Balcones De Calpe

Alicante, Calpe, Calpe Pueblo, Avenida de Madrid, 1
299 000 € - 892 125 €
4 unités

Nature Views

Alicante, Torrevieja, Lago Jardín II, Avenida Denia s/n
309 000 € - 330 000 €
5 unités

ALONIS VILLAS

Alicante, La Villajoyosa / Vila Joiosa, Plage de Torres, Partida Torres s/n
675 000 € - 775 000 €
1 unités

Residencial Royal Beach

Alicante, Guardamar del Segura, village, Miguel Hernández 102
349 500 € - 349 500 €
7 unités

Royal Star

Alicante, Guardamar del Segura
229 500 € - 269 500 €

Caractéristiques du bien

Complex information

Informations sur le projet / État des travaux

  • Année de livraison
    2025
  • État de l'immeuble
    Bon état

Données de la propriété

  • Garage
    Inclus dans le prix
  • Chambres
    4
  • Salles de bains
    5
  • m2 construits
    454 m²
  • Type de propriété
    Occasion

Surfaces

  • Superficie du terrain
    858 m²

Base

Certificat énergétique

  • État du certificat énergétique
    En cours

Installations

Commodités du logement:

Climatisation
Terrasse

Dans l'immeuble:

Piscine
Jardin
Parking privé

État:

Bon état

Statistiques des prix du marché pour Casa independiente en calle Osa Menor 2g, 57 a

3 814 213 € (7 123 €/m2)
Prix moyen du primaire dans la ville de Marbella
3 587 203 € (7 374 €/m2)
Prix moyen du secondaire dans la ville de Marbella

Carte

Malaga, Marbella, Nouvelle Andalousie, Calle Osa Menor 2G, 57 A Aller à cet endroit
Laisser un commentaire sur Casa independiente en calle Osa Menor 2g, 57 a
0
0 revues
1
0% (0)
2
0% (0)
3
0% (0)
4
0% (0)
5
0% (0)
Solvilla
4 300 000 €
de 9 471 € / m2
Contacter l'annonceur

Pour plus d’informations, contactez la plateforme

REF: 459488

Critiques à propos de Casa independiente en calle Osa Menor 2g, 57 a
Loading...

No reviews have been left for this object yet

Propriétés les plus proches

Explorez les biens immobiliers que nous avons découverts à proximité de ce site

Chalet independiente en Venta en Urbanización La Quinta 107/108 s/n, Benahavís

Malaga, Benahavís, La Quinta, Urbanización La Quinta 107/108 s/n
11 900 000 €

Villa HG, le joyau méconnu de la vallée du golf, conçue par un architecte local...

0
0 commentaires

Obra nueva Casa Calma en Benahavís

Malaga, Benahavís, La Alquería, Calle La Alquería , parcela 2,25 s/n
2 495 000 €

 Nouvelle villa près des terrains de golf dans une urbanisation sécurisée...

0
0 commentaires

Chalet independiente en Venta en Calle Ágata y Somontano s/n, Estepona

Malaga, Estepona, Benamara - Atalaya, Calle Ágata y Somontano s/n
1 850 000 €

 ATTA est un projet résidentiel exceptionnel comprenant une collection de 8...

0
0 commentaires

Chalet independiente en Venta en Calle Ágata y Somontano s/n, Estepona

Malaga, Estepona, Benamara - Atalaya, Calle Ágata y Somontano s/n
1 675 000 €

 ATTA est un projet résidentiel exceptionnel comprenant une collection de 8...

0
0 commentaires

Chalet independiente en Venta en Calle Ágata y Somontano s/n, Estepona

Malaga, Estepona, Benamara - Atalaya, Calle Ágata y Somontano s/n
1 975 000 €

 ATTA est un projet résidentiel exceptionnel comprenant une collection de 8...

0
0 commentaires

Chalet independiente en Venta en Calle Ágata y Somontano s/n, Estepona

Malaga, Estepona, Benamara - Atalaya, Calle Ágata y Somontano s/n
1 795 000 €

 ATTA est un projet résidentiel exceptionnel comprenant une collection de 8...

0
0 commentaires

Chalet independiente en Venta en Calle Ágata y Somontano s/n, Estepona

Malaga, Estepona, Benamara - Atalaya, Calle Ágata y Somontano s/n
1 650 000 €

 ATTA est un projet résidentiel exceptionnel comprenant une collection de 8...

0
0 commentaires

Chalet independiente en Venta en Calle Ágata y Somontano s/n, Estepona

Malaga, Estepona, Benamara - Atalaya, Calle Ágata y Somontano s/n
1 495 000 €

 ATTA est un projet résidentiel exceptionnel comprenant une collection de 8...

0
0 commentaires

Chalet independiente en Venta en Carretera A-397 KM 38,5, 34, Benahavís

Malaga, Benahavís, La Zagaleta, Carretera A-397 KM 38,5, 34
15 800 000 €

 Dans le prestigieux quartier de La Zagaleta, vous trouverez cette superbe...

0
0 commentaires
Appeler

Nous utilisons nos propres cookies et ceux de tiers pour analyser l’utilisation du site Web et vous montrer des publicités en lien avec vos préférences, sur la base d’un profil établi à partir de vos habitudes de navigation (ex. : pages visitées). Plus d’informations. Acceptez-vous les cookies ?